Verkocht

Burgerhof 36 2353 VW Leiderdorp

133m2
Wonen
6
Kamers
119m2
Perceel
1990
Bouwjaar
Dit is absoluut het mooiste huis van de wijk. Ben je op zoek naar een zeer groot luxe en moderne energiezuinige woning in de wijk Buitenhof met energielabel A??? Dan is dit absoluut jouw huis. In het recente verleden is bijna alles gemoderniseerd en luxe afgewerkt. Wat te denken van de uitbouw, de luxe U vormige Siemens keuken met alle denkbare apparatuur, de vloerverwarming met mooie Pvc visgraat parketvloer op de begane grond, de 5 slaapkamers met separate waskamer, de luxe badkamer met douchecabine en dubbel wastafel met meubel….. ach… zo kunnen we nog wel even doorgaan. Dit huis heeft het gewoon allemaal. Zoals eerder gezegd, energielabel A doordat het geheel goed is geïsoleerd.
Alles is strak afgewerkt met een moderne industriële look en 0,0 verbouwen. Letterlijk. Verhuizen en wonen.
Locatie is ook super. Gelegen aan een rustig pleintje met groen en letterlijk om de hoek van de polder en de uitvalswegen. De grote supermarkt en het winkelcentrum Winkelhof zijn op loop- en fietsafstand. Scholen en kinderopvang zijn ook om de hoek dus alles is in de buurt.

Van deze woning is ook een eigen website beschikbaar. Url van de website is straatnaam, dan het huisnummer en dan .nl. Behalve de foto’s op groot formaat zijn er ook allerlei handige tools. De relevante documentatie kan je hier vinden.

Wil je bezichtigen? Een beller is sneller. De genoemde vraagprijs is een vanaf prijs.
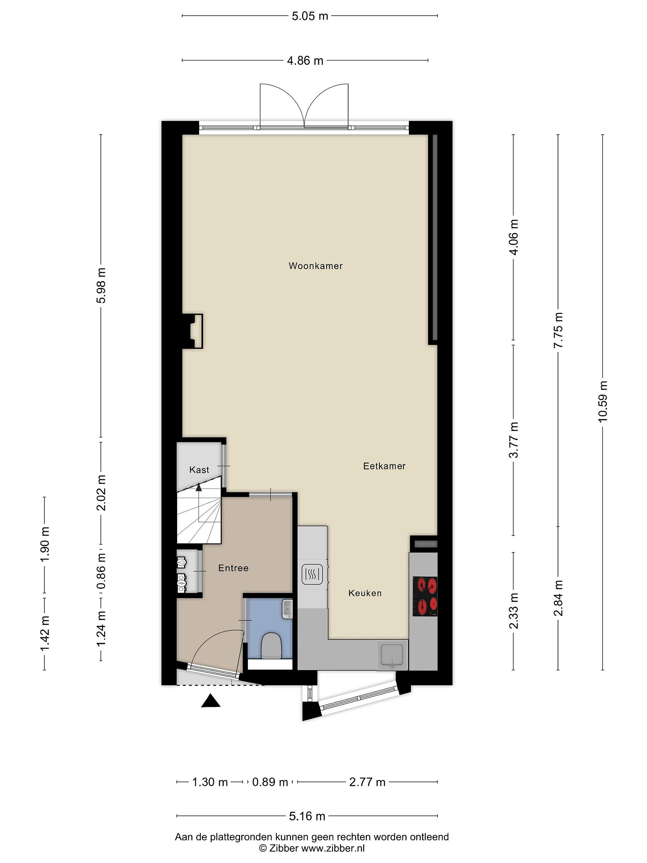
Begane grond
We staan voor het huis en zien al dat deze type woningen groter zijn dan normaal. Ca 133m2 woonoppervlak en direct valt ook het goede onderhoud op extern. Leuke is dat aan de voorzijde een rustig plaatselijk parkeerplaatsje is dus ook in de voortuin is het heerlijk en rustig genieten. We gaan naar binnen.
Net even wat speelser ingedeeld, maar direct komt de luxe en het moderne op je af. Rechts het gave en luxe toilet met fontein. Mooie tegels en gewoon af. We lopen door over de visgraat parketvloer, met vloerverwarming, en komen in de woonkamer. Dit is nog eens ruimte. Uitgebouwd, breed en heel veel daglicht toetreding. Komt ook door de lichtstraat die is gemaakt en door de openslaande deuren aan de achterkant. Terug naar de woonkamer. Zo verschrikkelijk diep en breed dat je genoeg ruimte hebt voor je hoekbank, je stoelen en je lange eettafel. Ideaal als je veel mensen over de vloer hebt voor de borrel of een verjaardag.
Door naar de voorkant. Wat een gave keuken is dit. Voorzien alle denkbare apparatuur. Van een quooker en inductieplaat met afzuiging, tot 2 ovens, een vaatwasser en een koelkast en vriezer. Alles van Siemens dus goede kwaliteit. Veel kastruimte en veel werkruimte. De hobbykok is hier heel blij mee.
Terug naar de woonkamer door naar de tuin. Gelegen op het noordwesten, dik 40m2 en veel zon en heerlijk rustig. Er is een achterom en een schuur en alles is mooi betegeld en voorzien van wat groen. Op naar de 1e etage.

We hadden eerder al gezegd ruim toch? Via de overloop zijn de 3 slaapkamers te bereiken. 2 kamers heel goed van formaat en 1 kamer heeft een verrassing . Deze bestaat namelijk uit 2 samengevoegde kamers en is echt geweldig om als kind te hebben. Tussenin ligt de badkamer. Luxe, moderne en voorzien van een grote douche, een 2e toilet, vloerverwarming en een grote dubbele wastafel met mooi meubel. Alles is af en alles is strak. Op naar de 2e etage, want het houdt niet op.

Via de kleine overloop rechts gelijk de 4e slaapkamer. Wederom groot en helemaal van nu. En dan de master bedroom. Wauw…… een giga dakkapel achter, de airco, de breedte, de mooie vaste kasten welke op maat zijn gemaakt, alles klopt hier.

Wat ook echt heel tof en bijzonder is, is de aparte waskamer. Voorzien van de wma en dma, een keukenblokje met gootsteen en de opstelplaats voor de mechanische ventilatie unit en de cv ketel.

We hebben al zoveel verteld, maar dit huis moet je zien. Wij zijn van mening dat je direct verkocht bent. De ruimte, de luxe en de afwerking. Graag tot de bezichtiging.

Details
- Oplevering ca. begin december 2025
- Energielabel A dus meer mogelijkheden voor de hypotheek
- De genoemde vraagprijs is een vanaf prijs.

Lees meer

Verkoopgeschiedenis

Aangeboden sinds
18 september 2025
Verkoopdatum
11 oktober 2025
Looptijd
23 dagen

Kenmerken

Overdracht

Prijs per m2
€ 4.511
Aangeboden sinds
18 september 2025
Status
Verkocht
Aanvaarding
In overleg

Bouw

Soort woonhuis
Eengezinswoning, tussen woning
Soort bouw
Bestaande bouw
Bouwjaar
1990
Soort dak
Zadeldak
Staat van onderhouden binnen
Uitstekend
Staat van onderhouden buiten
Uitstekend

Oppervlakte en inhoud

Perceeloppervlakte
119 m2
Inhoud van de woning
471 m3
Oppervlakte externe bergruimte
5 m2
Oppervlakte gebouwgebonden buitenruimten
1 m2

Indeling

Aantal kamers
6
Aantal slaapkamers
5
Aantal woonlagen
3
Voorzieningen
Tuin, schuur/berging, ventilatie, kabel-tv, glasvezel, airconditioning

Buitenruimte

Balkon
Nee
Schuur/berging
Ja

Maandlasten berekenen

De maandlasten voor je woning bestaan uit meer dan alleen de hypotheeklasten. Hieronder vind je een overzicht van de bijkomende kosten en lasten. Zo weet je precies wat je huis per maand gaat kosten. En met de handige vergelijkers kun je ook nog eens snel de beste deals sluiten!

  • Kaart
  • Streetview