Verkocht

Suze Baarthof 18 2331 SM Leiden

138m2
Wonen
6
Kamers
126m2
Perceel
1990
Bouwjaar
Grote families en thuiswerkers opgelet! Een enkele keer komt er zo'n ruim bemeten woonhuis (Gebruiksoppervlakte wonen: 138 m2) beschikbaar in een leuk autovrij hofje in de gewilde kindvriendelijke woonwijk Stevenshof in Leiden. Tuingerichte woonkamer, open keuken, de dakopbouw zorgt voor extra woonruimte, vijf slaapkamers, een balkon en een zonnige achtertuin op het westen die het hart van de zon-/en tuinliefhebber zeker sneller doet kloppen. Nieuwsgierig geworden? Dit zijn enkele kenmerken van deze moderne eengezinswoning welke per direct is te betrekken. De woning is goed geïsoleerd (energielabel A) en voorzien van een mechanisch ventilatiesysteem. CV/WW via stadsverwarmingsnet. Wilt u gasloos wonen? Dat kan eenvoudig! Door het plaatsen van een inductiekookplaat kunt u de gasmeter overbodig maken. Gunstige ligging t.o.v. winkels, sport- en recreatievoorzieningen, gezondheidscentrum (inclusief apotheek), Stevenspark, LUMC, scholen, universiteit, Bio Science Park, NS De Vink en uitvalswegen A4/N11en A44/N206. Met de komst van de RijnlandRoute (N434) is de bereikbaarheid nog beter geworden. Ook ESTEC (ESA) in Noordwijk, American School of The Hague in Wassenaar en het bruisende centrum van Leiden zijn snel te bereiken. Prettig detail: het hofje is uitkomend op een kinderspeelplaats. Kortom, deze woning biedt u een perfecte leefomgeving voor jong en oud.
Begane grond
Entree woning, hal met meterkast/stadsverwarming en een toiletruimte. Tuingerichte woonkamer. De U-vormige open keuken is gelegen aan de voorzijde van de woning en is o.a. voorzien van een 4-pitskookplaat, afzuigkap, koelkast, vriezer, combi oven en een vaatwasser. De ruime trapkast zorgt voor opbergruimte. De hal, woonkamer en keukenruimte zijn afgewerkt met een tegelvloer. Zonliefhebbers opgelet! Via de tuindeur in de woonkamer bereikt u de heerlijk zonnige achtertuin gelegen op het westen (middag-/avondzon). Deze achtertuin met zonnescherm, houten berging en achterom doet het hart van de echte tuin- en zonliefhebber zeker sneller kloppen!

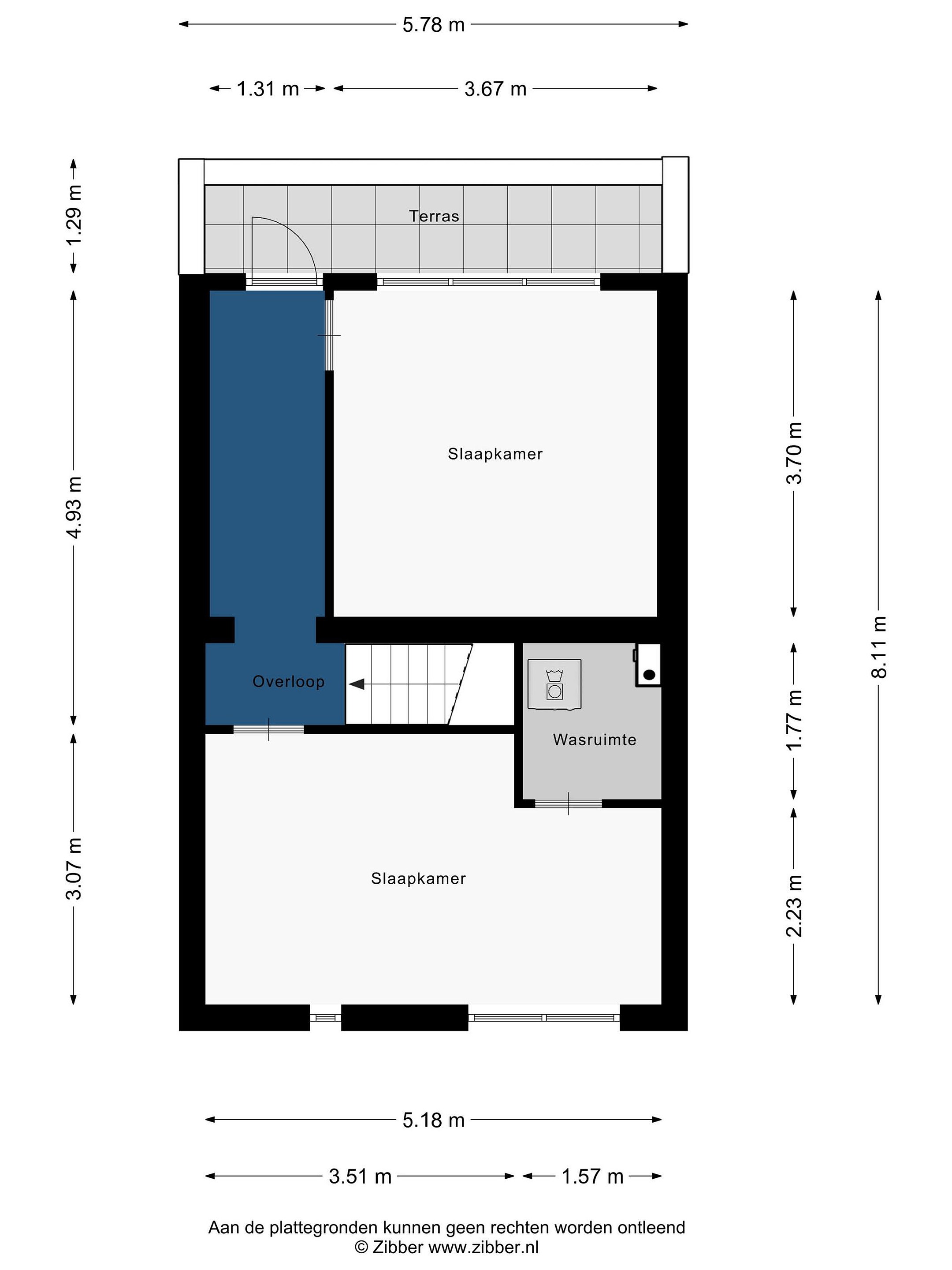
1e verdieping:
Overloop met twee vaste kasten en de trap naar de 2e verdieping. Aan de voorzijde van de woning vindt u een slaapkamer. Aan de achterzijde van de woning bevinden zich nog twee slaapkamers. De badkamer beschikt over een wastafel, ligbad/douchecombinatie en een 2e toilet.

2e verdieping:
Omdat deze verdieping is voorzien van een dakopbouw geniet u van extra woonruimte. Ruime overloop met toegang tot het balkon (W). Aan de achterzijde van de woning vindt u een slaapkamer. Deze kamer is ook uitermate geschikt om als hobbyruimte en/of thuiswerkplek te gebruiken. Aan de voorzijde van de woning bevindt zich de vijfde slaapkamer. Separate ruimte met wasmachineaansluiting en de opstelplaats voor de mechanische ventilatie-unit. Handig en luxe is het om op deze verdieping een 2e badkamer te realiseren, vooral voor grotere gezinnen of wanneer u vaak logés heeft.

Bijzonderheden: de woning is gelegen op erfpachtgrond, het betalen van erfpachtcanon en de jaarlijkse administratiekosten zijn afgekocht tot 2065. Het is mogelijk om de erfpachtgrond in eigendom te verkrijgen. De woning is voorzien van dubbele beglazing (m.u.v. ruitje badkamer).

Aanvaarding: per direct / in overleg.

Energielabel: A

Meetrapport NEN 2580 beschikbaar.

Bouwjaar: 1990
Gebruiksoppervlakte wonen: 138 m2
Bruto inhoud woning: 488,76 m3
Perceelopp: 126 m2

Ten aanzien van eventuele foutieve vermeldingen aanvaardt Werk Makelaardij B.V. geen enkele aansprakelijkheid.

Lees meer

Verkoopgeschiedenis

Aangeboden sinds
16 november 2025
Verkoopdatum
31 december 2025
Looptijd
één maand

Kenmerken

Overdracht

Prijs per m2
€ 3.949
Aangeboden sinds
16 november 2025
Status
Verkocht
Aanvaarding
Direct

Bouw

Soort woonhuis
Eengezinswoning, tussen woning
Soort bouw
Bestaande bouw
Bouwjaar
1990
Staat van onderhouden binnen
Goed
Staat van onderhouden buiten
Goed

Oppervlakte en inhoud

Perceeloppervlakte
126 m2
Inhoud van de woning
488 m3
Oppervlakte externe bergruimte
6 m2
Oppervlakte gebouwgebonden buitenruimten
5 m2

Indeling

Aantal kamers
6
Aantal slaapkamers
5
Aantal woonlagen
3
Voorzieningen
Tuin, balkon, schuur/berging, ventilatie

Buitenruimte

Balkon
Ja
Schuur/berging
Ja

Maandlasten berekenen

De maandlasten voor je woning bestaan uit meer dan alleen de hypotheeklasten. Hieronder vind je een overzicht van de bijkomende kosten en lasten. Zo weet je precies wat je huis per maand gaat kosten. En met de handige vergelijkers kun je ook nog eens snel de beste deals sluiten!

  • Kaart
  • Streetview