Verkocht

Rijndijkstraat 25 2313 NG Leiden

95m2
Wonen
4
Kamers
94m2
Perceel
1920
Bouwjaar
Op zoek naar een huis in dè Rood Witstraat 2025 van Leiden? Dan is Rijndijkstraat 25 het helemaal voor jou. Dit huis is gelegen in een hele fijne woonstraat en ligt op een steenworp afstand van het centrum van Leiden met haar grachten, winkels en terrassen. Ook Station Leiden Lammenschans bereik je binnen enkele minuten, en gemak winkels zijn om de hoek. De straat zelf kenmerkt zich door karakteristieke bebouwing en een prettige, rustige sfeer. En op 3 October dus een echt feestje in de straat zelf.

Deze woning heeft hoge plafonds, authentieke details en veel lichtinval. Met een riante woonkamer, openslaande deuren naar de zonnige tuin op het noordwesten en drie slaapkamers is dit een huis met ruimte. De keuken en badkamer vormen een goede basis en bieden kansen om naar eigen smaak te moderniseren.
Acht zonnepanelen dragen bij aan duurzaamheid en lagere energielasten. Kortom een karaktervol woonhuis met potentie, op een locatie die simpelweg klopt.
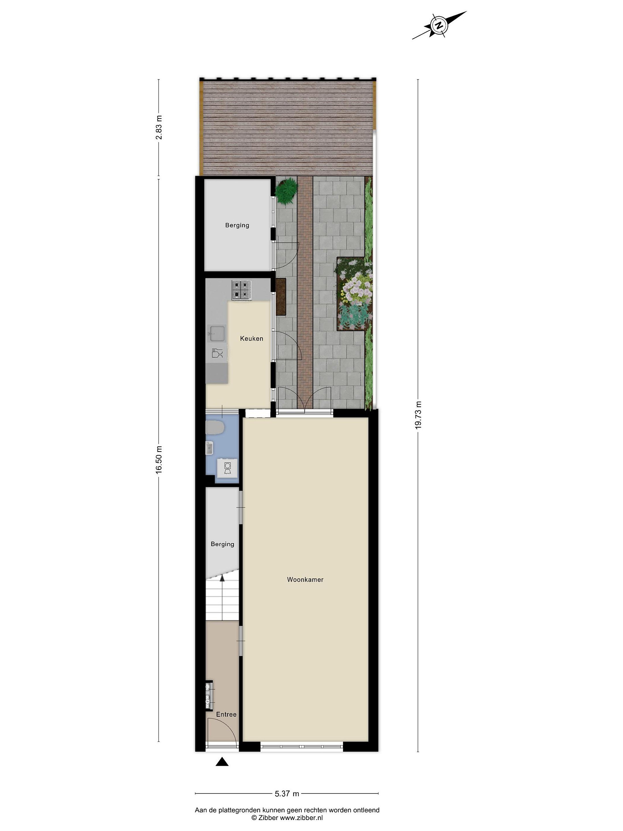
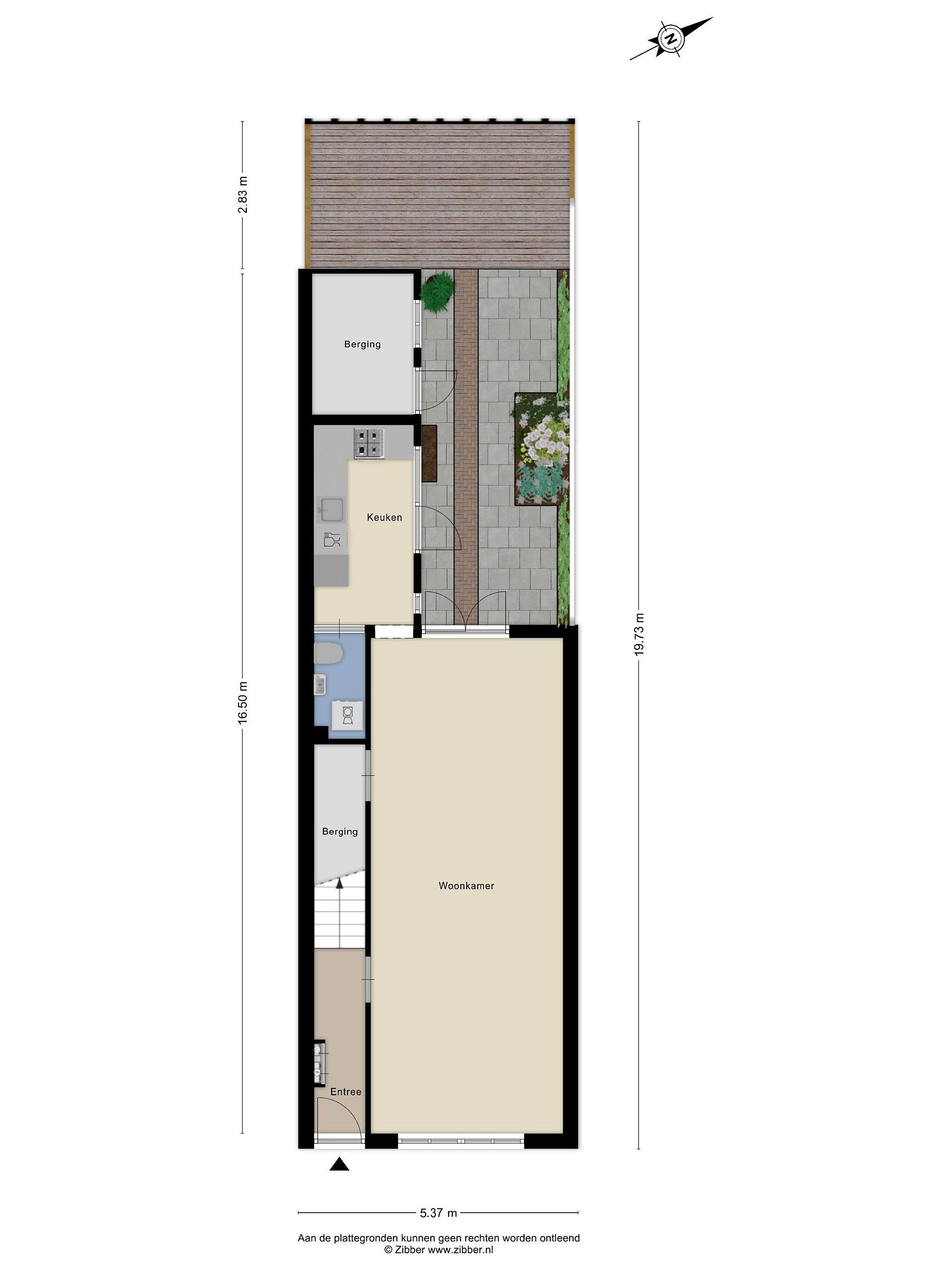
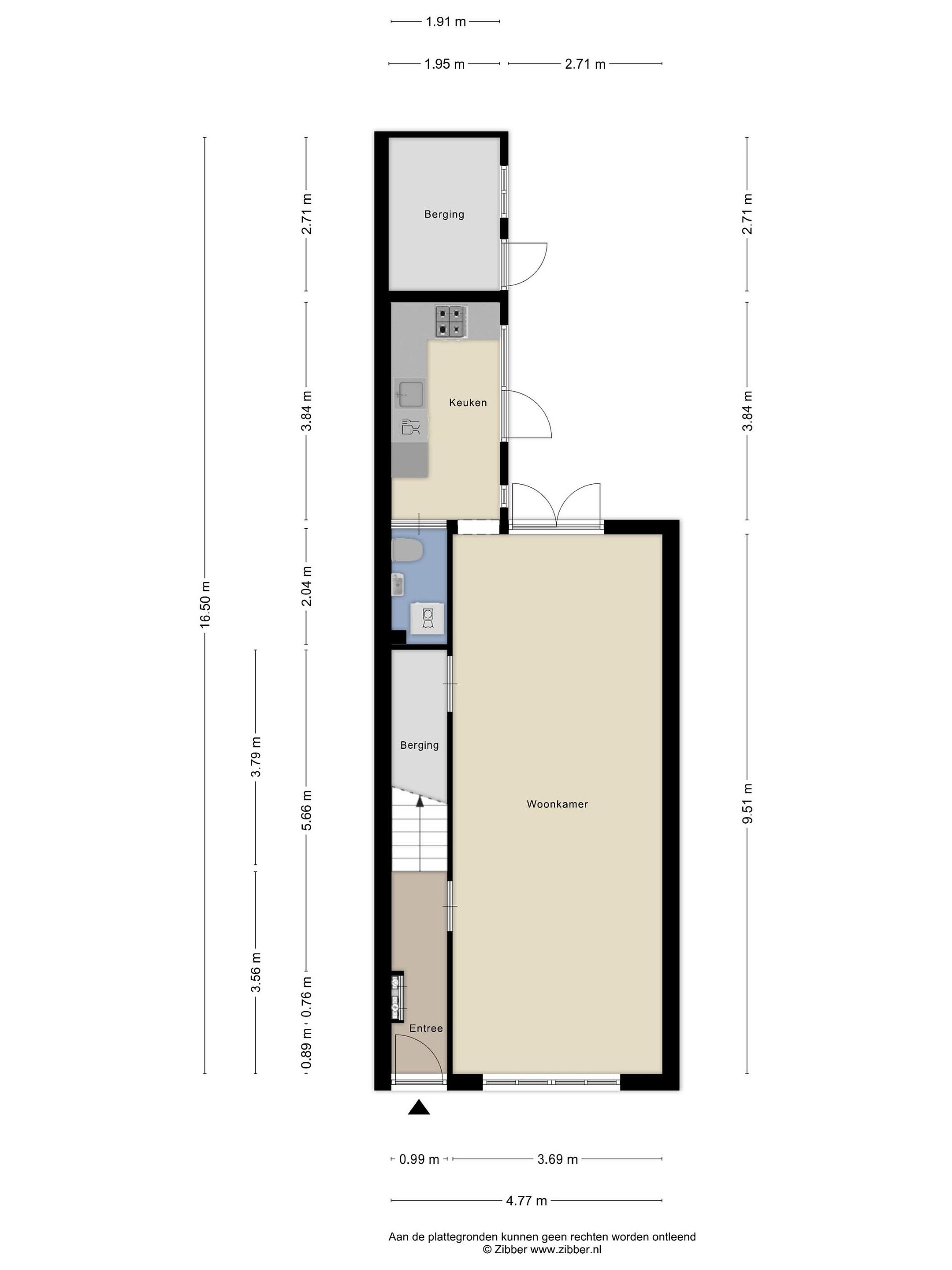
Begane grond
Je stapt binnen via de entree en komt in de gang. Hier vind je direct de meterkast en de omvormer van de 8 zonnepanelen. Wat meteen opvalt? De hoogte. De plafonds geven het huis licht en je voelt direct de sfeer van toen. De originele deurposten versterken het authentieke karakter. We lopen door naar de woonkamer. Dik 34m2 en voorzien van een zeer handige diepe trapkast. Aan de voorzijde zorgen de hoge plafonds en de prachtige authentieke schuiframen voor dus dat licht en sfeer.
Aan de achterzijde openen de openslaande deuren naar de achtertuin en links daarvan de toegang naar de keuken, maar die straks. Een riante achtertuin met een terras en een schuur, welke is gelegen op het noordwesten. Doordat er geen directe hoogbouw is, geniet je volop van de ochtend, middag- en avondzon. Een fijne plek om de lange zomerdagen af te sluiten. Vergeet ook niet even te kijken in de houten schuur met elektra. Terug naar binnen en naar de keuken.

De keuken, met apparatuur, is verrassend ruim van opzet. We zijn eerlijk, het huidige keukenblok is functioneel maar zeker aan vervanging toe. Dit biedt je gelijk een mooie kans om hier jouw droomkeuken te realiseren. De afmetingen zijn royaal en je kan meerdere kanten op door ook de breedte van de keuken.
Er is ook nog een deur naar de achtertuin en via de keuken bereik je het eerste toilet met fontein én de aansluiting voor de wasmachine. Deze ruimte biedt mogelijkheden; hier kun je nog echt waarde toevoegen. Laten we je zien bij de bezichtiging. Op naar de eerste etage.

Op de eerste etage kom je op een riante overloop met toegang tot drie slaapkamers, de cv-ruimte en de badkamer. We beginnen aan de voorzijde. Dit is nog eens een master bedroom. Over de volledige breedte van het huis, open tot in de nok en voorzien van een vaste kastenwand. Ook hier weer die authentieke uitstraling dankzij de karakteristieke schuiframen.

Aan de achterzijde bevinden zich twee vrijwel identieke slaapkamers. Beide kamers zijn voorzien van twee praktische kledingkasten (blijven achter) en bieden voldoende ruimte voor een goed eenpersoonsbed en kleine bureau-opstelling. Tussen deze kamers ligt de badkamer. Netjes, eenvoudig en functioneel ingericht met een tweede toilet, ligbad met douche en een wastafel met meubel. Dankzij het dakraam is er natuurlijke ventilatie en daglicht. Een ideale basis die je naar eigen smaak kunt moderniseren.
De cv-ruimte ligt tussen de badkamer en een achter slaapkamer beschikt over een kleine vliering, geschikt voor circa zes verhuisdozen — altijd handig voor extra bergruimte.

Een woning met karakter, hoge plafonds, een zonnige tuin en volop mogelijkheden om naar eigen wens te moderniseren. Op een locatie waar bereikbaarheid en stadsleven perfect samenkomen. Hier kun je echt iets moois van maken.

Details
- 8 Zonnepanelen
- Oplevering eind mei 2026

Lees meer

Verkoopgeschiedenis

Aangeboden sinds
26 februari 2026
Verkoopdatum
20 maart 2026
Looptijd
22 dagen

Kenmerken

Overdracht

Prijs per m2
€ 5.211
Aangeboden sinds
26 februari 2026
Status
Verkocht
Aanvaarding
In overleg

Bouw

Soort woonhuis
Eengezinswoning, tussen woning
Soort bouw
Bestaande bouw
Bouwjaar
1920
Soort dak
Zadeldak
Staat van onderhouden binnen
Redelijk
Staat van onderhouden buiten
Redelijk

Oppervlakte en inhoud

Perceeloppervlakte
94 m2
Inhoud van de woning
337 m3
Oppervlakte externe bergruimte
5 m2

Indeling

Aantal kamers
4
Aantal slaapkamers
3
Aantal woonlagen
2
Voorzieningen
Tuin, schuur/berging, kabel-tv, dakraam

Buitenruimte

Balkon
Nee
Schuur/berging
Ja

Maandlasten berekenen

De maandlasten voor je woning bestaan uit meer dan alleen de hypotheeklasten. Hieronder vind je een overzicht van de bijkomende kosten en lasten. Zo weet je precies wat je huis per maand gaat kosten. En met de handige vergelijkers kun je ook nog eens snel de beste deals sluiten!

  • Kaart
  • Streetview