Verkocht

Prinses Wilhelminastraat 24 2313 AW Leiden

66m2
Wonen
3
Kamers
75m2
Perceel
1914
Bouwjaar
Fijn wonen in een charmant woonhuis! Dichtbij het bruisende centrum van Leiden. Wel de lusten, maar niet de lasten van de stad. Als vanouds stads leven in de stad Leiden. En thuiskomen in een fijne buurt waar kinderen veilig buitenspelen.

Zelf geniet u van uw zonnige achtertuin. Zin in de stad? Dan springt u op de fiets en bevindt u zich in een paar minuten in het historische centrum. Heerlijk toch als u na een avondje uitgaan gewoon naar huis kunt lopen/fietsen.

Een enkele keer komt er zo'n leuke starterswoning beschikbaar in een rustig doodlopend straatje in de populaire Tuinstadwijk in Leiden. Voor uw dagelijkse boodschappen hoeft u alleen maar de hoek om te lopen. Vanaf de woning loopt u namelijk zo naar de winkelstraten Herenstraat en Doezastraat voor o.a. gezellige (buurt)winkels en diverse horeca. Binnen een paar minuten fietsen bent u in de charmante sfeer van de Leidse binnenstad en slentert u langs pittoreske grachten en oude monumenten. Deze aantrekkelijk geprijsde tussenwoning beschikt o.a. over een woonkamer met open haard, open keuken en twee slaapkamers en een badkamer op de 1e verdieping. De woning is voorzien van dubbele beglazing en gedeeltelijk kunststof kozijnen. Ook zijn er vier zonnepanelen geplaatst. Prettig voor het milieu maar ook voor uw portemonnee want het draagt bij aan lagere maandelijkse energielasten. Woont u graag dichtbij horeca, musea, theater, scholen en sport- en recreatievoorzieningen? En is het voor u ook belangrijk dat het station Leiden Centraal, LUMC, Bio Science Park, universiteit en uitvalswegen A4/N11, A44/N206 en N434 goed bereikbaar zijn? Dan verdient deze woning zeker een bezichtiging!
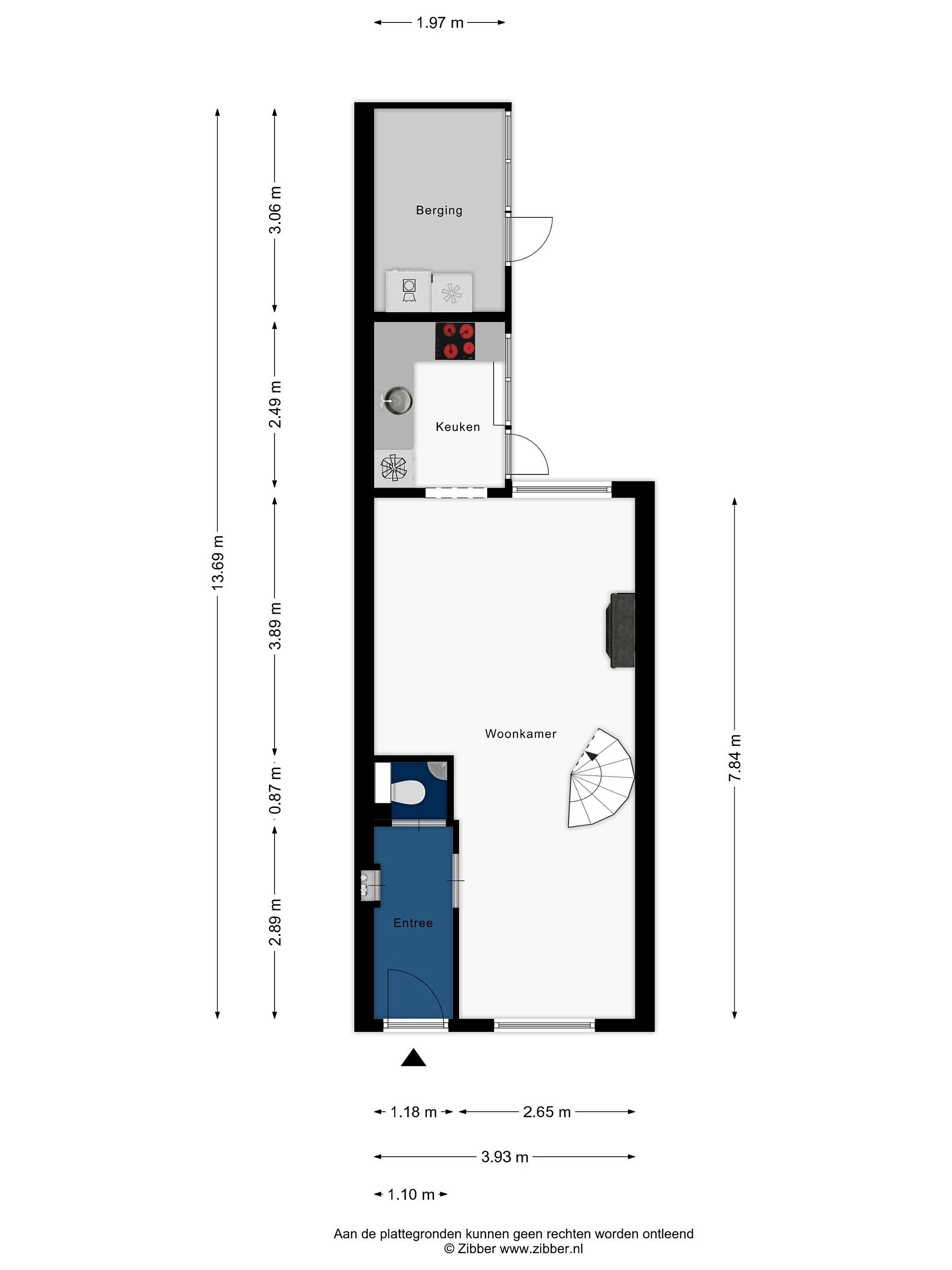
Begane grond
Entree woning. Hal met meterkast en een toiletruimte met hangend closet + fonteintje (2015). Lichte doorzon woonkamer met hoge plafond en een open (spil)trap. Door de open haard geniet u het gehele jaar door van een sfeervol vuurtje. De open keuken is gelegen aan de achterzijde van de woning en is o.a. voorzien van een inductiekookplaat, rvs afzuigkap, koelkast en een combi magnetron. Tuinliefhebbers opgelet! Via de keukendeur bereikt u de diepe achtertuin gelegen op het noorden. Door z’n afmeting en ligging is deze rustig gelegen achtertuin heerlijk zonnig. De aangebouwde berging met wasmachineaansluiting zorgt voor extra comfort.

Via de open (spil)trap in de woonkamer bereikt u de 1e verdieping:
Overloop. Toegang tot de bergvliering met cv-opstelling (2000). Aan de voorzijde van deze woning vindt u een slaapkamer met dakkapel. Aan de achterzijde van de woning bevindt zich nog een slaapkamer met dakkapel. De badkamer (2015) met douche, wastafel, 2e hangend closet, inbouwverlichting en tegelvloer inclusief vloerverwarming maakt het geheel compleet.

Bijzonderheden: voor woningen van ruim 100 jaar oud nemen wij standaard een asbest- en ouderdoms-/materiaalclausule op in koopovereenkomst. De woning bevindt zich in een wijk aangewezen tot beschermd stadgezicht. Betaald parkeren/parkeervergunning.

Aanvaarding: in overleg.

Energielabel: D.

Meetrapport NEN 2580 aanwezig.

Bouwjaar: 1914
Gebruiksoppervlakte wonen: 66,10 m2
Bruto inhoud woning: 255,36 m3
Perceelopp: 75 m2

Ten aanzien van eventuele foutieve vermeldingen aanvaardt Werk Makelaardij B.V. geen enkele aansprakelijkheid.




Lees meer

Verkoopgeschiedenis

Aangeboden sinds
12 november 2025
Verkoopdatum
2 december 2025
Looptijd
20 dagen

Kenmerken

Overdracht

Prijs per m2
€ 6.581
Aangeboden sinds
12 november 2025
Status
Verkocht
Aanvaarding
In overleg

Bouw

Soort woonhuis
Eengezinswoning, tussen woning
Soort bouw
Bestaande bouw
Bouwjaar
1914
Staat van onderhouden binnen
Goed
Staat van onderhouden buiten
Goed

Oppervlakte en inhoud

Perceeloppervlakte
75 m2
Inhoud van de woning
255 m3
Oppervlakte overige inpandige ruimten
6 m2

Indeling

Aantal kamers
3
Aantal slaapkamers
2
Aantal woonlagen
2
Voorzieningen
Tuin, schuur/berging, open haard

Buitenruimte

Balkon
Nee
Schuur/berging
Ja

Maandlasten berekenen

De maandlasten voor je woning bestaan uit meer dan alleen de hypotheeklasten. Hieronder vind je een overzicht van de bijkomende kosten en lasten. Zo weet je precies wat je huis per maand gaat kosten. En met de handige vergelijkers kun je ook nog eens snel de beste deals sluiten!

  • Kaart
  • Streetview