Verkocht

Henriëtte van der Meystraat 7 2331 SG Leiden

96m2
Wonen
4
Kamers
142m2
Perceel
1990
Bouwjaar
Energiezuinige eengezinswoning (energielabel A) gelegen in de gewilde kindvriendelijke woonwijk Stevenshof in Leiden. Tuingerichte woonkamer, gezellige open keuken, eenvoudige badkamer met ruime doucheruimte, drie slaapkamers, mogelijkheid om een 2e verdieping te creëren middels een opbouw (omgevingsvergunning nodig) en een opvallend diepe zonnige achtertuin die het hart van de tuinliefhebber zeker sneller al doen kloppen. Nieuwsgierig geworden? Dit zijn enkele kenmerken van deze aantrekkelijk geprijsde woning welke nog wel enigszins opgeknapt dient te worden. Dé kans om uw eigen woonwensen te realiseren! De woning is goed geïsoleerd, voorzien van dubbele beglazing en een mechanisch ventilatiesysteem. CV/WW via stadsverwarmingsnet. Wilt u gasloos wonen? Dat kan eenvoudig! Door het plaatsen van een inductiekookplaat kunt u de gasmeter in deze woning overbodig maken. Deze woning is zeer geschikt voor starters, maar ook voor gezinnen met kinderen. Gunstige ligging t.o.v. winkels, sport- en recreatievoorzieningen, gezondheidscentrum (inclusief apotheek), Stevenspark, LUMC, scholen, universiteit, Bio Science Park, NS De Vink en uitvalswegen A4/N11en A44/N206. Met de komst van de RijnlandRoute (N434) is de bereikbaarheid nog beter geworden. Ook ESTEC (ESA) in Noordwijk, American School of The Hague in Wassenaar en het bruisende centrum van Leiden zijn snel te bereiken. Speelmogelijkheden voor kinderen en diverse scholen in de omgeving van de woning.
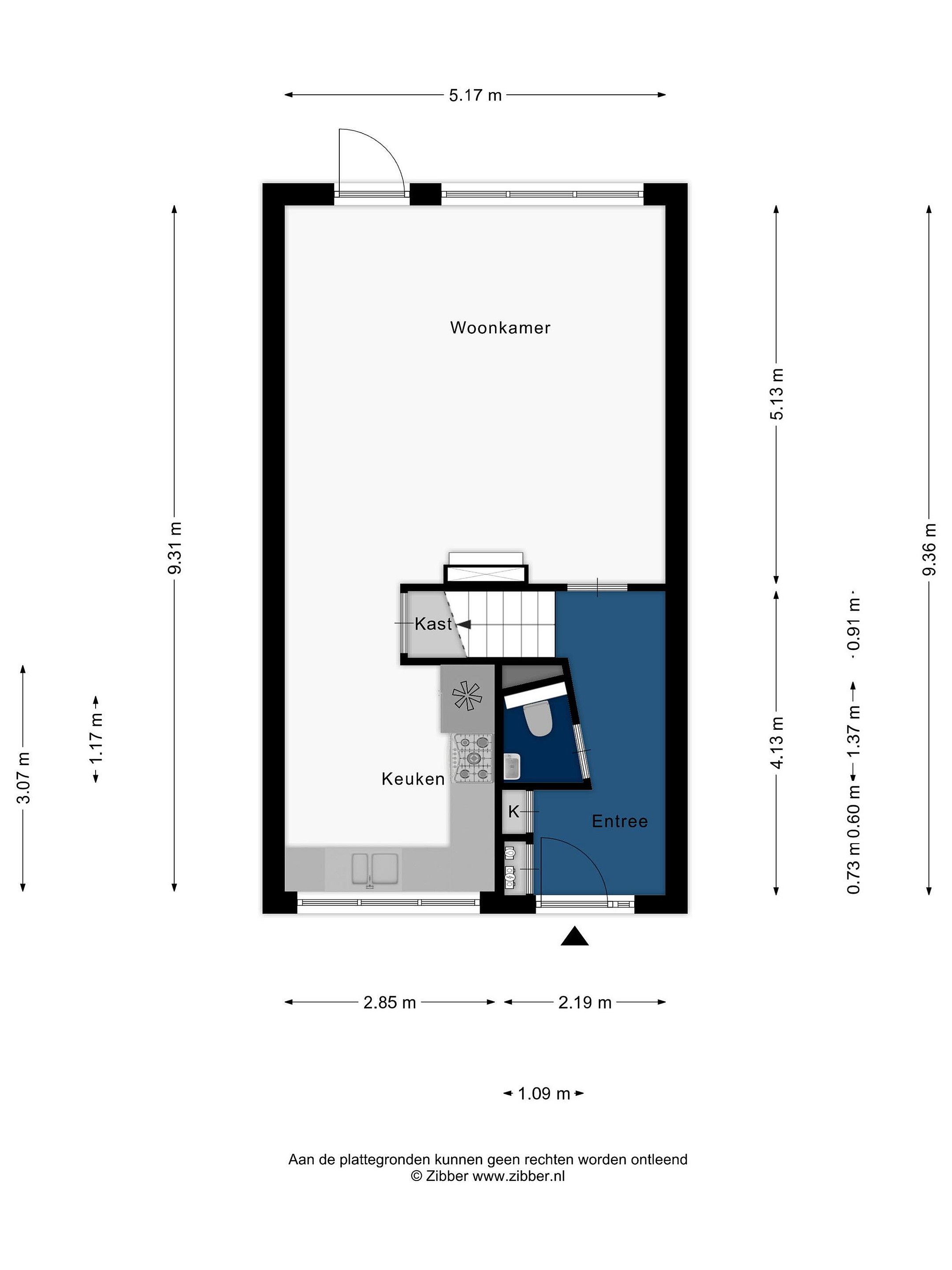
Begane grond
Entree woning, hal met meterkast/stadsverwarming en een toiletruimte. Lichte tuingerichte woonkamer met een open keuken. De hoekkeuken is gelegen aan de voorzijde van de woning en is o.a. voorzien van een stoer fornuis, afzuigkap, vrijstaande koel/vriescombinatie en een vaatwasser. De trapkast zorgt voor opbergruimte. Via de tuindeur in de woonkamer bereikt u de opvallend diepe zonnige achtertuin gelegen op het noordwesten met zonnescherm, houten berging en een achterom. Extra bergruimte vindt u in de aangebouwde houten berging. Door z’n ruime afmeting en vrije ligging is deze achtertuin heerlijk zonnig. Achter de achtertuin bevindt zich een speelveldje voor de jongste kinderen.

1e verdieping:
Overloop met vaste kastenwand. Aan de voorzijde van de woning vindt u een slaapkamer. Aan de achterzijde van deze ruime woning bevinden zich nog twee slaapkamers. De eenvoudige badkamer met ruime doucheruimte, wastafelmeubel, designradiator, wasmachineaansluiting en een 2e toilet maakt het geheel compleet.

Het is mogelijk om een 2e verdieping te creëren middels een opbouw (omgevingsvergunning nodig). De voorbereiding voor de dakopbouw is reeds vanuit de bouw aanwezig.

Bijzonderheden: de woning is gelegen op erfpachtgrond, het betalen van erfpachtcanon is afgekocht tot 2065. Jaarlijkse administratiekosten: € 70,91 (incl. btw). Het is mogelijk om de erfpachtgrond in eigendom te verkrijgen.

Aanvaarding: in overleg.

Energielabel: A.

Meetrapport NEN 2580 beschikbaar.

Bouwjaar: 1990
Gebruiksoppervlakte wonen: 96,30 m2
Bruto inhoud woning: 341,07 m3
Perceelopp: 142 m2

Ten aanzien van eventuele foutieve vermeldingen aanvaardt Werk Makelaardij B.V. geen enkele aansprakelijkheid.


Lees meer

Verkoopgeschiedenis

Aangeboden sinds
19 februari 2026
Verkoopdatum
18 maart 2026
Looptijd
één maand

Kenmerken

Overdracht

Prijs per m2
€ 5.088
Aangeboden sinds
19 februari 2026
Status
Verkocht
Aanvaarding
In overleg

Bouw

Soort woonhuis
Eengezinswoning, tussen woning
Soort bouw
Bestaande bouw
Bouwjaar
1990
Staat van onderhouden binnen
Goed
Staat van onderhouden buiten
Goed

Oppervlakte en inhoud

Perceeloppervlakte
142 m2
Inhoud van de woning
341 m3
Oppervlakte externe bergruimte
8 m2

Indeling

Aantal kamers
4
Aantal slaapkamers
3
Aantal woonlagen
2
Voorzieningen
Tuin, schuur/berging, ventilatie, buitenzonwering

Buitenruimte

Balkon
Nee
Schuur/berging
Ja

Maandlasten berekenen

De maandlasten voor je woning bestaan uit meer dan alleen de hypotheeklasten. Hieronder vind je een overzicht van de bijkomende kosten en lasten. Zo weet je precies wat je huis per maand gaat kosten. En met de handige vergelijkers kun je ook nog eens snel de beste deals sluiten!

  • Kaart
  • Streetview