Verkocht OV

Hovenstraat 57 6374 HB Landgraaf

176m2
Wonen
5
Kamers
337m2
Perceel
1930
Bouwjaar
DUBBEL WOONHUIS (BOVEN- EN BENEDENWONING) MET AANBOUW, KELDER EN TUIN, FYSIEK GESPLITST (METERKAST, INGANG E.D.), MAAR (NOG) NIET KADASTRAAL

Ruim dubbel woonhuis (totaal 176m2, boven- en benedenwoning) met aanbouw, kelder en tuin. Fysiek gesplitst (meterkast, ingang, verwarming). Ideaal als beleggingsobject, maar ook als bijv. buidelwoning o.d. Het geheel is ook als 1 object bewoonbaar.
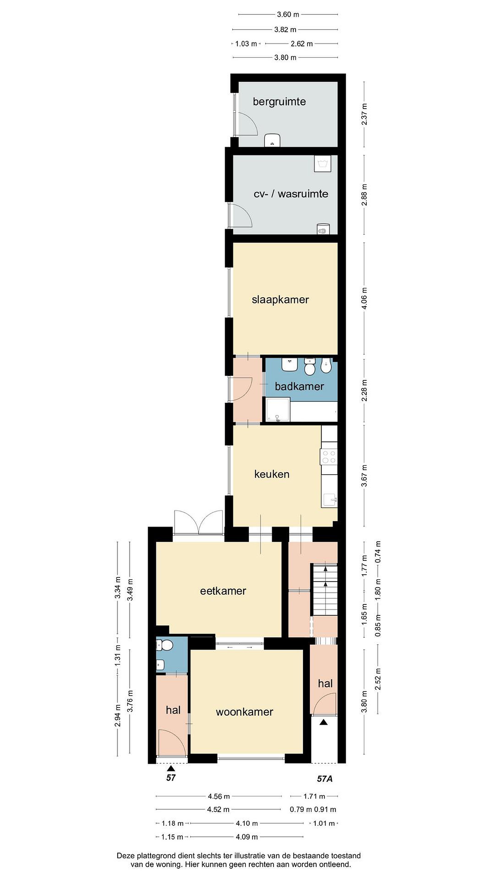
Indeling Hovenstraat 57: entree, hal, toiletruimte, woonkamer en suite, gesloten keuken met koel/vries combinatie, keramische kookplaat, oven, vaatwasser en afzuigkap, hal met meterkast en doorgang naar nr 57A, verdeelhal met aangelegen badkamer met ligbad, douchecabine, toilet, bidet en wastafel, slaapkamer;
Buiten : diepe (27 meter) achtertuin, met 2 aangebouwde bergingen. In één van deze bergingen is de c.v.-combiketel (HR, huur) ten behoeve van de verwarming van nr. 57 gesitueerd
Indeling Hovenstraat 57A: provisiekelder; 1e verdieping: overloop, woonkamer met gashaard, gesloten keuken met oven, afzuigkap en gaskookplaat, balkon
2e verdieping: middels vaste trap bereikbare zolderverdieping met overloop en
2 slaapkamers met dakkapellen, bergzolder en geiser (huur). Energielabel D (beide woningen hebben eigen label D). Perceel 337 m2, woonopp. 176 m2. Bouwjaar 1930.

Indeling:

souterrain (nr. 57A) : provisiekelder (3.87*4.72)

begane grond (nr 57): entree, hal, toiletruimte, woonkamer en suite (4.10*3.80 en 3.49*4.56), gesloten keuken (3.67*3.82*) met koel/vries
combinatie, keramische kookplaat, oven, vaatwasser en afzuigkap, hal met meterkast en doorgang naar nr 57A, verdeelhal met aangelegen badkamer (2.28*2.62*) met ligbad, douchecabine, toilet, bidet en wastafel, slaapkamer (4.06*3.82);

Buiten: diepe (27 meter) achtertuin, met 2 aangebouwde bergingen (3.82.2.88* en 3.60*2.37). In één van deze bergingen is de c.v.-combiketel (HR, huur) ten behoeve van de verwarming van nr. 57 gesitueerd

1e verdieping (nr 57A): overloop, woonkamer (6.59*3.96) met gashaard, gesloten keuken (3.52*3.22) met oven, afzuigkap en gaskookplaat, balkon (4m2)

2e verdieping: middels vaste trap bereikbare zolderverdieping met overloop en 2 slaapkamers (3.48*3.48 en 4.08*2.88) met dakkapellen, bergzolder (3.84*3.59) en geiser (huur)

bijzonderheden : Ideaal als beleggingsobject/verhuur of als buidelwoning of dergelijke. Woningen zijn fysiek gesplitst (o.a. meterkast, ingang, verwarming), maar
(nog) niet kadastraal. Woning is echter ook als één geheel bewoonbaar. Bovenwoning wordt alleen door gashaard verwarmd en heeft nog geen
c.v.-installatie.
De gebruikelijke bankgarantie/waarborgsom van 10% is van toepassing. De koper dient deze uiterlijk binnen 2 weken nadat het financieringsvoorbehoud is verlopen bij de desbetreffende notaris te deponeren. Indien c.v.-ketel en/of warmwater voorziening een huurtoestel betreft, dient koper deze over te nemen.

*alle maten zijn circa maten


Lees meer

Kenmerken

Overdracht

Prijs per m2
€ 1.301
Aangeboden sinds
30 januari 2026
Status
Verkocht onder voorbehoud
Aanvaarding
In overleg

Bouw

Soort woonhuis
Eengezinswoning, tussen woning
Soort bouw
Bestaande bouw
Bouwjaar
1930
Soort dak
Samengesteld dak
Staat van onderhouden binnen
Redelijk
Staat van onderhouden buiten
Redelijk

Oppervlakte en inhoud

Perceeloppervlakte
337 m2
Inhoud van de woning
750 m3
Oppervlakte externe bergruimte
9 m2
Oppervlakte gebouwgebonden buitenruimten
4 m2
Oppervlakte overige inpandige ruimten
30 m2

Indeling

Aantal kamers
5
Aantal slaapkamers
3
Aantal woonlagen
4
Voorzieningen
Tuin, balkon, schuur/berging, rolluiken

Buitenruimte

Balkon
Ja
Schuur/berging
Ja

Maandlasten berekenen

De maandlasten voor je woning bestaan uit meer dan alleen de hypotheeklasten. Hieronder vind je een overzicht van de bijkomende kosten en lasten. Zo weet je precies wat je huis per maand gaat kosten. En met de handige vergelijkers kun je ook nog eens snel de beste deals sluiten!

  • Kaart
  • Streetview