Noorderstraat 27 2922 AB Krimpen aan den IJssel

107m2
Wonen
4
Kamers
210m2
Perceel
1931
Bouwjaar
Vanwege grote belangstelling kunnen wij geen afspraken meer inplannen.



Charmante jaren '30 twee-onder-een-kapwoning met ruimte, karakter en volop mogelijkheden!

Ben jij op zoek naar een huis waar je zelf helemaal je eigen draai aan kunt geven? Kom dan zeker eens kijken bij Noorderstraat 27 in Krimpen aan den IJssel. Die echte jaren '30 charme gecombineerd met een flinke tuin, leuke buurt en volop mogelijkheden om er jouw droomhuis van te maken: dit stukje Krimpen heeft het allemaal!

Je vindt deze gezellige twee-onder-een-kapper midden in een fijne, rustige woonwijk met alles lekker dichtbij. Boodschappen doen, sportclubs of even snel de bushalte pakken: het ligt allemaal om de hoek. Parkeren doe je makkelijk voor de deur.

Het is absoluut een kluswoning waar nog wat werk aan de winkel is, maar daardoor kun je alles precies zo maken als jij zelf wilt. Even handen uit de mouwen en je creëert je eigen paleisje!

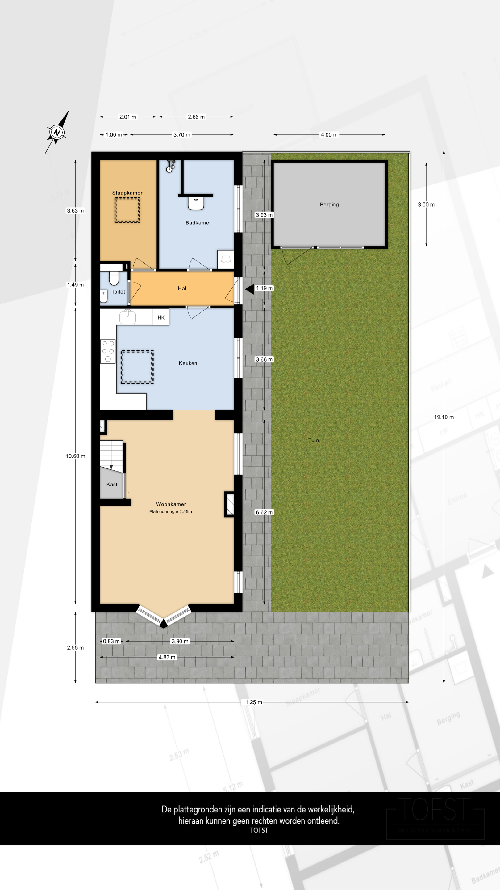
Met een perceeloppervlakte van 210 m2 is er volop ruimte – zowel binnen als buiten. De voortuin zorgt direct voor een prettige sfeer en extra privacy. Daarnaast ligt er aan de zijkant nog een royale zijtuin van maar liefst 98 m2. Hier kun je de mooiste zomerdagen beleven, lekker barbecueën met vrienden, of juist genieten van een rustige ochtendkoffie in het zonnetje. Zin in een moestuintje of speelplek voor de kinderen? Genoeg plek om al die dromen waar te maken!

Het huis heeft in de afgelopen jaren meerdere upgrades gekregen. Zo is in 2019 de keuken nog vernieuwd, ideaal voor wie van koken houdt. De aangebouwde uitbouw uit 2008 geeft je extra leefruimte. Wat je verder aanpakt, hangt helemaal af van jouw wensen en plannen. Misschien een moderne badkamer? Of een mooie houten vloer in de woonkamer? Laat je fantasie er maar op los!

Het huis heeft in de afgelopen jaren meerdere upgrades gekregen. Zo is in 2019 de keuken nog vernieuwd, ideaal voor wie van koken houdt. De aangebouwde uitbouw uit 2008 geeft je extra leefruimte. Wat je verder aanpakt, hangt helemaal af van jouw wensen en plannen. Misschien een moderne badkamer? Of een mooie houten vloer in de woonkamer? Laat je fantasie er maar op los!
Begane grond
Entree, hal, meterkast, toilet, slaap/studeerkamer, badkamer met inloopdouche, woonkamer met U-opstelling en diverse inbouwapparatuur, ruime woonkamer

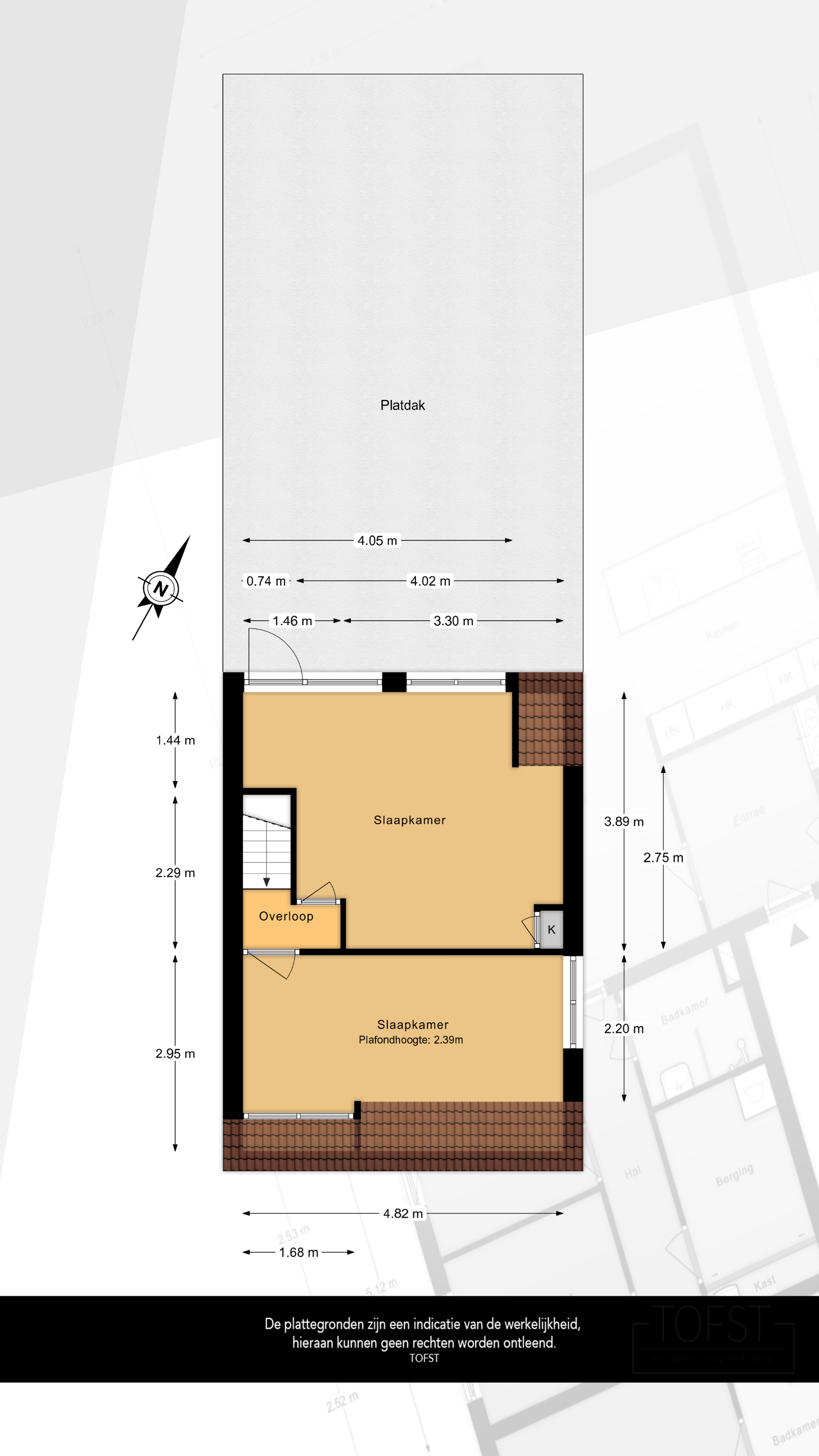
1e verdieping: overloop, slaapkamer achterzijde met toegang tot het dak(terras), slaapkamer voorzijde

Details
- Eigen grond
- Keuken 2019
- Uitbouw 2008
- Combiketel eigendom 2019
- Ouderdomsclausule en funderingsclausule zijn van toepassing
- Oplevering in overleg

Lees meer

Kenmerken

Overdracht

Prijs per m2
€ 2.570
Aangeboden sinds
19 september 2025
Status
Beschikbaar
Aanvaarding
In overleg

Bouw

Soort woonhuis
Eengezinswoning, twee-onder-een-kap woning
Soort bouw
Bestaande bouw
Bouwjaar
1931
Soort dak
Zadeldak
Staat van onderhouden binnen
Redelijk
Staat van onderhouden buiten
Redelijk

Oppervlakte en inhoud

Perceeloppervlakte
210 m2
Inhoud van de woning
387 m3
Oppervlakte externe bergruimte
12 m2
Oppervlakte overige inpandige ruimten
9 m2

Indeling

Aantal kamers
4
Aantal slaapkamers
3
Aantal woonlagen
2
Voorzieningen
Tuin

Buitenruimte

Balkon
Nee
Schuur/berging
Nee

Maandlasten berekenen

De maandlasten voor je woning bestaan uit meer dan alleen de hypotheeklasten. Hieronder vind je een overzicht van de bijkomende kosten en lasten. Zo weet je precies wat je huis per maand gaat kosten. En met de handige vergelijkers kun je ook nog eens snel de beste deals sluiten!

  • Kaart
  • Streetview