Verkocht

Piermanstraat 9 4413 AK Krabbendijke

120m2
Wonen
6
Kamers
255m2
Perceel
2004
Bouwjaar
Vrijstaand wonen op een fijne plek, rustig én met alle voorzieningen binnen handbereik, dat kan aan de Piermanstraat in Krabbendijke.
Dit huis op nummer 9 biedt precies wat je zoekt: ruimte en comfort. Of je nu wilt doorgroeien vanuit je huidige woning of al langer droomt van een vrijstaand huis, hier kun je die stap echt zetten.
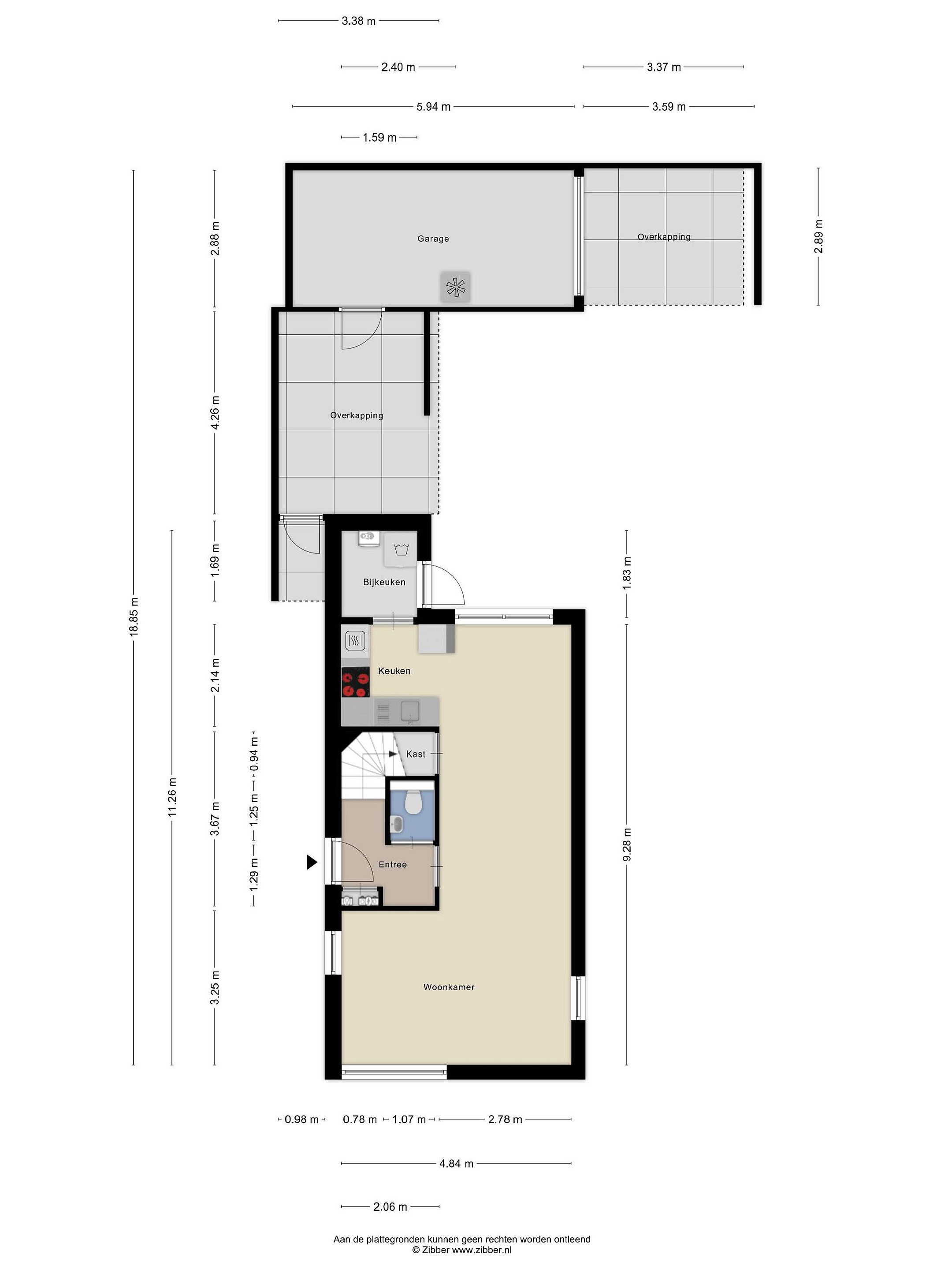
Met maar liefst 5 slaapkamers, een flinke bergzolder, de complete badkamer en een lichte woonkamer van ruim 9 meter diep heeft deze woning alles in huis om prettig te wonen. De nette keuken is voorzien van een inductiekookplaat, vaatwasser, koel-vrieskast, combimagnetron, genoeg kastruimte en doorloop naar de handige bijkeuken.
Dan nog een extra brede oprit met garage achterin de verzorgde tuin heeft deze woning alle ingrediënten die een gezin nodig heeft.
Het energielabel A is ook echt een pré terwijl er onlangs nog 9 zonnepanelen zijn geplaatst.
De plattegronden met afmetingen en foto’s kun je alvast bekijken. We nemen graag de tijd om nog meer over de woning te vertellen tijdens een bezichtiging. Wordt dit jouw plekje?!
Details
De gemeente Reimerswaal is met het mooie polderlandschap, de boomgaarden, dijken en de ligging tussen de Ooster- en de Westerschelde een fantastische gemeente om te wonen en te verblijven. Het dorp Krabbendijke heeft circa 4.460 inwoners en beschikt over een treinstation, school voor voortgezet onderwijs en diverse winkels. Hier is er ruimte om te genieten; stap even op de fiets of in de auto en proef de rust en de sfeer. Via de A58 zijn steden zoals Goes, Middelburg en Vlissingen maar ook Bergen op Zoom en Antwerpen snel te bereiken.

Lees meer

Verkoopgeschiedenis

Aangeboden sinds
25 februari 2026
Verkoopdatum
26 maart 2026
Looptijd
één maand

Kenmerken

Overdracht

Prijs per m2
€ 3.308
Aangeboden sinds
25 februari 2026
Status
Verkocht
Aanvaarding
In overleg

Bouw

Soort woonhuis
Eengezinswoning, vrijstaande woning
Soort bouw
Bestaande bouw
Bouwjaar
2004
Soort dak
Zadeldak
Staat van onderhouden binnen
Uitstekend
Staat van onderhouden buiten
Uitstekend

Oppervlakte en inhoud

Perceeloppervlakte
255 m2
Inhoud van de woning
446 m3
Oppervlakte externe bergruimte
17 m2
Oppervlakte gebouwgebonden buitenruimten
16 m2

Indeling

Aantal kamers
6
Aantal slaapkamers
5
Aantal woonlagen
3
Voorzieningen
Tuin, alarmsysteem, rolluiken, kabel-tv, glasvezel

Buitenruimte

Balkon
Nee
Schuur/berging
Nee

Maandlasten berekenen

De maandlasten voor je woning bestaan uit meer dan alleen de hypotheeklasten. Hieronder vind je een overzicht van de bijkomende kosten en lasten. Zo weet je precies wat je huis per maand gaat kosten. En met de handige vergelijkers kun je ook nog eens snel de beste deals sluiten!

  • Kaart
  • Streetview