Verkocht OV

Evertsenstraat 17 4371 BD Koudekerke

111m2
Wonen
5
Kamers
154m2
Perceel
1970
Bouwjaar
Deze woning is gelegen in een rustige straat aan de rand van Koudekerke, op 10 minuten fietsen van het strand! Diverse voorzieningen zoals een gezondheidscentrum (huisarts, fysio en apotheek), sportschool, twee basisscholen, supermarkt, bakker en een speeltuin bevinden zich op korte afstand van de woning.
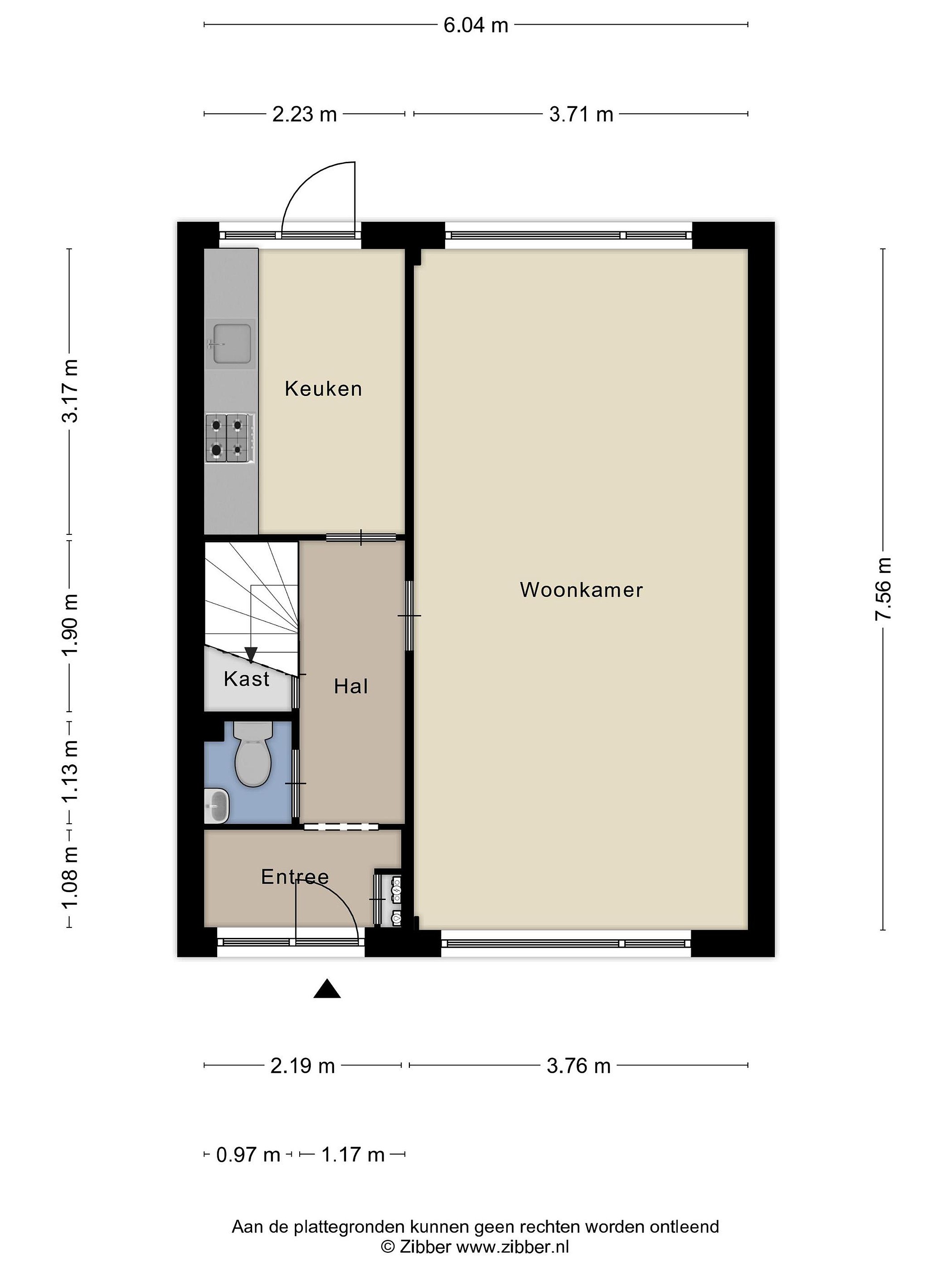
Begane grond
Entree, hal met toilet, ruime trapkast, trapopgang naar de eerste verdieping en toegang tot de lichte woonkamer. Dichte keuken met nette keukeninrichting.

Eerste verdieping
Overloop met toegang tot de badkamer en drie slaapkamers. Twee slaapkamers zijn voorzien van vaste kasten. De badkamer is afgewerkt met een douche, toilet, wastafel en aansluiting voor de wasmachine.

Tweede verdieping
Deze verdieping, bereikbaar door middel van een vaste trap, heeft een fijne, vierde slaapkamer met Velux dakraam en bergruimtes achter de knieschotten. De c.v.-combiketel hangt op de overloop.

Tuin
Tuin:
Betegelde tuin voorzien van borders met vaste planten. De fietsenberging en vrije achterom maken het geheel compleet.

Details
Algemeen:
Bouwjaar 1970
Perceeloppervlakte 154 m2
Woonoppervlakte 111 m2
Energielabel A


Lees meer

Kenmerken

Overdracht

Prijs per m2
€ 2.604
Aangeboden sinds
7 november 2025
Status
Verkocht onder voorbehoud
Aanvaarding
In overleg

Bouw

Soort woonhuis
Eengezinswoning, tussen woning
Soort bouw
Bestaande bouw
Bouwjaar
1970
Soort dak
Zadeldak
Staat van onderhouden binnen
Redelijk
Staat van onderhouden buiten
Goed

Oppervlakte en inhoud

Perceeloppervlakte
154 m2
Inhoud van de woning
394 m3
Oppervlakte externe bergruimte
8 m2

Indeling

Aantal kamers
5
Aantal slaapkamers
4
Aantal woonlagen
3
Voorzieningen
Tuin, schuur/berging

Buitenruimte

Balkon
Nee
Schuur/berging
Ja

Maandlasten berekenen

De maandlasten voor je woning bestaan uit meer dan alleen de hypotheeklasten. Hieronder vind je een overzicht van de bijkomende kosten en lasten. Zo weet je precies wat je huis per maand gaat kosten. En met de handige vergelijkers kun je ook nog eens snel de beste deals sluiten!

  • Kaart
  • Streetview