Verkocht

De Wieken 26 7891 KK Klazienaveen

110m2
Wonen
5
Kamers
185m2
Perceel
1975
Bouwjaar
Hoekwoning met 4 slaapkamers, serre en garagebox nabij het centrum van Klazienaveen. Ben je op zoek naar een ruime, goed onderhouden hoekwoning op een fijne locatie dichtbij het centrum van Klazienaveen? Dan is deze woning aan De Wieken absoluut een bezichtiging waard! Deze volledig geïsoleerde hoekwoning biedt maar liefst vier slaapkamers, een moderne keuken (2023), een heerlijke serre, een vrijstaande stenen berging én een garagebox met parkeergelegenheid ervoor. Een ideale gezinswoning met volop ruimte, comfort en praktische voorzieningen.
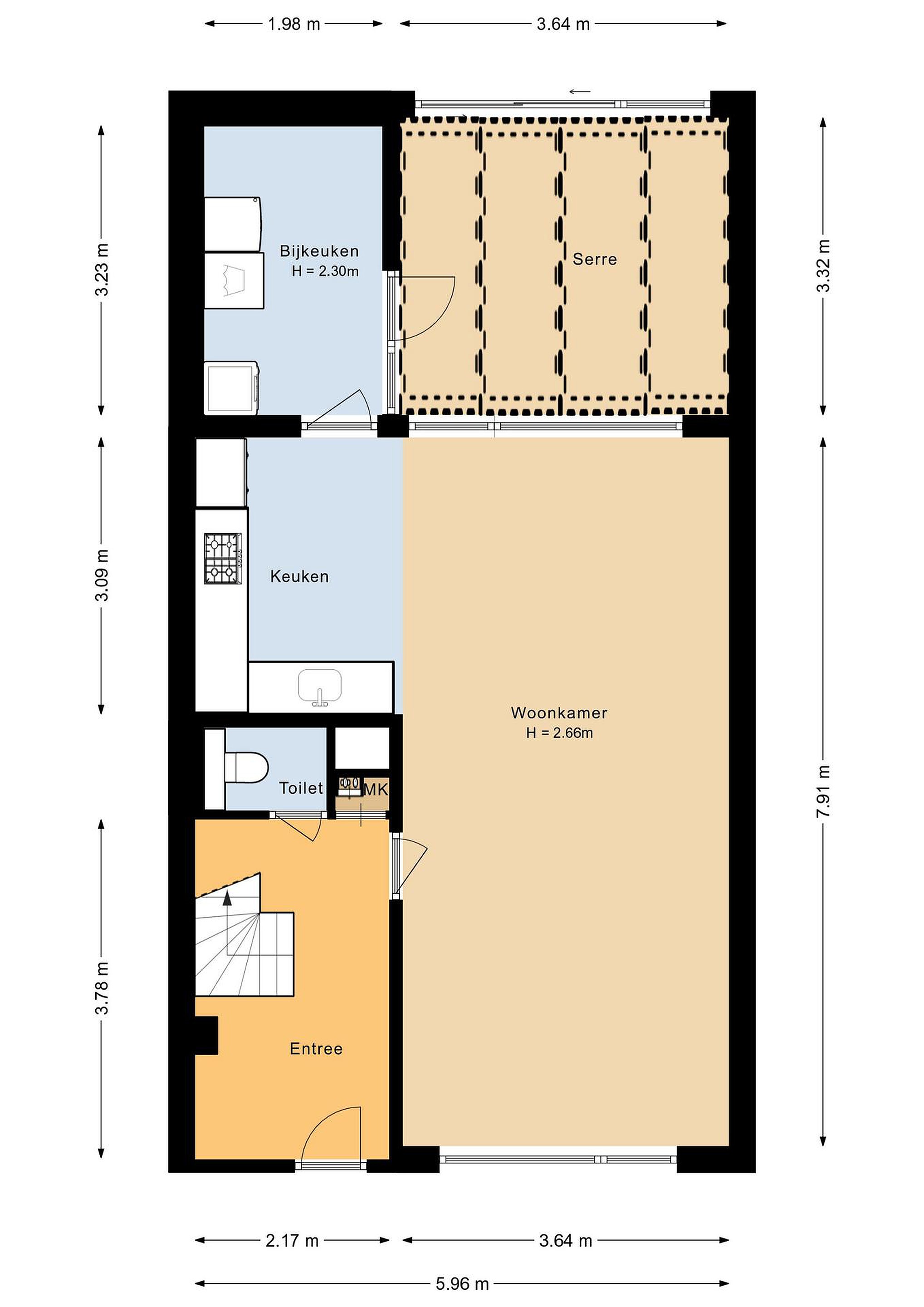
Begane grond
Via de entree kom je in de hal met toilet, meterkast en trapopgang. De lichte en ruime woonkamer profiteert van extra zijramen dankzij de hoekligging, wat zorgt voor een prettige lichtinval.
De open keuken is in 2023 vernieuwd en uitgevoerd in een moderne stijl met diverse inbouwapparatuur – een heerlijke plek om te koken en te tafelen. Aansluitend vind je de bijkeuken met achteringang en de serre, een fijne extra leefruimte waar je het hele jaar door kunt genieten van het buitengevoel. Vanuit hier bereik je de achtertuin.

Eerste verdieping
Op de eerste verdieping bevinden zich drie ruime slaapkamers en de badkamer.

Tweede verdieping
Via een vaste trap bereik je de tweede verdieping met de vierde slaapkamer – ideaal als extra slaapkamer, werkruimte of hobbykamer. Hier bevindt zich tevens de opstelling van de cv-ketel (2014).

Details
De woning beschikt over een verzorgde tuin met voldoende privacy.
Daarnaast is er een vrijstaande stenen berging voor fietsen en opslag én een garagebox, met parkeermogelijkheid direct voor de deur – wel zo praktisch!

Kenmerken op een rij
- Hoekwoning
- 4 slaapkamers
- Volledig geïsoleerd
- Moderne keuken (2023)
- Serre
- Vrijstaande stenen berging
- Garagebox met parkeergelegenheid
- Energielabel C
- Cv-ketel uit 2014
- Gelegen nabij het centrum van Klazienaveen
Een comfortabele en complete gezinswoning op een gunstige locatie met alle voorzieningen binnen handbereik. Maak snel een afspraak voor een bezichtiging en laat je verrassen door de ruimte en mogelijkheden van deze woning!

Lees meer

Verkoopgeschiedenis

Aangeboden sinds
17 februari 2026
Verkoopdatum
20 april 2026
Looptijd
2 maanden

Kenmerken

Overdracht

Prijs per m2
€ 2.386
Aangeboden sinds
17 februari 2026
Status
Verkocht
Aanvaarding
In overleg

Bouw

Soort woonhuis
Eengezinswoning, hoek woning
Soort bouw
Bestaande bouw
Bouwjaar
1975
Soort dak
Zadeldak
Staat van onderhouden binnen
Goed
Staat van onderhouden buiten
Goed

Oppervlakte en inhoud

Perceeloppervlakte
185 m2
Inhoud van de woning
426 m3
Oppervlakte externe bergruimte
38 m2
Oppervlakte overige inpandige ruimten
6 m2

Indeling

Aantal kamers
5
Aantal slaapkamers
4
Aantal woonlagen
3
Voorzieningen
Rolluiken, glasvezel

Buitenruimte

Balkon
Nee
Schuur/berging
Nee

Maandlasten berekenen

De maandlasten voor je woning bestaan uit meer dan alleen de hypotheeklasten. Hieronder vind je een overzicht van de bijkomende kosten en lasten. Zo weet je precies wat je huis per maand gaat kosten. En met de handige vergelijkers kun je ook nog eens snel de beste deals sluiten!

  • Kaart
  • Streetview