Parallelweg 26 3286 LR Klaaswaal

127m2
Wonen
4
Kamers
315m2
Perceel
1938
Bouwjaar
Vrijstaand wonen met ruimte, privacy en een grote inpandige schuur
Zoek je een vrijstaande woning waar je vooral rust, privacy en ruimte voor je hobby vindt? Dan is Parallelweg 26 in Klaaswaal zeker het bekijken waard. Deze karaktervolle woning uit 1938 staat op een perceel van 315 m2 en ligt verscholen achter de hoofdweg, waardoor je hier verrassend veel privacy ervaart. De woning biedt circa 127 m2 woonoppervlakte en daarnaast maar liefst 60 m2 overige inpandige ruimte, waaronder een grote schuur met zolder. Binnen vind je een woonkamer met open haard, een ruime keuken met bijkeuken, een badkamer op de begane grond en op de verdieping drie ruime slaapkamers. Op het erf is bovendien parkeergelegenheid op eigen terrein aanwezig. Een ideale plek voor iemand die graag vrijstaand woont, ruimte zoekt voor hobby of opslag en waarde hecht aan een rustige ligging.

Rustig wonen in het dorpse Klaaswaal
Parallelweg 26 ligt in Klaaswaal, een dorp in de Hoeksche Waard dat bekendstaat om zijn rustige en dorpse karakter. In het dorp vind je dagelijkse voorzieningen zoals winkels, scholen en sportverenigingen. Voor een uitgebreider aanbod aan winkels en horeca ligt Oud-Beijerland op korte afstand. Via de N217 en de A29 zijn steden als Rotterdam, Dordrecht en Breda bovendien goed bereikbaar. Daarmee combineer je hier het rustige wonen van een dorp met een goede bereikbaarheid richting de regio.

Bijzonderheden
* Vrijstaande woning
* Perceeloppervlakte ca. 315 m2
* Woonoppervlakte ca. 127 m2
* Overige inpandige ruimte ca. 60 m2
* Bouwjaar 1938
* 3 ruime slaapkamers op de eerste verdieping
* Badkamer op de begane grond met ligbad, douchecabine en dubbele wastafel
* Grote inpandige schuur ca. 37,8 m2 met zolder ca. 22 m2
* Woonkamer met open haard
* Keuken met luxe fornuis (2 ovens en grillplaat), natuurstenen werkblad, vaatwasser, afzuigkap en spoelbak
* Bijkeuken bereikbaar vanuit de keuken
* 14 zonnepanelen (2020)
* CV-ketel Atag (2016)
* Houten en kunststof kozijnen
* Parkeren op eigen terrein
* Tuin naast de woning met veel privacy
* Energielabel E
* Recht van overpad voor naastgelegen percelen

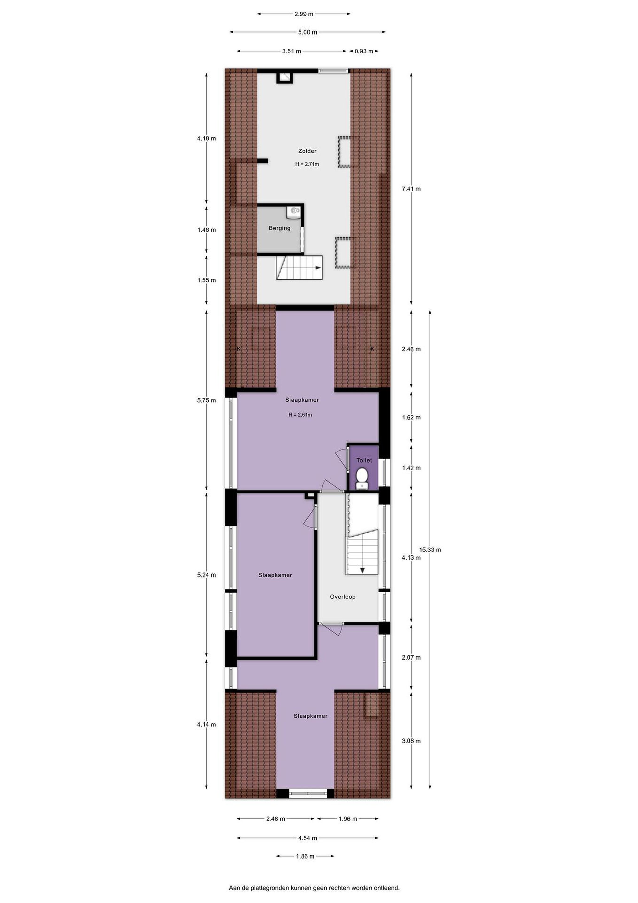
Begane grond
Via de entree kom je in de hal met meterkast, toilet en trapopgang naar de eerste verdieping. Vanuit de hal heb je toegang tot de woonkamer en de keuken. De woonkamer ligt aan de voorzijde van de woning en beschikt over een open haard, wat zorgt voor een sfeervolle plek in huis.

De keuken is uitgevoerd in een praktische hoekopstelling en beschikt over een luxe fornuis met twee ovens en een grillplaat. Verder is de keuken voorzien van een natuurstenen werkblad, spoelbak, vaatwasser en afzuigkap. Vanuit de keuken heb je toegang tot de bijkeuken, een praktische ruimte voor bijvoorbeeld witgoed, extra opslag of provisie.

Via een tweede hal bereik je de badkamer en de inpandige schuur. De badkamer bevindt zich op de begane grond en beschikt over een douchecabine, ligbad en een wastafelmeubel met dubbele wastafel.

De inpandige schuur vormt één van de grote pluspunten van deze woning. Met circa 37,8 m2 op de begane grond en een zolder van circa 22 m2 biedt deze ruimte volop mogelijkheden voor opslag, hobbyruimte, werkplaats of bijvoorbeeld een klusruimte.

Eerste verdieping
Op de eerste verdieping bevinden zich drie ruime slaapkamers. Dankzij de goede afmetingen zijn alle kamers prettig in te richten als slaapkamer, werkkamer of hobbyruimte. Op deze verdieping is daarnaast een extra toilet aanwezig.

Tuin
De tuin ligt naast de woning en wordt vooral gekenmerkt door de privacy die deze plek biedt. Doordat de woning wat van de weg af ligt en beschut is gesitueerd, ervaar je hier een rustige en besloten buitenruimte.

Vrijstaand wonen met privacy, praktische ruimte en een grote schuur voor hobby of werk – ontdek zelf de mogelijkheden en plan een bezichtiging.
Lees meer

Kenmerken

Overdracht

Prijs per m2
€ 3.740
Aangeboden sinds
17 maart 2026
Status
Beschikbaar
Aanvaarding
Direct

Bouw

Soort woonhuis
Eengezinswoning, vrijstaande woning
Soort bouw
Bestaande bouw
Bouwjaar
1938
Soort dak
Zadeldak
Staat van onderhouden binnen
Redelijk
Staat van onderhouden buiten
Redelijk

Oppervlakte en inhoud

Perceeloppervlakte
315 m2
Inhoud van de woning
685 m3
Oppervlakte overige inpandige ruimten
60 m2

Indeling

Aantal kamers
4
Aantal slaapkamers
3
Aantal woonlagen
2
Voorzieningen
Tuin, schuur/berging, ventilatie, open haard, kabel-tv, dakraam

Buitenruimte

Balkon
Nee
Schuur/berging
Ja

Maandlasten berekenen

De maandlasten voor je woning bestaan uit meer dan alleen de hypotheeklasten. Hieronder vind je een overzicht van de bijkomende kosten en lasten. Zo weet je precies wat je huis per maand gaat kosten. En met de handige vergelijkers kun je ook nog eens snel de beste deals sluiten!

  • Kaart
  • Streetview