Verkocht OV

Kamperfoelieplein 25 2225 RP Katwijk

112m2
Wonen
4
Kamers
158m2
Perceel
1934
Bouwjaar
Te Koop! Kamperfoelieplein 25, 2225 RP te Katwijk aan Zee

Vraagprijs: € 549.000,- k.k.
Woonoppervlakte: ca. 112 m2 | Perceel: ca. 158 m2 | Inhoud: ca. 385 m3
Energielabel C | Bouwjaar: 1934 | Oplevering: in overleg

Kijk ook op de persoonlijke website van deze woning: kamperfoelieplein25.nl

Wonen in 'de Zuid' – karakter, comfort én locatie

Bent u op zoek naar een sfeervolle en goed onderhouden jaren ’30 woning in een van de meest geliefde woonwijken van Katwijk aan Zee? Dan is deze charmante gezinswoning aan het Kamperfoelieplein 25 absoluut het bezichtigen waard.

Welkom in de Zuid!
Deze karakteristieke tussenwoning ligt aan een breed opgezet en groen plein, midden in de populaire wijk ‘de Zuid’. Een buurt die bekendstaat om z’n prettige woonsfeer, authentieke bouwstijl en – niet onbelangrijk – de geweldige ligging op loopafstand van zowel het centrum als het strand en de duinen. Hier geniet u elke dag van de rust van de wijk én de levendigheid van Katwijk aan Zee.

Sfeervol wonen aan het Kamperfoelieplein

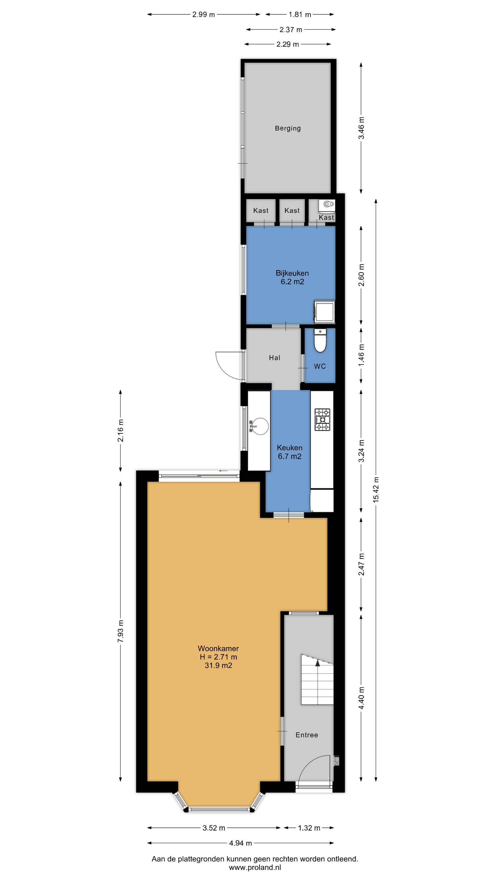
Kamperfoelieplein 25 is een goed onderhouden jaren ’30 tussenwoning, met een prachtige erker, hoge plafonds, een diepe achtertuin op het zuidoosten en volop authentieke details. De woning heeft een woonoppervlakte van ca. 112 m2, is voorzien van zonnepanelen, beschikt over drie slaapkamers (vier mogelijk), en combineert karakter met hedendaags wooncomfort.

Indeling van de woning

Via de nette voortuin (noordwest) betreedt u de woning. In de ruime hal treft u de uitgebreide meterkast, trapopgang en toegang tot de woonkamer.

De woonkamer heeft veel lichtinval, hoge plafonds, een karakteristieke erker aan de voorzijde, een fijne zithoek en openslaande schuifpui aan de achterzijde. In de uitbouw is de halfopen keuken geplaatst, netjes afgewerkt en voorzien van diverse inbouwapparatuur. In de tussenhal vindt u het toilet en toegang tot de functionele bijkeuken. Hier is de aansluiting voor wasmachine en droger en de Nefit HR CV-ketel (2019), keurig weggewerkt in een kast. Vanuit hier is ook de achtertuin bereikbaar.

Achtertuin en buitenruimte

De zonnige achtertuin op het zuidoosten is netjes betegeld, heeft veel privacy en een aangebouwde, stenen berging van ca. 8 m2. Er is voldoende plek voor een tuin- of loungeset. Er is ook een achterom aanwezig – ideaal voor fietsen, tuinafval of gewoon gemak als je van het strand komt.

Verdiepingen

De eerste verdieping biedt een overloop, twee slaapkamers (voor en achter) en een lichte, betegelde badkamer. De badkamer is uitgerust met een inloop(regen)douche, een ligbad, een wastafelmeubel, handdoekradiator en een tweede toilet. Vanuit de badkamer is er toegang tot het balkon/plat dak op het zuidoosten – een fijne plek voor de ochtendzon.

Op de zolderverdieping vindt u een royale derde slaapkamer met dakkapellen aan voor- en achterzijde, waardoor er veel ruimte en licht is ontstaan. Indien gewenst, is deze ruimte eenvoudig op te delen in twee slaapkamers. Achter de knieschotten en de 2 aanwezige vaste kasten is volop praktische bergruimte aanwezig.

Bijzonderheden van deze woning: Toplocatie in de gewilde wijk ‘de Zuid’. Authentieke jaren ’30 stijl, goed onderhouden met behoud van karakter. Energielabel C – inclusief 10 zonnepanelen op het zuidoosten. Woonoppervlakte ca. 112 m2 / Perceel ca. 158 m2. 3 slaapkamers, mogelijkheid tot 4. Balkon van ca. 6 m2, bergschuur van ca. 8 m2. Nefit HR CV-installatie uit 2019. Volop privacy in zonnige achtertuin met achterom. NEN 2580 Meetcertificaat aanwezig. Parkeren via vergunning (voor informatie zie website gemeente Katwijk)

Klaar voor een nieuw hoofdstuk in aan zee?

Een prachtige combinatie van karakter, comfort en locatie – dat is wonen aan het Kamperfoelieplein. Interesse? Neem contact op voor een bezichtiging. Makelaar Ronald Kooitje vertelt u graag meer over deze fijne woning.

Bekijk de woningpresentatie en alle extra informatie op: kamperfoelieplein25.nl

Deze verkoopinformatie is met zorg samengesteld. Er kunnen echter geen rechten aan worden ontleend. Ten aanzien van eventuele onjuistheden aanvaarden wij geen aansprakelijkheid.
Lees meer

Kenmerken

Overdracht

Prijs per m2
€ 4.902
Aangeboden sinds
9 september 2025
Status
Verkocht onder voorbehoud
Aanvaarding
In overleg

Bouw

Soort woonhuis
Eengezinswoning, tussen woning
Soort bouw
Bestaande bouw
Bouwjaar
1934
Soort dak
Zadeldak
Staat van onderhouden binnen
Goed
Staat van onderhouden buiten
Goed

Oppervlakte en inhoud

Perceeloppervlakte
158 m2
Inhoud van de woning
384 m3
Oppervlakte externe bergruimte
7 m2
Oppervlakte gebouwgebonden buitenruimten
6 m2

Indeling

Aantal kamers
4
Aantal slaapkamers
3
Aantal woonlagen
3
Voorzieningen
Tuin, balkon, schuur/berging

Buitenruimte

Balkon
Ja
Schuur/berging
Ja

Maandlasten berekenen

De maandlasten voor je woning bestaan uit meer dan alleen de hypotheeklasten. Hieronder vind je een overzicht van de bijkomende kosten en lasten. Zo weet je precies wat je huis per maand gaat kosten. En met de handige vergelijkers kun je ook nog eens snel de beste deals sluiten!

  • Kaart
  • Streetview