Verkocht OV

Silene 87 8265 HP Kampen

155m2
Wonen
6
Kamers
263m2
Perceel
1982
Bouwjaar
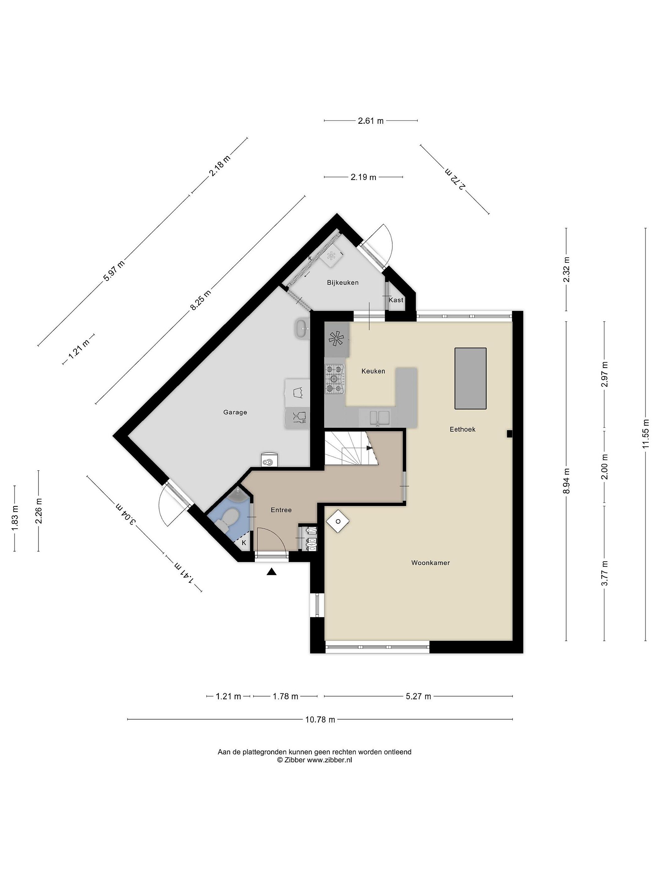
Een verrassend ruime geschakelde woning met 5 slaapkamers en een garage. De woning beschikt verder over een woonkamer, keuken, bijkeuken en een badkamer. De tuin aan de voorzijde is voorzien van veel groen, terras en een oprit. De woning is gelegen op een perceel van 263m2 en heeft een woonoppervlakte van ca.155m2.
Begane grond
Entree/hal met meterkast, trapopgang en een toilet. De woonkamer beschikt over veel lichtinval, een houtkachel (ter overname) en de keukenopstelling met diverse inbouwapparatuur, o.a. gaskookplaat en een afzuigkap. Via de bijkeuken bereikt u de achtertuin en de garage.

Eerste verdieping
Overloop met trapopgang en 3 slaapkamers. De badkamer is voorzien van een toilet, wastafel in meubel en een ligbad met douche. Via de grootste slaapkamer bereikt u het grote dakterras.

Tweede verdieping
Overloop met bergruimte en 2 slaapkamers.

Tuin
Achter de woning is een beschut terras. De brede voortuin is gelegen op het zuidoosten en voorzien van veel groen, terras en een oprit.

Details
Bijzonderheden / resume:
- de woning is verrassend ruim;
- de woning beschikt over een woonkamer met de keuken;
- de woning beschikt over 5 slaapkamers en een dakterras;
- de woning beschikt bijna geheel over kunststof kozijnen met isolerende beglazing;
- de woning beschikt over een garage;
- de woning beschikt over een grote voortuin met oprit;
- de woning is op loopafstand gelegen van diverse voorzieningen, o.a. basisscholen.


Kampen

Kampen, gelegen aan de IJssel, is een oude Hanzestad met veel historische bouwwerken en diverse bruggen. De stad beschikt over allerlei voorzieningen, o.a. winkels en scholen.

Kampen is goed bereikbaar via het spoor, de Hanzelijn en het Kamperlijntje, via de weg o.a. N50 (Zwolle – Emmeloord) en via het water.

Lees meer

Kenmerken

Overdracht

Prijs per m2
€ 2.577
Aangeboden sinds
16 oktober 2025
Status
Verkocht onder voorbehoud
Aanvaarding
In overleg

Bouw

Soort woonhuis
Eengezinswoning, geschakelde woning
Soort bouw
Bestaande bouw
Bouwjaar
1982
Soort dak
Zadeldak
Staat van onderhouden binnen
Goed
Staat van onderhouden buiten
Goed

Oppervlakte en inhoud

Perceeloppervlakte
263 m2
Inhoud van de woning
550 m3
Oppervlakte gebouwgebonden buitenruimten
28 m2

Indeling

Aantal kamers
6
Aantal slaapkamers
5
Aantal woonlagen
3
Voorzieningen
Tuin, glasvezel

Buitenruimte

Balkon
Nee
Schuur/berging
Nee

Maandlasten berekenen

De maandlasten voor je woning bestaan uit meer dan alleen de hypotheeklasten. Hieronder vind je een overzicht van de bijkomende kosten en lasten. Zo weet je precies wat je huis per maand gaat kosten. En met de handige vergelijkers kun je ook nog eens snel de beste deals sluiten!

  • Kaart
  • Streetview