Notenhout 4 1787 RJ Julianadorp

148m2
Wonen
6
Kamers
251m2
Perceel
2018
Bouwjaar
NIEUW TE KOOP!!!
Notenhout 4 te Julianadorp

Op zoek naar ruime een op-en-top gezinswoning? Zoek dan niet verder! Wij mogen jouw deze verrassend ruime (148m2) en zeer goed gelegen (zuiden) woning aanbieden met een zij- en achteruitbouw en maar liefst 5 slaapkamers. Een fraaie hoekwoning met het gevoel en meer ruimte dan de gemiddelde 2-1 kapwoning. Hoge plafonds en volledig recht op op de eerste verdieping. Aan de voor- en achterzijde uitgebreid met dakkapellen op zolder. Deze duurzame en daglichtvolle woning is in 2018 gebouwd op een kavel van 251m2 eigen grond en door de eerste eigenaar zeer goed onderhouden en bewoond. Recent zijn de gevels nog voorzien van schilderwerk (echte Keim) wat de isolatiewaarde (origineel A-label) nog extra verbeterd. De woning beschikt over vloerverwarming op de begane grond en in de badkamer, in 2021 zijn er 10 zonnepanelen geplaatst, uitgerust met optimizers en ook de dakkapellen, voor én achter, op de tweede verdieping.

Hier stap je zo in zonder grote klussen zodat je direct kan genieten van al het moois dat de woning en ook de parkachtige omgeving biedt. Een omgeving die nog groener wordt, De komende periode worden er vele nieuwe bomen her-plant. Naast duurzaam en klaar om te bewonen tref je ook een woning die onderhoudsvriendelijk is. Alle kozijnen, ramen en deuren rondom de woning zijn uitgevoerd in kunststof, inclusief de 2 dakkapellen op de tweede verdieping. Parkeren gaat ook nooit een probleem zijn. Op eigen grond parkeer je met gemak 2 auto's voor de deur.

--------
Notenhout 4 te Julianadorp wordt aangeboden met een richtprijs van € 525.000. kosten koper. Gezien de huidige woningmarkt is het niet uit te sluiten dat de uiteindelijke verkoopprijs hoger uitvalt. Bezichtigingen vraag je aan via ons kantoor of de bezichtigingsknop op Funda. Bezichtigingen worden op volgorde van binnenkomst ingepland.
--------

Notenhout 4 te Julianadorp is gelegen in Woonpark 't Laar. Een nieuwbouwwijk in een bestaande groene omgeving aan de buitenranden van Julianadorp met louter bestemmingsverkeer. De woning zelf is gelegen aan een doodlopende straat met meer dan voldoende openbare parkeerruimte naast de parkeerruimte op eigen grond. Woonpark 't Laar is een park-achtige omgeving grenzend aan de Julianadorper bollenvelden en enkele fietsminuten van winkelcentra, kinderopvang en (basis)scholen, slechts een kwartier van duinen en strand. De uitvalsweg N9 richting Alkmaar vind je op minder dan 5 minuten rijden. Kortom; Centraal, groen en ontspannen wonen.

--------
INDELING
--------
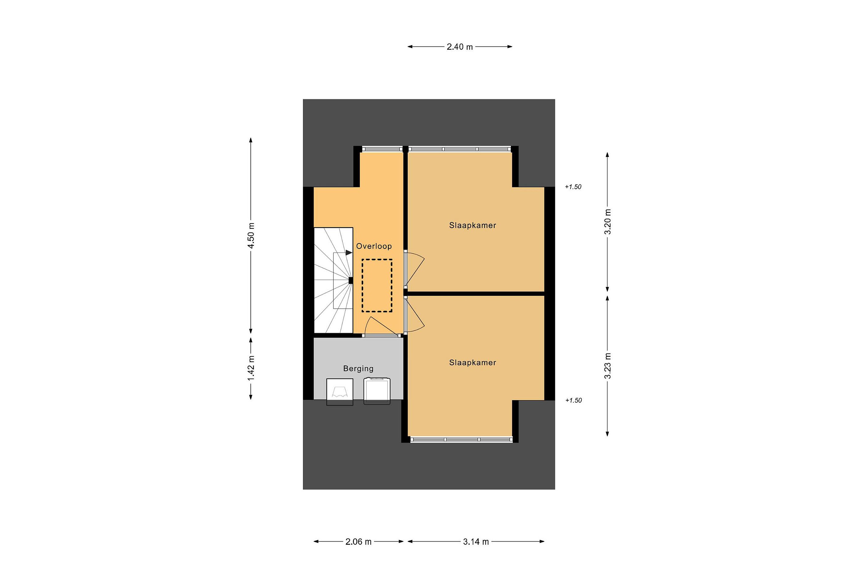
Parkeren op eigen oprit voor tenminste 2 auto's. Achterom naar de achtertuin en entree woning. Entree in de hal met meterkast, het toilet en de trapopgang naar de verdieping. Vanuit de hal kom je in de verrassend ruime, aan de zij- en achterzijde uitgebouwde living. Aan de voorzijde van de begane grond is de keuken gesitueerd. Ruim van opzet in 2x een rechte opstelling voorzien van al het gewenste inbouwapparatuur, veel werkruimte en kastruimte door een apparaten- kastenwand. De woonkamer is tuingericht en biedt een heerlijk lichtinval door raampartijen tot aan de grond. De zij-aanbouw biedt vele mogelijkheden en is momenteel in gebruik als separate eetkamer wat een gevoel van grandeur geeft. Andere opties als thuiswerken, een TV- of speelkamer behoren natuurlijk ook tot de mogelijkheden. Op de eerste verdieping bereik je vanaf de overloop 3 prima slaapkamers, allen voorzien van (kunststof) kozijnen met draai/kiepramen. De geheel betegelde badkamer is van alle gemakken voorzien en meer dan volledig ingericht. Zo biedt het een glazen douchecabine met Grohe Smart inbouw regendoucheset, groot (190x90) ligbad met whirlpool, een wastafelmeubel en tweede toilet. Vanaf de overloop leidt een vaste trap je naar de tweede verdieping. Door het plaatsten van 2 (kunststof) dakkapellen zijn hier 2 ruime slaapkamers gerealiseerd die het totaal aan slaapkamers op 5 brengen. Het dakkapel aan de achterzijde is extra breed en loopt door op de overloop. Extra (verrassend veel) bergruimte vind je op de vliering boven de tweede verdieping en in de berg- / witgoedkast die je vanaf de overloop kunt bereiken. Achter de woning is er een zeer goed gelegen en ruime achtertuin, nagenoeg pal zuid. De tuin is keurig aangelegd met deugdelijk schuttingwerk, terrassen van hout en sierbestrating, een gazon, borders met beplanting en een geïsoleerde houten tuinberging met veranda.

Volgens mij hebben wij niets teveel gezegd en biedt deze woning alle ruimte, binnen en buiten, voor een groot gezin. Is je interesse gewekt? Neem dan zeker contact op met ons kantoor voor een bezichtiging!

LAAN MAKELAARS
voor de Kop van Noord-Holland

koop- en verkoopbegeleiding
van bestaande woningen
Lees meer

Kenmerken

Overdracht

Prijs per m2
€ 3.547
Aangeboden sinds
17 oktober 2025
Status
Beschikbaar
Aanvaarding
In overleg

Bouw

Soort woonhuis
Eengezinswoning, hoek woning
Soort bouw
Bestaande bouw
Bouwjaar
2018
Soort dak
Zadeldak
Staat van onderhouden binnen
Goed
Staat van onderhouden buiten
Goed

Oppervlakte en inhoud

Perceeloppervlakte
251 m2
Inhoud van de woning
524 m3
Oppervlakte externe bergruimte
8 m2

Indeling

Aantal kamers
6
Aantal slaapkamers
5
Aantal woonlagen
3
Voorzieningen
Tuin, schuur/berging

Buitenruimte

Balkon
Nee
Schuur/berging
Ja

Maandlasten berekenen

De maandlasten voor je woning bestaan uit meer dan alleen de hypotheeklasten. Hieronder vind je een overzicht van de bijkomende kosten en lasten. Zo weet je precies wat je huis per maand gaat kosten. En met de handige vergelijkers kun je ook nog eens snel de beste deals sluiten!

  • Kaart
  • Streetview