Verkocht

Kruiszwin 2268 1788 LT Julianadorp

130m2
Wonen
5
Kamers
191m2
Perceel
1980
Bouwjaar
NIEUW TE KOOP!!!
Kruiszwin 2268 te Julianadorp

Wat een heerlijke gezinswoningen zijn dit. Van zichzelf al groot en dan is deze hoekwoning op de begane grond ook nog eens flink uitgebouwd. Aan woon- maar ook bergruimte geen gebrek. Zowel in de woning als ook buiten de woning vind je hier meer dan genoeg aan. Ruim 130m2 aan woonoppervlak, 4 ruime slaapkamers, meerdere bergingen en maar liefst 191m2 aan eigen grond.

Ruim, ruimer, ruimst met een goed afwerkingsniveau, waardoor je hier zonder grote aanpassingen in kunt trekken, en zeer duurzaam getuige het fraaie A label wat de woning heeft meegekregen. Volledig geïsoleerd, voorzien van vloerverwarming op de begane grond (CV ketel 2024) en heeft 12 zonnepanelen op het dak. Geen fan van buitenschilderwerk? Dat komt goed uit! De woning is zeer onderhoudsvriendelijk doordat de woning is gestoken in een kunststof gevelbekleding en grotendeels is voorzien van kunststof kozijnen.

Buitenom is het dus allemaal voor elkaar. Binnen is dat niet anders. De woning biedt een luxe, jonge inbouwkeuken op de begane grond en een plaatje van een badkamer op de eerste verdieping. Vrijwel de gehele woning is voorzien van fraai stukwerk en keurige vloeren. Is er dan helemaal niets wat je zelf nog hoeft te doen? Nou, je telefoon pakken om een afspraak te maken om deze gave woning te bezichtigen is misschien wel een goed idee!

--------
Kruiszwin 2268 te Julianadorp wordt aangeboden met een richtprijs van € 350.000 k.k. Gezien de huidige woningmarkt is het niet uit te sluiten dat de uiteindelijke verkoopprijs hoger uitvalt. Een bezichtiging plan je het snelst in via ons kantoor of de bezichtigingsknop op Funda. Afspraken worden op volgorde van binnenkomst ingepland.
--------

De wijk Kruiszwin is een (kind)vriendelijke woonwijk centraal gelegen in Julianadorp. Op wandel- en fietsafstand vind je alle gewenste faciliteiten als kinderopvang, (basis)scholen, winkelcentra en het gezellige dorpsplein 't Loopuytpark met tal van restaurants. Kustdorp Julianadorp staat bekend om haar brede en schone stranden. Vanuit je achtertuin ben je op de fiets in een goed kwartier bij de duinopgang richting het strand!

--------
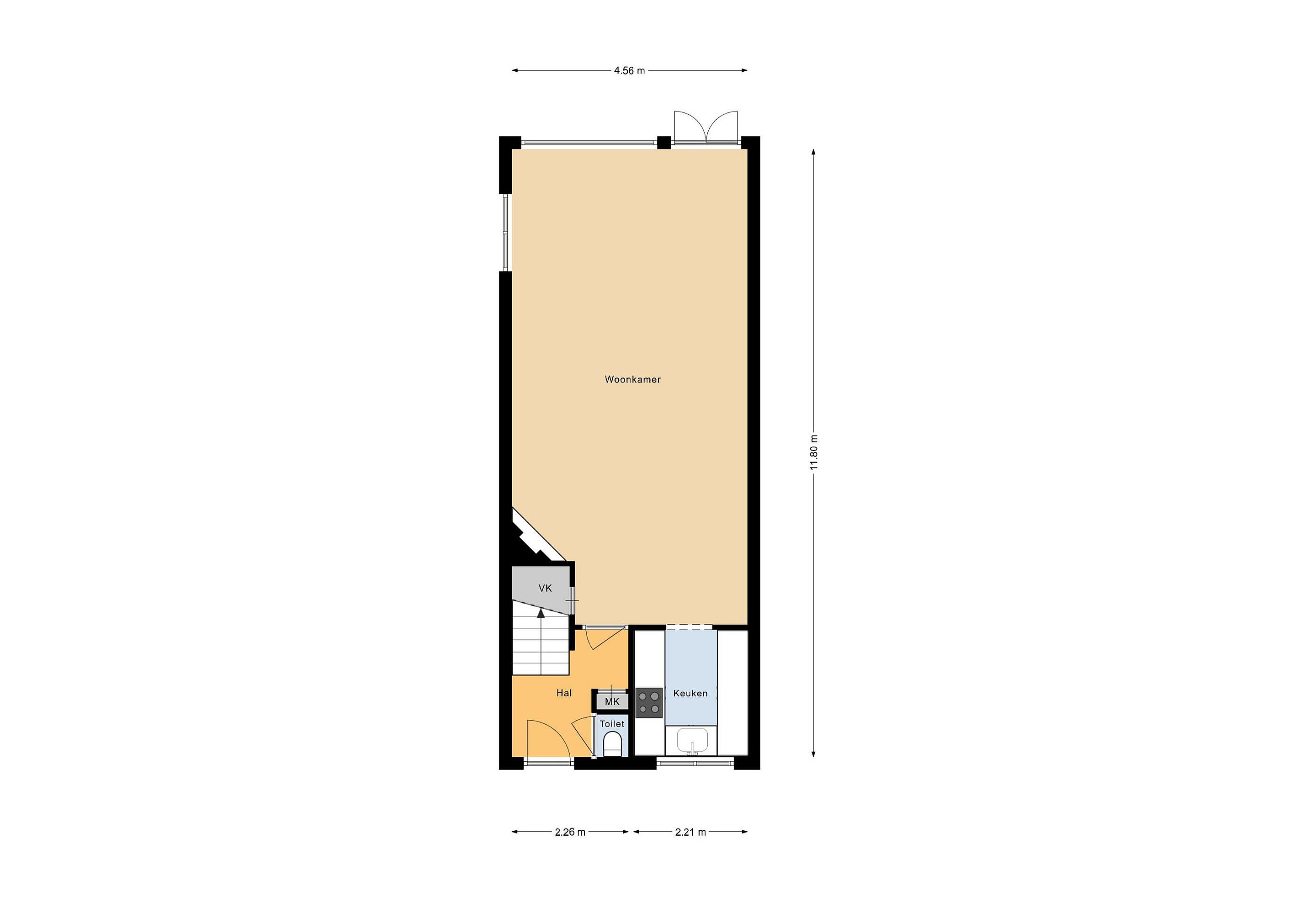
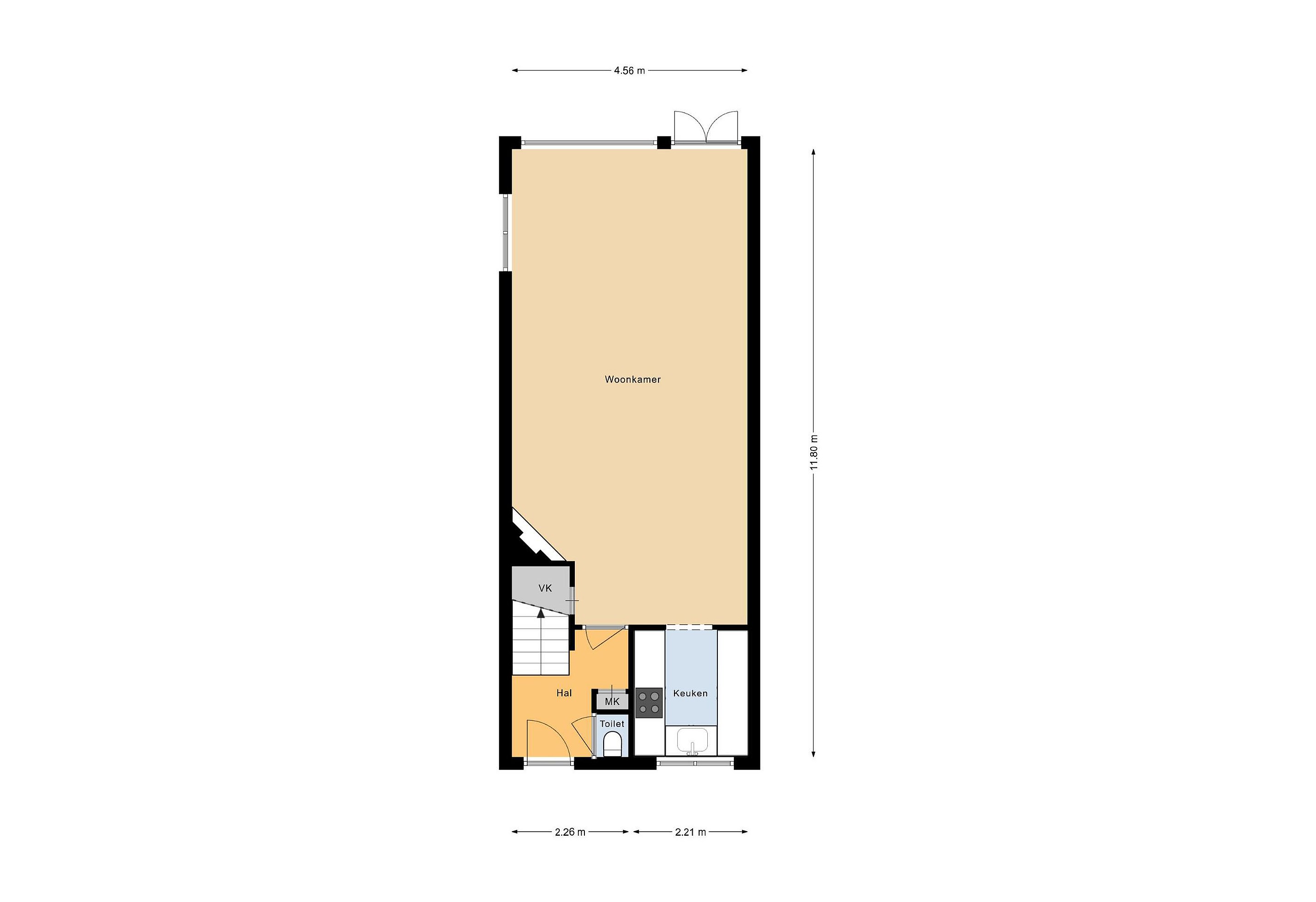
INDELING
--------
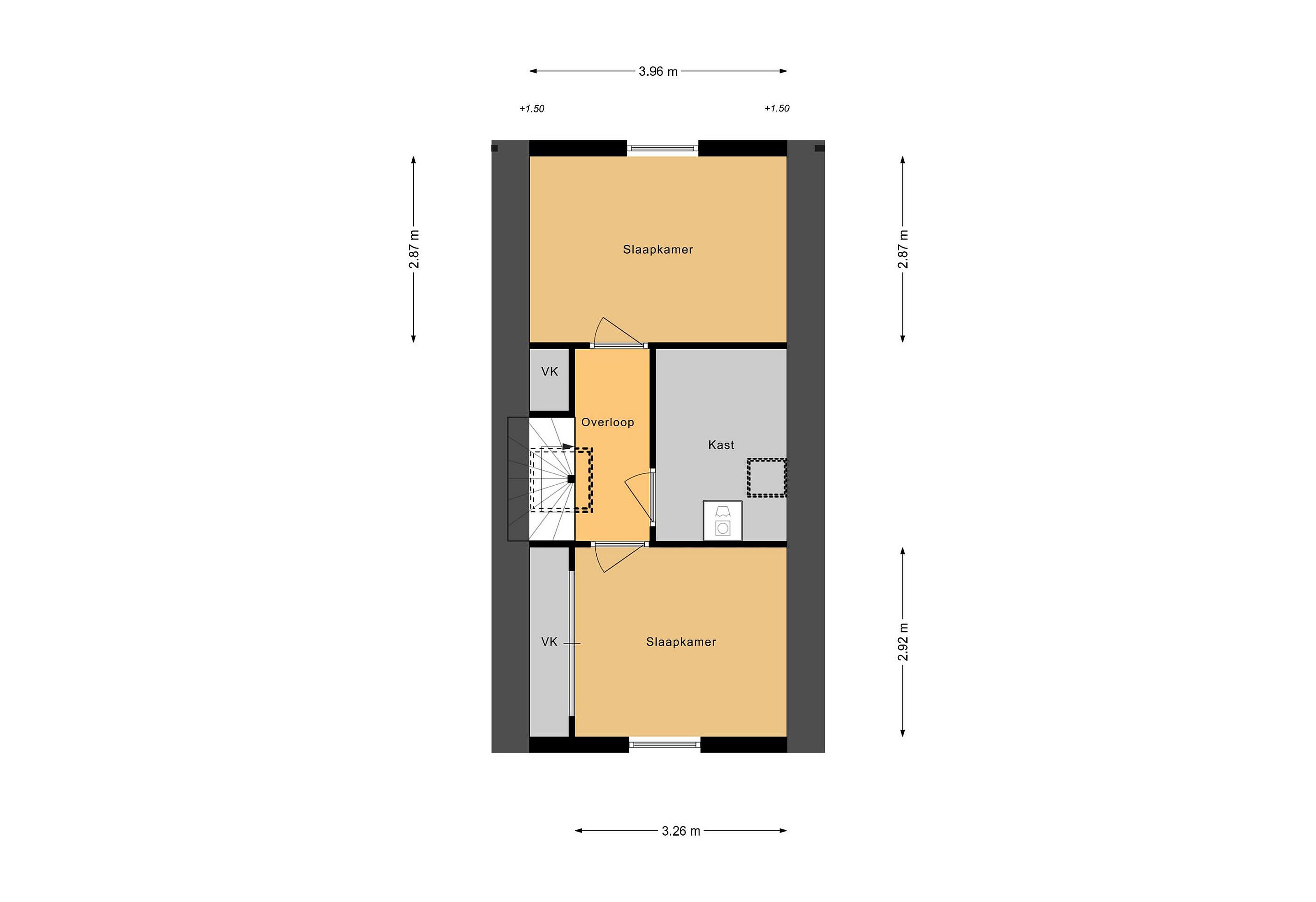
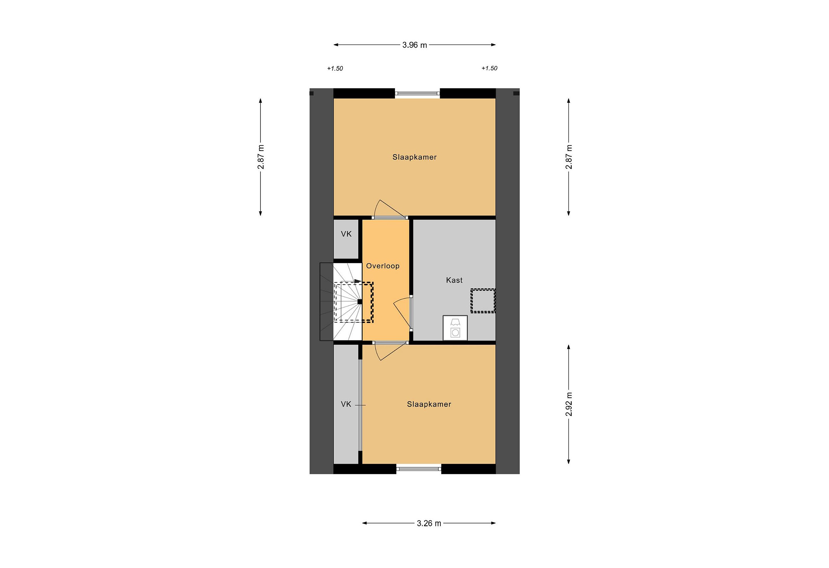
Entree, hal met meterkast (12 groepen, glasvezel), het toilet en de trapopgang naar de verdieping. Vanuit de hal kom je in de bijna 12 meter diepe living met aan de voorzijde een luxe, jonge inbouwkeuken voorzien van al het gewenste apparatuur waaronder inductie-koken, combi-oven, vaatwasser en kokend waterkraan. De woonkamer is tuingericht in een daglichtvolle aanbouw voorzien van dubbel openslaande tuindeuren naar de riante achtertuin. De gehele begane grond is gestukt en voorzien van een visgraat PVC vloer met vloerverwarming. Op de eerste verdieping vind je 2 zeer ruime slaapkamer aan de voor- en achterzijde over de gehele breedte van de woning gesitueerd. Hier ook volledig stukwerk, keurige laminaatvloeren en kunststof kozijnen met draai/kiepfunctie. De badkamer, vergroot ten opzichte van het origineel, is geheel betegeld, voorzien van vloerverwarming, een luxe wastafelmeubel, tweede toilet en inloopdouche. Vanaf de overloop op de eerste verdieping kom je met een vaste trap op de tweede verdieping met een identieke indeling aan de eerste verdieping. Wederom 2 ruime slaapkamers aan de voor- en achterzijde, over de gehele breedte gesitueerd en daarbij een geheel betegelde en afsluitbare waskamer waar de makelaar ook weleens een tweede badkamer heeft gezien bij dit type woning. Ook op de tweede verdieping beschikken de slaapkamer over kunststof kozijnen met draai/kiepramen en op de overloop een groot dakraam voor extra lichtinval.

Net zo enthousiast geworden over de woning als wij zijn? Maak dan snel een afspraak voor een bezichtiging!

LAAN MAKELAARS
voor de Kop van Noord-Holland

aan- en verkoopbegeleiding
van bestaande woningen
Lees meer

Verkoopgeschiedenis

Aangeboden sinds
17 september 2025
Verkoopdatum
13 november 2025
Looptijd
2 maanden

Kenmerken

Overdracht

Prijs per m2
€ 2.692
Aangeboden sinds
17 september 2025
Status
Verkocht
Aanvaarding
In overleg

Bouw

Soort woonhuis
Eengezinswoning, hoek woning
Soort bouw
Bestaande bouw
Bouwjaar
1980
Soort dak
Zadeldak
Staat van onderhouden binnen
Goed
Staat van onderhouden buiten
Goed

Oppervlakte en inhoud

Perceeloppervlakte
191 m2
Inhoud van de woning
418 m3
Oppervlakte externe bergruimte
14 m2

Indeling

Aantal kamers
5
Aantal slaapkamers
4
Aantal woonlagen
3
Voorzieningen
Tuin

Buitenruimte

Balkon
Nee
Schuur/berging
Nee

Maandlasten berekenen

De maandlasten voor je woning bestaan uit meer dan alleen de hypotheeklasten. Hieronder vind je een overzicht van de bijkomende kosten en lasten. Zo weet je precies wat je huis per maand gaat kosten. En met de handige vergelijkers kun je ook nog eens snel de beste deals sluiten!

  • Kaart
  • Streetview