Spilbergenstraat 2 1972 MD IJmuiden

89m2
Wonen
4
Kamers
146m2
Perceel
1930
Bouwjaar
Aan de Spilbergenstraat 2 IJmuiden staat deze instapklare hoekwoning met brede poort, ruime voor- en achtertuin, schuur en mogelijkheid voor het plaatsen van een opbouw. Gelegen in de kindvriendelijke Zeeheldenbuurt nabij de Watertoren en het Homburgplantsoen. De woning is gemeubileerd, recent binnen en buiten geschilderd, en beschikt over een moderne CV ketel (2023) en voorbereid voor het plaatsen van een dakopbouw (balklaag + trapgat al voorbereid).

De woning ligt in de rustige Zeeheldenbuurt, een groene en kindvriendelijke wijk nabij de Watertoren en het Homburgplantsoen. De wijk kenmerkt zich door een ruime opzet, veel groen en speelgelegenheden, met uitstekende voorzieningen op loopafstand. Strand, duinen, pont, sluizen en haven zijn binnen enkele minuten fietsen bereikbaar.

In de directe omgeving vind je scholen, kinderopvang, speeltuintjes, winkels en supermarkten. Het centrum van IJmuiden, strand en duinen liggen op fietsafstand. Via de nabijgelegen uitvalswegen bereik je Alkmaar en Amsterdam in ongeveer 25 minuten.

Dankzij de hoekligging, de brede poort en de brede straat met volwassen bomen aan de voorzijde heeft de woning een lichte en open uitstraling. Aan de achterzijde bieden de diepe tuinen en schuren van de achterburen extra privacy, de buitenruimte voelt daardoor rustig en beschut aan.

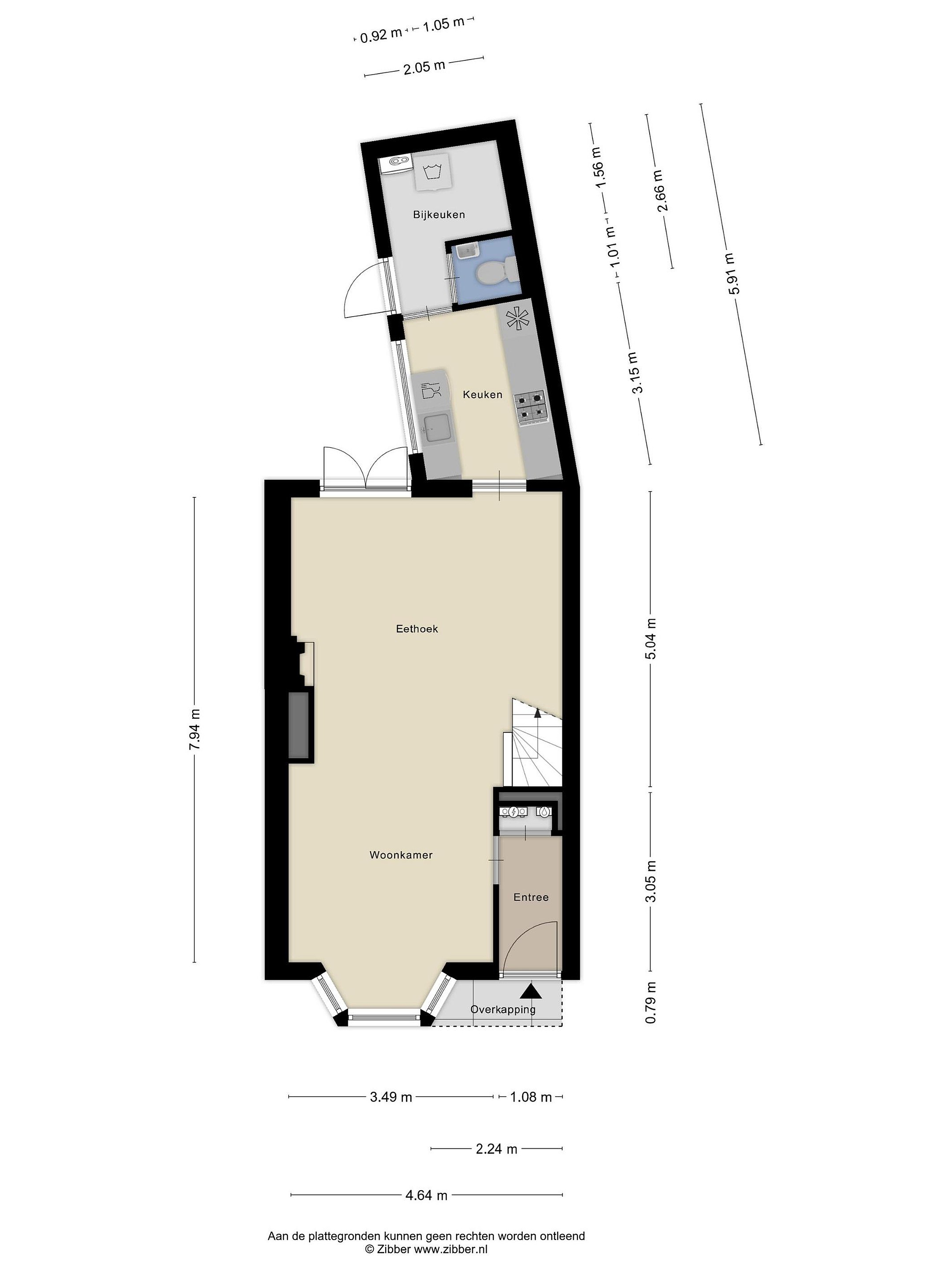
Via de hal betreed je de woning en lichte woonkamer met houten vloer. Direct bij binnenkomst valt de lichtinval op en het gevoel van ruimte, de open trap naar boven versterkt dat gevoel. De erker aan de voorzijde en de haard geven de kamer een authentieke uitstraling.

Aansluitend aan de woonkamer vind je de keuken met groot werkblad, gasfornuis, koel- vriescombinatie, vaatwasser en afzuigkap. De nostalgische uitstraling sluit goed aan bij de rest van de woning. Een deur leidt je naar een extra inpandige bergruimte met aansluiting voor witgoed en toegang tot een toiletruimte met fonteintje.

Via een vaste trap bereik je de overloop van de eerste verdieping, vanaf hier kun je de badkamer en drie slaapkamers bereiken, deze zijn keurig afgewerkt en opvallend ruim. Uitstekend te gebruiken als ouder- of kinderslaapkamer, kastenkamer of wellicht een kantoor aan huis.

De badkamer is ruim van opzet en grotendeels betegeld, voorzien van een bad, inloopdouche, wastafel en tweede toilet. Het (openslaande) raam zorgt voor daglicht en frisse lucht.

De ruime zonnige achtertuin is zowel vanuit de woonkamer als de bijkeuken te bereiken. De tuin is grotendeels bestraat, met een enkele border en daardoor zowel gezellig als onderhoudsvrij. Achterin de tuin staat een grote schuur voor stalling of (klus)hobby. De brede poort (achterom) maakt het eenvoudig om een bakfiets of elektrische fietsen veilig te stallen. Aan de voorzijde ligt de diepe voortuin op het oosten, hier kun je heerlijk genieten van een kop thee in de ochtendzon.

De woning wordt gemeubileerd opgeleverd en is daarmee direct bewoonbaar. Het binnen- en buitenschilderwerk is recent uitgevoerd. Voor de woning is ruime en gratis parkeergelegenheid beschikbaar.

Bijzonderheden:
- Instapklare en gemeubileerde hoekwoning
- Recent schilderwerk, zowel binnen als buiten
- De woning is voorbereid op een dakopbouw
- Ruime voor- en achtertuin met schuur
- Brede poort (achterom) – ideaal voor bakfiets of fietsen
- Gratis parkeren direct voor de deur
- Kindvriendelijke ligging met meerdere speelplekken in de buurt
- Supermarkten en winkels op 10 minuten lopen
- Snelle verbinding richting Alkmaar en Amsterdam
Lees meer

Kenmerken

Overdracht

Prijs per m2
€ 3.933
Aangeboden sinds
24 oktober 2025
Status
Beschikbaar
Aanvaarding
In overleg

Bouw

Soort woonhuis
Eengezinswoning, hoek woning
Soort bouw
Bestaande bouw
Bouwjaar
1930
Soort dak
Plat dak
Staat van onderhouden binnen
Goed
Staat van onderhouden buiten
Goed

Oppervlakte en inhoud

Perceeloppervlakte
146 m2
Inhoud van de woning
314 m3
Oppervlakte externe bergruimte
10 m2
Oppervlakte gebouwgebonden buitenruimten
2 m2

Indeling

Aantal kamers
4
Aantal slaapkamers
3
Aantal woonlagen
2
Voorzieningen
Tuin, schuur/berging, kabel-tv

Buitenruimte

Balkon
Nee
Schuur/berging
Ja

Maandlasten berekenen

De maandlasten voor je woning bestaan uit meer dan alleen de hypotheeklasten. Hieronder vind je een overzicht van de bijkomende kosten en lasten. Zo weet je precies wat je huis per maand gaat kosten. En met de handige vergelijkers kun je ook nog eens snel de beste deals sluiten!

  • Kaart
  • Streetview