Verkocht OV

Zoutestraat 88 4561 XD Hulst

65m2
Wonen
3
Kamers
117m2
Perceel
1923
Bouwjaar
BETAALBAAR WONEN? DIT IS JE KANS!

Wonen op een centrale plek in Hulst, op loopafstand van het gezellige vestingcentrum? Dan is Zoutestraat 88 absoluut het bekijken waard. Een betaalbare woning met mogelijkheden, ideaal voor starters of een stel dat graag dichtbij alle voorzieningen woont.

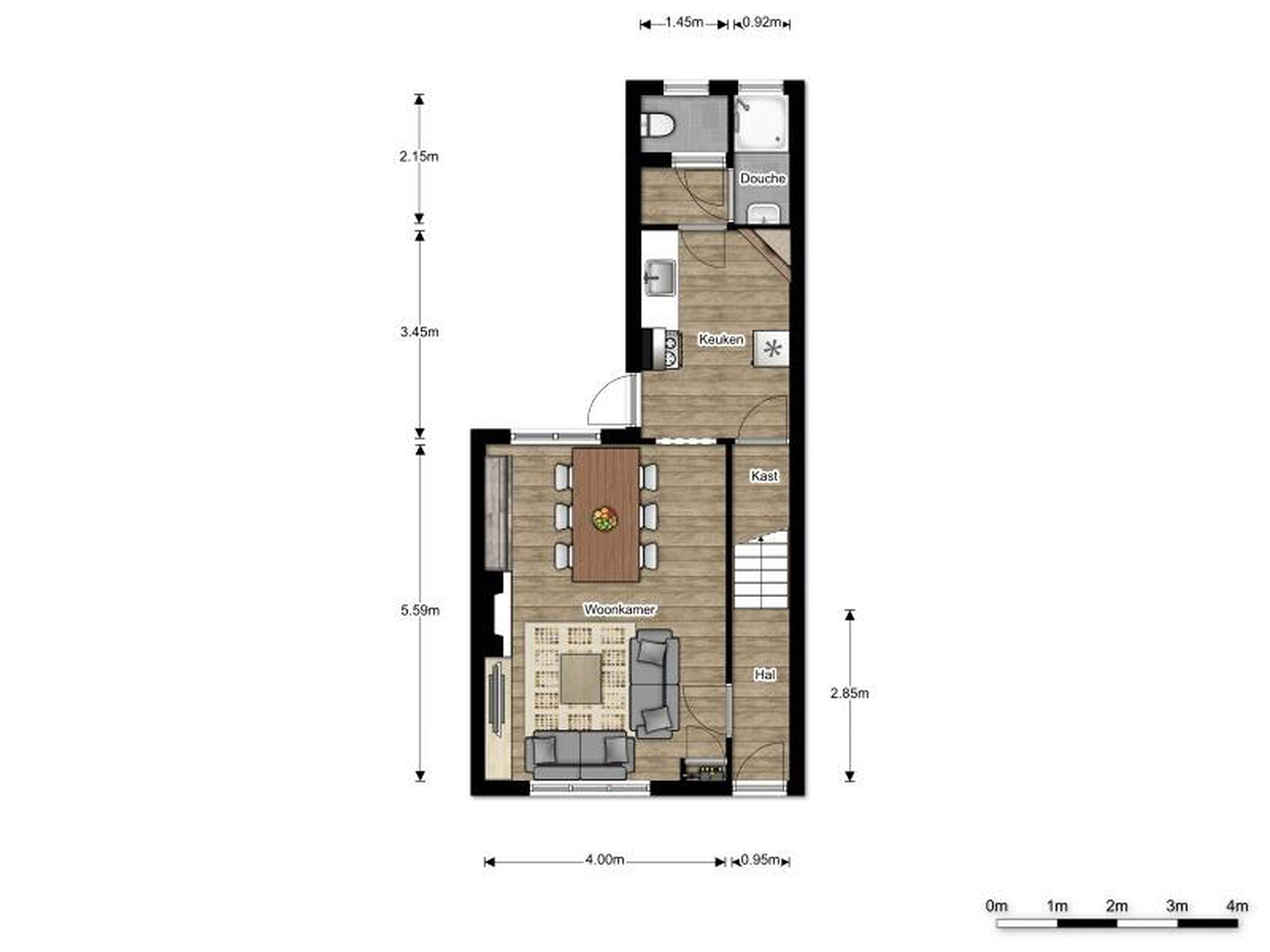
Met een woonkamer, keuken, badkamer en toilet op de begane grond en twee slaapkamers op de verdieping is dit een praktisch ingedeelde woning en eenvoudig overstappen naar gasloos wonen. De achtertuin met overkapping, ruime bergschuur en achterom maken het plaatje compleet. Dit is zo’n woning die perfect past bij starters, jonge gezinnen of kopers die betaalbaar willen wonen op een centrale locatie met alles binnen handbereik. Een mooie kans voor wie slim wil instappen in de Hulster woningmarkt.

Bijzonderheden
Voor extra informatie kun je terecht op onze website.

Hulst staat bekend om haar bourgondische sfeer, historische stadswallen en gezellige centrum met terrassen, speciaalzaken en supermarkten. Hier woon je op loopafstand van alles wat je dagelijks nodig hebt, van scholen en sportverenigingen tot horeca en winkels.
Daarnaast is Hulst gunstig gelegen ten opzichte van uitvalswegen richting Terneuzen, Antwerpen en Gent, wat het ook interessant maakt voor forenzen die in België of elders in Zeeuws-Vlaanderen werken.

De basis is fijn, de locatie sterk en de prijs aantrekkelijk, een mooie kans voor wie zijn wooncarrière wil starten! Plan vandaag nog een bezichtiging! Wij staan altijd voor je klaar, 7 dagen per week.
Lees meer

Kenmerken

Overdracht

Prijs per m2
€ 2.677
Aangeboden sinds
28 februari 2026
Status
Verkocht onder voorbehoud
Aanvaarding
In overleg

Bouw

Soort woonhuis
Eengezinswoning, tussen woning
Soort bouw
Bestaande bouw
Bouwjaar
1923
Soort dak
Mansardedak
Staat van onderhouden binnen
Redelijk
Staat van onderhouden buiten
Redelijk

Oppervlakte en inhoud

Perceeloppervlakte
117 m2
Inhoud van de woning
220 m3
Oppervlakte externe bergruimte
16 m2
Oppervlakte gebouwgebonden buitenruimten
7 m2

Indeling

Aantal kamers
3
Aantal slaapkamers
2
Aantal woonlagen
2
Voorzieningen
Tuin, schuur/berging, dakraam

Buitenruimte

Balkon
Nee
Schuur/berging
Ja

Maandlasten berekenen

De maandlasten voor je woning bestaan uit meer dan alleen de hypotheeklasten. Hieronder vind je een overzicht van de bijkomende kosten en lasten. Zo weet je precies wat je huis per maand gaat kosten. En met de handige vergelijkers kun je ook nog eens snel de beste deals sluiten!

  • Kaart
  • Streetview