Verkocht

Van Goghstraat 18 5961 AR Horst

88m2
Wonen
4
Kamers
308m2
Perceel
1968
Bouwjaar
Ruime, goed onderhouden hoekwoning met garage, serre en zonnige tuin op een perceel van 308m2!

Deze hoekwoning uit 1968 is gelegen in een rustige straat in een kindvriendelijke woonwijk, op loopafstand van een kinderopvang, basisschool en middelbare school. Winkel- en horecavoorzieningen zijn op korte fietsafstand bereikbaar, en de A73 is met 5 autominuten gemakkelijk te bereiken.
De begane grond biedt een royale woonkamer met veel lichtinval, een keurige keuken en een serre met toegang tot de tuin. Op de eerste verdieping bevinden zich drie slaapkamers en een moderne badkamer, terwijl de tweede verdieping volop mogelijkheden biedt voor een extra slaapkamer en bergruimte.
De tuin rondom de woning is onderhoudsvriendelijk en beschikt over een ruime oprit, garage met elektrische rolpoort, schuur en een overkapping. De woning is goed onderhouden, deels voorzien van vloerverwarming, dubbelglas en een geïsoleerd dak.

Indeling:

Begane grond:
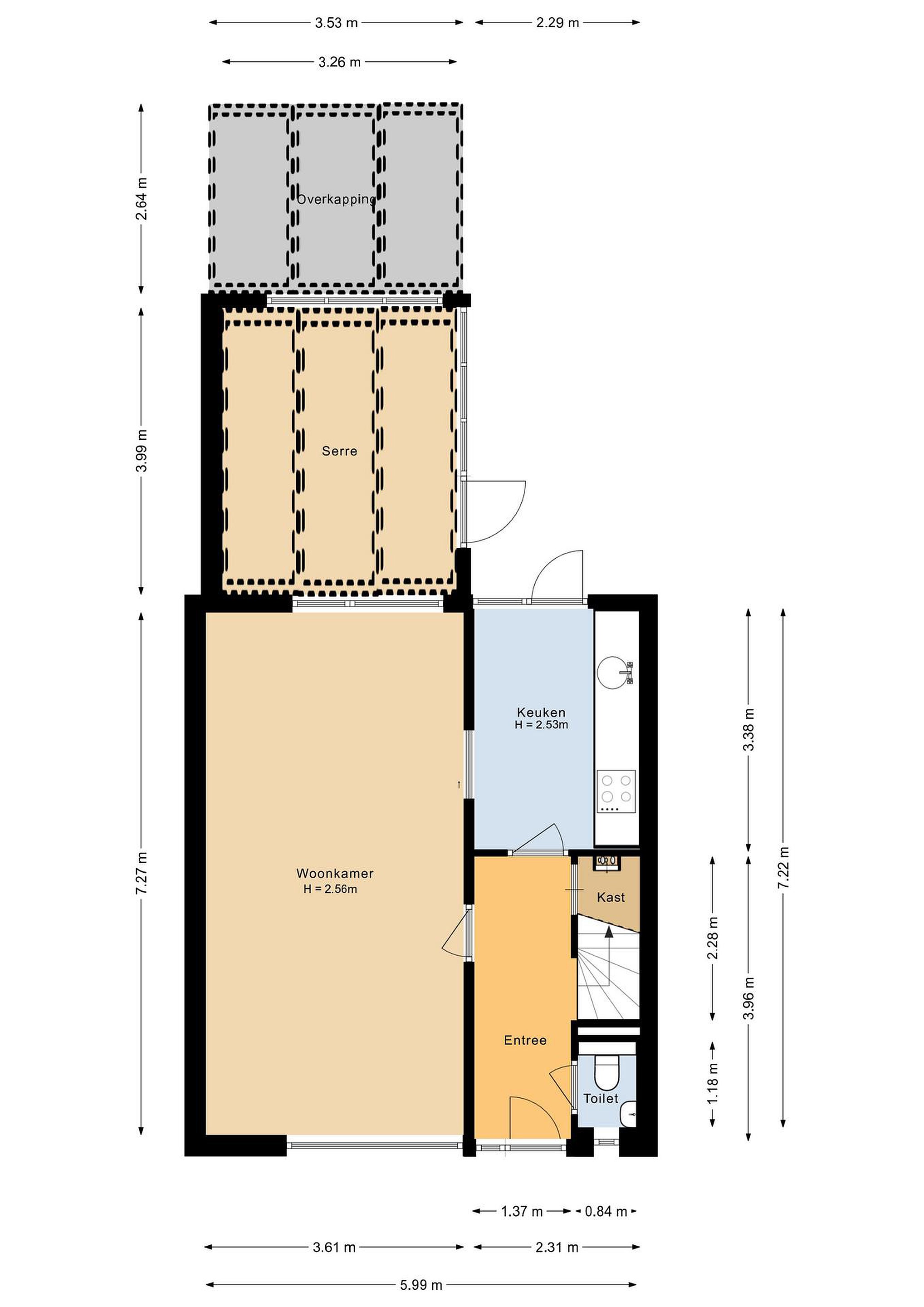
De entree/hal geeft toegang tot de toiletruimte, de trapopgang naar de 1e verdieping, de kelderkast, de keuken en de woonkamer. De toiletruimte is voorzien van een zwevend closet en fonteintje. In de trapkast is de meterkast gesitueerd. De ruim opgezette woonkamer (ca. 26m2) is voorzien een lichte tegelvloer met vloerverwarming. Aan de voorzijde is er een grote raampartij met uitzicht op de speelweide aan de voorkant. Middels een open doorgang is er toegang tot de keuken. De keuken (ca. 8m2) is keurig onderhouden en voorzien van een keramische kookplaat, afzuigkap, oven, koelkast en spoelbak. De keuken biedt voldoende opbergruimte. De keuken heeft een tegelvloer. Middels een loopdeur is er toegang tot de tuin. Vanuit de tuin is er toegang tot de serre. De serre is ca. 13m2 groot en is geheel voorzien van dubbelglas. In de serre bevindt zich de witgoedaansluiting.

1e verdieping:
De overloop geeft toegang tot een muurkast, 3 slaapkamers, de badkamer en de vaste trap naar de 2e verdieping.
Slaapkamer 1 is gelegen aan de voorzijde en is ca. 12m2 groot. Deze slaapkamer is voorzien van een muurkast en vloerbedekking.
Slaapkamer 2 is gelegen aan de achterzijde en is ca. 12,5m2 groot. Ook deze slaapkamer is voorzien van een muurkast en vloerbedekking.
Slaapkamer 3 is gelegen aan de achterzijde en is ca. 5,5m2 groot. Deze kamer is voorzien van een zeil.
De geheel betegelde badkamer is ingericht met een ruime douchecabine, wastafel met meubel en een 2e zwevend toilet.

2e verdieping:
Middels een vaste trap is de 2e verdieping te bereiken. De 2e verdieping biedt ruim voldoende opbergmogelijkheden en biedt tevens de mogelijkheid om een 4e slaapkamer te realiseren. Tevens is hier de combi CV-ketel gesitueerd (Nefit 2019). Het dak is geïsoleerd.

Tuin:
De tuin is zowel aan de voor-, zij- als achterkant gelegen. Er is een ruime oprit naast de woning welke toegang geeft tot de garage. De garage met elektrische rolpoort is ca. 21m2 groot. Verder is er een schuur van ca. 13m2 en een overkapping. Aan de zijkant van de woning is er een gazon met borders met beplanting. De tuin is gelegen op het noordoosten.

Algemeen:
Bouwjaar 1968, inhoud ca. 409m3, gebruiksoppervlakte wonen ca. 88m2, overig inpandig ca. 11m2, externe bergruimte 47m2, perceelsoppervlakte 308m2.
- Onderhoudsstaat is zowel binnen als buiten goed.
- Gedeeltelijk voorzien van dubbelglas.
- Het dak is geïsoleerd.
- Gedeeltelijk voorzien van vloerverwarming.
- Combi CV-ketel Nefit 2019.
- Energielabel D.
Deze hoekwoning is gelegen in een rustige straat in een kindvriendelijke woonwijk. Op loopafstand van een kinderopvang, basisschool en een middelbare school. Winkel- en horecavoorzieningen zijn gelegen op fietsafstand. De A73 is met 5 autominuten te bereiken.

Vraagprijs: € 335.000,- k.k.
Lees meer

Verkoopgeschiedenis

Aangeboden sinds
19 maart 2026
Verkoopdatum
15 april 2026
Looptijd
één maand

Kenmerken

Overdracht

Prijs per m2
€ 3.807
Aangeboden sinds
19 maart 2026
Status
Verkocht
Aanvaarding
In overleg

Bouw

Soort woonhuis
Eengezinswoning, hoek woning
Soort bouw
Bestaande bouw
Bouwjaar
1968
Soort dak
Samengesteld dak
Staat van onderhouden binnen
Goed
Staat van onderhouden buiten
Goed

Oppervlakte en inhoud

Perceeloppervlakte
308 m2
Inhoud van de woning
409 m3
Oppervlakte externe bergruimte
47 m2
Oppervlakte gebouwgebonden buitenruimten
9 m2
Oppervlakte overige inpandige ruimten
11 m2

Indeling

Aantal kamers
4
Aantal slaapkamers
3
Aantal woonlagen
3
Voorzieningen
Tuin, schuur/berging, ventilatie, dakraam

Buitenruimte

Balkon
Nee
Schuur/berging
Ja

Maandlasten berekenen

De maandlasten voor je woning bestaan uit meer dan alleen de hypotheeklasten. Hieronder vind je een overzicht van de bijkomende kosten en lasten. Zo weet je precies wat je huis per maand gaat kosten. En met de handige vergelijkers kun je ook nog eens snel de beste deals sluiten!

  • Kaart
  • Streetview