Verkocht OV

Schepenen 32 1625 BH Hoorn

113m2
Wonen
3
Kamers
113m2
Perceel
1974
Bouwjaar
Bieden vanaf € 375.000,- k.k.

Ruime splitlevelwoning met woonkeuken en schuifpui naar de tuin met veel privacy, een royale living, 2 riante slaapkamers (voorheen 3), badkamer met ligbad en een inpandig te bereiken garage. Het is een woning waar een frisse wind door mag waaien en het behoeft de nodige aanpak. Heeft u zin in deze uitdaging, dan zien we u graag bij een bezichtiging!

Entree
Parkeren kan op eigen terrein voor de garagedeur. Achter de voordeur is de tussenhal met een lichte tegelvloer en granol gestuukte wanden.
Vanuit de hal heeft u toegang tot de inpandig te bereiken garage en het toilet met licht betegelde wanden en vloer, spiegelwanden, verlaagd plafond met indirecte verlichting, staande toiletpot, fonteintje en natuurlijke ventilatie.
Deur naar de volgende hal met een garderobekast en de trap naar het keukenniveau.

Keuken
Woonkeuken met grote raampartijen tot aan de vloer met ventilatierooster en een schuifpui in een kunststof kozijn. De ruiten moeten wel vervangen worden vanwege condens. Er is een kunststof plafond met inbouwspots en de keuken is in een L-vorm geplaatst met veel werkblad en dubbele spoelbak, veel kastruimte, apothekerskast, laden en bovenkastjes met bladverlichting. Daarnaast is er diverse inbouwapparatuur, zoals: een grote koelkast met vriesvak, vaatwasser, elektrische kookplaat, wasemkap en elektrische oven. Er zitten lichte wandtegels tegen de achterwand, de knop van het centraal afzuigsysteem en meerdere stopcontacten.

Tuin
Vanuit de keuken heeft u via de schuifpui toegang tot de gesloten, hele groene en deels bestrate tuin. Achter de woning loopt een fietspad waardoor er geen directe achterburen zijn. Er is een buitenkraan en veel privacy. Heerlijke tuin om de dag op te starten met een kopje koffie!

Garage
Inpandig te bereiken garage met een elektrisch te bedienen en geïsoleerde segmentendeur. Tegen het plafond zitten asbest platen wat bij de bouw een verplichte voorziening was. In de garage zit de wasmachine- en drogeraansluiting.
Achterin zit een luik naar een bergruimte. Meerdere bewoners hebben deze ruimte uitgegraven en er een extra kamer gerealiseerd.

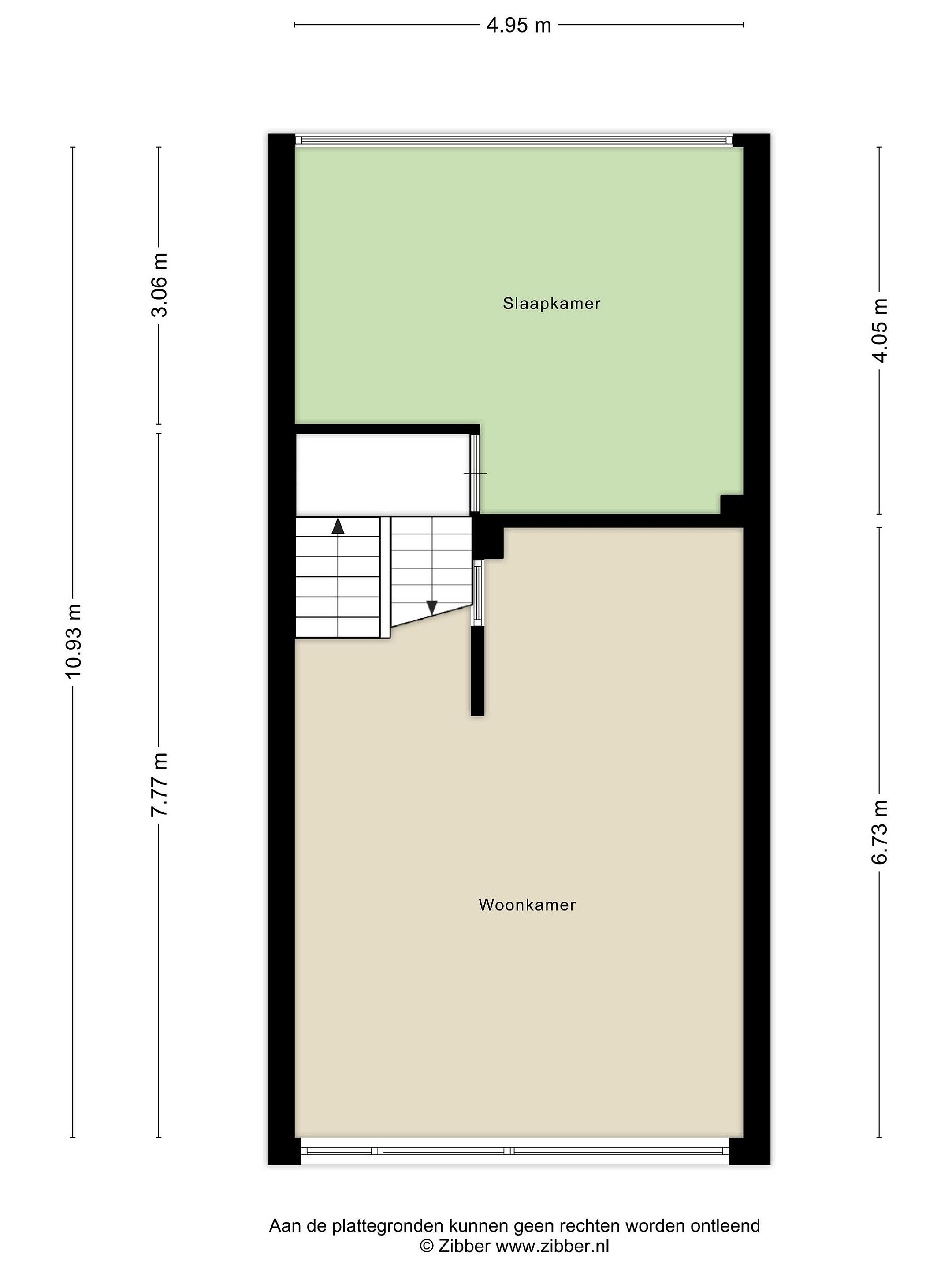
Living
Vanuit de keuken geeft een trap toegang tot de royale living met een houten verdiepingsvloer waarover een lichte laminaatvloer is gelegd. Er is veel lichtinval vanwege de brede raampartij met dubbel glas in een kunststof kozijn met dubbel glas, draai/kiepraam, een ventilatierooster en elektrisch te bedienen screen. De wanden zijn granol gestuukt en er zit een kunststof plafond met inbouwspots.
Vanwege de enorme ruimte kunnen er meerdere knusse zithoekjes worden geplaatst.

1e Slaapkamer
Vanuit de living is de trap naar de overloop met een hoog plafond met inbouwspots en toegang tot de riante slaapkamer, voorheen 2 kamers. Op de houten verdiepingsvloer is ook hier een lichte laminaatvloer gelegd. De slaapkamer voorziet in een kunststof kozijn met dubbel glas, ventilatierooster en draai/kiepraam en een hoogoplopend kunststof plafond met inbouwspots.

Badkamer
Vanaf de overloop een trap naar de badkamer en de 2e slaapkamer en de cv-kast. Een glazen klapdeur geeft toegang tot de badkamer met licht betegelde wanden en dito plafond. Het is een speelse indeling met op een plateau een 2e toilet en een bidet, een brede wastafel met dubbele wasbak en een grote spiegel en er is een ligbad met douche en spatscherm.

2e Slaapkamer
Royale slaapkamer met een lichte laminaatvloer op een houten verdiepingsvloer. Ook in deze kamer zijn kunststof kozijnen geplaatst met dubbel glas en er zijn 2 uitzetramen. De wanden zijn behangen, ook hier een hoog plafond en de kamer heeft vaste kastenwanden met spiegeldeuren.

Bijzonderheden:
- Kunststof kozijnen met dubbel glas
- Niet bewoners clausule
- Het winkelcentrum De Huesmolen ligt op een steenworp afstand
- Scholen, binnenstad en sportfaciliteiten in de directe omgeving
- De cv-installatie wort gehuurd voor € 58,04 per maand en is eind september 2027 afgekocht
Lees meer

Kenmerken

Overdracht

Prijs per m2
€ 3.319
Aangeboden sinds
19 september 2025
Status
Verkocht onder voorbehoud
Aanvaarding
In overleg

Bouw

Soort woonhuis
Eengezinswoning, tussen woning, splitlevel woning
Soort bouw
Bestaande bouw
Bouwjaar
1974
Soort dak
Plat dak
Staat van onderhouden binnen
Goed
Staat van onderhouden buiten
Goed

Oppervlakte en inhoud

Perceeloppervlakte
113 m2
Inhoud van de woning
468 m3
Oppervlakte gebouwgebonden buitenruimten
1 m2
Oppervlakte overige inpandige ruimten
19 m2

Indeling

Aantal kamers
3
Aantal slaapkamers
2
Aantal woonlagen
3
Voorzieningen
Tuin, ventilatie

Buitenruimte

Balkon
Nee
Schuur/berging
Nee

Maandlasten berekenen

De maandlasten voor je woning bestaan uit meer dan alleen de hypotheeklasten. Hieronder vind je een overzicht van de bijkomende kosten en lasten. Zo weet je precies wat je huis per maand gaat kosten. En met de handige vergelijkers kun je ook nog eens snel de beste deals sluiten!

  • Kaart
  • Streetview