Dr. C.j.k. van Aalstweg 17 1625 NV Hoorn

155m2
Wonen
6
Kamers
593m2
Perceel
1975
Bouwjaar
Bieden vanaf € 625.000,- k.k.

Riante half vrijstaande woning met ruime losstaande garage op steenworp afstand van het park in een fijne en rustige woonomgeving. Er is een ruime living met open haard en een gezellige tuinkamer in de flinke aanbouw met zicht op het park.
De keuken in een hoekopstelling heeft een schuifpui naar de tuin op het zuidwesten, er is een bijkeuken en een hal met zijentree en bergzolders. De slaapverdieping telt 3 ruime slaapkamers, een kantoorruimte en de badkamer. Vanaf de overloop geeft een vlizotrap toegang tot de enorme zolderruimte met mogelijkheden voor een dakopbouw waardoor er nog 2 kamers gerealiseerd kunnen worden. Kortom… een woning met legio mogelijkheden!
De woning is vanaf de bouw in 1976 door eerste eigenaren bewoond geweest. Veel authentieke details van toen zijn nog steeds aanwezig, de woning is gedateerd en behoeft wel de nodige modernisering. Zo zijn er retro betegelde wanden, wat toch ook wel weer z’n charme heeft en gecombineerd kan worden met een eigentijdse inrichting. Interesse? Dan zien we u graag bij de bezichtiging zodat u de sfeer en de mogelijkheden zelf kan ervaren.

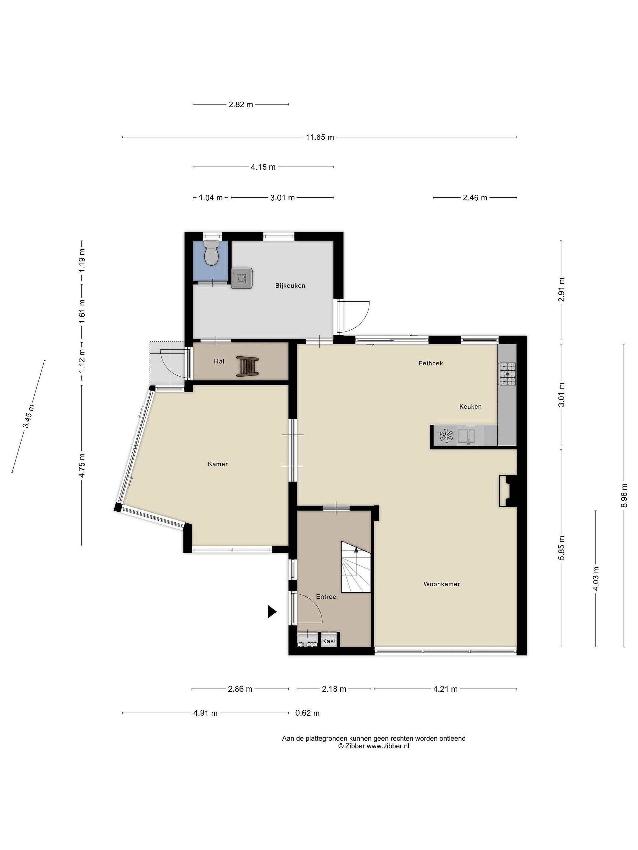
Entree
Het pad in de met zorg aangelegde en grote voortuin brengt u naar de voordeur met een zijraam. Achter de voordeur is de hal waar de wanden zijn uitgevoerd in schoon metselwerk en op de vloer liggen kleurrijke plavuizen die zijn doorgelegd in de living. Er is een garderobehoek, de meterkast met een schoenenkast en de trapopgang naar de slaapverdieping.

Living en tuinkamer
De straatgerichte living heeft een deels verlaagd houten plafond met inbouwspots, een gemetselde schouw met open haard en betonnen plateau, een brede raampartij met dubbel glas in een houten kozijn en een uitzetraam zodat er goed geventileerd kan worden. De wanden zijn gestuukt en bij de eethoek naast de keuken geeft een schuifpui toegang tot de zonnig gelegen tuin.
Vanuit de living geven openslaande deuren toegang tot de ruime tuinkamer die in 1993 is aangebouwd. Dit is eigenlijk wel de mooiste plek in deze woning vanwege het vele lichtinval en de laag geplaatste ramen die zicht geven op de diepe voortuin en het park aan de overkant van de straat. Op de vloer zijn lichte tegels met vloerverwarming als bijverwarming gelegd en onder de raampartijen zijn ook nog convectorradiatoren geplaatst. Het plafond is in hout uitgevoerd met inbouwspots, dakramen geven extra lichtinval en er is een brede schuifpui naar het zijterras waar u de hele dag van de zon kan genieten.
De wanden zijn gestuukt en in de hardhouten kozijnen is dubbel glas geplaatst.

Keuken
Halfopen keuken met een schuifpui voorzien van dubbel glas bij de eethoek en een convectorput. Een groot tuingericht raam kan open en ook hier is het plafond verlaagd met inbouwspots voor de verlichting. De keuken is in een hoek geplaatst en is gedateerd. Er is wel veel werkblad, retro wandtegels, veel kastruimte, een carrouselkast zonder deurtjes, bovenkastjes, een dubbele spoelbak, 4 pits gaskomfoor, een oven en een afzuigkap. Als er toch een nieuwe keuken geplaatst gaat worden is het qua ruimte mogelijk om een kookeiland te installeren.

Bijkeuken
Aansluitend aan de keuken is een ruime bijkeuken met gemetselde spouwmuren, zeshoekige terracotta vloertegels, een grote radiator, uitzetraam en een tuindeur, beiden met enkel glas. De wasmachine- en droger opstelling is hier en het toilet met retro wandtegels, de vloer is doorgelegd en de ruimte voorziet in een staande toiletpot, aansluiting voor een fonteintje, een radiator en een klapraampje voor de natuurlijke ventilatie.
Vanuit de bijkeuken een hal met lichte vloertegels, de unit van de vloerverwarming van de tuinkamer, praktische bergruimte en via een losse trap te bereiken is er een hoog plateau met aan beide zijden flinke en bevloerde wegzetzolders. Aan opbergruimte is in deze woning geen gebrek! Hier is ook de zijentree met een massief houten deur die toegang geeft tot de zijtuin met terras, de parkeerplaats naast de woning en de garage.

Garage
Rond 1995 is de garage met verdieping en pannendak gebouwd, de garage is enkelsteens gemetseld en voorziet in een buitenkraan, elektrisch te bedienen deur, verlichting, stopcontacten en een enorme wegzetzolder met raam voor direct lichtinval. De wegzetzolder is met een losse trap te bereiken maar voor het gemak zou er een vlizo- of vaste trap geplaatst kunnen worden.
Als u de auto in de garage parkeert is er ook nog voldoende ruimte voor fietsen en/of opslag. Naast de garage zijn ook openbare parkeerplaatsen.

Tuin
Naast de fraai aangelegde voortuin is er een fijn en heel zonnig zijterras naast de tuinkamer en een brede achtertuin met terras, grasveld en struiken waar u volop van de middag- én avondzon kan genieten. Met de achtertuin op het zuidwesten heeft u echt de ideale tuinligging! De achtertuin grenst aan een brede sloot.

1e Verdieping
Vanuit de hal geeft de trapopgang toegang tot de slaapverdieping met een betonnen verdiepingsvloer. Op de overloop ligt vloerbedekking wat in alle kamers is doorgelegd en vanaf de overloop is de zolderverdieping met een uitschuiftrap te bereiken.
1e Kamer – een leuk formaat kamer wat altijd als kantoor is gebruikt maar ook uiterst geschikt is als kleedkamer. De wanden zijn gestuukt en er zijn 3 kleine uitzetraampjes in een hardhouten kozijn met enkel glas.
2e Slaapkamer achterzijde – ruime kamer met gestuukte wanden, groot uitzetraam met enkel glas, ventilatierooster in de spouwmuur en een wastafel.
3e Slaapkamer achterzijde – royale kamer met recht opgetrokken en gestuukte wanden. Er zijn 2 uitzetramen met enkel glas en een vaste kledingkast.
4e Slaapkamer voorzijde – ruime kamer met recht opgetrokken en gestuukte wanden, groot raam en een deur naar het balkon, ook beiden met enkel glas.

Badkamer
Ruime inpandige badkamer met retro wandtegels en lichte vloer. Je stapt echt de jaren 70 in!! De badkamer voorziet in een ligbad met mengkraan en handdouche, douchehoek met mengkraan, wastafel, radiator en een 2e toilet.

Zolderverdieping
Vanaf de overloop geeft een uitschuiftrap toegang tot de ruime zolderverdieping met enorm veel wegzetruimte, geheel bevloerd en voorzien van verlichting. Een
4-pans uitzetraam zorgt voor direct lichtinval en middels het plaatsen van een vaste trap en een dakopbouw kunnen hier zelfs nog 2 extra kamer gerealiseerd worden. Legio mogelijkheden dus!

Bijzonderheden:
- NIET BEWONERS CLAUSULE
- 1e Bewoners
- Fijne en rustige woonomgeving
- Veel faciliteiten in de directe omgeving
- Op steenworp afstand van het park
Lees meer

Kenmerken

Overdracht

Prijs per m2
€ 4.032
Aangeboden sinds
31 oktober 2025
Status
Beschikbaar
Aanvaarding
In overleg

Bouw

Soort woonhuis
Eengezinswoning, twee-onder-een-kap woning
Soort bouw
Bestaande bouw
Bouwjaar
1975
Soort dak
Zadeldak
Staat van onderhouden binnen
Goed
Staat van onderhouden buiten
Goed

Oppervlakte en inhoud

Perceeloppervlakte
593 m2
Inhoud van de woning
677 m3
Oppervlakte externe bergruimte
21 m2
Oppervlakte gebouwgebonden buitenruimten
3 m2
Oppervlakte overige inpandige ruimten
27 m2

Indeling

Aantal kamers
6
Aantal slaapkamers
3
Aantal woonlagen
3
Voorzieningen
Tuin

Buitenruimte

Balkon
Nee
Schuur/berging
Nee

Maandlasten berekenen

De maandlasten voor je woning bestaan uit meer dan alleen de hypotheeklasten. Hieronder vind je een overzicht van de bijkomende kosten en lasten. Zo weet je precies wat je huis per maand gaat kosten. En met de handige vergelijkers kun je ook nog eens snel de beste deals sluiten!

  • Kaart
  • Streetview