Graaf Willem Ii Laan 35 2355 BG Hoogmade

169m2
Wonen
5
Kamers
182m2
Perceel
1975
Bouwjaar
! Let op: bieden vanaf € 575.000,- !

Royale gezinswoning met vrij uitzicht over de polder – 169 m2 wooncomfort

Wonen met rust, ruimte én een blijvend vrij uitzicht over het polderlandschap?
Aan de Graaf Willem II laan 35 ervaar je dagelijks het gevoel van vrijheid, terwijl je woont in een royale en comfortabele gezinswoning van maar liefst 169 m2.
De diepe achtertuin biedt een prachtig weids uitzicht richting de molen en het groene landschap. Hier geniet je van lange zomeravonden, rust en privacy – een plek waar je elke dag thuiskomt met een gevoel van ruimte.

Wat maakt deze woning bijzonder?
- Vrij uitzicht over het polderlandschap
- 169 m2 woonoppervlakte
- Ruime woonkamer met veel lichtinval
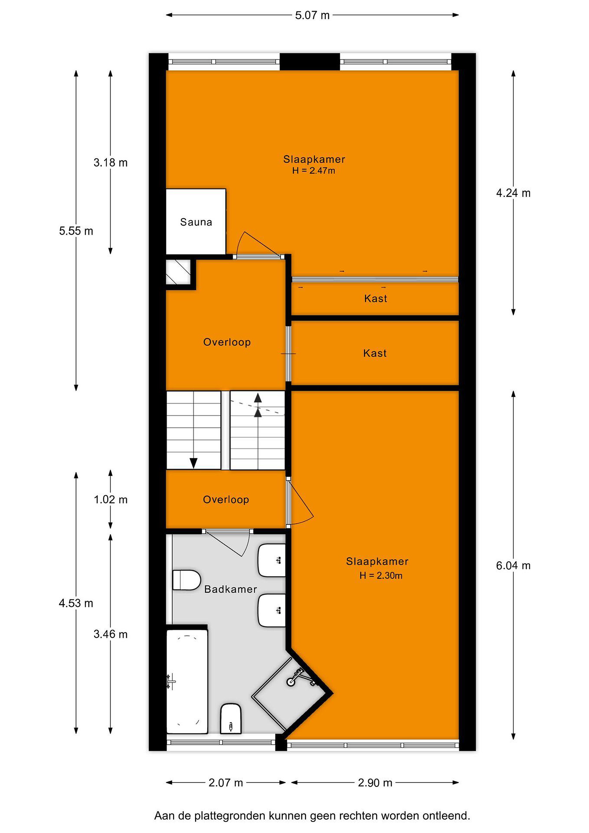
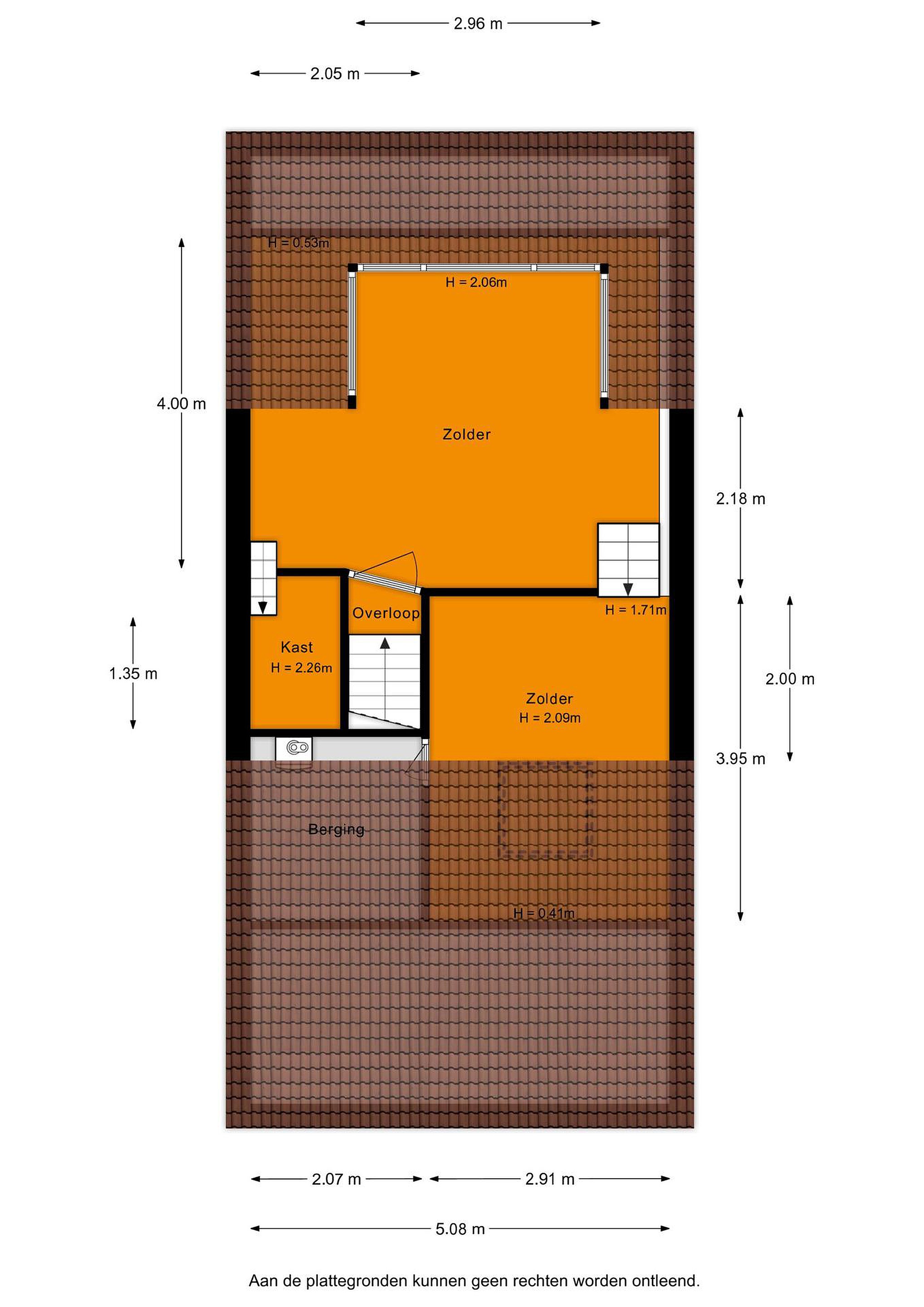
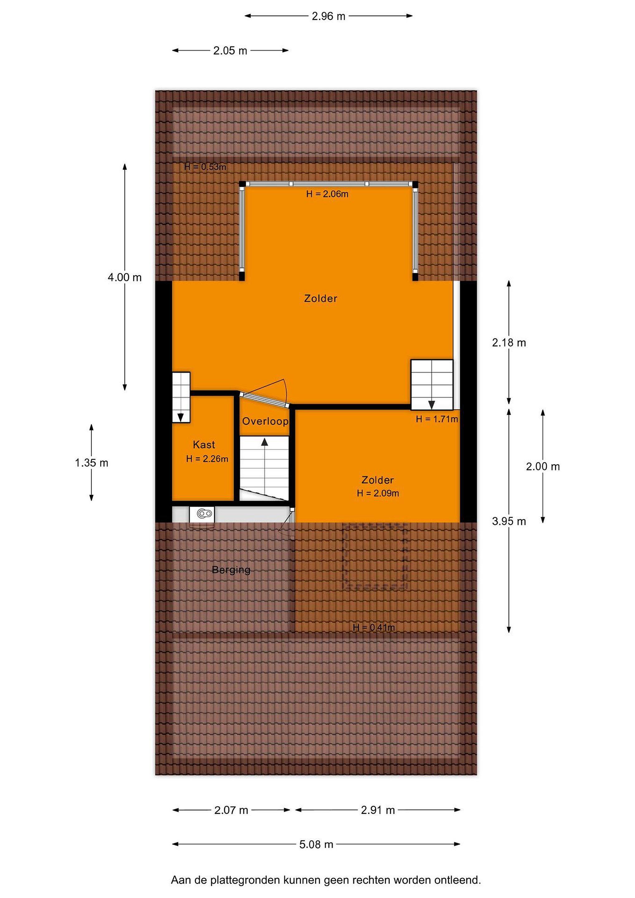
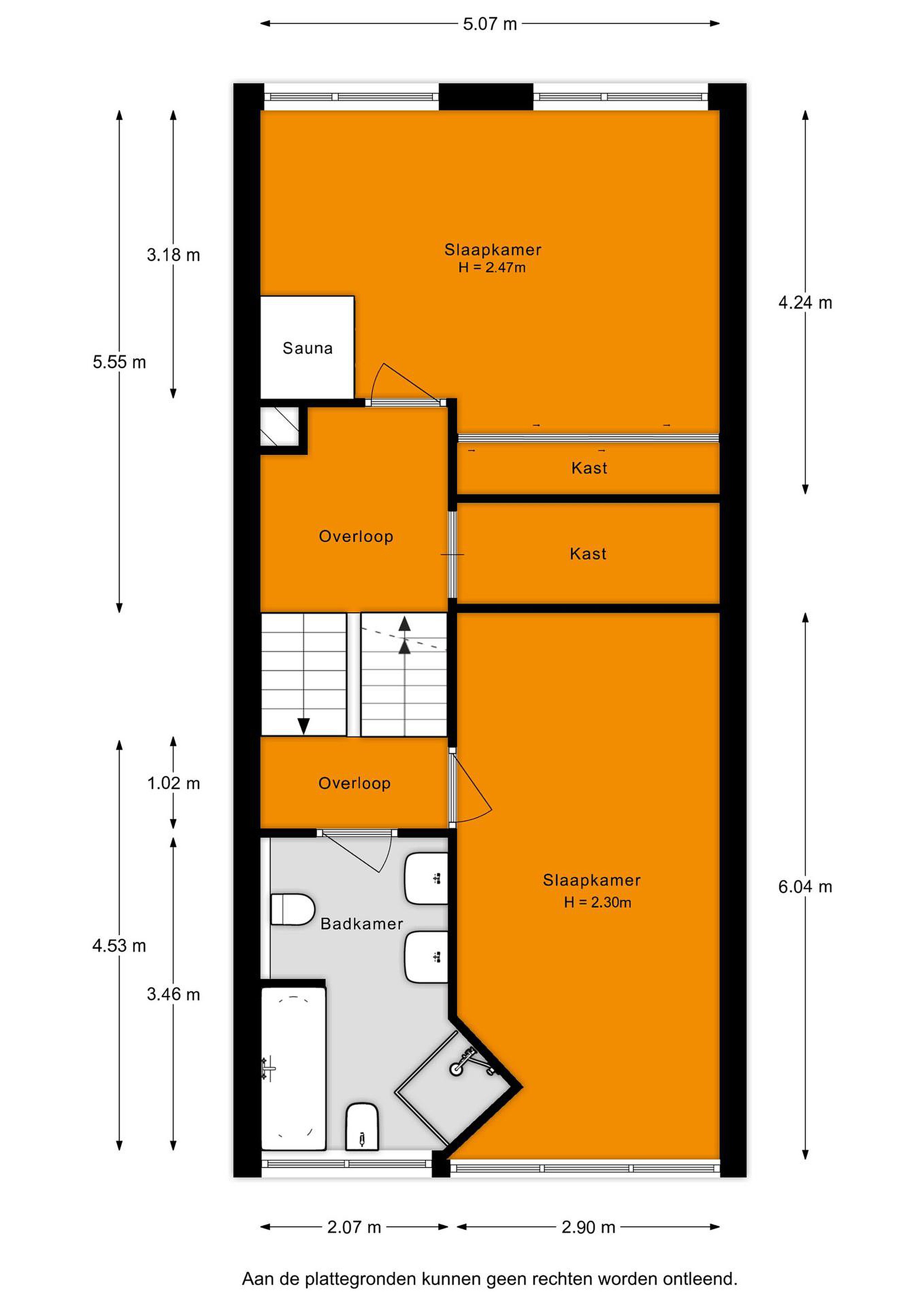
- 3 royale slaapkamers + 4e slaapkamer op zolder
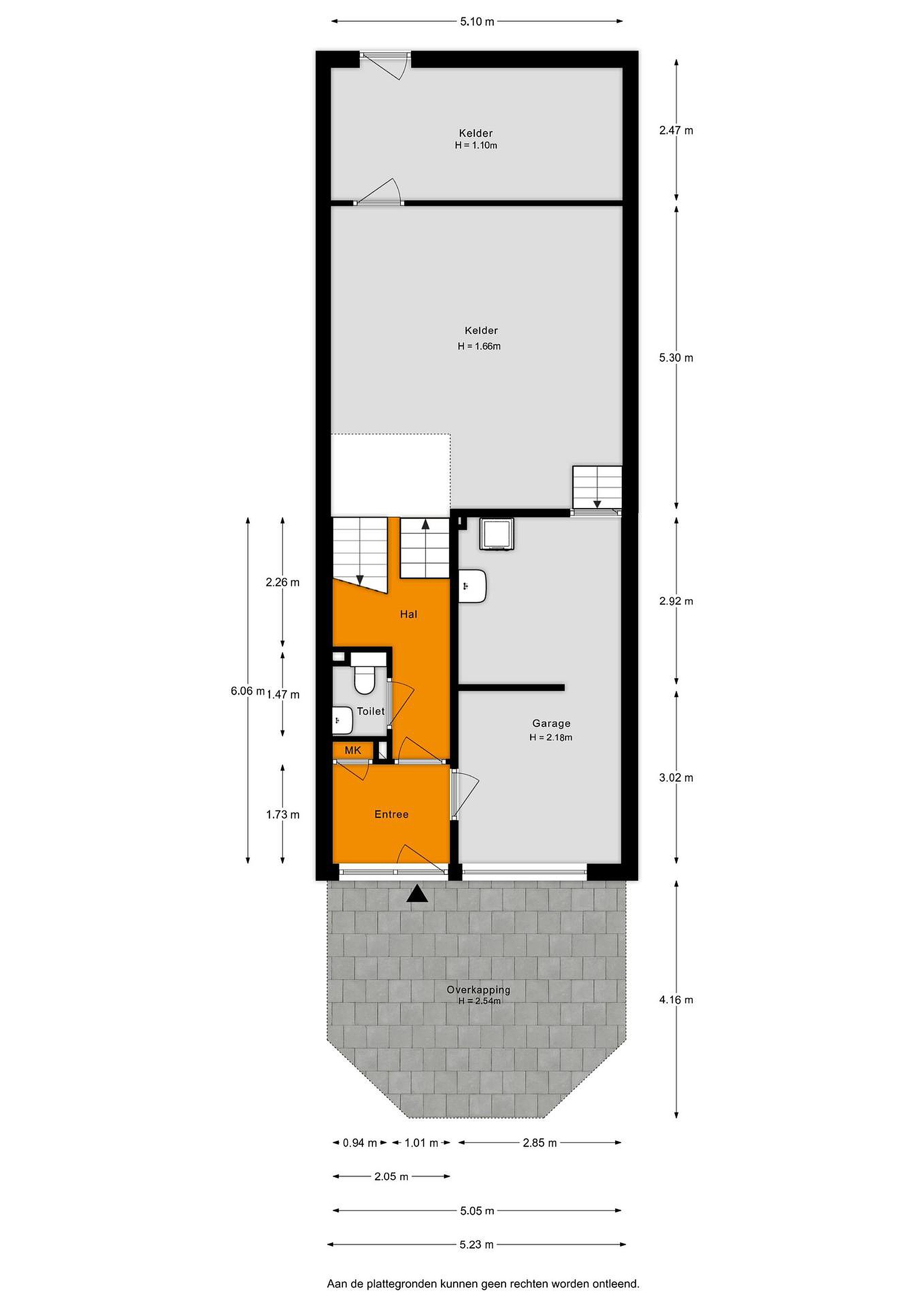
- Circa 45 m2 extra ruimte onder de woning
- Garage én carport
- Energielabel B
- Snelle aansluiting op de A4
- Schiphol op circa 20 minuten afstand

De ruime woonkamer biedt volop leefruimte voor een gezin en staat in directe verbinding met de tuin. Dankzij de grote raampartijen geniet je hier van veel daglicht en een fraai zicht naar buiten. De keuken is ruim opgezet en biedt de mogelijkheid om deze naar eigen smaak te moderniseren – een mooie kans om hier jouw eigen woonwensen te realiseren. Op de verschillende woonniveaus bevinden zich in totaal vier slaapkamers en een complete badkamer. Doordat de woning is ingedeeld in meerdere niveaus, voelen de ruimtes licht, praktisch en speels aan, zonder dat er sprake is van een ingewikkelde indeling.


Extra ruimte
Onder de woning bevindt zich circa 45 m2 aan extra ruimte met een hoogte van ongeveer 1meter70. Ideaal als royale opslagruimte. In de straat hebben meerdere woningen deze ruimte (gedeeltelijk) verdiept en ingericht als hobby- of werkruimte, wat interessante mogelijkheden biedt voor de toekomst.

Ligging
Gelegen in een rustige woonomgeving in Hoogmade, met een snelle aansluiting op de A4. Binnen circa 30 minuten bereik je Amsterdam of Den Haag en Schiphol ligt op slechts 20 minuten rijden. Hier woon je landelijk en vrij, met de Randstad binnen handbereik.

Ben je op zoek naar een ruime woning met een unieke vrije ligging en volop mogelijkheden om deze naar eigen smaak verder te moderniseren? Dan nodigen wij je graag uit om de ruimte en het uitzicht zelf te komen ervaren.

Lees meer

Kenmerken

Overdracht

Prijs per m2
€ 3.402
Aangeboden sinds
12 december 2025
Status
Beschikbaar
Aanvaarding
In overleg

Bouw

Soort woonhuis
Eengezinswoning, tussen woning, drive-in woning
Soort bouw
Bestaande bouw
Bouwjaar
1975
Soort dak
Zadeldak
Staat van onderhouden binnen
Goed
Staat van onderhouden buiten
Goed

Oppervlakte en inhoud

Perceeloppervlakte
182 m2
Inhoud van de woning
691 m3
Oppervlakte gebouwgebonden buitenruimten
27 m2
Oppervlakte overige inpandige ruimten
44 m2

Indeling

Aantal kamers
5
Aantal slaapkamers
4
Aantal woonlagen
4
Voorzieningen
Tuin, ventilatie, rookkanaal, dakraam, sauna

Buitenruimte

Balkon
Nee
Schuur/berging
Nee

Maandlasten berekenen

De maandlasten voor je woning bestaan uit meer dan alleen de hypotheeklasten. Hieronder vind je een overzicht van de bijkomende kosten en lasten. Zo weet je precies wat je huis per maand gaat kosten. En met de handige vergelijkers kun je ook nog eens snel de beste deals sluiten!

  • Kaart
  • Streetview