Verkocht

Van Limburg Stirumlaan 51 9602 GP Hoogezand

102m2
Wonen
5
Kamers
144m2
Perceel
1970
Bouwjaar
RUIM & LICHT | 4 SLAAPKAMERS | ACHTERTUIN MET ACHTEROM | OPTIONELE GARAGEBOX

Aan de Van Limburg Stirumlaan 51 woon je comfortabel en praktisch. Deze fijne eengezinswoning biedt ca. 102 m2 woonoppervlak, vier slaapkamers verdeeld over drie verdiepingen en een heerlijke achtertuin met achterom. De woning is op onderdelen gedateerd en daarmee een ideale kans om alles naar je eigen smaak te moderniseren, van keuken en sanitair tot (vloer)afwerking. Dankzij de doorzonwoonkamer is het beneden heerlijk licht. Boven is er volop ruimte voor slapen, werken en spelen.

Waarom je dit huis wilt zien!
- Te moderniseren woning: maak ‘m helemaal naar jullie eigen smaak
- Vier slaapkamers, waaronder een volwaardige zolderkamer met dakkapel via vaste trap
- Lichte doorzon-woonkamer met plek voor een royale eettafel
- Onderhoudsvriendelijke achtertuin mét achterom
- Garagebox om de hoek optioneel bij te kopen (separaat, niet inbegrepen in de vraagprijs)
- Groene straat, grenzend aan het Gorechtpark, met winkels, scholen, OV en uitvalswegen dichtbij
- Op maar een kwartiertje fietsen van het Zuidlaardermeer!

Indeling

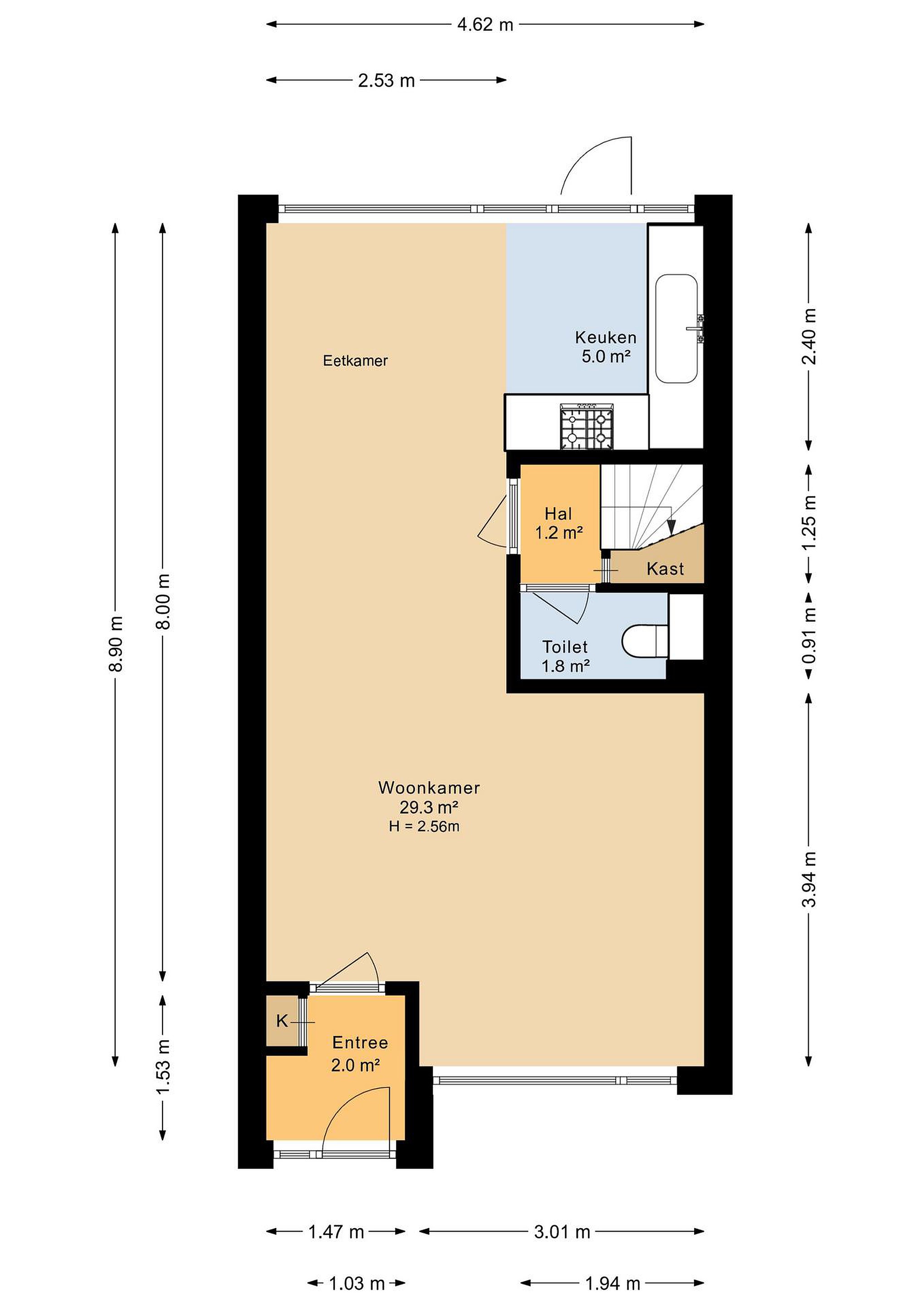
Begane grond
Entree/hal met meterkast en garderoberuimte. Doorloop naar de lichte woonkamer. Aan de tuinzijde de keuken met deur naar de achtertuin. Vanuit de tussenhal zijn zowel de trapopgang als het toilet bereikbaar.

Eerste verdieping
Overloop met drie slaapkamers en de badkamer met douche en wastafel. Extra praktisch: een tweede toilet op deze verdieping.

Tweede verdieping
Vaste trap naar de zolderverdieping met overloop/berging en vierde slaapkamer. Een volwaardige extra verdieping die je naar wens kunt inrichten.

Buiten
Een verzorgde voortuin en een fijne achtertuin met achterom. Handig voor (bak)fiets, tuinspullen en spelende kids.

Garagebox (optioneel)
Om de hoek gelegen en uitstekend bereikbaar. De garagebox wordt separaat aangeboden; deze kan optioneel bij de woning worden aangekocht. Ideaal voor auto/motor, hobby of extra opslag.

Goed om te weten
- Woonoppervlak: ca. 102 m2
- Perceel: ca. 144 m2
- Bouwjaar: 1970
- Energielabel C – met modernisering relatief eenvoudig te verbeteren
- Verwarming/warm water: HR-combiketel
- Mijnbouwschade en SNN subsidie nog (gedeeltelijk) te claimen
- Garagebox: separaat te koop; niet inbegrepen in de vraagprijs
- Aanvaarding: in overleg, kan snel
- Notariskeuze: Notariaat de Poel Hoogezand

Locatie
Prettig wonen met alles binnen handbereik. Grenzend aan het Gorechtpark en maar een kwartiertje fietsen naar de jachthaven, horeca en strand aan het Zuidlaardermeer. Supermarkt, basisscholen, sportvoorzieningen en OV vind je in de directe omgeving; met de auto zit je zo op de A7 richting Groningen.

Benieuwd?
Bekijk de foto’s en plattegronden voor een eerste indruk (en check ook de eigen website, via de QR code in de brochure!), maar vooral: kom het licht, de ruimte én de potentie zelf ervaren. We plannen graag een bezichtiging voor je in!

Lees meer

Verkoopgeschiedenis

Aangeboden sinds
6 oktober 2025
Verkoopdatum
27 november 2025
Looptijd
2 maanden

Kenmerken

Overdracht

Prijs per m2
€ 2.206
Aangeboden sinds
6 oktober 2025
Status
Verkocht
Aanvaarding
In overleg

Bouw

Soort woonhuis
Eengezinswoning, tussen woning
Soort bouw
Bestaande bouw
Bouwjaar
1970
Soort dak
Zadeldak
Staat van onderhouden binnen
Goed
Staat van onderhouden buiten
Goed

Oppervlakte en inhoud

Perceeloppervlakte
144 m2
Inhoud van de woning
354 m3
Oppervlakte externe bergruimte
8 m2

Indeling

Aantal kamers
5
Aantal slaapkamers
4
Aantal woonlagen
3
Voorzieningen
Tuin, schuur/berging

Buitenruimte

Balkon
Nee
Schuur/berging
Ja

Maandlasten berekenen

De maandlasten voor je woning bestaan uit meer dan alleen de hypotheeklasten. Hieronder vind je een overzicht van de bijkomende kosten en lasten. Zo weet je precies wat je huis per maand gaat kosten. En met de handige vergelijkers kun je ook nog eens snel de beste deals sluiten!

  • Kaart
  • Streetview