Verkocht OV

Roerdomplaan 103 7905 ED Hoogeveen

130m2
Wonen
6
Kamers
182m2
Perceel
1973
Bouwjaar
Ben je op zoek naar een moderne en instapklare woning met 4 slaapkamers en een garage? Bekijk dan eens deze prachtige woning aan Roerdomplaan in Hoogeveen..

In de geliefde woonwijk 'Wolfsbos', met parkeerruimte voor de deur, staat deze moderne, gasloze en keurig onderhouden tussenwoning. De woning is gebouwd in 1973 en is de afgelopen jaren geheel gemoderniseerd. Middels het installeren van elektrische (infrarood) vloerverwarming en een elektrische boiler is de woning gasloos gemaakt. Ook is de woning grotendeels voorzien van kunststof kozijnen met HR beglazing, is er sprake van vloer- muur- en dakisolatie en zijn er 12 zonnepanelen aanwezig, het energielabel is B.
Begane grond
Entree/hal met meterkast en toilet; Ruime doorzon woonkamer; Moderne open keuken (2022) voorzien van een inductie kookplaat, afzuigkap, Amerikaanse koel-/vriescombinatie, vaatwasser en een combimagnetron.

Eerste verdieping
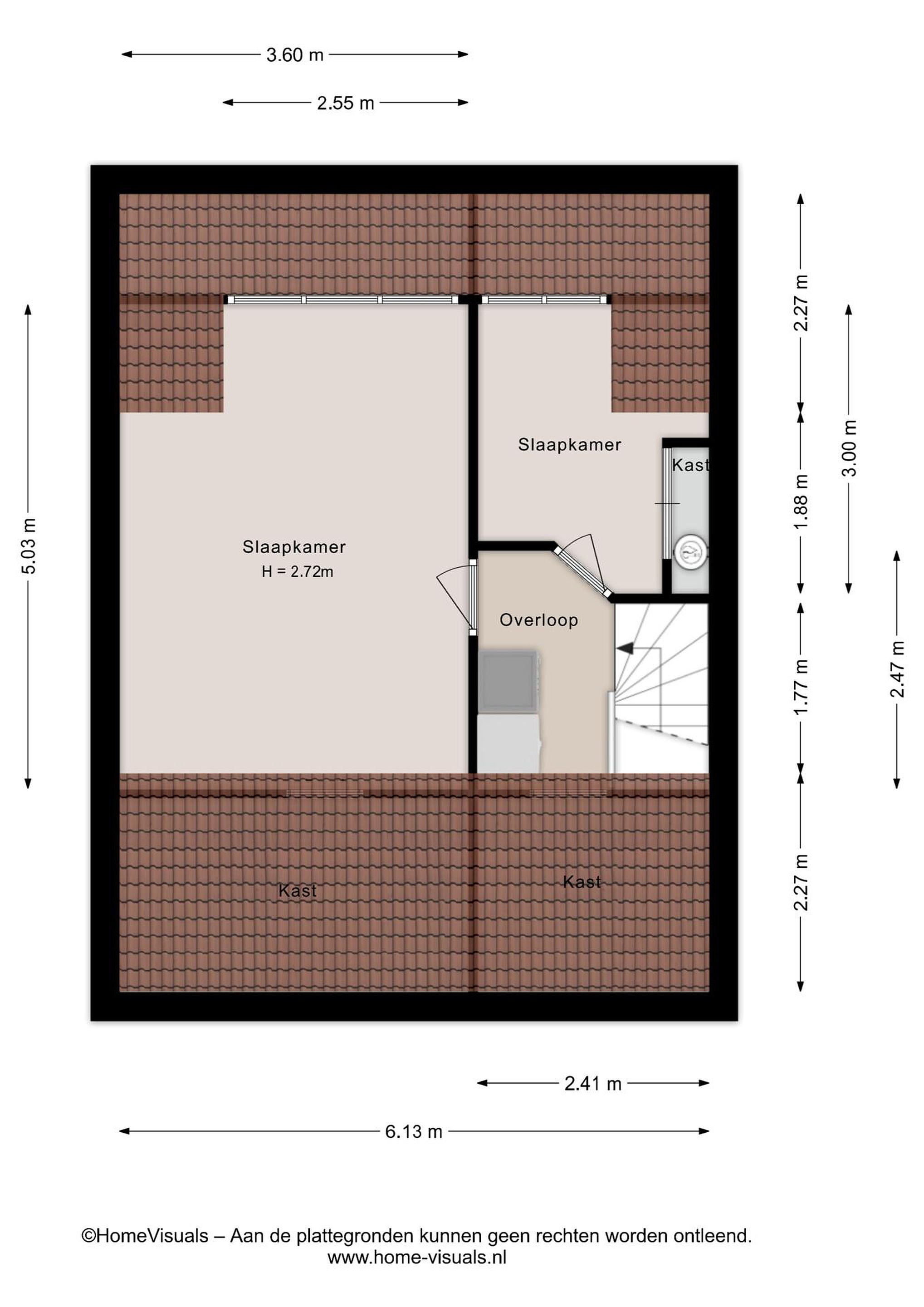
Overloop; 3 slaapkamers van ca. 15,7, 11,7 en 9,1 m2; Prachtige badkamer (2023) voorzien van een inloopdouche, 2e toilet en een dubbele wastafel met badmeubel.

Tweede verdieping
Middels een vaste trap is de zolderverdieping met dakkapel te bereiken. Hier bevinden zich een werkkamer, bergruimte en de 4e slaapkamer van ca. 18 m2.

Tuin
De achtertuin is gelegen op het Noorden. Achterin de tuin staat de ruime garage van ca. 29 m2.

Details
- Woonoppervlak 130 m2 en 450 m3 inhoud
- Energielabel B, volledig geïsoleerd
- 12 zonnepanelen á 415 Wp
- Gasloos, elektrische verwarming en boiler
- Grotendeels voorzien van kunststof kozijnen
- Moderne keuken en sanitair
- Ruime garage aanwezig

Heb je interesse in deze prachtige woning? Neem dan snel contact op om een bezichtiging in te plannen!

Lees meer

Kenmerken

Overdracht

Prijs per m2
€ 2.885
Aangeboden sinds
20 maart 2026
Status
Verkocht onder voorbehoud
Aanvaarding
In overleg

Bouw

Soort woonhuis
Eengezinswoning, tussen woning
Soort bouw
Bestaande bouw
Bouwjaar
1973
Soort dak
Zadeldak
Staat van onderhouden binnen
Goed
Staat van onderhouden buiten
Goed

Oppervlakte en inhoud

Perceeloppervlakte
182 m2
Inhoud van de woning
450 m3
Oppervlakte externe bergruimte
29 m2

Indeling

Aantal kamers
6
Aantal slaapkamers
5
Aantal woonlagen
3
Voorzieningen
Tuin, glasvezel

Buitenruimte

Balkon
Nee
Schuur/berging
Nee

Maandlasten berekenen

De maandlasten voor je woning bestaan uit meer dan alleen de hypotheeklasten. Hieronder vind je een overzicht van de bijkomende kosten en lasten. Zo weet je precies wat je huis per maand gaat kosten. En met de handige vergelijkers kun je ook nog eens snel de beste deals sluiten!

  • Kaart
  • Streetview