Schoonenburgsingel 158 2135 GE Hoofddorp

116m2
Wonen
5
Kamers
132m2
Perceel
1995
Bouwjaar
Deze bijzondere hoekwoning heeft aan de voorzijde moderne, antracietkleurige kozijnen met nieuw HR++ glas (2025). De woning heeft ook een nieuwe Cv-ketel, 8 Zonnepanelen en maar liefst 4 slaapkamers. De woning is gelegen aan de Schoonenburgsingel 158, in de ruim opgezette wijk Toolenburg in Hoofddorp. Dit in 1995 gebouwde woonhuis heeft een woonoppervlakte van 116,5 m2 en bevindt zich op een perceel van 132 m2. Met energielabel A en 8 zonnepanelen kunnen we gerust spreken van een energiezuinige woning.

Via de entree komt men binnen in een verrassend lichte en prettig ingedeelde woonkamer met royale raampartij. Hier is ook het trapportaal met toiletruimte. De open keuken aan de achterzijde is compleet met gaskookstel, oven, afzuigkap, combimagnetron en vaatwasser. Ook hier veel lichtinval door de grote ramen met breed uitzicht over de eigen achtertuin. En een prettige extra: een ruime bijkeuken met de koel/vriescombinatie, inbouwkasten en toegang tot de achtertuin.
Op de verdieping zijn 3 ruime slaapkamers. De hoofdslaapkamer heeft een grote inbouwkast en aansluiting voor TV. De beide slaapkamers aan de achterzijde hebben een knusse schuine wand met dakraam.
De goed ingedeelde badkamer heeft een ligbad, aparte douche, wastafelmeubel, designradiator en wandcloset. Ook hier weer veel licht door de 2 ramen.
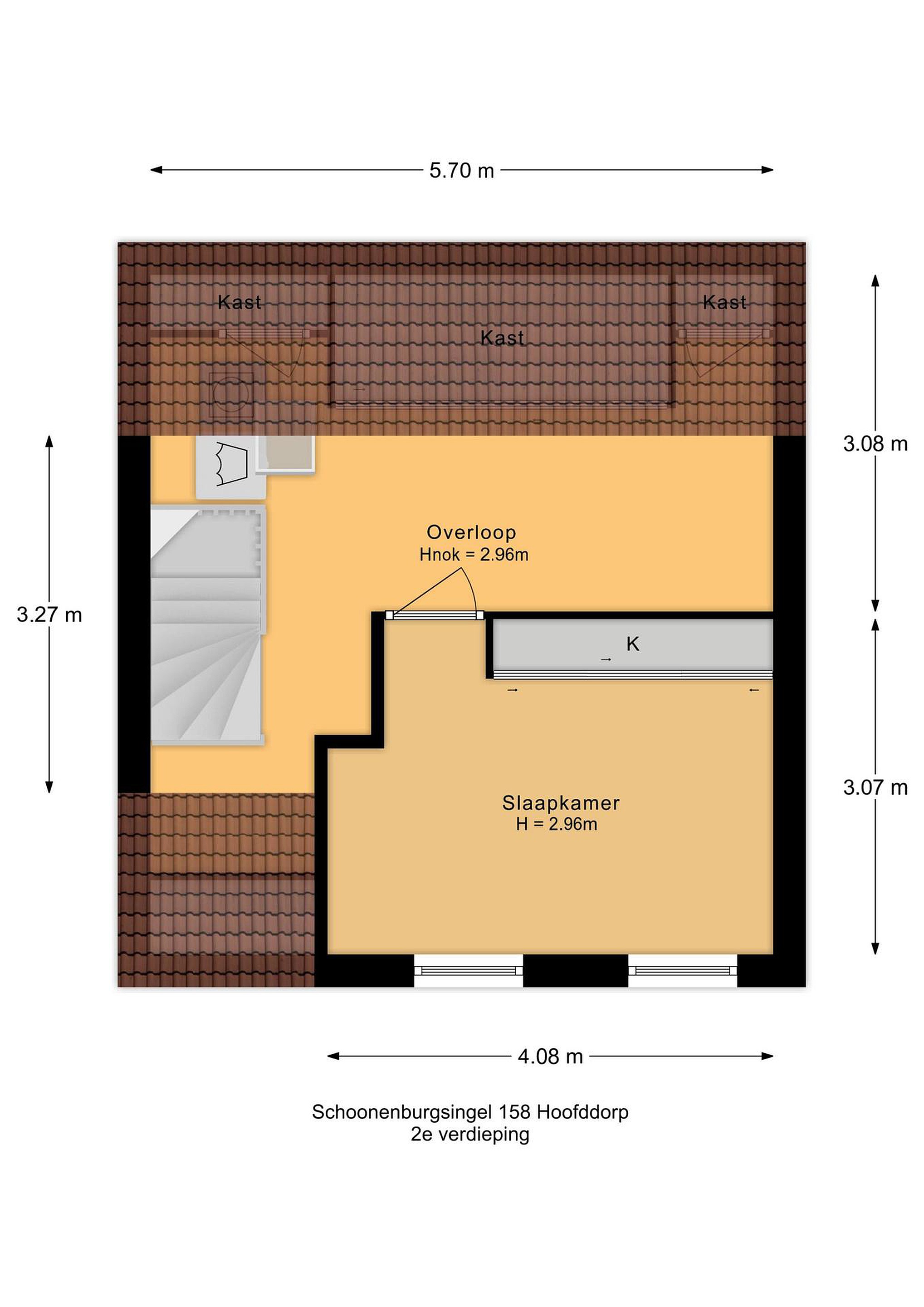
Op de 2e verdieping een grote overloop met ingebouwde bergruimte en de wasmachine/droger- en Cv opstelling. Hier is ook de 4e slaapkamer met grote garderobekast gelegen.
Op het dak aan de achterzijde zijn 8 zonnepanelen geplaatst.
In de achtertuin met handige achterom staat een ruime houten berging voor fietsen en ruimte voor meer.

De woning ligt zeer gunstig ten opzichte van de uitvalswegen en alle voorzieningen.
Parkeren is geen probleem en er zijn veel faciliteiten in de buurt. Het centrum van Hoofddorp en een treinstation op fietsafstand en op loopafstand een supermarkt en de gezellige Toolenburgerplas met alle recreatiemogelijkheden en restaurantjes.

Wilt u deze lichte, ruime en prettig gelegen hoekwoning met voor- en achtertuin bezichtigen, belt u dan gerust voor een vrijblijvende afspraak.
Begane grond
-Entree met meterkast
-Royale lichte woonkamer
-Portaal met toiletruimte en trapopgang
-Open keuken compleet met gaskookstel, oven, combimagnetron, afzuigkap, vaatwasser
-Bijkeuken met koel/vriescombinatie en inbouwkasten en toegang tot achtertuin


Eerste verdieping
- Overloop met trapopgang naar de zolder
- Hoofdslaapkamer met grote garderobekast en tv-aansluiting
- 2 ruime slaapkamers aan de achterzijde
- Badkamer met ligbad, wastafelmeubel, designradiator, aparte douche, wandcloset

Tweede verdieping
- 4e slaapkamer met grote garderobekast
- Overloop met ingebouwde bergruimte
- Wasmachine/droger opstelling
- Mechanisch afzuigsysteem unit
- Cv Intergas 2025

Tuin
In de voortuin met heg en beplanting leidt een betegeld pad naar de voordeur.
In de betegelde achtertuin met verhoogd bloembed ligt een ruime houten berging.

Details
-Nieuw HR++ glas aan de voorzijde
-Nieuwe CV ketel
-Ruime bijkeuken
-Zonnepanelen

Lees meer

Kenmerken

Overdracht

Prijs per m2
€ 4.592
Aangeboden sinds
30 januari 2026
Status
Beschikbaar
Aanvaarding
In overleg

Bouw

Soort woonhuis
Eengezinswoning, hoek woning
Soort bouw
Bestaande bouw
Bouwjaar
1995
Soort dak
Zadeldak
Staat van onderhouden binnen
Goed
Staat van onderhouden buiten
Goed

Oppervlakte en inhoud

Perceeloppervlakte
132 m2
Inhoud van de woning
414 m3
Oppervlakte externe bergruimte
6 m2

Indeling

Aantal kamers
5
Aantal slaapkamers
4
Aantal woonlagen
3
Voorzieningen
Tuin, schuur/berging, ventilatie, dakraam

Buitenruimte

Balkon
Nee
Schuur/berging
Ja

Maandlasten berekenen

De maandlasten voor je woning bestaan uit meer dan alleen de hypotheeklasten. Hieronder vind je een overzicht van de bijkomende kosten en lasten. Zo weet je precies wat je huis per maand gaat kosten. En met de handige vergelijkers kun je ook nog eens snel de beste deals sluiten!

  • Kaart
  • Streetview