Verkocht OV

Pieter Verweijweg 15 3151 KA Hoek van Holland

142m2
Wonen
6
Kamers
329m2
Perceel
1995
Bouwjaar
Gelegen aan de ‘Kanovijver’ en vrij uitzicht aan zowel de voor-als achterzijde, een groene en kindvriendelijke woonwijk op loopafstand van basisschool De Driemaster, nabij het bos en aan het water, een keurig onderhouden 6-kamer twee-onder-één-kapwoning, op slechts tien minuten fietsafstand van het strand.

De woning heeft een ruime woonkamer, half open keuken en een grote dakkapel. De royale tuin ligt aan het water en heeft een heerlijke tuinkamer met berging en terrassen aan het water. De 1e verdieping heeft 3 slaapkamers en een moderne badkamer. De 2e verdieping heeft naast de 4e en 5e slaapkamer een ruime overloop met wasruimte, opstelplaats CV-ketel en vliering. Parkeergelegenheid op eigen terrein waaronder een garage en een achterom. Tevens zijn er 6 zonnepanelen.

Indeling:
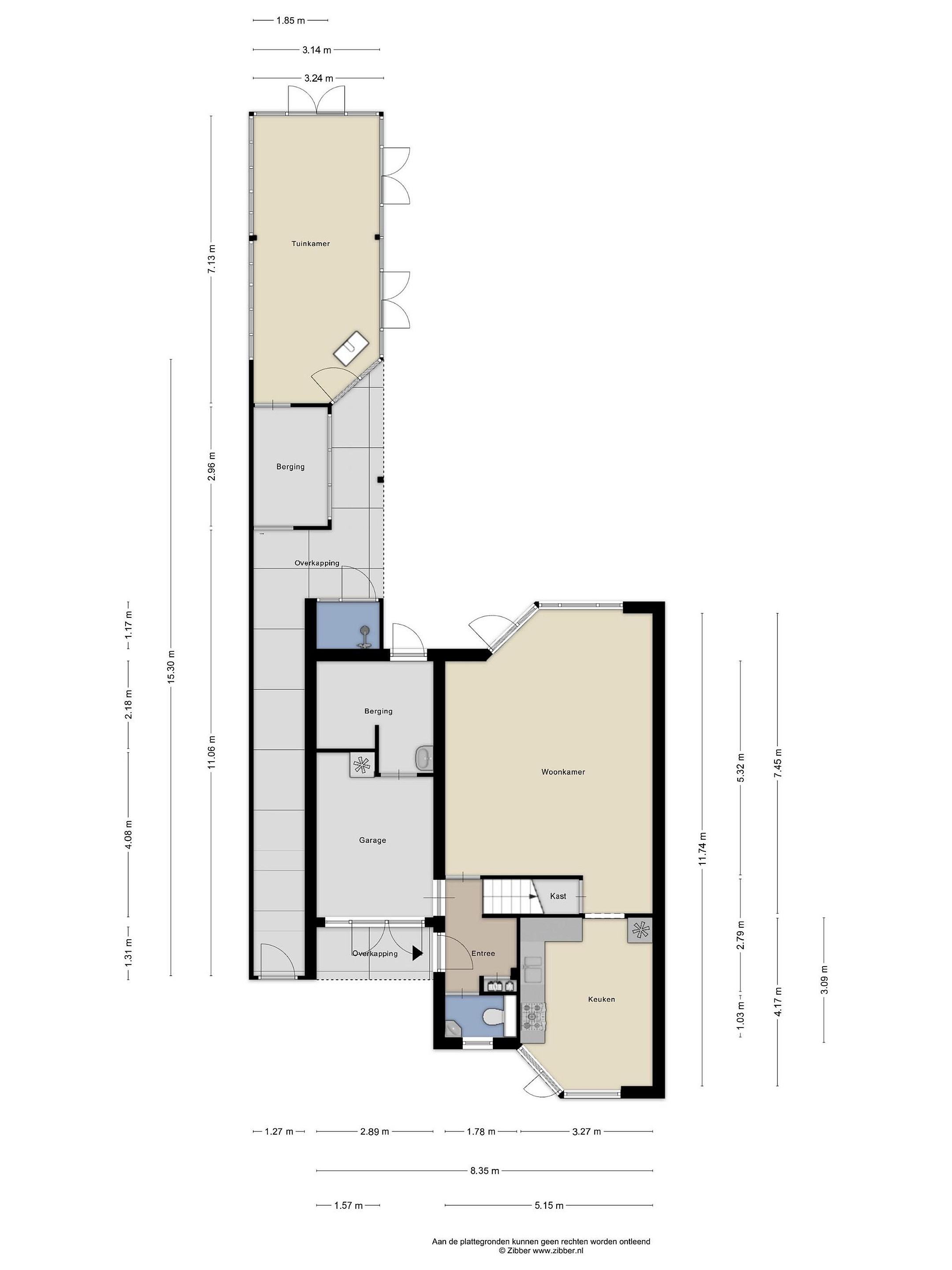
Begane grond: entree, hal met meterkast, toilet met een fonteintje, sport/hobbyruimte in garage met een extra bergruimte en een deur naar de tuin, ruime woonkamer met een loopdeur naar de tuin, overkapping, buitendouche, berging, vrijstaande stenen berging en een royale tuinkamer verwarmd middels een houtkachel, druiven in de kas en meerdere openslaande deuren, half open keuken met diverse inbouwapparatuur en een deur naar de diepe voortuin.

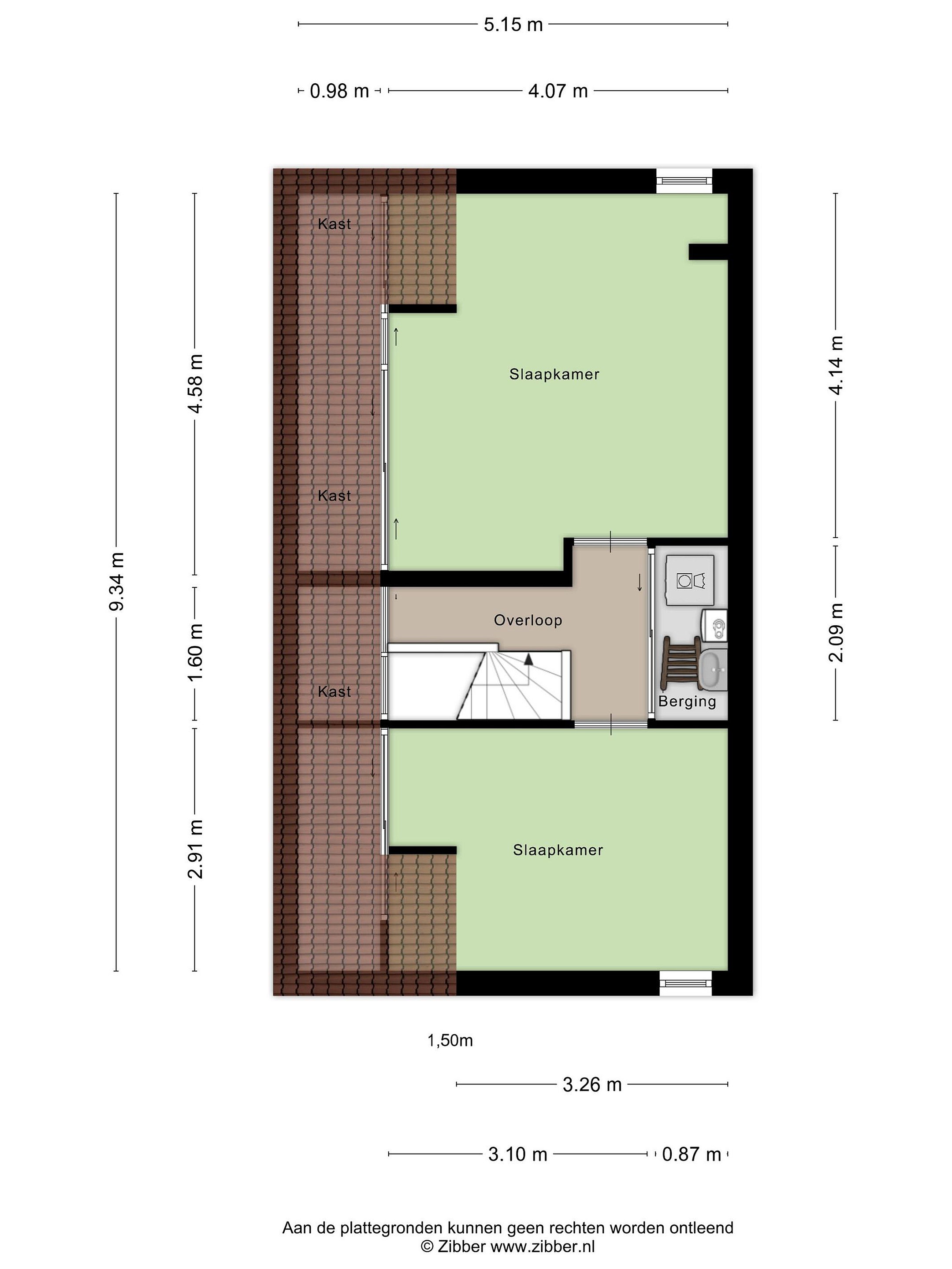
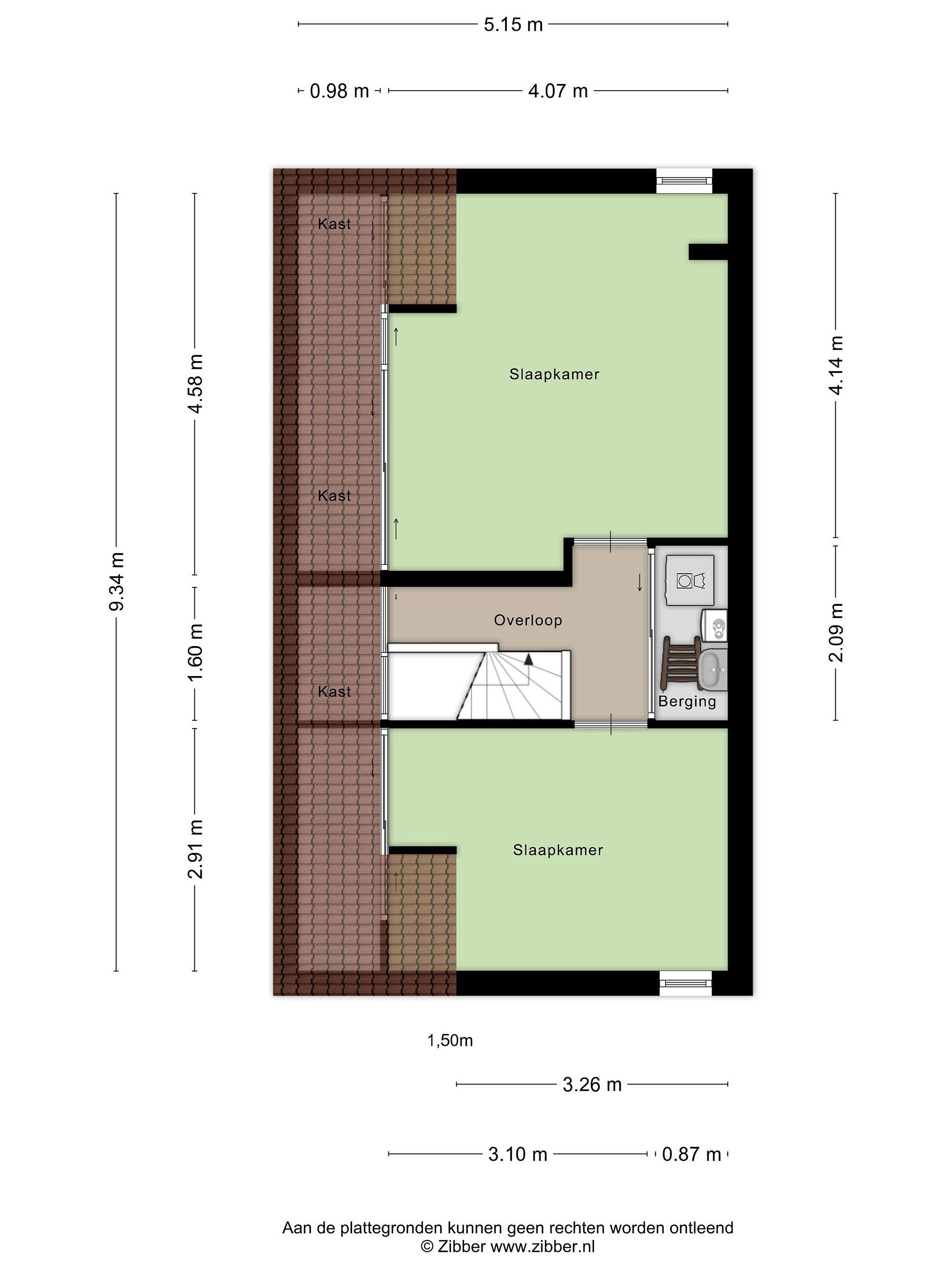
1e verdieping: ruime overloop, bergkast, 3 ruime slaapkamers met vaste kasten en 2 slaapkamers met een balkon, moderne badkamer met een dubbel wastafelmeubel, toilet en douche.

2e verdieping: overloop, berging met opstelplaats CV-ketel, wasmachine/droger en 2 ruime slaapkamers.

Zolder: bergruimte

De woning is volledig geïsoleerd, voorzien van hardhouten kozijnen met dubbel glas.
Details
Enkele kenmerken:
Kadastrale aanduiding : Hoek van Holland sectie B nummer 4344
Grootte perceel: : 329 m2
Juridische status : Erfpacht t/m 24-04-2093
Canon afgekocht t/m 24-04-2044 (gunstige voorwaarden voor laatste 49 jaar afkoop canon)

Navraag bij Gemeente Rotterdam geeft aan:
Voor een koper is het mogelijk om de erfpachtcanon aanvullend af te kopen voor de laatste 49 jaar (tot 2093) voor een een bedrag van circa € 20.000,- ,

Bouwjaar : Ca. 1995
Aantal kamers : 6 kamers (incl. woonkamer)
Parkeren : 2 tot 3 parkeerplekken op eigen oprit
  
NEN 2580 maatvoering : 
Gebruiksoppervlakte wonen 142 m2
Interne bergruimte 21 m2
Gebouw gebonden buitenruimte 33 m2
Externe bergruimte 27 m2
Inhoud van de woning excl. berging 575 m3
    
Gasverbruik 1.104 m3
Elektraverbruik  2.138 kWh
Opwek zonnepanelen 1.668 kWh
Gesaldeerd verbruik per jaar 470 kWh
Dit is een indicatie volgens huidige bewoning
  
CV ketel : Intergas 2024
  
Onderhoud binnen : Goed
Onderhoud buiten : Goed
  
Oplevering : In overleg
  
Bijzonderheden : Aan het water, nabij het bos. De beschoeiing is in 2023 vernieuwd, het schilderwerk is in 2024 uitgevoerd en het dak van de kas is in 2020 vervangen.

Lees meer

Kenmerken

Overdracht

Prijs per m2
€ 5.458
Aangeboden sinds
6 maart 2026
Status
Verkocht onder voorbehoud
Aanvaarding
In overleg

Bouw

Soort woonhuis
Eengezinswoning, twee-onder-een-kap woning
Soort bouw
Bestaande bouw
Bouwjaar
1995
Soort dak
Zadeldak
Staat van onderhouden binnen
Goed
Staat van onderhouden buiten
Goed

Oppervlakte en inhoud

Perceeloppervlakte
329 m2
Inhoud van de woning
576 m3
Oppervlakte externe bergruimte
27 m2
Oppervlakte gebouwgebonden buitenruimten
33 m2
Oppervlakte overige inpandige ruimten
21 m2

Indeling

Aantal kamers
6
Aantal slaapkamers
5
Aantal woonlagen
4
Voorzieningen
Tuin, balkon, schuur/berging, buitenzonwering, airconditioning

Buitenruimte

Balkon
Ja
Schuur/berging
Ja

Maandlasten berekenen

De maandlasten voor je woning bestaan uit meer dan alleen de hypotheeklasten. Hieronder vind je een overzicht van de bijkomende kosten en lasten. Zo weet je precies wat je huis per maand gaat kosten. En met de handige vergelijkers kun je ook nog eens snel de beste deals sluiten!

  • Kaart
  • Streetview