Verkocht

Orteliuspad 68 3151 PT Hoek van Holland

153m2
Wonen
6
Kamers
195m2
Perceel
1986
Bouwjaar
Richtprijs: € 525.000,- k.k.

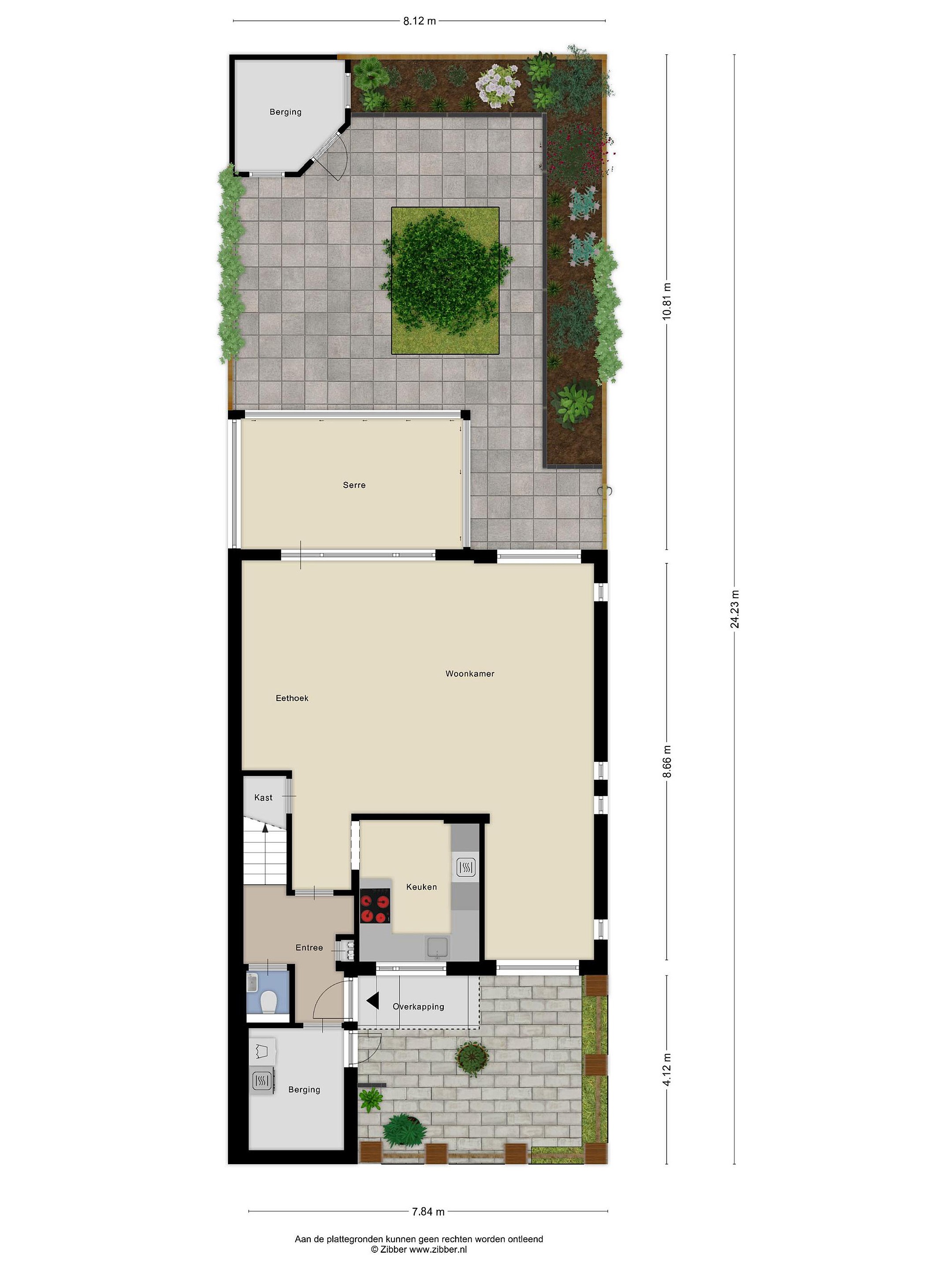
Gelegen in een kindvriendelijke wijk, een instapklare 6-kamer hoekwoning met een zeer ruime en lichte woonkamer door de raampartijen en een extra zitgedeelte in de aanbouw over de gehele zijgevel en afgewerkt met een keurige visgraatvloer op de begane grond, via de serre toegang naar de zonnig gelegen achtertuin op het zuidoosten, vrijstaande houten berging en achterom. De 1e verdieping heeft 4 ruime slaapkamers en een moderne badkamer. De 2e verdieping heeft een 5e slaapkamer met een dakraam, bergkamer met bergruimte en opstelplaats technische installaties.

Indeling:
Begane grond: entree, bijkeuken, ruime hal met meterkast, toilet met een fonteintje, trapkast, ruime en lichte woonkamer, keuken met diverse inbouwapparatuur, serre met schuifpui naar de diepe achtertuin (Z/O) met vrijstaande houten berging en achterom.

1e verdieping: overloop, 4 ruime slaapkamers waarvan één met een vaste kast, moderne badkamer met een inloopdouche, wastafelmeubel, design radiator en urinoir.

2e verdieping: ruime 5e slaapkamer met een dakraam en een schuifdeur naar de bergkamer met bergruimte in de knieschotten en opstelplaats CV-ketel en mechanische ventilatiebox.

De woning is volledig geïsoleerd, voorzien van houten kozijnen met dubbel glas. Tevens zijn er 12 zonnepanelen.
Details
Enkele kenmerken:
Kadastrale aanduiding : Hoek van Holland sectie B nummer 3731
Grootte perceel: : 195 m2
Juridische status : Erfpacht t/m 31-03-2085,
Canon afgekocht t/m 16-02-2036
Bouwjaar : Ca. 1986
Aantal kamers : 6 kamers (incl. woonkamer)
Parkeren : Voldoende in omgeving
  
NEN 2580 maatvoering : 
Gebruiksoppervlakte wonen 153 m2
Interne bergruimte 0 m2
Gebouw gebonden buitenruimte 17 m2
Externe bergruimte 5 m2
Inhoud van de woning excl. berging 543 m3
    
Gasverbruik 360 m3
Elektraverbruik  1.134 kWh
Opwek zonnepanelen 3.626 kWh
Gesaldeerd verbruik per jaar -2.492 kWh
Dit is een indicatie volgens huidige bewoning
  
CV ketel : Remeha Avanta 2024
  
Onderhoud binnen : Goed
Onderhoud buiten : Goed
  
Oplevering : In overleg, zo vlot als mogelijk
  
Bijzonderheden : Royale tuin met serre, CV-ketel uit 2024, een nieuwe groepenkast (2025) en 12 zonnepanelen.

Lees meer

Verkoopgeschiedenis

Aangeboden sinds
14 januari 2026
Verkoopdatum
17 maart 2026
Looptijd
2 maanden

Kenmerken

Overdracht

Prijs per m2
€ 3.431
Aangeboden sinds
14 januari 2026
Status
Verkocht
Aanvaarding
In overleg

Bouw

Soort woonhuis
Eengezinswoning, hoek woning
Soort bouw
Bestaande bouw
Bouwjaar
1986
Soort dak
Zadeldak
Staat van onderhouden binnen
Goed
Staat van onderhouden buiten
Goed

Oppervlakte en inhoud

Perceeloppervlakte
195 m2
Inhoud van de woning
543 m3
Oppervlakte externe bergruimte
5 m2
Oppervlakte gebouwgebonden buitenruimten
17 m2

Indeling

Aantal kamers
6
Aantal slaapkamers
5
Aantal woonlagen
3
Voorzieningen
Tuin, schuur/berging, dakraam

Buitenruimte

Balkon
Nee
Schuur/berging
Ja

Maandlasten berekenen

De maandlasten voor je woning bestaan uit meer dan alleen de hypotheeklasten. Hieronder vind je een overzicht van de bijkomende kosten en lasten. Zo weet je precies wat je huis per maand gaat kosten. En met de handige vergelijkers kun je ook nog eens snel de beste deals sluiten!

  • Kaart
  • Streetview