Verkocht

Adriaan van der Kloosterstraat 62 3151 JB Hoek van Holland

106m2
Wonen
4
Kamers
119m2
Perceel
1989
Bouwjaar
Richtprijs: € 490.000,- k.k.

Gelegen in een kindvriendelijke en rustige wijk, een moderne en instapklare 4-kamer kwadrantwoning op 119 m2 eigen grond. De woning heeft een ruime woonkamer met een luxe open keuken, afgesloten bijkeuken met wasruimte, toegang door middel van een schuifpui en loopdeur naar de zonnige gelegen tuin op het westen met een berging en achterom. De 1e verdieping heeft 3 ruime slaapkamers waarvan één toegang naar een zonnig en royaal dakterras op het zuidwesten, 2e toilet en een luxe badkamer (2023). Tevens is de woning voorzien van 9 zonnepanelen.

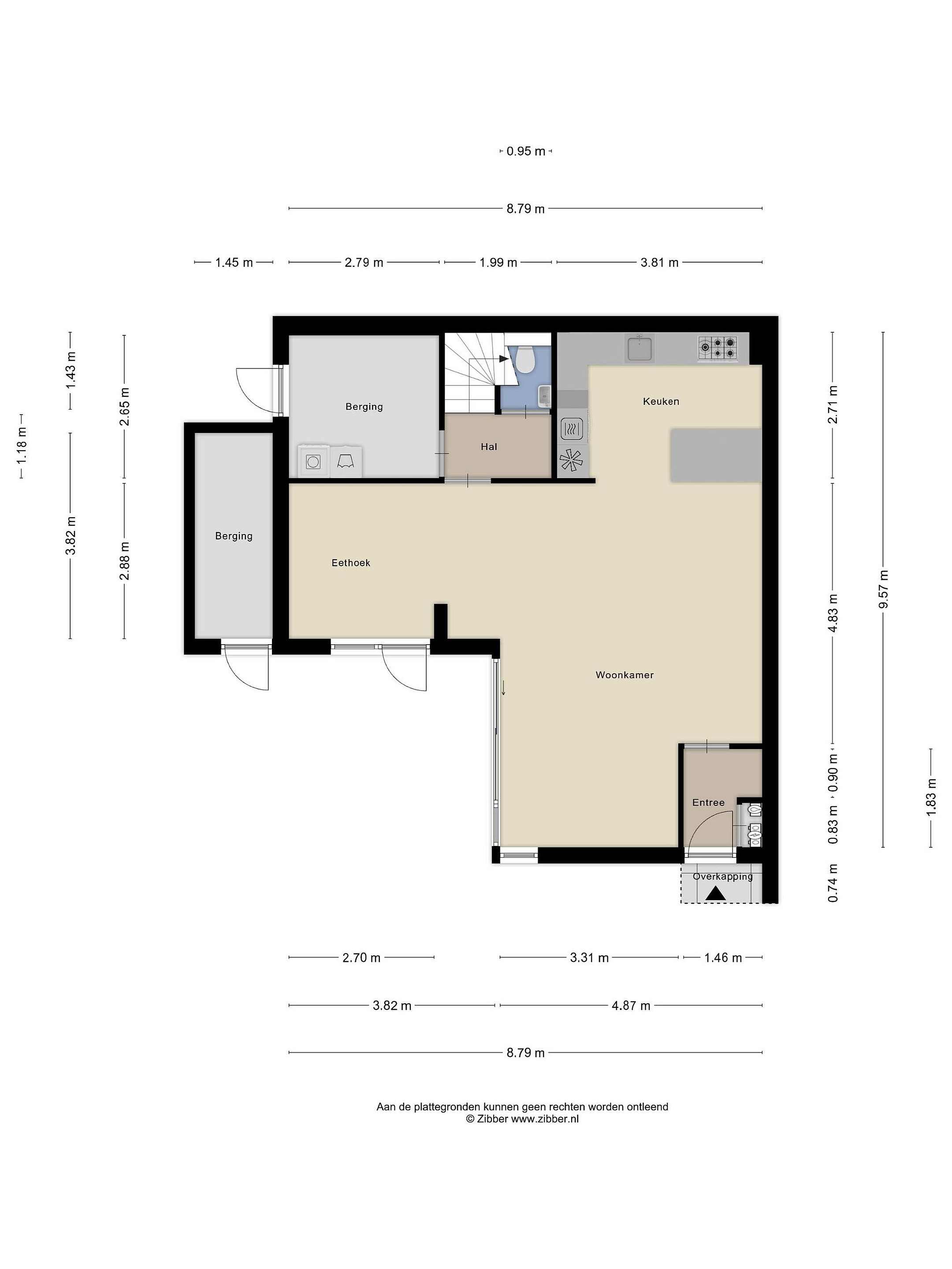
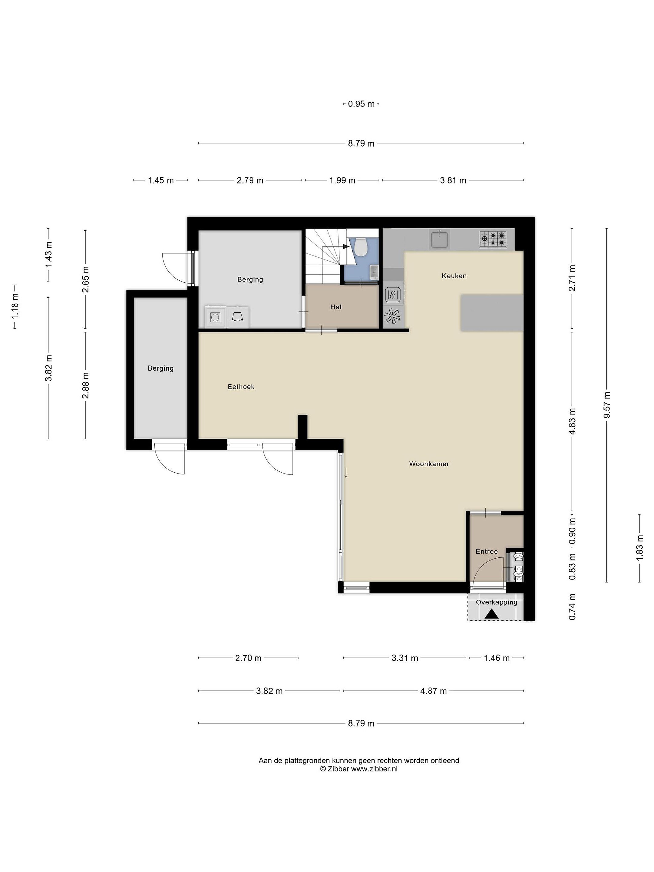
Indeling:
Begane grond: entree, hal met meterkast, ruime woonkamer met vloerverwarming (bijverwarming), luxe open keuken met een schiereiland en diverse inbouwapparaten, via een loopdeur en schuifpui toegang tot de achtertuin (W) met een aanpandige stenen berging en achterom. Toilet met een fonteintje, toegang via de hal naar de inpandige bijkeuken met wasruimte en naar de 1e verdieping.

1e verdieping: ruime overloop, 3 ruime slaapkamers waarvan één met een bergvliering en opstelplaats CV-ketel, en een ruim en zonnig gelegen dakterras (Z/W), luxe badkamer (2023) met een inloopdouche, ligbad en wastafelmeubel.

Bergvliering: opstelplaats CV-ketel en bergruimte.

De woning is volledig geïsoleerd, voorzien van houten kozijnen met dubbel glas.
Details
Enkele kenmerken:
Kadastrale aanduiding : Hoek van Holland sectie B nummer 3951
Grootte perceel: : 119 m2
Juridische status : Eigen grond
Bouwjaar : Ca. 1989
Aantal kamers : 4 kamers (incl. woonkamer)
Parkeren : Voldoende in omgeving
  
NEN 2580 maatvoering : 
Gebruiksoppervlakte wonen 106 m2
Interne bergruimte 13 m2
Gebouw gebonden buitenruimte 18 m2
Externe bergruimte 0 m2
Inhoud van de woning excl. berging 423 m3
    
Gasverbruik 1.505 m3
Elektraverbruik (exclusief teruglevering 9 zonnepanelen, installatiejaar 2026) 4.106 kWh
Opwek zonnepanelen nog niet bekend, recent geplaatst
Dit is een indicatie volgens huidige bewoning
  
CV ketel : Remeha Avanta 35c 2015
  
Onderhoud binnen : Goed
Onderhoud buiten : Goed
  
Oplevering : In overleg, voorkeur gaat uit naar 1 juni 2026
  
Bijzonderheden : Instapklaar, op eigen grond, vloerverwarming (als bijverwarming), plat dak onder het terras vernieuwd in 2018, dakterras op het zuidwesten, tuin op het westen, mogelijkheid tot een tweede dakterras vanuit één slaapkamer, voorzien van 9 zonnepanelen (2026).

Lees meer

Verkoopgeschiedenis

Aangeboden sinds
17 februari 2026
Verkoopdatum
23 maart 2026
Looptijd
één maand

Kenmerken

Overdracht

Prijs per m2
€ 4.623
Aangeboden sinds
17 februari 2026
Status
Verkocht
Aanvaarding
In overleg

Bouw

Soort woonhuis
Eengezinswoning, tussen woning, kwadrantwoning
Soort bouw
Bestaande bouw
Bouwjaar
1989
Soort dak
Samengesteld dak
Staat van onderhouden binnen
Goed
Staat van onderhouden buiten
Goed

Oppervlakte en inhoud

Perceeloppervlakte
119 m2
Inhoud van de woning
423 m3
Oppervlakte gebouwgebonden buitenruimten
18 m2
Oppervlakte overige inpandige ruimten
13 m2

Indeling

Aantal kamers
4
Aantal slaapkamers
3
Aantal woonlagen
3
Voorzieningen
Tuin, schuur/berging, ventilatie

Buitenruimte

Balkon
Nee
Schuur/berging
Ja

Maandlasten berekenen

De maandlasten voor je woning bestaan uit meer dan alleen de hypotheeklasten. Hieronder vind je een overzicht van de bijkomende kosten en lasten. Zo weet je precies wat je huis per maand gaat kosten. En met de handige vergelijkers kun je ook nog eens snel de beste deals sluiten!

  • Kaart
  • Streetview