Verkocht OV

Twekkelerweg 196 7553 LR Hengelo

90m2
Wonen
3
Kamers
179m2
Perceel
1902
Bouwjaar
Knus huis met verrassende gescheiden werk/verblijfsruimte!: Twekkelerweg 196, Hengelo.
Ben je op zoek naar een knus huis op een fijne plek in Hengelo? Heb je behoefte aan extra ruimte voor bijvoorbeeld werk aan huis of gewoon lekker hobbyen? Lees snel verder, want deze woning zou zomaar precies kunnen zijn wat je zoekt!
Ruimte om te leven én te genieten
Met een perceel van 179 m2 en een achtertuin van ruim 100 m2 kun je hier heerlijk genieten. Niet alleen kun je in de tuin heerlijk onder de overkapping zitten met vrienden, of barbecueën tot in de late uurtjes, er is ook nog eens een vrijstaande werk-/verblijfsruimte achterin de tuin. Ideaal als je thuis wilt werken, behoefte hebt aan een hobbyruimte of gewoon een plekje zoekt om te chillen zonder gestoord te worden.
Uniek buitenverblijf met eindeloze mogelijkheden
Deze extra ruimte achter in de tuin is écht een dikke plus. Met openslaande deuren naar de overkapping maak je op een regenachtige dag gewoon je eigen buitenzitje. De ruimte heeft een toiletruimte met wandcloset en fonteintje en een vaste trap naar de praktische vliering. Naast deze verblijfsruimte gelegen vind je nog een stenen berging – voor fietsen, gereedschap of gewoon al die spullen die je liever uit het zicht hebt.
Binnen vind je precies wat je verwacht van een knus woonhuis met een knipoog naar modern comfort. De begane grond is in 2025 voorzien van splinternieuwe kunststof kozijnen met HR-glas. Dat betekent lekker licht en meteen ook een stukje extra comfort. De indeling is praktisch, waardoor elke vierkante meter wordt benut. De woonkeuken biedt genoeg ruimte om lekker te koken.
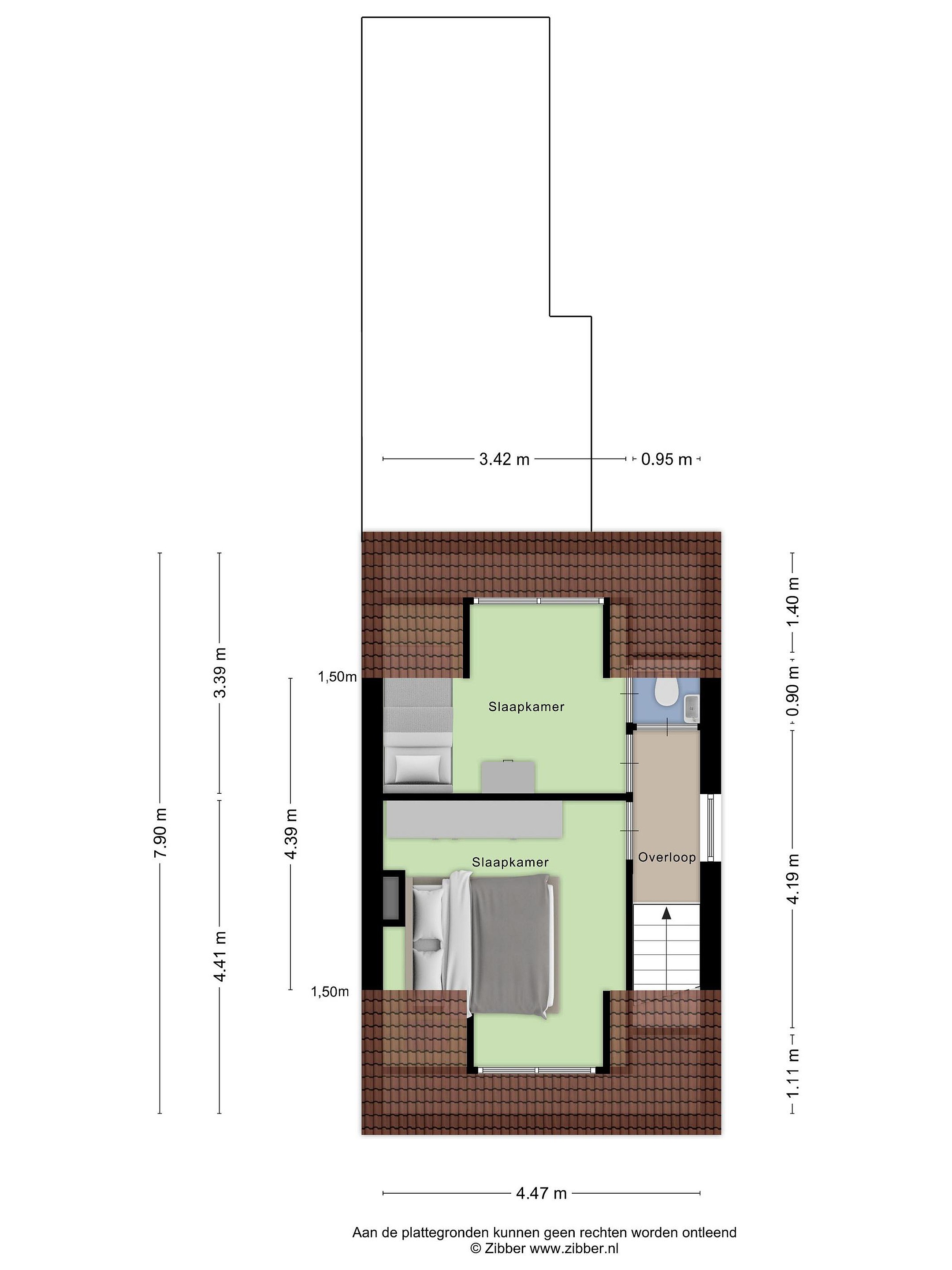
Boven heb je 2 slaapkamers die stuk voor stuk licht en ruim zijn door de plaatsing van dakkapellen. Dankzij het bouwjaar tref je die gezellige sfeer aan, gecombineerd met een praktische indeling.
Op de overloop is de 2e toiletruimte met wandcloset en fonteintje.
In Berflo Es Zuid vind je scholen, winkels, het stadion en uitvalswegen. Zin in een lekkere wandeling? Het buitengebied is op steenworp afstand, net als het bruisende centrum van Hengelo voor een terrasje of een avondje uit.
Nieuwsgierig? Plan gerust een bezichtiging in.
Begane grond
Begane grond
Hal met meterkast en trapopgang.
Toegang tot de knusse woonkamer, vervolgens de keuken met inbouwapparatuur en in het verlengde de bijkeuken met wasmachine- en drogeropstelling, waaraan de stookruimte, toiletruimte met wandcloset en fonteintje en vervolgens de badkamer met wastafel, ligbad en separate douche. Tevens geeft het toegang tot de tuin.

Eerste verdieping
Via vaste trap te bereiken eerste verdieping met overloop waaraan 2 slaapkamers en de toiletruimte met wandcloset en fonteintje.

Tuin
Via de poort aan de zij-ingang kom je in de tuin achter.
De tuin is onderhoudsarm.

Details
Knusse 2 onder 1 kap woning met gescheiden verblijf/werkruimte en overkapping (2004);
Stenen Berging (2004);
Werk/verblijfsruimte met eigen toilet en vaste trap naar vliering;
Inhoud 368 m3;
Gehele woning nieuwe kunststof kozijnen met HR glas (2025);
Woonkeuken met inbouwapparatuur;
Bijkeuken met wasmachine- en drogeraansluiting;
Badkamer met ligbad en separate douche;
Begane grond vloerverwarming:
Groepenkast waarin 7 groepen, een kookgroep en 2 aardlekschakelaars;
Eerste verdieping 2 slaapkamers en een toilet met fonteintje;
Zinken goten achterzijde woning vernieuwd (2025);
Tuin onderhoudsarm met veel privacy;
Op korte afstand van het buitengebied;
Stadion op loopafstand;
Bouwkundig rapport aanwezig.

Ouderdomsclausule is van toepassing.

In de koopakte zal een waarborgsom / bankgarantie van 10% van de koopprijs worden opgenomen.
De maten zijn indicatief. Groottes en oppervlaktes zijn berekend met behulp van een GeoSLAM scanner, uitgevoerd door een extern buro, gebaseerd op de NEN 2580. Bovenstaande objectinformatie en bijlagen zijn met de groots mogelijke zorgvuldigheid samengesteld. Toch bestaat er de mogelijkheid dat er fouten en /of onvolledigheden in voorkomen. Voor de juistheid hiervan kan zowel door verkopers als door VBO Twentse Woningmakelaar geen aansprakelijkheid worden aanvaard en aan de vermelde gegevens geen rechten worden ontleend. Indien bepaalde informatie voor u van wezenlijk belang is dan adviseren wij u deze op juistheid te controleren. Verder mag bovenstaande informatie niet worden beschouwd als aanbieding of offerte.
Alle aan u verstrekte informatie is bedoeld als een uitnodiging om in onderhandeling te treden en dient derhalve te worden gezien als vrijblijvende aanbieding. Een bieding die gelijk staat met de vraagprijs, doet niet direct een koopovereenkomst tot stand komen. Verkoper heeft te allen tijde het recht van gunning. De koop is pas definitief wanneer beide partijen de koopovereenkomst getekend hebben.

Keurmerk Eerlijk Bieden
Twentse Woningmakelaar beschikt over het keurmerk Eerlijk Bieden.
Eerlijk Bieden is het eerste keurmerk voor makelaars dat een eerlijk biedproces garandeert aan zowel de verkoper als de woningzoeker.
AVG OK-Vignet.
Wij voldoen aan specifieke gestelde voorwaarden welke getoetst is door een onafhankelijke instantie en gaan zorgvuldig met jouw persoonsgegevens om.




Lees meer

Kenmerken

Overdracht

Prijs per m2
€ 3.056
Aangeboden sinds
20 september 2025
Status
Verkocht onder voorbehoud
Aanvaarding
In overleg

Bouw

Soort woonhuis
Eengezinswoning, twee-onder-een-kap woning
Soort bouw
Bestaande bouw
Bouwjaar
1902
Soort dak
Tentdak
Staat van onderhouden binnen
Goed
Staat van onderhouden buiten
Goed

Oppervlakte en inhoud

Perceeloppervlakte
179 m2
Inhoud van de woning
368 m3
Oppervlakte gebouwgebonden buitenruimten
6 m2
Oppervlakte overige inpandige ruimten
14 m2

Indeling

Aantal kamers
3
Aantal slaapkamers
2
Aantal woonlagen
2
Voorzieningen
Tuin, schuur/berging, ventilatie, glasvezel, dakraam

Buitenruimte

Balkon
Nee
Schuur/berging
Ja

Maandlasten berekenen

De maandlasten voor je woning bestaan uit meer dan alleen de hypotheeklasten. Hieronder vind je een overzicht van de bijkomende kosten en lasten. Zo weet je precies wat je huis per maand gaat kosten. En met de handige vergelijkers kun je ook nog eens snel de beste deals sluiten!

  • Kaart
  • Streetview