Verkocht OV

Schoolstraat 5 4566 AS Heikant

120m2
Wonen
4
Kamers
1023m2
Perceel
1966
Bouwjaar
Vrijstaande woning op royaal perceel van 1.023 m2, volop mogelijkheden!

Op een rustige locatie staat deze vrijstaande woning met een heerlijk perceel van maar liefst 1.023 m2. Hier geniet u van ruimte, privacy en alle vrijheid om uw woonwensen te realiseren.

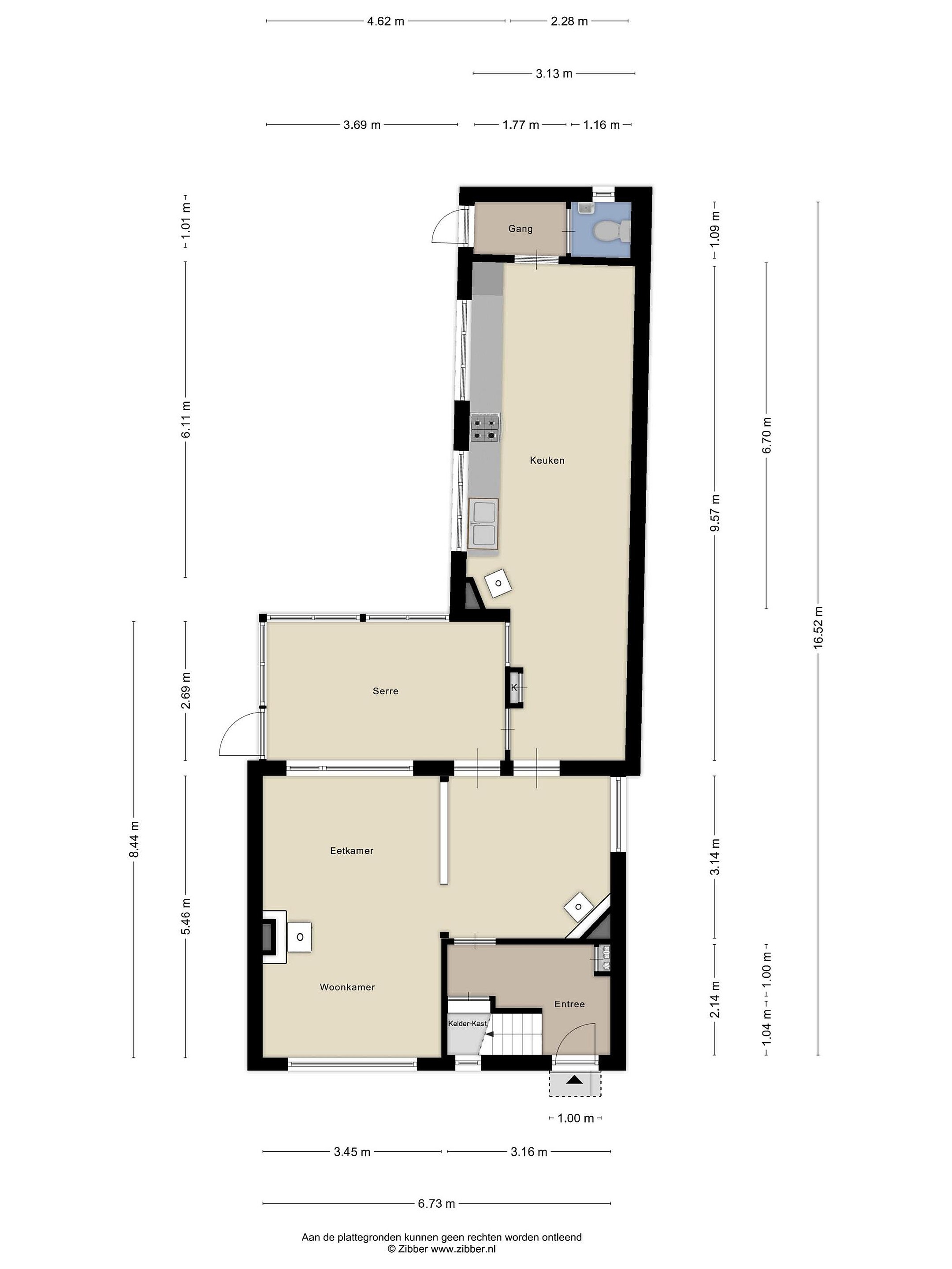
De woning beschikt over een ruime inkomhal met trapopgang naar de eerste verdieping. De lichte L-vormige woonkamer sluit aan op een sfeervolle serre, waardoor u optimaal zicht heeft op de tuin. Aan de achterzijde bevindt zich de leefkeuken met praktische achterinkom en separaat toilet.

Op de eerste verdieping zijn drie volwaardige slaapkamers en een doucheruimte aanwezig.

Waarom dit uw nieuwe thuis kan worden:
- Vrijstaand wonen met veel privacy
- Royaal perceel van 1.023 m2
- Lichte woonkamer met serre
- Drie slaapkamers op de verdieping
- Ruimte om de woning volledig naar eigen smaak te moderniseren

De woning is netjes onderhouden maar deels gedateerd. Dit biedt juist een mooie kans om het geheel aan te passen aan uw eigen woonstijl en comfortwensen. Met een doordachte renovatie kunt u hier een fantastisch familiehuis van maken, geheel op maat van de toekomst.

Bent u op zoek naar een vrijstaande woning met veel potentie en een groot perceel? Plan dan een bezichtiging en ontdek zelf de mogelijkheden!

Lees meer

Kenmerken

Overdracht

Prijs per m2
€ 2.375
Aangeboden sinds
31 oktober 2025
Status
Verkocht onder voorbehoud
Aanvaarding
In overleg

Bouw

Soort woonhuis
Eengezinswoning, vrijstaande woning
Soort bouw
Bestaande bouw
Bouwjaar
1966
Soort dak
Zadeldak
Staat van onderhouden binnen
Goed
Staat van onderhouden buiten
Goed

Oppervlakte en inhoud

Perceeloppervlakte
1023 m2
Inhoud van de woning
444 m3

Indeling

Aantal kamers
4
Aantal slaapkamers
3
Aantal woonlagen
3
Voorzieningen
Tuin

Buitenruimte

Balkon
Nee
Schuur/berging
Nee

Maandlasten berekenen

De maandlasten voor je woning bestaan uit meer dan alleen de hypotheeklasten. Hieronder vind je een overzicht van de bijkomende kosten en lasten. Zo weet je precies wat je huis per maand gaat kosten. En met de handige vergelijkers kun je ook nog eens snel de beste deals sluiten!

  • Kaart
  • Streetview