Verkocht

Elzenseloop 20 5384 WL Heesch

153m2
Wonen
6
Kamers
245m2
Perceel
2004
Bouwjaar
In de jonge, kindvriendelijke woonwijk De Hoef II, op een steenworp afstand van het fraaie natuur- en wandelgebied De Hooge Vorssel/Het Bomenpark ligt aan een heuse fietsstraat de Elzenseloop 20, een keurig uitgebouwde hoekwoning met een op het zonnige zuiden gelegen onderhoudsvriendelijke tuin inclusief heerlijke overkapping en ruime tuinberging. Deze perfecte gezinswoning is in 2004 gerealiseerd, is gelegen op een mooi perceel van 245m2 eigen grond, heeft een woonoppervlakte van maar liefst 153m2 (!) en is onder andere ingericht met een ruime woonkamer met grote tuingerichte eethoek en comfortabele zithoek, een op de voorzijde/fietsstraat georiënteerde half open keuken met bar-idee, een praktische bijkeuken, drie prima formaat slaapkamers en een compleet ingerichte badkamer op de 1e verdieping, twee ruime slaapkamers en veel bergruimte op de 2e verdieping én een nog daarboven gelegen extra bergvliering. De ligging is uitstekend; in een groenrijke, speelse maar toch rustige omgeving op korte afstand van het bruisende centrum van Heesch met haar vele winkels, supermarkten, speciaalzaken en gezellige horeca- en eetgelegenheden. Maar ook scholen, naschoolse opvang, sportverenigingen en de prima ontsluiting richting snelwegen A50 en A59 bevinden zich in de directe nabijheid. Parkeergelegenheid is er volop aanwezig in de naast en rondom de woning gelegen parkeerhavens. Nieuwsgierig geworden? Plan dan snel een bezichtiging in, u bent van harte welkom!
Begane grond
De Elzenseloop 20 wordt betreden via de hal, waar zich zowel de garderobe, de meterkast, de trapopgang als de toiletruimte (met wandcloset en fonteintje) bevinden. De hal is afgewerkt met een antraciet tegelvloer (klein tegelformaat), gespacte wanden en een licht gespoten plafond. Vanuit de hal komt men in de woonkamer, die door de gerealiseerde zij-aanbouw een oppervlakte van zo’n 45m2 heeft -inclusief een handige provisiekast- en daarmee veel leefruimte biedt. De woonkamer is ingericht met een op de achtertuin georiënteerde (en daarmee middels dubbele tuindeuren direct mee in verbinding staande) eethoek en een comfortabele zithoek, die zich in de in 2010 gerealiseerde zij-aanbouw bevindt. De eethoek is afgewerkt met fraaie houten vloerdelen, licht gespacte wanden en een licht gespoten plafond, terwijl de zithoek is voorzien van een tegelvloer inclusief vloerverwarming, gespacte wanden en een stucwerk plafond. De vele raampartijen in de woonkamer zorgen er voor veel lichtinval, hetgeen deze verblijfsruimte extra aangenaam en gezellig maakt. De half open keuken is van de eethoek van de woonkamer gescheiden middels een speels bar-idee. De aanwezige raampartij (doorlopend tot op de grond) geeft er een mooi uitzicht op de levendige fietsstraat. Naast de nodige kast- en laderuimte is de keuken ingericht met diverse keukenapparatuur zoals een koelkast, vriezer, vaatwasser, gaskookplaat, afzuigkap en combi-oven. Verder is de keuken afgewerkt met een tegelvloer (groot tegelformaat), deels betegelde/deels gespacte wanden en een gespoten plafond. Aansluitend aan de zithoek bevindt zich de zowel praktische als zeer handige bijkeuken/droogloop, waar onder andere het witgoed in een grote schuifkast en een handige uitstort opgesteld staan. Ook in de bijkeuken ligt een tegelvloer inclusief vloerverwarming en via een loopdeur is vanuit de bijkeuken de heerlijke achtertuin bereikbaar.

Eerste verdieping
Op de 1e verdieping treffen we -naast de overloop met vaste trapopgang naar de 2e verdieping- drie prima formaat (slaap)kamers en de badkamer aan. De slaapkamers hebben een oppervlakte van circa 14m2, 9,5m2 en 8m2 en zijn allen afgewerkt met vloerbedekking, behangen wanden en een licht gespoten plafond. De geheel betegelde badkamer is ingericht met een ligbad, douchecabine, vaste wastafel, wandcloset en designradiator. Een raampartij zorgt er voor prettige daglichttoetreding (alsmede een extra ventilatiemogelijkheid).

Tweede verdieping
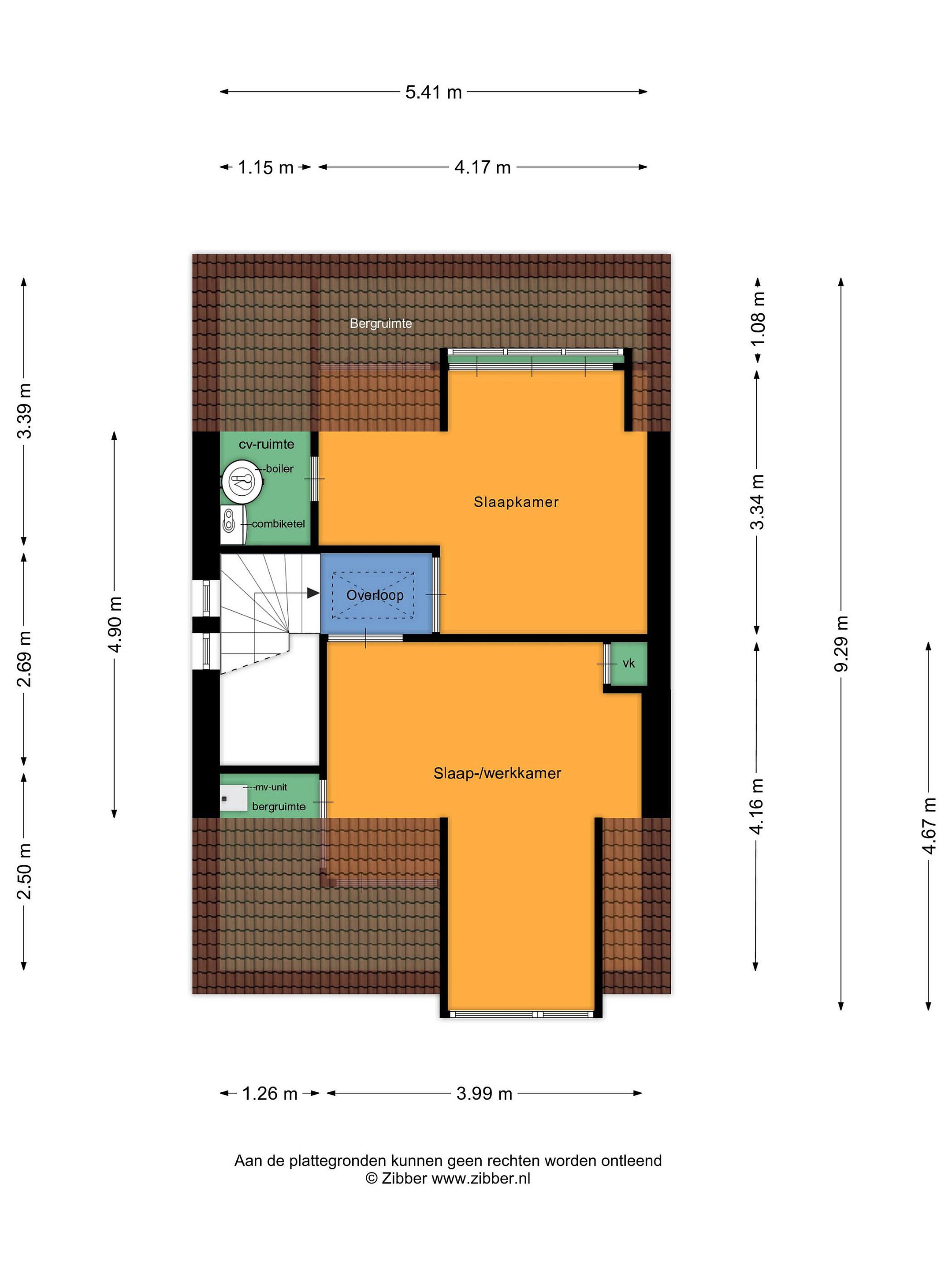
Vanaf de voorzolder van de 2e verdieping kunnen slaapkamers vier en vijf betreden worden. Daarnaast is vanuit de voorzolder middels een vlizotrap ook nog een zeer handige bergvliering/kleine 3e verdieping bereikbaar; ideaal voor het opslaan van bijvoorbeeld de reiskoffers en/of kerstspullen. Slaapkamer vier heeft een oppervlakte van circa 12,5m2 exclusief de bergruimte(n) achter de knieschotten en de cv-ruimte die vanuit deze slaapkamer toegankelijk is en waar de cv-combiketel (Nefit Trendline, 2015) en de zonneboiler (Agpo, 2004) opgesteld staan. (Slaap)kamer vijf is ingericht als werk- en gamekamer en beslaat ook zo’n 12,5m2, inclusief twee vaste kasten (waarvan één met de opstelplaats van de mv-unit).

Tuin
De onderhoudsvriendelijke achtertuin is in het voorjaar van 2024 compleet vernieuwd en heeft in totaal een oppervlakte van zo’n 80m2. Naast de fraaie sierklinkers en dito 60 x 60 terrastegels is de tuin afgewerkt met diverse borders met daarin een keur aan planten, struiken en boompjes. Ook een handig buitenkraantje en zelfs een schommel ontbreken niet! In 2024 zijn ook de fijne tuinberging van circa 10m2 en de sfeervolle overkapping van 14m2 -met robuuste verticale houten Douglas palen, vurenhouten balklaag, shutters en grote raampartij- gerealiseerd. In combinatie met de ligging op het zonnige zuiden biedt de achtertuin dus altijd wel een plekje om lekker in de zon of schaduw te zitten. De geheel omsloten en daarmee extra privacy-biedende achtertuin is zowel bereikbaar vanuit de woonkamer, de bijkeuken als een handige achterom.

Details
-De Elzenseloop 20 betreft een energiezuinige woning die is voorzien van zowel dak-, muur- als vloerisolatie. Daarnaast beschikt de woning volledig over HR++ beglazing, waardoor het over een mooi energielabel A beschikt. In september 2024 zijn er ook nog eens 8 zonnepanelen (eigendom) geplaatst.
-De Hoef II, waar de Elzenseloop deel van uitmaakt, typeert zich door een ruimtelijke uitstraling met veel oog voor jeugd en groen. Houtwallen, zandpaden, een natuurzone, speelgebieden voor kinderen, duurzame bebouwing, langzaam verkeer en een fietsstraat vormen elementen die zorgen voor een bijzondere woonwijk waar het prettig wonen is.

Lees meer

Verkoopgeschiedenis

Aangeboden sinds
20 november 2025
Verkoopdatum
16 maart 2026
Looptijd
4 maanden

Kenmerken

Overdracht

Prijs per m2
€ 3.595
Aangeboden sinds
20 november 2025
Status
Verkocht
Aanvaarding
In overleg

Bouw

Soort woonhuis
Eengezinswoning, hoek woning
Soort bouw
Bestaande bouw
Bouwjaar
2004
Soort dak
Zadeldak
Staat van onderhouden binnen
Goed
Staat van onderhouden buiten
Goed

Oppervlakte en inhoud

Perceeloppervlakte
245 m2
Inhoud van de woning
540 m3
Oppervlakte externe bergruimte
10 m2
Oppervlakte gebouwgebonden buitenruimten
2 m2

Indeling

Aantal kamers
6
Aantal slaapkamers
5
Aantal woonlagen
3
Voorzieningen
Tuin, schuur/berging, ventilatie, glasvezel

Buitenruimte

Balkon
Nee
Schuur/berging
Ja

Maandlasten berekenen

De maandlasten voor je woning bestaan uit meer dan alleen de hypotheeklasten. Hieronder vind je een overzicht van de bijkomende kosten en lasten. Zo weet je precies wat je huis per maand gaat kosten. En met de handige vergelijkers kun je ook nog eens snel de beste deals sluiten!

  • Kaart
  • Streetview