Verkocht OV

Begijnenweide 3 1967 HG Heemskerk

116m2
Wonen
5
Kamers
136m2
Perceel
2007
Bouwjaar
Op een rustige plek in de ruim opgezette woonwijk Broekpolder staat aan de Begijnenweide deze leuke tussenwoning met zonnige tuin. Deze uitermate geschikte eengezinswoning is in het geheel keurig afgewerkt en voorzien van een grote dakkapel op de 2e verdieping. Door het recente bouwjaar van de woning met de daarbij behorende isolerende voorzieningen beschikt de woning over een energielabel A!
De achtertuin op het zuidoosten is ruim bemeten en voorzien van een houten vrijstaande berging. De ligging in de geliefde wijk Broekpolder is ideaal met alle voorzieningen zoals scholen, supermarkt en het NS-station op loopafstand.

Wil jij wonen in deze fraai afgewerkte jonge woning? Bel met ons kantoor voor het inplannen van een bezichtiging.

Bouwjaar: 2007
Woonoppervlakte: ca. 116 m2
Externe bergruimte: ca. 4 m2
Inhoud: ca. 412 m3
Perceel: 136 m2
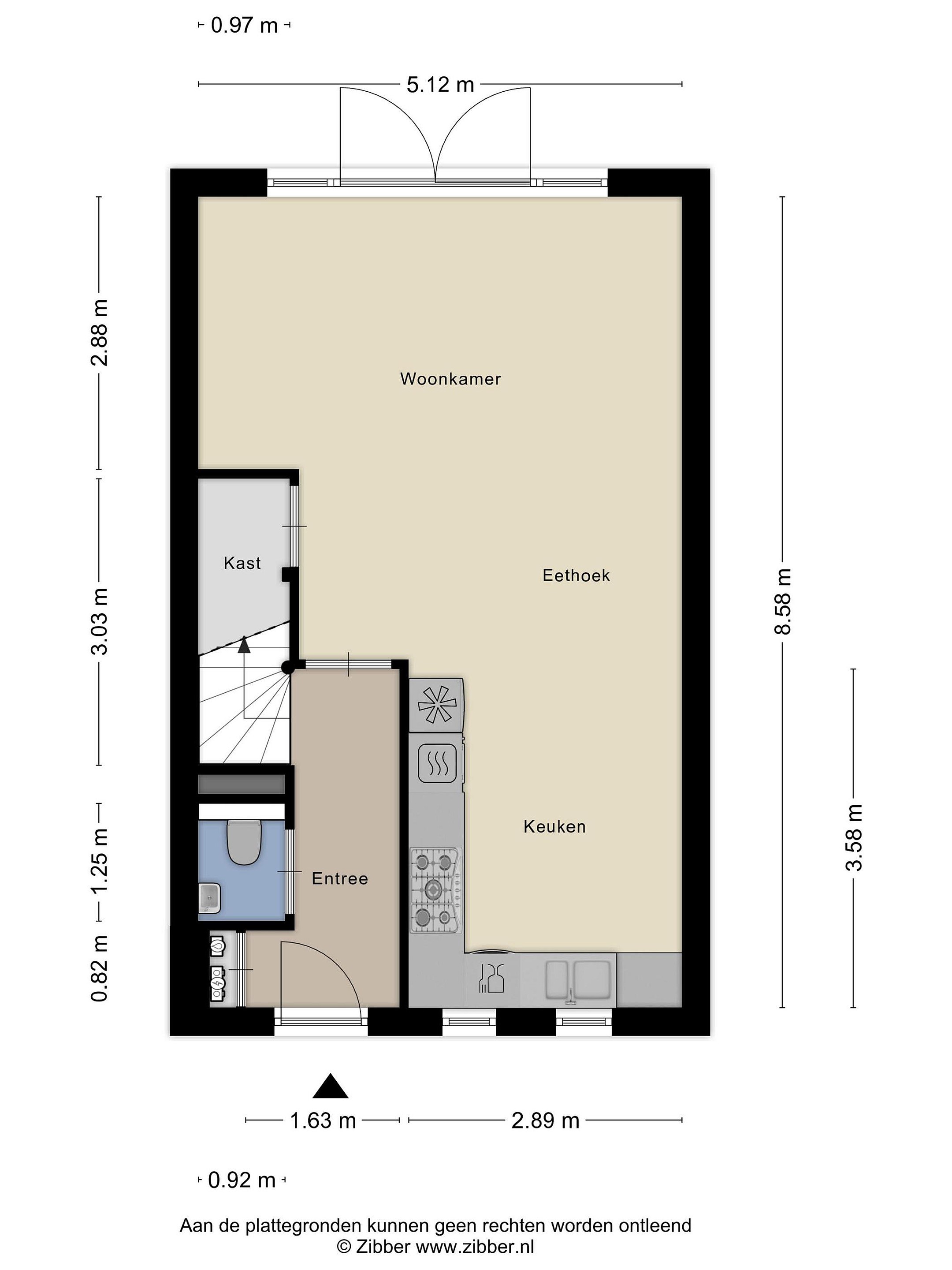
Begane grond
Begane grond
Entree, hal, meterkast (8 groepen en 2 aardlekschakelaars), zwevend toilet met fonteintje, tuingerichte woonkamer met trapkast en openslaande deuren, aan de voorzijde van woning bevindt zich de keuken met inbouwspotjes en diverse inbouwapparatuur, te weten: vaatwasser, koel-vriescombinatie, afzuigkap, 5-pitsgaskookplaat, oven en magnetron. De gehele begane grond is voorzien van een pvc vloer met vloerverwarming.

Eerste verdieping
Door middel van de vaste trap bereik je de eerste verdieping. Hier kom je op de overloop die toegang biedt tot alle vertrekken. Hier bevinden zich drie ruim bemeten slaapkamers met horren, twee aan de achterzijde en één aan de voorzijde van de woning. Tevens bevindt zich aan de voorzijde de badkamer, deze is volledig betegeld, heeft een strakke uitstraling en is voorzien van een douchecabine met regen- en handdouche, dubbele wastafelmeubel, spiegelkast, tweede toilet en vloerverwarming.

Tweede verdieping
Door middel van de vaste trap bereik je de tweede verdieping. Voorzolder met velux dakraam, CV-ketelopstelling en mechanische ventilatie-unit, bergruimte met de witgoedaansluiting. Vierde slaapkamer met knieschotten en dakkapel aan de achterzijde van de woning.

Tuin
De ligging op het zuidoosten zorgt voor een overvloed aan zon in de ochtend en vroege middag – perfect voor een zonnig ontbijt of een lichte, aangename woonruimte.
In de tuin vind je een elektrisch zonnescherm en een vrijstaande houten berging.

Details
2021: Nieuw schilderwerk buitenzijde en nieuwe vaatwasser;
2022: Nieuw toilet, nieuwe badkamer, nieuwe CV-ketel, Aquacell waterontharder en nieuwe mechanische ventilatie-unit.

- energielabel A;
- royale eengezinswoning;
- keurig onderhouden;
- 2e verdieping voorzien van grote dakkapel;
- zonnige achtertuin met achterom;
- 4 slaapkamers verdeeld over 2 verdiepingen;
- zonnescherm op de begane grond over de gehele breedte;
- gelegen in kindvriendelijke- en rustige buurt met voldoende speelvoorzieningen;
- gunstige ligging t.o.v. de uitvalswegen naar de A9 en A22 richting Amsterdam, Zaandam, Haarlem en Alkmaar;
- basisscholen, winkelcentrum, wijkpark “de Vlaskamp en het NS-station Heemskerk op loopafstand.

Lees meer

Kenmerken

Overdracht

Prijs per m2
€ 4.174
Aangeboden sinds
13 oktober 2025
Status
Verkocht onder voorbehoud
Aanvaarding
In overleg

Bouw

Soort woonhuis
Eengezinswoning, tussen woning
Soort bouw
Bestaande bouw
Bouwjaar
2007
Soort dak
Zadeldak
Staat van onderhouden binnen
Goed
Staat van onderhouden buiten
Goed

Oppervlakte en inhoud

Perceeloppervlakte
136 m2
Inhoud van de woning
411 m3
Oppervlakte externe bergruimte
3 m2

Indeling

Aantal kamers
5
Aantal slaapkamers
4
Aantal woonlagen
3
Voorzieningen
Schuur/berging, ventilatie, rolluiken

Buitenruimte

Balkon
Nee
Schuur/berging
Ja

Maandlasten berekenen

De maandlasten voor je woning bestaan uit meer dan alleen de hypotheeklasten. Hieronder vind je een overzicht van de bijkomende kosten en lasten. Zo weet je precies wat je huis per maand gaat kosten. En met de handige vergelijkers kun je ook nog eens snel de beste deals sluiten!

  • Kaart
  • Streetview