Verkocht

Esdoornlaan 13 3481 BH Harmelen

90m2
Wonen
3
Kamers
244m2
Perceel
1960
Bouwjaar
Uitgebouwde 2-onder-1-kap woning met een zonnige tuin op het zuiden, een garage, berging en parkeren van meerdere auto’s op eigen terrein.
De woning heeft een moderne badkamer, 2 slaapkamers en een open zolderruimte met diverse mogelijkheden. De gehele woning heeft dubbele beglazing en het dak van de aanbouw is in 2023 vervangen.
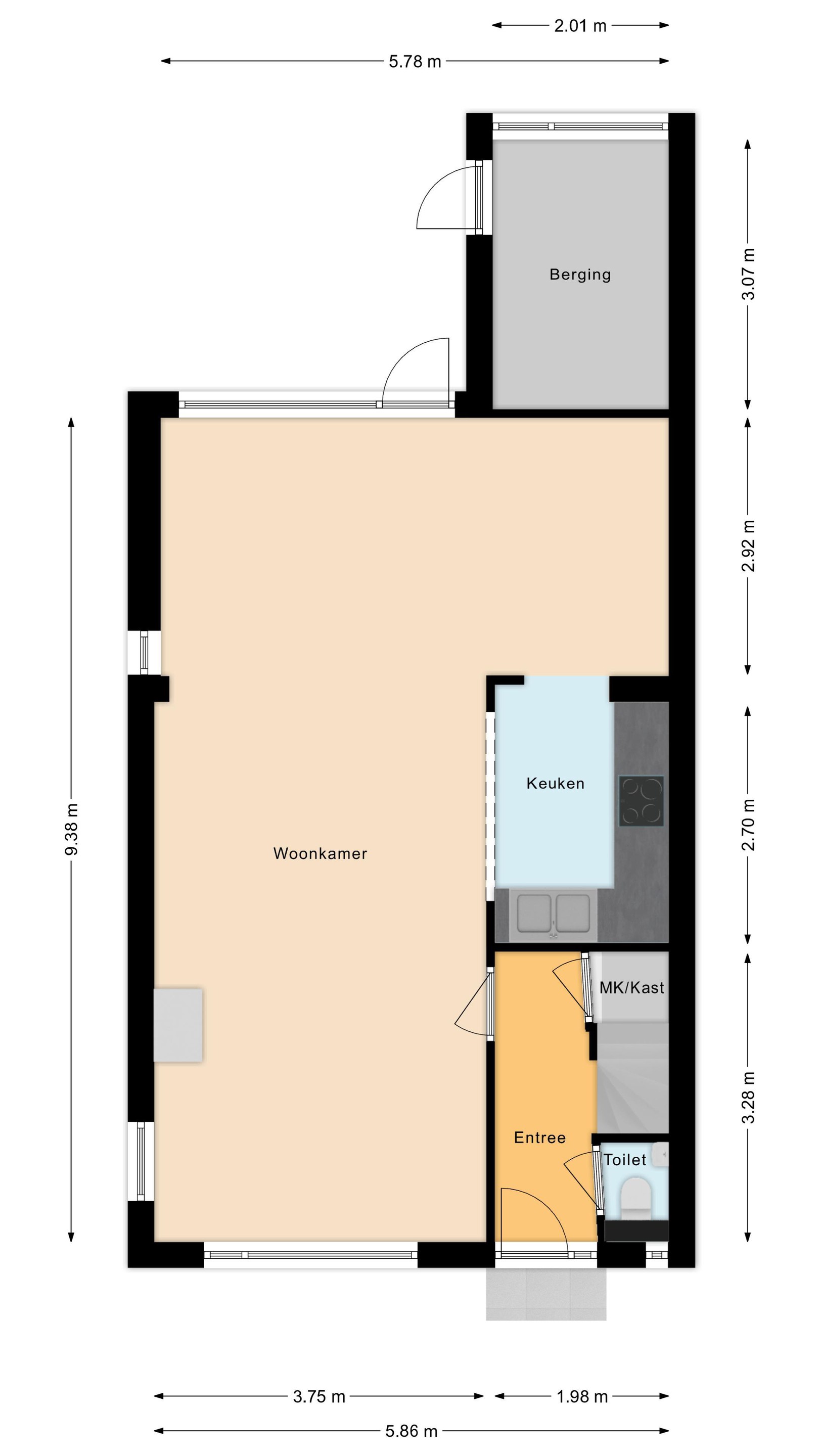
Via de entree komt u in de hal met garderobe, trapkast/kelderkast, vaste trap naar de 1e verdieping en toiletruimte. De toiletruimte heeft een vrijdragend toilet met een fonteintje. De hal geeft toegang tot de ruime, uitgebouwde en lichte woonkamer. De woonkamer heeft een gezellige openhaard (gashaard) en via een deur komt u in de achtertuin. De eenvoudige keuken is voorzien van een spoelbak en een afzuigkap.
De vaste trap in de hal, waaraan ook een traplift bevestigd is, brengt u op de 1e verdieping. Hier bevinden zich de overloop, 2 ruime slaapkamers, de badkamer en een wasruimte. De slaapkamer aan de achterzijde heeft een vaste kast. De moderne badkamer (2018) heeft een mooie inloopdouche, een wastafelmeubel en een toilet. De voormalige badkamer is nu in gebruik als fijne wasruimte. Via de vlizotrap komt u op de 2e verdieping waar u ook de cv ketel aantreft. Er is een grote open zolderruimte waar u gemakkelijk 1 of 2 slaapkamers kunt maken met een vaste trap vanaf de 1e verdieping.
De voor- en zij-tuin zijn bestraat en voorzien van groen. Naast de woning kunt u meerdere auto’s parkeren op eigen terrein. In de achtertuin is een garage en daarbij een leuke overkapping. De stenen berging is aan de woning vastgemaakt. De berging heeft een raam en is van buitenaf via een deur bereikbaar. De riante achtertuin (ca 90 m2) ligt op het zuiden en u kunt hier heerlijk van de zon en rust genieten.
De woning ligt in een ruime kindvriendelijke straat. In het midden van de straat ligt een mooie groenstrook met een speeltuintje met bankje. Om de hoek ligt een groter speelveld met verschillende speeltoestellen. Aan het eind van de straat loopt u zo het gezellige centrum van Harmelen in. Daar vindt u diverse winkels en horecagelegenheden. Op loopafstand zijn de verschillende scholen, de sporthal, tennisbanen en het zwembad. Het dorpshuis en de bibliotheek zijn dichtbij. Er zijn ook veel sportclubs en verenigingen in dit mooie dorp. Bovendien is Harmelen centraal gelegen en door de oprit naar de A12 bent u snel in de grote steden. Dit ruim gelegen huis staat op een geweldige plek. U kunt hier, geheel naar eigen inzicht en creativiteit, een prachtig thuis van maken.
Begane grond
Entree, hal, garderobe, trapkast/kelderkast en een vaste trap naar de 1e verdieping.
Toiletruimte met vrijdragend toilet en fonteintje.
Ruime uitgebouwde en lichte woonkamer met openhaard (gashaard) en toegang tot de achtertuin.
Eenvoudige keuken met spoelbak en afzuigkap.
Via de aanbouw komt u in de zonnige tuin, welke op het zuiden ligt.

Eerste verdieping
De overloop en 2 ruime slaapkamers.
De slaapkamer aan de achterzijde heeft een vaste kast.
Een moderne badkamer (2018) met inloopdouche, toilet en wastafelmeubel.
Voormalige badkamer nu in gebruik als wasruimte.
Vlizotrap naar de 2e verdieping.

Tweede verdieping
Open zolderruimte met cv ketel (1999). Door een vaste trap te maken kunt u hier gemakkelijk 1 of 2 slaapkamers maken.

Tuin
De voor- en zij-tuin zijn bestraat en voorzien van groen. U kunt hier gemakkelijk 2 auto’s parkeren op eigen terrein.
Riante zonnige achtertuin van ca. 90 m2 op het zuiden.
In de achtertuin is een garage van ca 13.5 m2 en een overkapping.
Aan de woning is nog een vaste stenen berging gemaakt van ca. 6 m2.

Details
Uitgebouwde 2-onder-1-kap woning.
De gehele woning heeft dubbele beglazing.
Bouwjaar woning 1960
Riante zonnige tuin op het zuiden.
Moderne badkamer.
Parkeren van meerdere auto’s op eigen terrein.
Een garage en een berging.
Open zolderruimte met vele mogelijkheden.
Een bouwtechnisch rapport is van deze woning aanwezig.
Dak aanbouw in 2023 vervangen.
Traplift aanwezig.
Op loopafstand van het centrum van Harmelen.
Gelegen in een rustige en kindvriendelijke straat.
Kadastrale aanduiding: gemeente Harmelen,sectie B, nr: 1421
Oplevering in overleg.
Bezichtiging na afspraak met ons kantoor.

Lees meer

Verkoopgeschiedenis

Aangeboden sinds
10 maart 2026
Verkoopdatum
17 april 2026
Looptijd
één maand

Kenmerken

Overdracht

Prijs per m2
€ 5.513
Aangeboden sinds
10 maart 2026
Status
Verkocht
Aanvaarding
In overleg

Bouw

Soort woonhuis
Eengezinswoning, twee-onder-een-kap woning
Soort bouw
Bestaande bouw
Bouwjaar
1960
Soort dak
Zadeldak
Staat van onderhouden binnen
Goed
Staat van onderhouden buiten
Goed

Oppervlakte en inhoud

Perceeloppervlakte
244 m2
Inhoud van de woning
404 m3
Oppervlakte externe bergruimte
13 m2
Oppervlakte gebouwgebonden buitenruimten
0 m2
Oppervlakte overige inpandige ruimten
19 m2

Indeling

Aantal kamers
3
Aantal slaapkamers
2
Aantal woonlagen
3
Voorzieningen
Tuin, schuur/berging, kabel-tv, glasvezel, dakraam

Buitenruimte

Balkon
Nee
Schuur/berging
Ja

Maandlasten berekenen

De maandlasten voor je woning bestaan uit meer dan alleen de hypotheeklasten. Hieronder vind je een overzicht van de bijkomende kosten en lasten. Zo weet je precies wat je huis per maand gaat kosten. En met de handige vergelijkers kun je ook nog eens snel de beste deals sluiten!

  • Kaart
  • Streetview