Verkocht

Pauwtjesmolen 4 3371 RM Hardinxveld-Giessendam

127m2
Wonen
4
Kamers
383m2
Perceel
1976
Bouwjaar
Deze fraai gelegen vrijstaande woning met vide, 360° lichtinval en inpandige garage staat op een ruim perceel van 383 m2 en wordt rondom overspoeld met natuurlijk daglicht.

Al bij binnenkomst in de hal met vide wordt u direct verwelkomd door de ruimte. De royale woonkamer baadt in het licht en is voorzien van zowel vloerverwarming als airconditioning, zodat u het hele jaar door van een aangenaam binnenklimaat geniet. De sfeervolle haard zorgt voor extra gezelligheid en dankzij de 10 zonnepanelen geniet u van een energiezuinige woonomgeving. De halfopen keuken is compleet uitgerust, inclusief een Quooker (2021).

Op de verdieping bevinden zich drie volwaardige slaapkamers en een ruime, keurige badkamer. Het zonnige balkon is een heerlijke plek om in de middag- en avondzon te ontspannen.

De verzorgde voortuin biedt voldoende parkeerruimte en geeft toegang tot de ruime inpandige garage met praktische bergvliering. De diepe, fraai aangelegde achtertuin biedt veel rust, privacy en een groene omgeving om volop van het buitenleven te genieten.

Door de centrale ligging in de kindvriendelijke Wielwijk bevinden vrijwel alle voorzieningen en het centrum zich bovendien op loopafstand.

U bent van harte welkom voor een bezichtiging!
Begane grond
Overdekte entree in de ruime hal met vide, nette toiletruimte met een zwevend toilet en fonteintje en de meterkast. Vanuit hier is er tevens toegang tot de inpandige garage, de woonkamer en de etage. De royale L-vormige woonkamer baadt in het licht en is uitgerust met zowel vloerverwarming als airconditioning. Aan de achterzijde, rondom de haard bevindt zich het comfortabele zitgedeelte met toegang tot de achtertuin. Het eetgedeelte heeft een fraai zicht op het straatbeeld en bevindt zich nabij de halfopen keuken. De grote raampartijen aan de achterzijde zijn voorzien van rolluiken. De halfopen keuken in een praktische L-opstelling is onder meer voorzien van een vaatwasser, magnetron, oven, koelkast, diepvriezer en een Quooker. Daarnaast is het raam uitgerust met zonwering.

Inpandige garage
De grote garage (ca. 19 m2) met elektrische overheaddeur en praktische bergvliering is zowel inpandig als via de voor- en achtertuin bereikbaar, waarbij de raampartijen voorzien zijn van rolluiken.

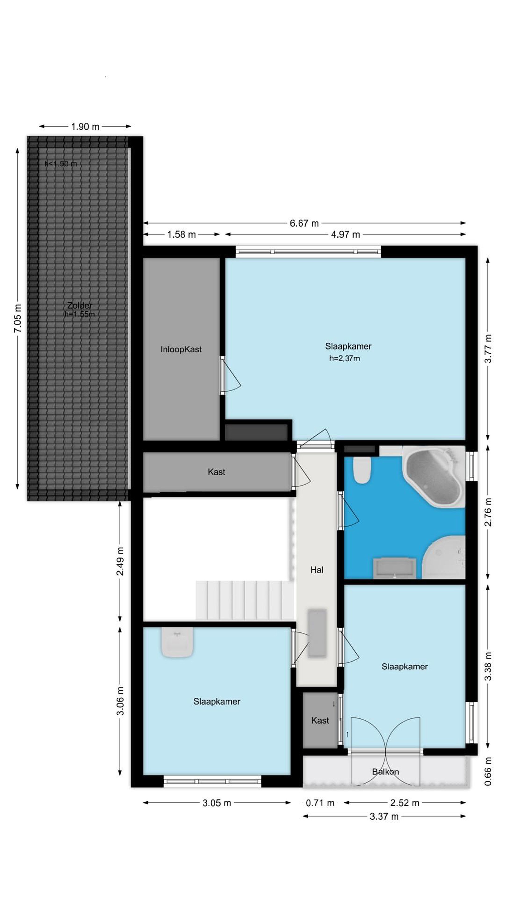
Eerste verdieping
Overloop met toegang tot de drie slaapkamers, een ruime vaste kast, de badkamer en de via een vlizotrap toegankelijke bergzolder. De eerste slaapkamer is uitgerust met airconditioning en beschikt over een royale inloopkast van ca. 6m2. Ruime en luxe uitgevoerde badkamer met een ligbad, een inloopdouche, een groot wasmeubel met toiletkast en een zwevend toilet. De tweede slaapkamer heeft een vaste schuifdeurkast en d.m.v. openslaande deuren toegang tot het balkon. De raampartijen zijn bovendien uitgerust met zonwering. De derde slaapkamer is v.v. van een groot wasmeubel met wastafel en vele bergmogelijkheden.

Tweede verdieping
De bergzolder heeft in de nok een stahoogte van circa 1,95 m en is uitgerust met een dakraam.

Tuin
Voortuin
De keurige voortuin (Westen) is verzorgd aangelegd met een groene border v.v. twee boompjes, diverse vaste beplanting en grindborders. De hagen zorgen hier voor privacy en toegang tot de achterom. De oprit biedt ruimte voor meerdere voertuigen.

Achtertuin
De nette aangelegde achtertuin is prima onderhouden en beschikt onder andere over een betegeld zonneterras met aansluitend een vlonderterras. Daarnaast is er volop groen aanwezig in de vorm van een gazon en plantenborders met vaste beplanting en boompjes. De hoge hagen aan de noord- en oostzijde zorgt voor veel privacy. Via een bestraat pad bereikt u de afsluitbare poort naar de voorzijde.

Details
- Meterkast is in 2021 vernieuwd.
- De kozijnen zijn gemaakt van Merbau hout.
- In 2019 zijn de ramen grotendeels uitgerust met HR++ glas.

Lees meer

Verkoopgeschiedenis

Aangeboden sinds
27 maart 2026
Verkoopdatum
29 april 2026
Looptijd
één maand

Kenmerken

Overdracht

Prijs per m2
€ 5.118
Aangeboden sinds
27 maart 2026
Status
Verkocht
Aanvaarding
In overleg

Bouw

Soort woonhuis
Eengezinswoning, vrijstaande woning
Soort bouw
Bestaande bouw
Bouwjaar
1976
Soort dak
Zadeldak
Staat van onderhouden binnen
Goed
Staat van onderhouden buiten
Goed

Oppervlakte en inhoud

Perceeloppervlakte
383 m2
Inhoud van de woning
575 m3
Oppervlakte gebouwgebonden buitenruimten
2 m2
Oppervlakte overige inpandige ruimten
30 m2

Indeling

Aantal kamers
4
Aantal slaapkamers
3
Aantal woonlagen
3
Voorzieningen
Tuin, balkon, ventilatie, rolluiken, buitenzonwering, airconditioning, rookkanaal, dakraam

Buitenruimte

Balkon
Ja
Schuur/berging
Nee

Maandlasten berekenen

De maandlasten voor je woning bestaan uit meer dan alleen de hypotheeklasten. Hieronder vind je een overzicht van de bijkomende kosten en lasten. Zo weet je precies wat je huis per maand gaat kosten. En met de handige vergelijkers kun je ook nog eens snel de beste deals sluiten!

  • Kaart
  • Streetview