Verkocht

Schonekampstraat 3 7773 CV Hardenberg

137m2
Wonen
5
Kamers
336m2
Perceel
2008
Bouwjaar
**Woongenot in deze verrassend ruime, UITGEBOUWDE tweekapper in Hardenberg aan de Schonekampstraat 3**
Ben jij klaar voor een heerlijke nieuwe stap in jouw wooncarrière? Zoek je een woning die niet alleen comfortabel, maar ook duurzaam en energiezuinig is? Zet dan vooral even een dikke stip bij de Schonekampstraat 3 in Hardenberg. Hier draait het allemaal om kwaliteit, ruimte, luxe en genieten . Laten we snel samen binnenkijken!

**Hier word je elke dag verrast**
Van buiten doet deze UITGEBOUWDE twee-onder-een-kapper misschien nog vrij traditioneel aan, maar eenmaal binnen gaat er een wereld voor je open. Ruimte in overvloed, prachtige lichtinval dankzij de grote raampartijen én een slimme indeling waardoor iedere vierkante meter maximaal wordt benut. Niet zomaar een huis; dit is een echte gezinswoning waarin iedereen zijn eigen plekje kan vinden zonder dat het ten koste gaat van het woongeluk.

**Energiezuinig wonen zonder gedoe**
Het huis stamt uit 2008, dus qua comfort alvast helemaal van nu. Maar daar blijft het niet bij: Energielabel A, Intergas Xtreme (2025) – en makkelijk om te zetten naar (hybride-)warmtepomp , 16 kersverse zonnepanelen (2023 geplaatst, 370 wp per paneel), plus op elke verdieping airconditioning. Zomer of winter, hete dagen of koude nachten: je bent hier altijd baas over het klimaat in huis! Je portemonnee én het milieu worden daar minstens zo blij van.

**Een keuken die verleidt tot lange avonden**
De woonkeuken met vloerverwarming vormt het kloppend hart van het huis. Koken, borrelen of natafelen – je krijgt vanzelf zin om vrienden uit te nodigen. De met 2,40 meter UITGEBOUWDE woonkeuken kijkt uit op de achtertuin (waarover zometeen meer!), zodat je altijd verbonden bent met het buitenleven.

**Overal comfort, altijd stijl**
Heerlijk fris schilderwerk (2023/2024): dat ziet er niet alleen strak uit, het geeft de woning direct een verzorgde uitstraling. En zeg nou eerlijk: wie wordt er niet gelukkig van vier airco's in huis? Voor de levensgenieter die comfort op waarde weet te schatten, is dit echt een feest.

**buiten blijven de pluspunten komen**
Ook buiten is het puur genieten. Aan de achterkant wacht een diepe tuin (bijna 20 meter diep) vol privacy, waar je je eigen groene paradijs hebt. Of gewoon neerstrijken in de luxe en tevens geïsoleerde tuinkamer . Lekker onder het dak met een koffie, glaasje wijn of goed boek – ongeacht het weer zit je hier altijd (letterlijk én figuurlijk) goed. Even uitpuffen doe je terwijl je luistert naar het gekabbel van de vijverpartij. Je fiets of hobbyspullen kwijt? Precies: daarvoor is de geïsoleerde, houten berging perfect.

**Ruimte voor het hele gezin (en je auto’s)**
Met een perceeloppervlakte van 336 m2 heb je ruimte genoeg, zowel binnen als buiten. Sla een balletje, vang de eerste zonnestralen, of parkeer meerdere auto’s makkelijk op je eigen oprit – nooit meer zoeken naar een plekje!

**Groen, Gezellig en alles binnen handbereik**
Je vindt deze woning in de gewilde wijk Marslanden. Kindvriendelijk, veel groen in de buurt en met alle voorzieningen op loop- of fietsafstand. Hier woon je lekker rustig zonder de stadse reuring te hoeven missen.

**Samengevat: Dit is geen huis, maar een levensstijl**
Zin om te leven zoals het bedoeld is? Op Schonekampstraat 3 in Hardenberg begin je elke dag met een glimlach. Waar wachten jullie nog op? Bel snel en plan een bezichtiging, want zo’n kans laat je toch niet lopen?

Welkom thuis, levensgenieter! #belhoudel

De indeling van deze gave tweekapper is als volgt:
Middels overdekt entree betreedt men de hal met trapopgang, meterkast en toilet met fonteintje. Aan de voorzijde van de woning is de speelse, ruim opgezette woonkamer met grote raampartijen . Aan de achterzijde daarentegen een uitgebouwde woonkeuken met verschillende inbouwapparatuur. Zo kent deze keuken een koelkast, vriezer, inbouwkoffiezetapparaat, vaatwasser, combimagnetron en 4 -pits gaskookplaat met afzuigkap. De keuken kent eveneens een gezellige barindeling.

Openslaande tuindeuren geven toegang tot de diepe achtertuin met prachtige geïsoleerde buiten/tuinkamer met houten berging en een vijverpartij.
Via de keuken betreedt u ook de aangebouwde stenen garage met loopdeur.

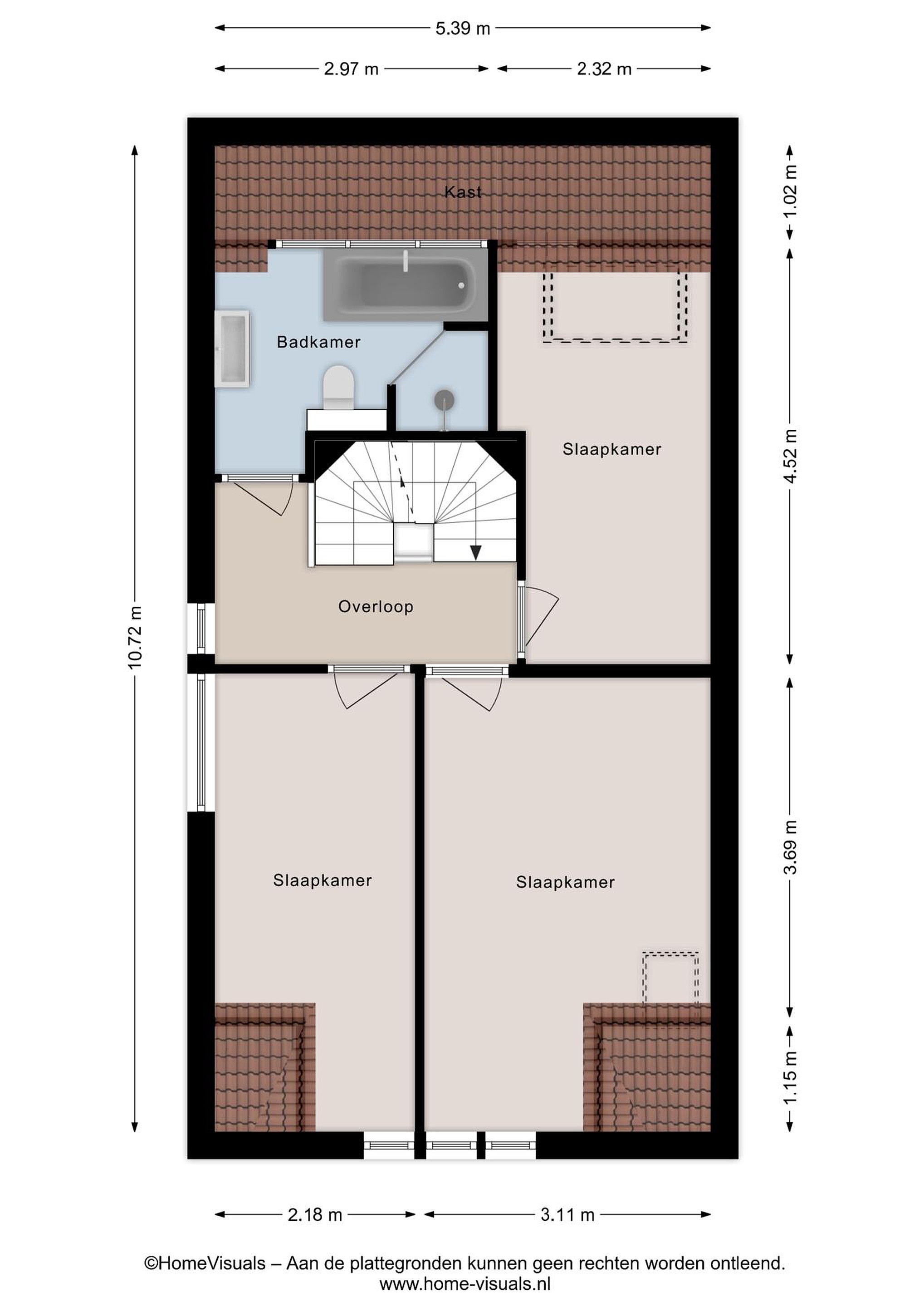
Eerste verdieping:
Overloop, drie slaapkamers en aan de achterzijde een eigentijdse badkamer , uitgevoerd met dakkapel en o.a. ligbad, inloopdouche, toilet en wastafelmeubel.

Een vaste trap leidt naar de ..

Tweede verdieping:
Ruime zolderverdieping met vierde slaapkamer, c.v. ruimte en verschillende ruimtes voor berging.

Kenmerken:
- Bouwjaar: 2008;
- Perceeloppervlakte: ca. 336 m2;
- Woonoppervlakte: ca. 135 m2;
- Overige inpandige ruimte: ca. 22 m2;
- Externe bergruimte: ca. 35 m2.

Bijzonderheden:
- Schilderwerk: 2023/2024;
- 16 zonnepanelen, gelegd in 2023;
- Vier airco-installaties (merk Haier);
- Alle openslaande ramen zijn v.v. horren;
- Slaapkamer voorzijde v.v. rolluik;
- C.v. installatie Xtreme, 2025 (voorbereid op (hybride-)warmtepomp);
- Overkapping/veranda/tuinkamer uit 2022;
- Speelse, ruime indeling woning.
Lees meer

Verkoopgeschiedenis

Aangeboden sinds
26 september 2025
Verkoopdatum
6 november 2025
Looptijd
één maand

Kenmerken

Overdracht

Prijs per m2
€ 3.540
Aangeboden sinds
26 september 2025
Status
Verkocht
Aanvaarding
In overleg

Bouw

Soort woonhuis
Eengezinswoning, twee-onder-een-kap woning
Soort bouw
Bestaande bouw
Bouwjaar
2008
Soort dak
Samengesteld dak
Staat van onderhouden binnen
Uitstekend
Staat van onderhouden buiten
Uitstekend

Oppervlakte en inhoud

Perceeloppervlakte
336 m2
Inhoud van de woning
572 m3
Oppervlakte externe bergruimte
35 m2
Oppervlakte gebouwgebonden buitenruimten
5 m2
Oppervlakte overige inpandige ruimten
22 m2

Indeling

Aantal kamers
5
Aantal slaapkamers
4
Aantal woonlagen
3
Voorzieningen
Tuin, schuur/berging, glasvezel, buitenzonwering, airconditioning, dakraam

Buitenruimte

Balkon
Nee
Schuur/berging
Ja

Maandlasten berekenen

De maandlasten voor je woning bestaan uit meer dan alleen de hypotheeklasten. Hieronder vind je een overzicht van de bijkomende kosten en lasten. Zo weet je precies wat je huis per maand gaat kosten. En met de handige vergelijkers kun je ook nog eens snel de beste deals sluiten!

  • Kaart
  • Streetview