Verkocht OV

Poelekes 25 4661 LP Halsteren

125m2
Wonen
5
Kamers
172m2
Perceel
1972
Bouwjaar
Ben jij op zoek naar een gezellige plek waar je samen met je gezin heerlijk kunt wonen? Poelekes 25 Halsteren biedt alles wat jonge gezinnen zoeken: lekker veel ruimte, rust én volop mogelijkheden voor toekomstplannen. Hier combineer je de knusheid van een dorpsomgeving met de praktische pluspunten van een moderne gezinswoning. Zet de verhuisdozen maar vast klaar!

Hier sta je vóór je het weet in de woonkamer met uitzicht op een royale voortuin én een achtertuin waar kinderen zorgeloos kunnen ravotten. Deze tussenwoning – gebouwd in 1972 – ademt een fijne, huiselijke sfeer door iedere kamer. Met een perceel van 172 m2 krijg je meer dan genoeg grond om je dromen vorm te geven, of het nu om een moestuin, schommel of loungeplek gaat.

Kom binnen! De lichte woonkamer is ruim opgezet en heeft grote raampartijen waardoor je elk seizoen geniet van daglicht. Stel je voor: ‘s ochtends zonnestralen bij je ontbijt en ’s avonds sfeervol samen spelletjes doen aan de eettafel. Dankzij de praktische indeling is er plek genoeg voor een riante hoekbank, speelhoek of bijvoorbeeld een werkplekje. Koken doe je met plezier in de keuken, die grenst aan de tuin – dus terwijl de kids hun energie kwijt kunnen buiten, houd jij ze makkelijk in de gaten.

Een van de grootste verrassingen hier zijn misschien wel de tuinen: aan de voorkant een nette voortuin waar je bloemen of kruiden kunt planten, aan de achterkant een flinke achtertuin van maar liefst 88 m2! Zie je het al voor je: barbecueën met vrienden, zomerse picknicks of een trampoline waar kinderen zich uitleven? De tuin is groot genoeg voor een feestje, maar ook knus als je juist lekker wilt onthaasten na een drukke dag.

Ook boven blijft het verrassend ruim. Met meerdere slaapkamers creëer je hier plekken waar ieder gezinslid kan ontspannen, dromen of leren. Of misschien een stoere speel- of studeerkamer? Alles kan! Daarnaast is de badkamer praktisch ingericht – fris, comfortabel en klaar voor dagelijks gebruik door het hele gezin.

Deze woning is netjes onderhouden, met een keurig afwerkingsniveau dat jong en fris oogt. Fijn om te weten: het energielabel C zorgt ervoor dat je energiekosten onder controle blijven en je tegelijkertijd milieubewust bezig bent. Dat is mooi meegenomen! Het échte extraatje is uiteraard de garage met berging waar je boordevol fietsen in kwijt kunt of uiteraard de auto.

De Rode Schouw in Halsteren staat bekend om haar vriendelijke karakter, uitgestrekte speelvelden en alle voorzieningen die je nodig hebt dichtbij. De scholen, kinderopvang, winkels en sportverenigingen zijn allemaal op korte afstand – ideaal wanneer je 's ochtends snel iedereen op pad wilt krijgen. Bovendien zijn de verbindingen naar Bergen op Zoom en de snelwegen uitstekend, mocht je voor werk of familie regelmatig op weg zijn.

Zie jij jezelf en je gezin hier al helemaal wonen? Poelekes 25 biedt alles voor een mooie gezinsstart of een volgende stap. Een fijn huis omringd door groen, volop ruimte om op te groeien en plekken om samen herinneringen te maken. De sleutel ligt bijna voor je klaar. Kom gerust kijken – wie weet voelt het direct als thuiskomen!

Pluspunten:
+ Ruime garage!
+ Gelegen in kindervriendelijke wijk!
+ 4 royale slaapkamers!
+ In-stap-klare woning!
Begane grond
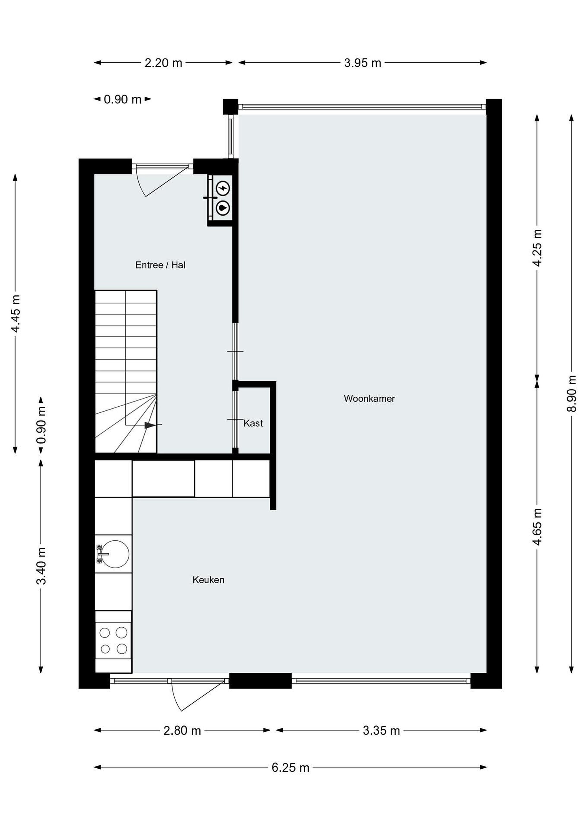
Entree/Hal:
Prettige binnenkomst van de woning in deze ruim opgezette hal. De jassen kunnen makkelijk worden opgehangen zonder dat je er dwars doorheen loopt. De handige vaste kast zorgt voor berging van de stofzuiger en de schoenen. De hal geeft toegang tot de woonkamer, het toilet, de meterkast en de trapopgang.
De ruimte is afgewerkt met een laminaatvloer, behangen wanden en een spuitwerk plafond.

Toilet:
Keurige toilet welke onder de trap is gesitueerd. De neutraal afgewerkte toiletruimte is voorzien van een wandcloset.
De ruimte is afgewerkt met een PVC-vloer en grotendeels betegelde wanden.

Woonkamer:
Wat een fantastische ruimte! De woonkamer is heerlijk licht en opvallend ruim. De erker aan de voorzijde is echt het extraatje wat de woonkamer compleet maakt. Dankzij de grote raampartijen stroomt het daglicht volop binnen. Aan de achterzijde is er alle ruimte voor een gezellig eethoek. Wel praktisch zo bij de open keuken. Met het plaatsen van een schuifpui of openslaande tuindeuren verbind je de woonkamer helemaal met de tuin.
De ruimte is afgewerkt met een laminaatvloer, gestuukte wanden en een spuitwerk plafond.

Keuken:
Ruime open keuken die keurig netjes is onderhouden. De lichte frontjes samen met het donkere kunststof werkblad zorgen voor een neutrale uitstraling, waardoor je met wat leuke accessoires de keuken helemaal eigen kunt maken. Er is voldoende bergruimte en werkruimte aan het aanrecht om de heerlijkste gerechten te bereiden. De keuken is voorzien van:
+ 4-pits inductiekookplaat
+ Afzuigkap
+ Combioven
+ Enkele spoelbak
+ Koel-/Vriescombinatie
+ Vaatwasser
De ruimte is afgewerkt met een laminaatvloer, gestuukte wanden en een spuitwerk plafond.

Eerste verdieping
Overloop:
Prima verkeersruimte, welke toegang geeft tot drie slaapkamers ,de badkamer en de trapopgang naar de tweede verdieping.
De ruimte is afgewerkt met een laminaatvloer, glasvliesbehangen wanden en een spuitwerk plafond.

Badkamer:
Moderne en opvallende lichte badkamer. Een perfecte ruimte om je even op te frissen voor de dag begint en of voor het slapen gaan. Het raampartij zorgt niet alleen dat er veel daglicht binnen kan stromen, maar ook voor de ventilatie. Wel zo prettig. De badkamer is voorzien van:
+ Badkamermeubel met enkele wastafel
+ Handdoekenradiator
+ Inloopdouche
+ Wandcloset
De ruimte is afgewerkt met een tegelvloer, betegelde wanden en een spuitwerk plafond.

Slaapkamer 1:
Een echte hoofdslaapkamer met toegang tot het balkon. De kamer is ruim van opzet waardoor je met gemak een royaal tweepersoonsbed plaatst en er voldoende ruimte overblijft voor extra kledingkasten. Heel praktische is de vaste kastenwand waar al de nodige kleding in kan worden opgeborgen. Een zeker pluspunt is de aanwezige airco.
De ruimte is afgewerkt met een laminaatvloer, behangen wanden en een spuitwerk plafond.

Slaapkamer 2:
Flinke slaapkamer welke aan de achterzijde van de woning is gelegen. Met ruim 15 m2 vloeroppervlakte kun je hier echt veel in kwijt en blijft er lekker veel speelruimte over. Via het royale raampartij kan het daglicht goed binnenkomen en is er zicht op de achtertuin. Ook deze kamer profiteert van de vaste kastenwand.
De ruimte is afgewerkt met een laminaatvloer, behangen wanden en een spuitwerk plafond.

Slaapkamer 3:
De compactste kamer is zeker niet klein te noemen. Met ruim 9,5 m2 is het nog steeds een ruime kamer die prettig in te delen is met een bed, kledingkast en bureau. Een fijne kinderkamer die eventueel ook goed kan worden gebruikt als royale werkkamer voor de thuiswerkers onder ons.
De ruimte is afgewerkt met een laminaatvloer, behangen wanden en een spuitwerk plafond.

Tweede verdieping
Overloop:
Keurige overloop die toegang geeft tot de vierde slaapkamer, de technische-/wasruimte en een ruime berging. Ook hier is te merken dat de bewoners netjes met de woning zijn omgegaan.
De ruimte is afgewerkt met vloerbedekking, gestuukte wanden en een glasvlies plafond/dakafwerking.

Technische-/Wasruimte:
Praktische ruimte waar de wasmachine keurig kan staan net als de droger. Ook kun je hier het nodige in opbergen. De vrij recent geplaatste combiketel hangt keurig uit het zicht in deze ruimte.
De ruimte is afgewerkt met vloerbedekking en gestuukte wanden.

Slaapkamer 4:
Deze grote zolderkamer is een frisse en ruime slaapkamer, perfect als extra slaap- of werkkamer. Dankzij het dakraam komt er veel licht binnen. Menig tiener zal deze kamer wel in beslag willen nemen. Mocht het nog niet groot genoeg zijn, dan plaats je hier vrij makkelijk een dakkapel.
De ruimte is afgewerkt met een laminaatvloer, gestuukte wanden en een glasvlies behangen plafond.

Tuin
Voortuin:
De voortuin (afm. ca. 6.25 x 4.00) is een verzorgd visitekaartje van de woning. Met mooie tuinborders, voorzien van boompjes waarmee de inkijk en de zon wat wordt geweerd. De sierbestrating zorgt dat het ook nog eens onderhoudsarme tuin is en nog steeds een sfeervolle uitstraling heeft. Dit maakt tuin en woning direct uitnodigend aan.

Achtertuin:
De grote achtertuin (afm. ca. 10.00 x 6.25) op het zuidwesten is netjes aangelegd en helemaal klaar om van te genieten. De plantenbordes zorgen voor het nodige groen in de tuin. Achterin vind je een leuke hoek bij de schuur, ideaal voor een loungehoek of voor een buitenkeuken. In de tuin is er altijd een plekje te vinden in de zon. De tuin heeft een achterom via de garage. Een heerlijke, kindvriendelijke tuin waar volop ruimte is om te spelen, te ontspannen en te genieten van het buitenleven!

Garage-/Berging:
De berging en garage zijn aan elkaar verbonden. Zo is er een mooie plek voor het stallen van de fietsen en om lekker te klussen terwijl je de garage volledig kan worden gebruiken om de auto te parkeren. Wel zo praktisch allemaal. De ruimte is voorzien van elektra en de sectionale garagedeur die elektrisch bedienbaar is.

Lees meer

Kenmerken

Overdracht

Prijs per m2
€ 3.196
Aangeboden sinds
12 september 2025
Status
Verkocht onder voorbehoud
Aanvaarding
In overleg

Bouw

Soort woonhuis
Eengezinswoning, tussen woning
Soort bouw
Bestaande bouw
Bouwjaar
1972
Soort dak
Zadeldak
Staat van onderhouden binnen
Goed
Staat van onderhouden buiten
Goed

Oppervlakte en inhoud

Perceeloppervlakte
172 m2
Inhoud van de woning
435 m3
Oppervlakte externe bergruimte
7 m2
Oppervlakte gebouwgebonden buitenruimten
4 m2

Indeling

Aantal kamers
5
Aantal slaapkamers
4
Aantal woonlagen
3
Voorzieningen
Tuin, balkon, schuur/berging, rolluiken, glasvezel, airconditioning, dakraam

Buitenruimte

Balkon
Ja
Schuur/berging
Ja

Maandlasten berekenen

De maandlasten voor je woning bestaan uit meer dan alleen de hypotheeklasten. Hieronder vind je een overzicht van de bijkomende kosten en lasten. Zo weet je precies wat je huis per maand gaat kosten. En met de handige vergelijkers kun je ook nog eens snel de beste deals sluiten!

  • Kaart
  • Streetview