Zomerstraat 25 2033 EN Haarlem

75m2
Wonen
4
Kamers
82m2
Perceel
1906
Bouwjaar
Familiewoning nabij het centrum met nieuwe fundering!

Maak jij van deze woning jouw eigen huis? De woning ligt nabij het centrum, heeft een nieuwe fundering, kunststofkozijnen en is al aan de voorzijde en achterzijde recht op getrokken. Op de begane grond heb je een ruime woonkamer met hoge plafonds en open keuken met toegang tot de tuin met achterom. Op de eerste etage vind je 3 slaapkamers en een badkamer met toilet en wasbak. De plafonds op deze etage zijn net een paar centimeter te laag om officieel tot gebruiksoppervlak wonen meegerekend te worden maar er is ruimte om dit plafond te verhogen door de bovengelegen vliering erbij te betrekken. Het officiële meetrapport zit bij de documenten. Wellicht ga je wel opbouwen? Dit is uiteraard wel vergunning plichtig. Kortom een hele leuke woning met veel potentie. Voor wat inspiratie hebben we twee Artist Impressions bijgevoegd.

Deze leuke woning ligt in de gezellige en kindvriendelijke Slachthuisbuurt die volop in ontwikkeling is. Scholen zijn goed bereikbaar en het centrum van Haarlem met zijn vele terrasjes, restaurants en winkels ligt op enkele minuten loopafstand. Boodschappen doe je bijvoorbeeld in de gezellige Amsterdamstraat of op vrijdacht op de markt op de Zomerkade. De duinen en het strand van Bloemendaal en Zandvoort zijn eveneens op de fiets makkelijk te bereiken. De woning ligt verder ook goed ten opzichte van het openbaar vervoer en de diverse uitvalswegen naar Amsterdam, Schiphol, Den Haag en Alkmaar. Kortom, een fijne en centrale woonomgeving!

Je komt toch ook kijken? Dit kan bij Noort Makelaars door de week en ook op zaterdag!

Loop je alvast mee door de woning?
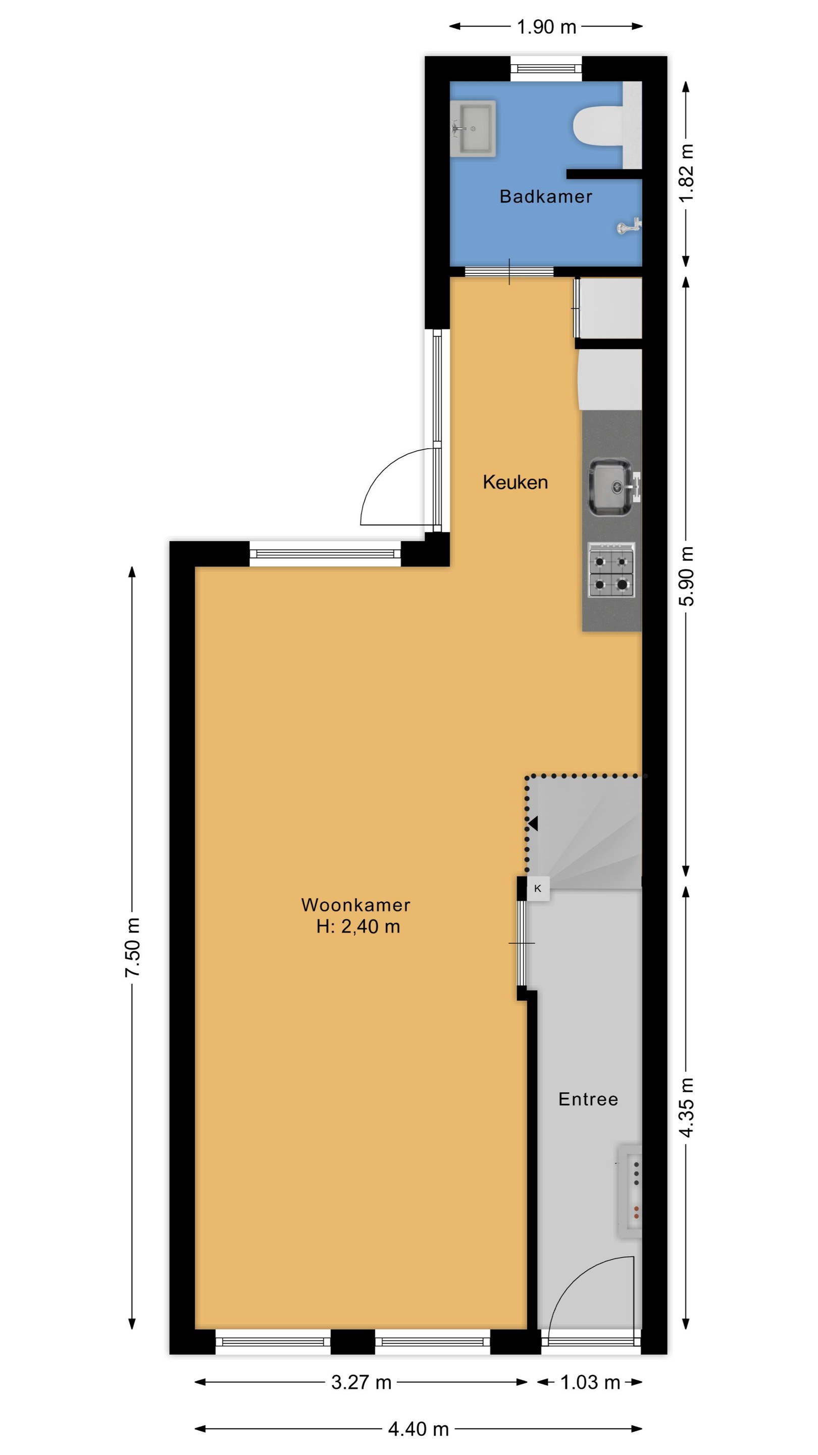
Je komt binnen in de hal met de vernieuwde meterkast (2004). De woning heeft op de begane grond een betonnen vloer en dus geen houten balken meer. Aan het einde van de gang vind je de opgang naar de eerste etage en de deur naar de woonkamer. De woonkamer heeft hoge plafonds en heeft een eiken lamellen parket die nog opgeschuurd kan worden als dit gewenst is. Aan de achterzijde van de woning vind je de keuken met inbouwpparatuur. Denk hierbij aan een oven, koel/vries combinatie een vaatwasser en een 4 pits kookplaat. De wasmachine en droger zijn hier ook in een kast ingebouwd en dus mooi uit het zicht. Warm water heb je in de keuken direct door de close-in-boiler. Achter de keuken vind je de eerste badkamer met douche, wastafel en het toilet. De achtertuin heeft een mooie maat en heeft een achterom.

Op de eerste etage vind je drie slaapkamers en een ruim toilet met wastafel. De riolering ligt er al dus een volwaarde badkamer is zeker een optie.

Op de tweede etage vind je een vliering voor extra bergruimte. Wellicht ga je opbouwen? In de straat staan al mooie voorbeelden.

De belangrijkste punten nog even op een rij:
- Familiewoning met potentie
- Op enkele minuten loopafstand van het centrum
- Nieuwe fundering
- betonnen vloer op de begane grond
- Eiken houten lamelparket
- Nieuwe riolering, elektra en leidingen
- Bijna geheel voorzien van kunststofkozijnen met dubbel glas
- Energielabel E
- Tuin met achterom
- Eigen grond
- Parkeren middels vergunningen, geen wachtlijst
- Verderop in de straat vrij parkeren
- Oplevering in overleg
Lees meer

Kenmerken

Overdracht

Prijs per m2
€ 6.266
Aangeboden sinds
21 januari 2026
Status
Beschikbaar
Aanvaarding
Direct

Bouw

Soort woonhuis
Eengezinswoning, tussen woning
Soort bouw
Bestaande bouw
Bouwjaar
1906
Soort dak
Samengesteld dak
Staat van onderhouden binnen
Goed
Staat van onderhouden buiten
Goed

Oppervlakte en inhoud

Perceeloppervlakte
82 m2
Inhoud van de woning
253 m3

Indeling

Aantal kamers
4
Aantal slaapkamers
3
Aantal woonlagen
3
Voorzieningen
Tuin, kabel-tv, glasvezel

Buitenruimte

Balkon
Nee
Schuur/berging
Nee

Maandlasten berekenen

De maandlasten voor je woning bestaan uit meer dan alleen de hypotheeklasten. Hieronder vind je een overzicht van de bijkomende kosten en lasten. Zo weet je precies wat je huis per maand gaat kosten. En met de handige vergelijkers kun je ook nog eens snel de beste deals sluiten!

  • Kaart
  • Streetview