Verkocht

Van Wickevoort Crommelinstraat 16 2024 EM Haarlem

110m2
Wonen
5
Kamers
105m2
Perceel
1934
Bouwjaar
Charmante jaren ’30-eengezinswoning in Haarlem: warm welkom op de Van Wickevoort Crommelinstraat 16.
Zoek je een plekje waar geschiedenis en gemak hand in hand gaan, dan moet je écht even verder lezen. Deze tussenwoning aan de Van Wickevoort Crommelinstraat 16 heeft alles wat je nodig hebt voor een comfortabel gezinsleven, een knus thuis met z’n tweeën óf als fijne plek voor ouders die wat ruimer willen wonen. Gebouwd in 1934, dus karakter genoeg, maar inmiddels natuurlijk helemaal aangepast aan de eisen van nu. Kom gerust binnen!
Het eerste wat opvalt bij binnenkomst? Die authentieke details! Denk aan glas-in-loodramen, prachtige paneeldeuren en originele plafonds. Ze geven het huis een warme, gezellige sfeer!
De Van Wickevoort Crommelinstraat ligt in een rustige, kindvriendelijke straat van Haarlem. Alles wat je nodig hebt, vind je om de hoek: fijne scholen, speeltuinen, supermarkten, leuke winkels en horecagelegenheden. Haal je verse brood op zaterdag lekker lopend bij de bakker om de hoek. En wil je eropuit? Met de fiets, het openbaar vervoer en uitvalswegen dichtbij ben je zo het centrum in, bij duinen en zee of richting Amsterdam.
Niet alleen sfeer telt, maar ook comfort. Er is volop aandacht besteed aan isolatie. Dankzij het energielabel B hoef je niet bang te zijn voor koude voeten in de winter. Daarnaast biedt de structuur van het huis veel mogelijkheden om je eigen draai eraan te geven—van extra kamer tot werkplek of hobbyruimte.
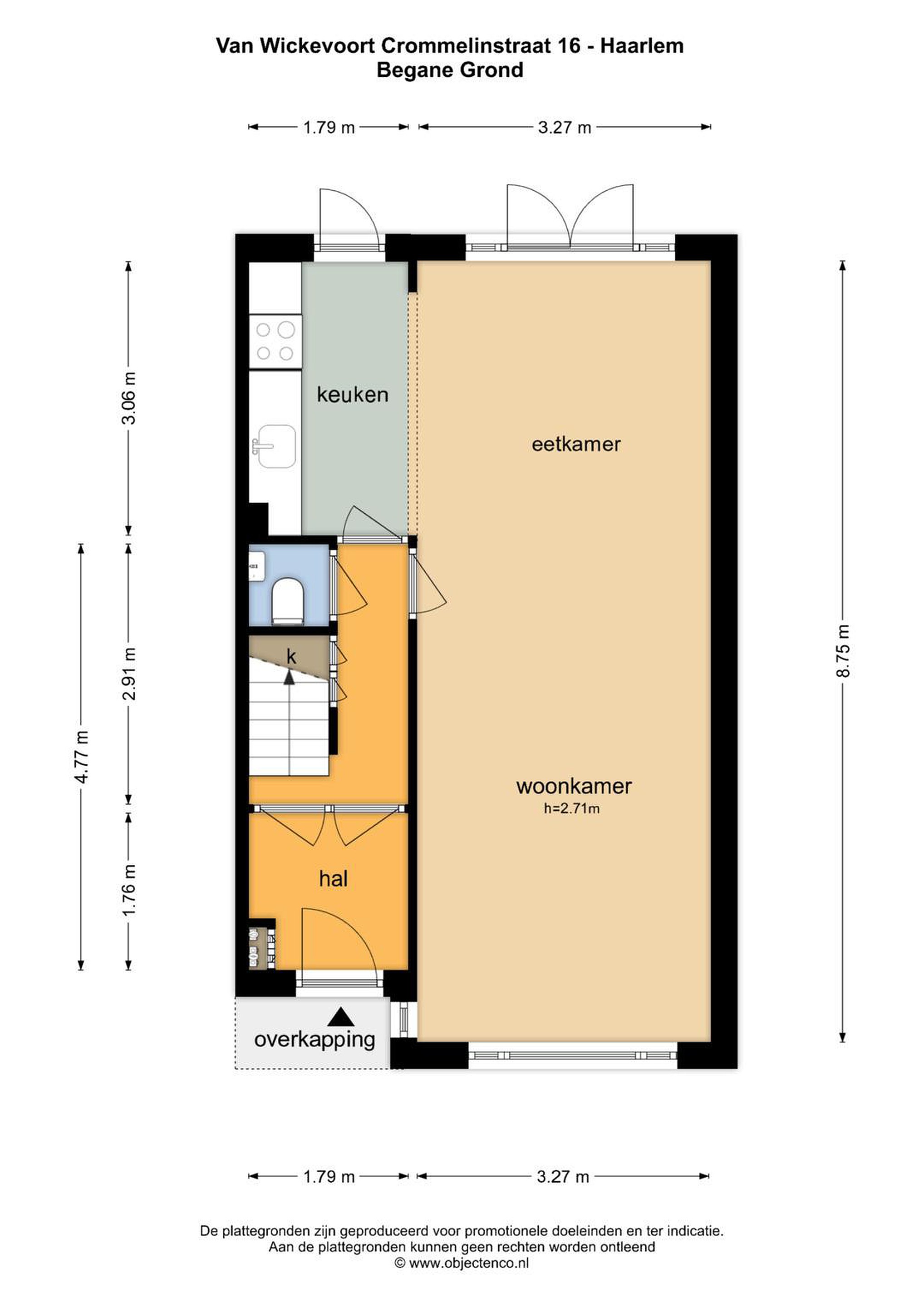
Begane grond
Entree, vestibule met meterkast, gang met toilet en trapkast. Woonkamer met prachtige eiken vloer en openslaande deuren naar de tuin. Open keuken met loopdeur naar de tuin. De tuin is op het zuiden gelegen en heeft een grote berging en achterom.

Eerste verdieping
overloop met drie slaapkamers en een badkamer (vernieuwd in 2023). Achterslaapkamer geeft toegang naar het balkon.

Tweede verdieping
overloop met wasbak, wasmachine en drogeropstelling en een grote slaapkamer (voorheen 2 slaapkamers) met zowel aan de voor, als aan de achterzijde een dakkapel.
Zin om te komen kijken? Neem snel contact op en ervaar zelf de charme van deze bijzondere woning!

Details
- Woning is geheel gerenoveerd in 2023
- Tonzon vloerisolatie in de woonkamer (2023)
- Nieuwe keuken (2023)
- Nieuwe badkamer (2023)
- Energielabel B
- CV-installatie (2023)
- Zolderisolatie (2023)
- Nieuwe meterkast en geaarde stopcontacten
- Schilderwerk (2023)
- Bijna gehele woning voorzien van HR++ glas


Lees meer

Verkoopgeschiedenis

Aangeboden sinds
26 september 2025
Verkoopdatum
15 oktober 2025
Looptijd
19 dagen

Kenmerken

Overdracht

Prijs per m2
€ 6.763
Aangeboden sinds
26 september 2025
Status
Verkocht
Aanvaarding
In overleg

Bouw

Soort woonhuis
Eengezinswoning, tussen woning
Soort bouw
Bestaande bouw
Bouwjaar
1934
Soort dak
Zadeldak
Staat van onderhouden binnen
Goed
Staat van onderhouden buiten
Goed

Oppervlakte en inhoud

Perceeloppervlakte
105 m2
Inhoud van de woning
413 m3
Oppervlakte externe bergruimte
7 m2
Oppervlakte gebouwgebonden buitenruimten
6 m2

Indeling

Aantal kamers
5
Aantal slaapkamers
4
Aantal woonlagen
3
Voorzieningen
Tuin

Buitenruimte

Balkon
Nee
Schuur/berging
Nee

Maandlasten berekenen

De maandlasten voor je woning bestaan uit meer dan alleen de hypotheeklasten. Hieronder vind je een overzicht van de bijkomende kosten en lasten. Zo weet je precies wat je huis per maand gaat kosten. En met de handige vergelijkers kun je ook nog eens snel de beste deals sluiten!

  • Kaart
  • Streetview