Verkocht OV

Mathijsenstraat 42 2035 CN Haarlem

109m2
Wonen
5
Kamers
156m2
Perceel
1964
Bouwjaar
Compleet verbouwde familiewoning

Wat een heerlijke woning waar je zo in kan. De huidige eigenaren hebben de woning de laatste jaren geheel onderhanden genomen. Denk aan een nieuwe luxe keuken, nieuwe badkamer, stucwerk, beneden nieuwe kozijnen met HR++ glas en 8 zonnepanelen. Te veel om hier op te noemen maar kom vooral kijken want je hebt hier een heerlijk gezinshuis in een rustige en brede straat die zo te betrekken is. Er zijn vier goede kamers en een vliering die nog op te hogen is voor een extra woonverdieping.

De woning is gelegen in een rustige en brede straat in Haarlem Nieuw-Zuid op enkele minuten fietsafstand van een groot winkelcentrum die momenteel in zijn geheel wordt vernieuwd. Hier ontstaat een nieuw stadshart. Bezoekers kunnen er straks zeven dagen in de week terecht om te winkelen, naar de bioscoop te gaan en gebruik maken van de nieuwe restaurantjes.

Je komt toch ook kijken? Dit kan bij Noort Makelaars door de week en ook op zaterdag!

Loop je alvast mee door de woning?
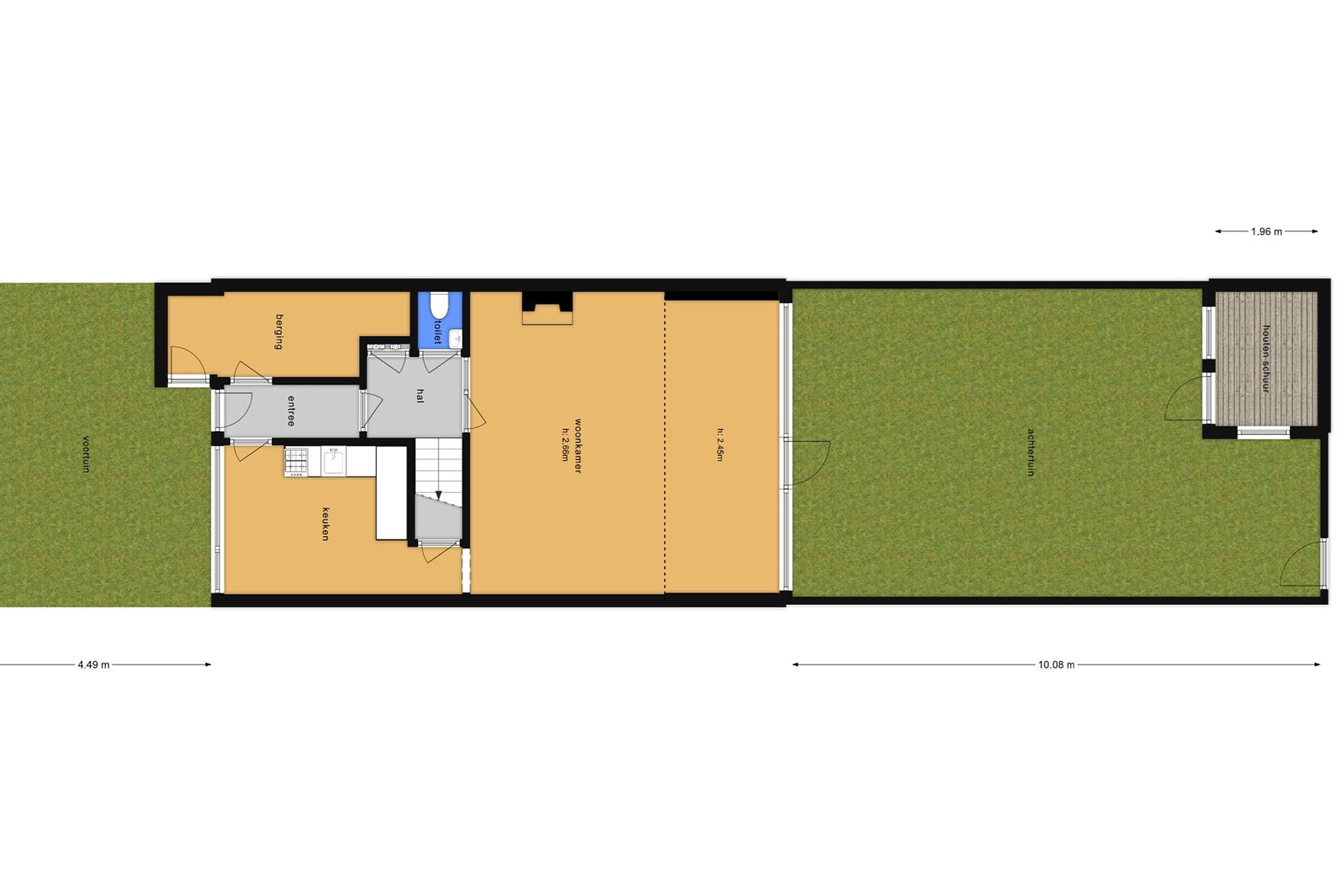
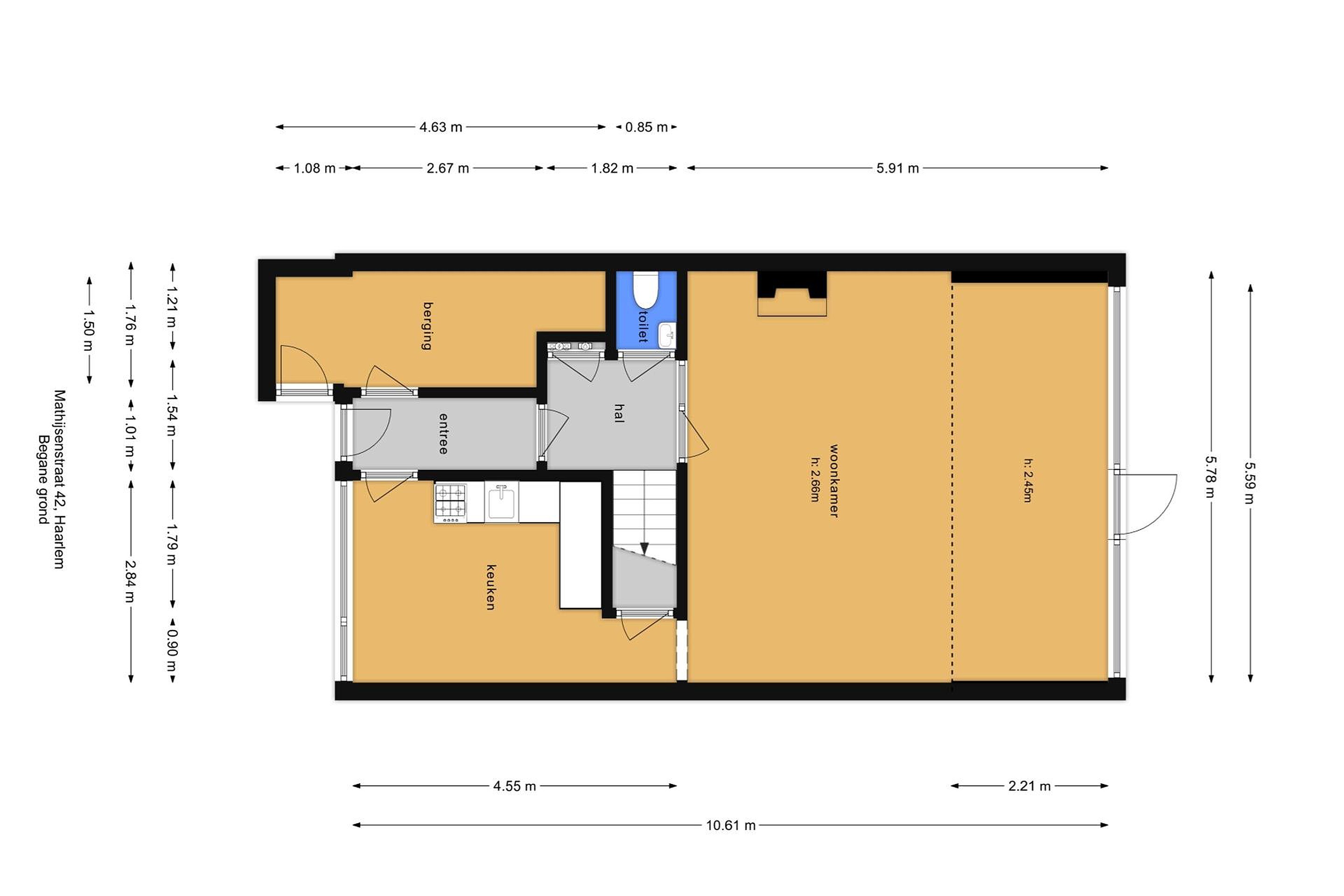
Via de voortuin kom je in de centrale hal die weer toegang geeft tot de woonkamer, de opgang naar de eerste verdieping, het toilet, de berging en de grote uitgebouwde woonkamer. De woonkamer heeft een open keuken en geeft toegang tot de zonnige achtertuin met schuur en achterom. De tuin is op het zonnige westen gelegen.

Op de eerste verdieping vind je een ruime overloop, 4 goede slaapkamers en een badkamer met een tweede toilet. Op de overloop is er een toegangsluik naar de grote vliering

De vliering is erg groot en is om te bouwen tot een extra woonlaag

De belangrijkste punten nog even op een rij:
- Geheel verbouwde familiewoning en zo te betrekken
- Rustige en brede straat
- 4 slaapkamers
- Geheel voorzien van kunststof kozijnen
- Beneden nieuwe kozijnen en HR++ glas (2023)
- 8 zonnepanelen (2023)
- Energielabel B
- Uitgebouwde woning
- Nieuwe keuken en badkamer (2021)
- Nieuwe cv-ketel (2021)
- Vier slaapkamers
- Voortuin
- Zonnige achtertuin op het westen met schuur en achterom
- Grote vliering (derde woonlaag mogelijk)
- Eigen grond
- Vrij parkeren
- Aanvaarding in overleg, kan snel
- Ook op zaterdag te bezichtigen
Lees meer

Kenmerken

Overdracht

Prijs per m2
€ 4.707
Aangeboden sinds
8 oktober 2025
Status
Verkocht onder voorbehoud
Aanvaarding
In overleg

Bouw

Soort woonhuis
Eengezinswoning, tussen woning
Soort bouw
Bestaande bouw
Bouwjaar
1964
Soort dak
Zadeldak
Staat van onderhouden binnen
Goed
Staat van onderhouden buiten
Goed

Oppervlakte en inhoud

Perceeloppervlakte
156 m2
Inhoud van de woning
406 m3

Indeling

Aantal kamers
5
Aantal slaapkamers
4
Aantal woonlagen
3
Voorzieningen
Tuin, schuur/berging, ventilatie, open haard, kabel-tv

Buitenruimte

Balkon
Nee
Schuur/berging
Ja

Maandlasten berekenen

De maandlasten voor je woning bestaan uit meer dan alleen de hypotheeklasten. Hieronder vind je een overzicht van de bijkomende kosten en lasten. Zo weet je precies wat je huis per maand gaat kosten. En met de handige vergelijkers kun je ook nog eens snel de beste deals sluiten!

  • Kaart
  • Streetview