Verkocht

Bezembinder 52 6562 JP Groesbeek

104m2
Wonen
5
Kamers
136m2
Perceel
2007
Bouwjaar
Opvallend ruime luxe uitgevoerde TUSSENWONING met houten TUINBERGING en zonnige tuin (ZW) met achterom gelegen in een rustige gewilde moderne woonwijk.
Begane grond
hal/entree, luxe (hang)toilet met fontein, L-vorm eet-/woonkamer met bergkast, airco-unit en toegang tot terras en tuin middels openslaande deuren, halfopen keuken met luxe keukenblok in dubbele opstelling met diverse inbouwapparatuur. De woonkamer en keuken is voorzien van een eikenhouten vloer.

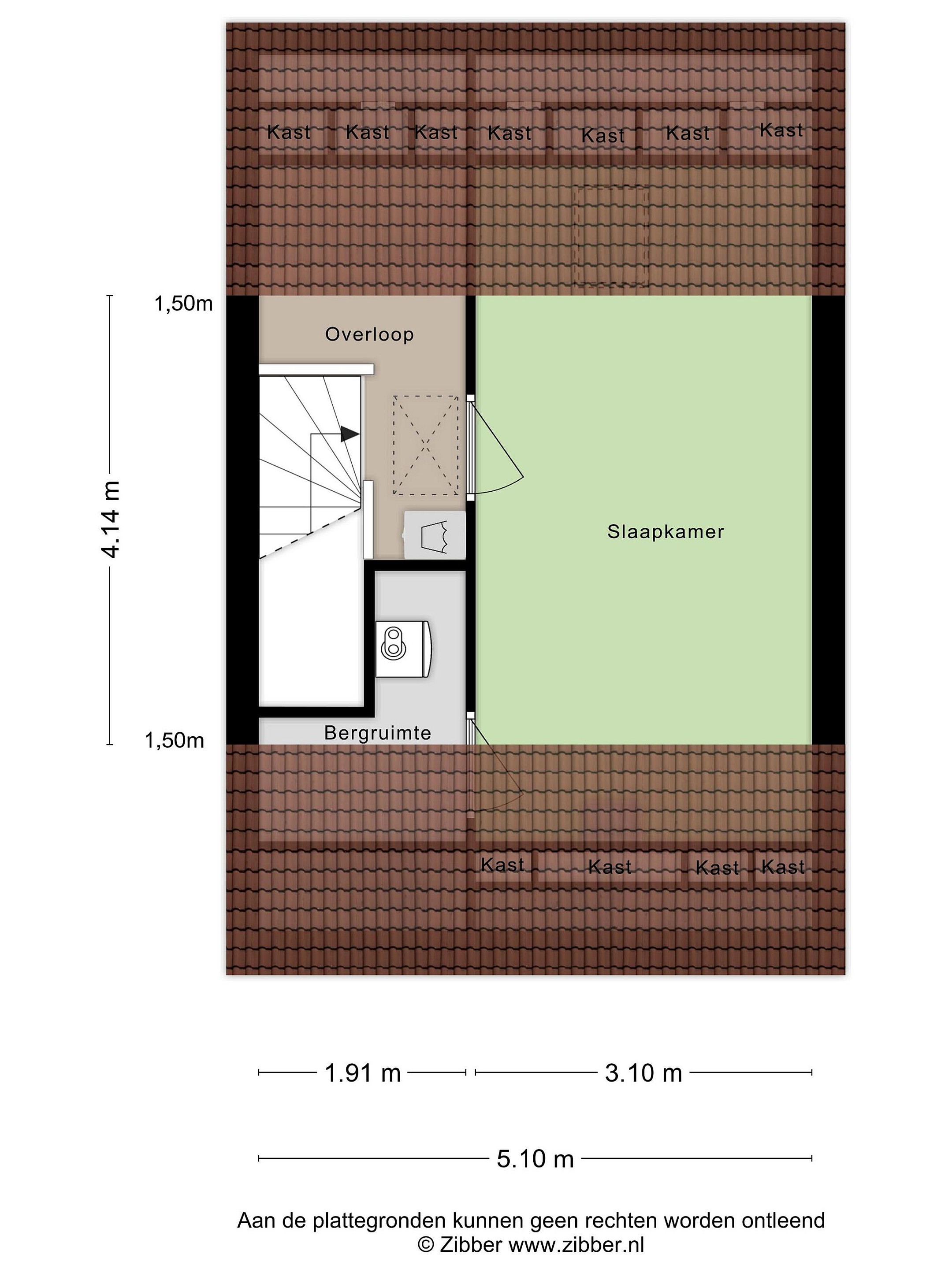
Eerste verdieping
overloop, 3 slaapkamers allen voorzien van dakramen, luxe moderne badkamer met ligbad, douchecabine, 2e toilet, vaste wastafel in badkamermeubel en designradiator.

Tweede verdieping
middels vaste trap te bereiken voorzolder met bergruimten en wasmachine-aansluiting, ruime 4e slaapkamer met dakraam.

Tuin
Onderhoudsvriendelijke zonnige achtertuin, gelegen op het zuidwesten, met achterom en vrijstaande houten tuinberging.

Details
De woning is gebouwd onder moderne architectuur en volledig voorzien van isolatie, Remeha HR combiketel (bouwjaar 2023), 10 zonnepanelen (eigendom, geplaatst 2024) ligging op het zuidwesten, airco-unit in woonkamer. Het definitieve energielabel A is geldig tot 21-06-2028.
Rustige kindvriendelijke woonomgeving nabij het buitengebied, scholen, een supermarkt, openbaar vervoer en het centrum van Groesbeek met al haar voorzieningen. Er is parkeergelegenheid in de directe omgeving van de woning.

Lees meer

Verkoopgeschiedenis

Aangeboden sinds
23 januari 2026
Verkoopdatum
19 maart 2026
Looptijd
2 maanden

Kenmerken

Overdracht

Prijs per m2
€ 3.827
Aangeboden sinds
23 januari 2026
Status
Verkocht
Aanvaarding
In overleg

Bouw

Soort woonhuis
Eengezinswoning, tussen woning
Soort bouw
Bestaande bouw
Bouwjaar
2007
Soort dak
Zadeldak
Staat van onderhouden binnen
Goed
Staat van onderhouden buiten
Goed

Oppervlakte en inhoud

Perceeloppervlakte
136 m2
Inhoud van de woning
345 m3
Oppervlakte externe bergruimte
5 m2
Oppervlakte overige inpandige ruimten
2 m2

Indeling

Aantal kamers
5
Aantal slaapkamers
4
Aantal woonlagen
4
Voorzieningen
Tuin, schuur/berging, ventilatie, glasvezel, airconditioning, dakraam

Buitenruimte

Balkon
Nee
Schuur/berging
Ja

Maandlasten berekenen

De maandlasten voor je woning bestaan uit meer dan alleen de hypotheeklasten. Hieronder vind je een overzicht van de bijkomende kosten en lasten. Zo weet je precies wat je huis per maand gaat kosten. En met de handige vergelijkers kun je ook nog eens snel de beste deals sluiten!

  • Kaart
  • Streetview