Verkocht

Magalhaeslaan 18 2803 XA Gouda

135m2
Wonen
6
Kamers
170m2
Perceel
1968
Bouwjaar
Deze ruime tussenwoning is gelegen in een kindvriendelijke, groene en ruim opgezette buurt
het Windrooskwartier. Deze wijk is gelegen in woonwijk Bloemendaal.

De eengezinswoning Magalhaeslaan 18 beschikt over een fraaie woonkamer,
open keuken, 5 slaapkamers, stenen berging en achtertuin op het noordoosten.

De woning is gunstig gelegen in de nabijheid van het NS Station, winkels, scholen en uitvalswegen.


Begane grond
(voor schematische indeling en afmetingen bekijkt u de plattegronden)

Begane grond:
Ruime entree met meterkast ( 7 groepen en 5 aardlekautomaat) en vaste (garderobe) kast.
Via de tussendeur komt u in de hal met de trapopgang naar de eerste verdieping, het toilet is betegeld en heeft een hangtoilet.

On de trap naar boven bevind zich de voorraadkast.

Via de tussendeur is er toegang tot de ruime lichte doorzon woonkamer.

De ruime keuken is gelegen aan de achterzijde van de woning en middels een loopdeur is er toegang tot de fraai aangelegde achtertuin met achterom. Deze is gelegen op het noordoosten.

De open keuken is voorzien van alle benodigde inbouwapparatuur; vaatwasser, koelkast, oven, magnetron,
4 pits gasfornuis, RVS afzuigkap.

De keuken biedt veel bergruimte en is afgewerkt met een kunststof werkblad.

De gehele begane grond is voorzien van een laminaat vloer.

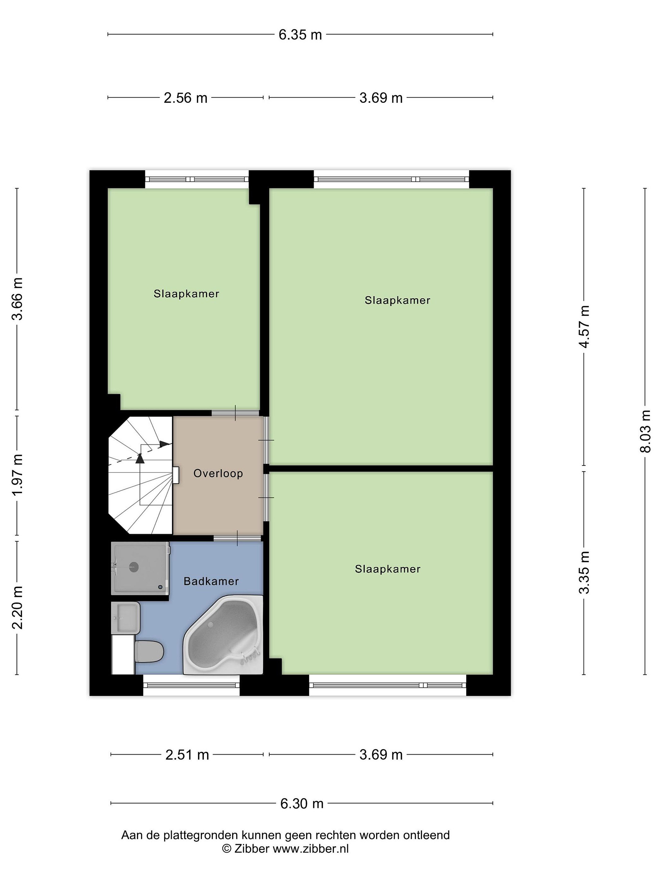
Eerste verdieping
Overloop met toegang tot 3 slaapkamers en badkamer.

Aan de voorzijde van de woning is de badkamer en een slaapkamer.
Aan de achterzijde 2 slaapkamers.

De breedte van de slaapkamers springt in het oog.

De badkamer heeft een douchecabine, een toilet, wastafel en het bad is in de hoek geplaatst

Deze eerste verdieping voor zien van laminaat

Tweede verdieping
Goed en praktisch ingedeelde 2e verdieping:

Overloop met 2 slaap(werk)kamers.

Beide slaap(werk)kamers met dakkapellen. Veel bergruimte onder de kap.

De opstelplaats voor de Cv- Ketel en de wasapparatuur is geplaatst in een aparte wasruimte, ook weer met opbergruimte onder de kap.

De tweede verdieping voorzien van laminaat



Tuin
Fraai aangelegde voortuin met een rustige entree.

Brede en diepe achtertuin met meerdere mogelijkheden voor bijvoorbeeld een zit gedeelte of speel attributen voor kinderen, De achtertuin ligt op het Noordoosten

In de achtertuin staat de stenen berging

Details
- 5 ruime slaapkamers;
- Ruime open keuken met inbouw apparaten.
- Dakkapellen aan voorzijde en aan achterzijde, aangebracht op de 2e verdieping.
- Lichte ruime doorzon woonkamer;
- De gehele begane grond voorzien van een laminaatvloer, zo ook de etages.
- Achtertuin met achterom, gelegen op het noordoosten.
- Royale voortuin;


Meetinstructie is gebaseerd op de NEN2580. De Meetinstructie is bedoeld om een meer eenduidige manier van meten toe te passen voor het geven van een indicatie van de gebruiksoppervlakte. De Meetinstructie sluit verschillen in meetuitkomsten niet volledig uit, door bijvoorbeeld interpretatieverschillen, afrondingen of beperkingen bij het uitvoeren van de meting.

Alle verstrekte informatie moet beschouwd worden als een uitnodiging tot het doen van een bod of om in onderhandeling te treden. Er kunnen geen rechten worden ontleend aan deze woninginformatie.


Lees meer

Verkoopgeschiedenis

Aangeboden sinds
27 november 2025
Verkoopdatum
18 april 2026
Looptijd
5 maanden

Kenmerken

Overdracht

Prijs per m2
€ 3.667
Aangeboden sinds
27 november 2025
Status
Verkocht
Aanvaarding
In overleg

Bouw

Soort woonhuis
Eengezinswoning, tussen woning
Soort bouw
Bestaande bouw
Bouwjaar
1968
Soort dak
Zadeldak
Staat van onderhouden binnen
Goed
Staat van onderhouden buiten
Goed

Oppervlakte en inhoud

Perceeloppervlakte
170 m2
Inhoud van de woning
477 m3
Oppervlakte externe bergruimte
8 m2

Indeling

Aantal kamers
6
Aantal slaapkamers
5
Aantal woonlagen
3
Voorzieningen
Tuin, schuur/berging

Buitenruimte

Balkon
Nee
Schuur/berging
Ja

Maandlasten berekenen

De maandlasten voor je woning bestaan uit meer dan alleen de hypotheeklasten. Hieronder vind je een overzicht van de bijkomende kosten en lasten. Zo weet je precies wat je huis per maand gaat kosten. En met de handige vergelijkers kun je ook nog eens snel de beste deals sluiten!

  • Kaart
  • Streetview