Verkocht OV

IJssellaan 117 2806 TE Gouda

71m2
Wonen
3
Kamers
159m2
Perceel
1930
Bouwjaar
Aan IJssellaan 117 te Gouda gelegen tussenwoning voor kopers die een woning willen kopen en de woning (volledig) naar eigen smaak/wensen willen aanpassen.

Deze karakteristieke woning is gelegen op een leuke, centrale plek in Gouda op loopafstand van de binnenstad.
Het betreft een tweelaagse tussenwoning waarvan de begane grond is uitgebouwd.

Hierdoor is er op de begane grond de ruime woonkamer / eetkamer en half open keuken te vinden.
Op de begane grond treft u ook aan de badkamer en het toilet.

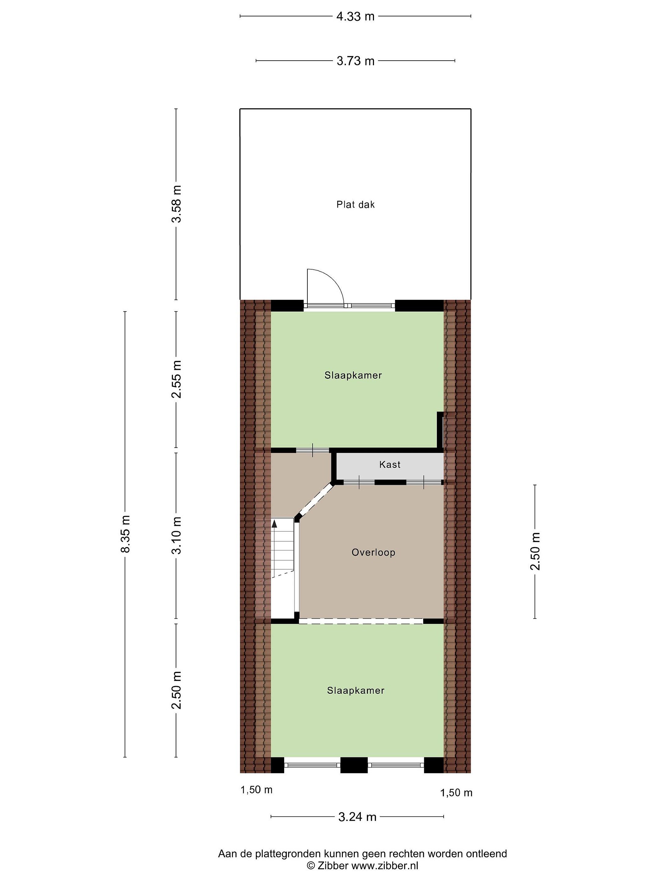
Vervolgens is op de eerste verdieping een open ruimte, waar u meerdere slaap/werkkamers kunt realiseren.

De tuin is diep, circa 30 meter (inclusief de berging) Op iedere plek in de tuin kunt u van de zon genieten.

De woning is gelegen in de woonwijk Kort Haarlem, op vijf minuten loopafstand van de gezellige historische binnenstad van Gouda, waar zich tal van restaurants, terrassen en winkels bevinden. Het NS-station van Gouda is in slechts enkele minuten met de fiets te bereiken. Ook scholen, sportaccommodaties en zorgvoorzieningen bevinden zich in de directe nabijheid. I
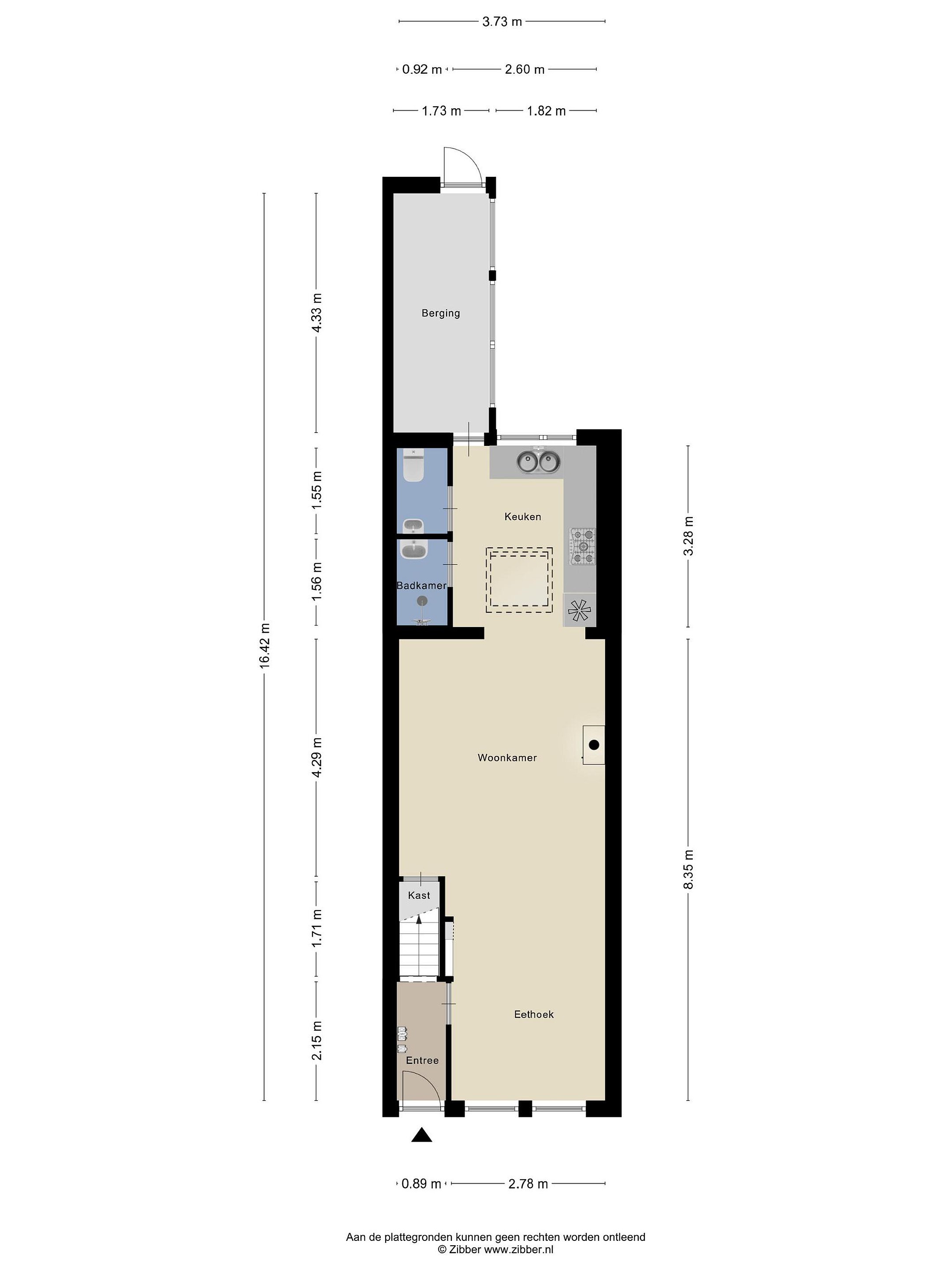
Begane grond
(voor schematische indeling en afmetingen bekijkt u de plattegronden)

Begane grond:
Entree/hal met meterkast en toegang tot de woonkamer.

Door de uitbouw op de begane grond is er bijzonder veel ruimte in de woonkamer ontstaan,

De keuken is voorzien van een lichtkoepel voor extra lichtinval.
In de keuken is aanwezig het 4-pits kooktoestel, de koelkast en de afzuigkap.

Op deze verdieping treft u ook het toilet en de badkamer aan.

Achter de keuken, aan de tuinzijde, bevindt zich de berging.

De achtertuin ligt op het oosten.
Door de diepte is er overdag en ’s avonds altijd een plekje in de zon of schaduw te vinden.

Eerste verdieping
Een open ruimte, vrij in te delen voor meerdere slaap/werkkamers, zeker 3 kamers is mogelijk.

Vanuit de eerste verdieping kunt u op het dakterras stappen.

Tuin
De achtertuin is diep, circa 30 meter (inclusief de berging) Op iedere plek in de tuin kunt u van de zon genieten.

Ook is een achterom aanwezig.

Details
De woning is klaar voor kopers die een verbouwing willen (laten) aanpakken.

- Bouwjaar: ca. 1903
- Perceeloppervlakte 159 m2
- Woonoppervlak: ca. 71 m2
- Overige inpandige ruimte: 7,5 m2
- Inhoud 279 m3

- Gelegen op eigen grond
- Diepe tuin op het oosten
- Zeer ruime berging
- Energielabel G
- Uitgebouwd op de begane grond
- Op vijf minuten loopafstand van de Goudse binnenstad
- Oplevering in overleg / kan snel.

Gebruiksoppervlakte woningen:
De Meetinstructie is gebaseerd op de NEN2580. De Meetinstructie is bedoeld om een meer eenduidige manier van meten toe te passen voor het geven van een indicatie van de gebruiksoppervlakte. De Meetinstructie sluit verschillen in meetuitkomsten niet volledig uit, door bijvoorbeeld interpretatieverschillen, afrondingen of beperkingen bij het uitvoeren van de meting.

Alle verstrekte informatie moet beschouwd worden als een uitnodiging tot het doen van een bod of om in onderhandeling te treden. Er kunnen geen rechten worden ontleend aan deze woninginformatie.
In de koopakte wordt de ouderdomsclausule en de niet-bewonersclausule opgenomen.



Lees meer

Kenmerken

Overdracht

Prijs per m2
€ 4.014
Aangeboden sinds
17 oktober 2025
Status
Verkocht onder voorbehoud
Aanvaarding
In overleg

Bouw

Soort woonhuis
Eengezinswoning, tussen woning
Soort bouw
Bestaande bouw
Bouwjaar
1930
Soort dak
Zadeldak
Staat van onderhouden binnen
Redelijk
Staat van onderhouden buiten
Redelijk

Oppervlakte en inhoud

Perceeloppervlakte
159 m2
Inhoud van de woning
279 m3
Oppervlakte overige inpandige ruimten
7 m2

Indeling

Aantal kamers
3
Aantal slaapkamers
2
Aantal woonlagen
2
Voorzieningen
Tuin, schuur/berging

Buitenruimte

Balkon
Nee
Schuur/berging
Ja

Maandlasten berekenen

De maandlasten voor je woning bestaan uit meer dan alleen de hypotheeklasten. Hieronder vind je een overzicht van de bijkomende kosten en lasten. Zo weet je precies wat je huis per maand gaat kosten. En met de handige vergelijkers kun je ook nog eens snel de beste deals sluiten!

  • Kaart
  • Streetview