Verkocht

Beneluxlaan 64 6164 ET Geleen

160m2
Wonen
4
Kamers
323m2
Perceel
1972
Bouwjaar
De biedingstermijn voor deze woning sluit op: Zondag 12 oktober om 23.59 uur.

Wegens de grote hoeveelheid aanvragen is het helaas niet meer mogelijk een bezichtiging voor deze woning in te plannen.
Indien u graag op de reservelijst geplaatst wenst te worden, kunt u ons een mail sturen met uw gegevens!

Wil jij je spullen inpakken en meteen je intrek kunnen nemen zonder poespas? Dan is deze prachtige, instapklare, luxueus afgewerkte hoekwoning in “Geleen Zuid” voor jou uitermate geschikt. De woning beschikt o.a. over 3 slaapkamers, een aanbouw met een prachtige keuken inclusief eiland, een riante vernieuwde badkamer en een heerlijke tuin met optimale privacy.
Ook diverse voorzieningen zoals scholen, winkels en de belangrijkste uitvalswegen zijn snel bereikbaar.
Begane grond
Begane grond:
Ruime, sfeervolle entree/hal met meterkast, toilet voorzien van een hangcloset met fonteintje, garderobe en bergruimte onder de trap en de trapopgang naar de 1e verdieping.

Smaakvolle woon/eetkamer welke voorzien is van grote ramen welke zorgen voor optimale lichtinval en prachtig uitzicht over een brede groenstrook. De aanwezigheid van prachtige deuren biedt de mogelijkheid om het woonkamer gedeelte te scheiden van het keuken / kantoor gedeelte en in alle rust te kunnen werken.
In het verlengde van de woon/eetkamer bevindt zich de prachtige keuken inclusief kookeiland. De keuken is voorzien van de volgende inbouwapparatuur: koelkast, diepvries, vaatwasser, inductie kookplaat, 2 combi-ovens, kokend waterkraan en een afzuigkap.

Vanuit de keuken is de kantoor ruimte toegankelijk.
Achter de kantoorruimte bevindt zich een berging alwaar de aansluitpunten voor de wasmachine/wasdroger gesitueerd zijn.
Zowel in de woonkamer als in de kantoorruimte bevindt zich een airco-unit.

De gehele begane grond is voorzien van een pvc visgraatvloer.

Tuin:
Keurig aangelegde en onderhouden gezellige tuin welke voorzien is van een 2 betegelde terrassen, een gazon en diverse borders met beplanting.

Garage:
Aan de achterzijde van de woning bevindt zich een ruime vrijstaande garage met voorgelegen oprit.

Eerste verdieping:
Overloop, berging/kleedruimte, twee ruime slaapkamers en een vernieuwde, luxueuze badkamer.
De badkamer is voorzien van een zeer riante dubbele inloopdouche, groot vrijstaand ligbad, dubbele wastafel met opbergmeubel, designradiator en een toilet.
Op de overloop bevindt zich een airco-unit.
De gehele verdieping m.u.v. de badkamer is voorzien van een laminaatvloer.

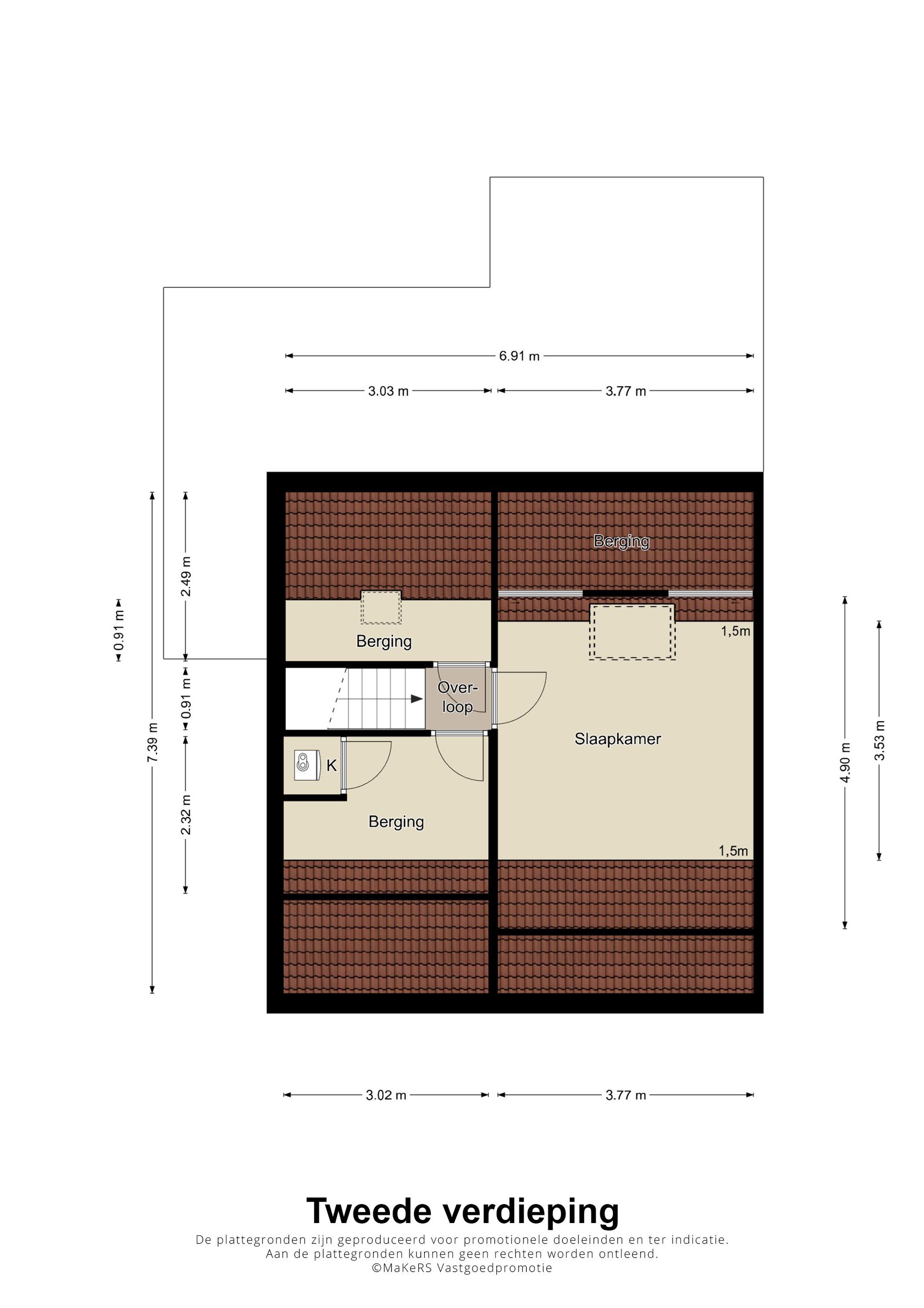
Tweede verdieping:
Vaste trap met toegang tot de zolder. Hier bevindt zich een 3e ruime slaapkamer welke voorzien is van een groot dakraam. Ook bevinden zich hier 2 separate bergingen en de opstelplaats van de cv-installatie. Tevens bevindt zich hier een airco-unit.
De tweede verdieping is voorzien van een goede vloerisolatie en een PVC vloer (de kleine berging is voorzien van een laminaatvloer).

Details
Instapklaar;
Hoog afwerkingsniveau;
Perfecte locatie;
Laadpaal aanwezig;
De woning is deels voorzien van rolluiken;
Cv installatie / eigendom / Vaillant Ecotec Plus / 2022;
De woning is voorzien van maar liefst 4 airco units / eigendom / Daikin en Tosot / 2017-2020-2023;
Voorzien van 24 zonnepanelen / eigendom / Rec / 2018-2019-2020 ;
De woning is voorzien van kunststof kozijnen met HR ++ glas. Enkel de deur en het raam in de garage is van hout.

Lees meer

Verkoopgeschiedenis

Aangeboden sinds
2 oktober 2025
Verkoopdatum
24 oktober 2025
Looptijd
22 dagen

Kenmerken

Overdracht

Prijs per m2
€ 2.744
Aangeboden sinds
2 oktober 2025
Status
Verkocht
Aanvaarding
In overleg

Bouw

Soort woonhuis
Eengezinswoning, hoek woning
Soort bouw
Bestaande bouw
Bouwjaar
1972
Soort dak
Zadeldak
Staat van onderhouden binnen
Uitstekend
Staat van onderhouden buiten
Uitstekend

Oppervlakte en inhoud

Perceeloppervlakte
323 m2
Inhoud van de woning
641 m3
Oppervlakte externe bergruimte
28 m2

Indeling

Aantal kamers
4
Aantal slaapkamers
3
Aantal woonlagen
3
Voorzieningen
Tuin, ventilatie, rolluiken, airconditioning, dakraam

Buitenruimte

Balkon
Nee
Schuur/berging
Nee

Maandlasten berekenen

De maandlasten voor je woning bestaan uit meer dan alleen de hypotheeklasten. Hieronder vind je een overzicht van de bijkomende kosten en lasten. Zo weet je precies wat je huis per maand gaat kosten. En met de handige vergelijkers kun je ook nog eens snel de beste deals sluiten!

  • Kaart
  • Streetview