Verkocht

Van Beekweg 7 3851 LP Ermelo

122m2
Wonen
4
Kamers
345m2
Perceel
1935
Bouwjaar
Stijlvolle vrijstaande jaren ’30 woning in hartje Ermelo!
Een woning waar charme, comfort en karakter moeiteloos samenkomen.
Ben je op zoek naar een karakteristieke woning waar je zó in kunt trekken?
Deze prachtig gemoderniseerde jaren ’30 woning ademt de warme sfeer van vroeger, maar biedt het comfort en de luxe van vandaag. Rustig gelegen op een unieke locatie in het hart van Ermelo, met vrij uitzicht op zowel de Oude Kerk als de molen. De ruime, zonnige tuin op het zuiden maakt het geheel compleet. Alles is tot in de puntjes verzorgd en perfect onderhouden – een instapklare woning voor wie stijl, sfeer en een centrale ligging weet te waarderen. Ervaar de ruimte, voel de warmte en ontdek de vele mogelijkheden van deze bijzondere woning.

Woonplezier met karakter
Zodra je binnenstapt, voel je de sfeer en zie je de liefde waarmee dit huis is onderhouden.
De lichte woonkamer met kamer-en-suite, marmeren schouw en houtkachel vormt het hart van de woning. Openslaande deuren leiden naar het zonovergoten terras – een heerlijke plek om te ontspannen. De authentieke jaren ’30 details – glas-in-loodramen, paneeldeuren, erker, granieten vloer – zijn zorgvuldig bewaard gebleven en combineren prachtig met modern wooncomfort. De keuken met karakteristieke erker en schouw is zowel stijlvol als functioneel, voorzien van hoogwaardige apparatuur waaronder een Quooker. De keuken geeft toegang tot een royale (wijn)kelder met daglicht. De praktische bijkeuken heeft een nieuwe kastenwand.

Verdiepingen vol comfort
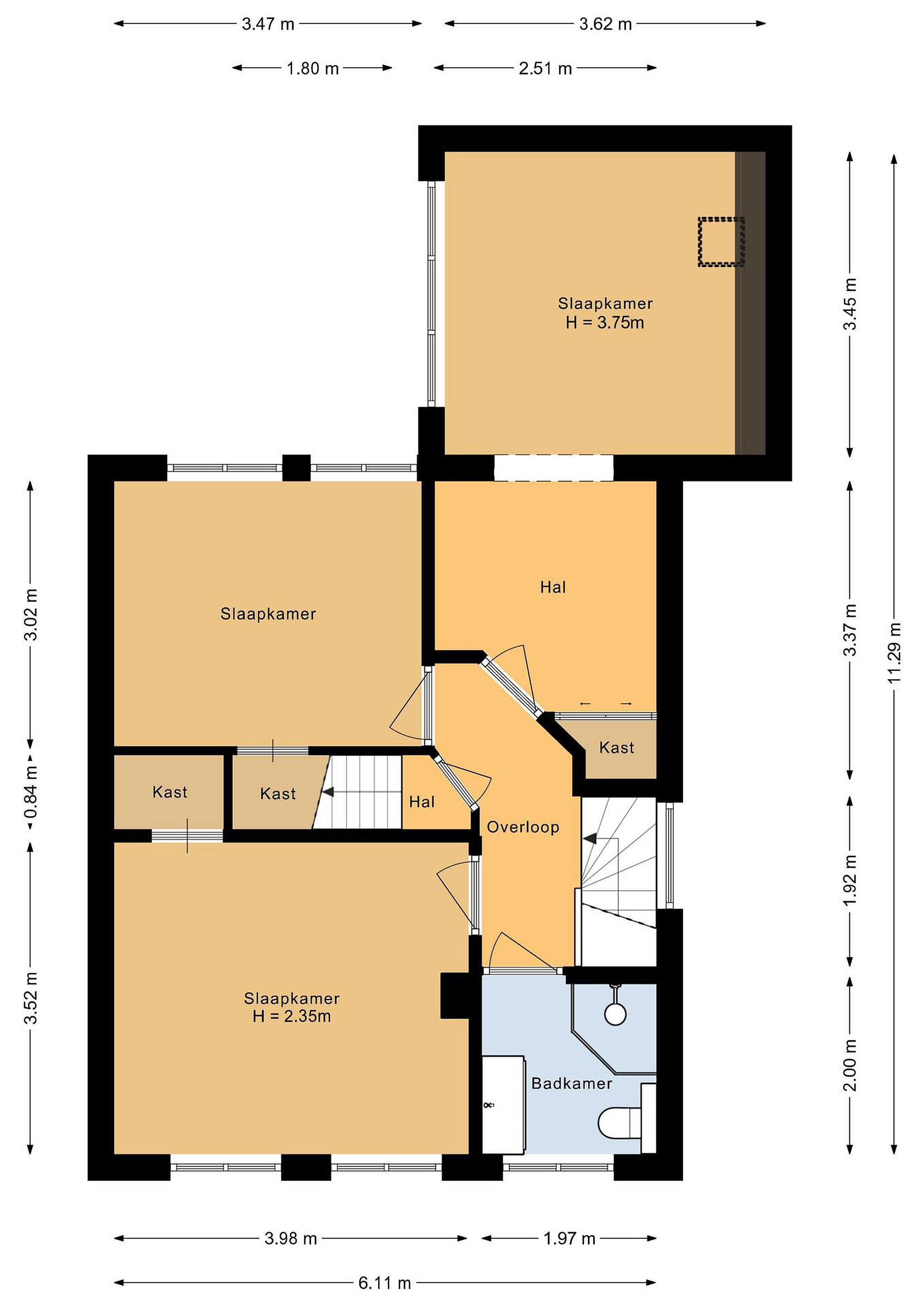
De eerste verdieping biedt drie ruime slaapkamers, elk met inbouwkasten en prachtige lichtinval. Eén kamer is voorzien van airconditioning (koelen én verwarmen), en de slaapkamer aan de achterzijde heeft isolerende zonwering op zonne-energie. De badkamer is in 2024 volledig vernieuwd en uitgevoerd met vloerverwarming, een stortdouche en tweede toilet – stijlvol, modern en comfortabel. Een vaste trap leidt naar de tweede verdieping onder het karakteristieke ronde dak, waar zich een sfeervolle, geïsoleerde ruimte bevindt. Ideaal als werkplek, logeer- of hobbykamer.

Het beste van Ermelo binnen handbereik
Vanuit deze woning wandel je zo het levendige centrum van Ermelo in, met supermarkten, restaurants en terrassen op loopafstand. Ook het station is nabij. Toch woon je hier heerlijk rustig, met het bos op slechts enkele minuten wandelen. Geniet van het uitzicht op de toren van de Oude Kerk en de molen – een uniek beeld dat nooit verveelt. Een huis dat zelden te koop komt: stijlvol, instapklaar en doordrenkt van karakter en warmte. Een plek om verliefd op te worden!


Bouwjaar   : 1935
Woonoppervlakte  : 122 m2
Perceeloppervlakte : 345 m2
Isolatie    : Grotendeels geïsoleerd.
Energielabel   : D
Begane grond
Fraaie entree, hal met toilet, woonkamer en suite met schuifdeuren en openslaande deuren naar het terras op het zuiden. Fraaie houten vloer, marmeren schoorsteenmantel met sfeervolle houtkachel en shutters voor alle ramen. De woon-/ eetkeuken is voorzien van inbouwapparatuur en vloerverwarming. Ruime provisiekelder en bijkeuken met veel kastruimte, aansluiting voor de was apparatuur en toegang tot de tuin.

Eerste verdieping
Eerste verdieping:
Overloop, modern betegelde badkamer (2024) voorzien van douchecabine, wastafelmeubel, tweede toilet en design radiator, ruime ouderslaapkamer met een vaste kast aan de voorzijde, slaapkamer met vaste kast aan de achterzijde, tussenhal met bergruimte en toegang tot de nieuw gerealiseerde slaapkamer met airco.

Tweede verdieping
Ruime zolderverdieping, thans in gebruik als werkplek en bereikbaar via een vaste trap.

Tuin
De ruime, onder architectuur aangelegde tuin op het zuiden biedt veel privacy en vormt een oase van rust. Cortenstaal accenten, sfeervolle verlichting , automatische beregening en een sedum dak op de houtopslag zorgen voor een verzorgde, luxe uitstraling. De voortuin met karakteristiek toegangshek en hardstenen trap maakt het geheel compleet. De ruime oprit biedt plaats aan drie auto’s en op de grote schuur met zolder bevinden zich negen zonnepanelen. Al het houtwerk is recent geschilderd; zinken goten, luiken en regenwateropvangsystemen versterken de duurzame kwaliteit van dit huis.

Details
Unieke ligging in het centrum van Ermelo met uitzicht op de Oude Kerk en de molen
Volledig gemoderniseerde jaren ’30 villa met originele details in uitstekende staat
Authentieke kamer-en-suite met visgraatvloer, marmeren schouw en houtkachel
Bijzonder vormgegeven dak met royale overstekken
Stijlvolle uitbouw, geheel in lijn met de oorspronkelijke architectuur
In 2024 compleet gerenoveerde luxe badkamer
Onder architectuur aangelegde tuin met veel privacy en sfeervolle verlichting
Duurzame voorzieningen: zonnepanelen, laadpaal en geïsoleerde zolder
Eigen oprit voor drie auto’s

Interesse?
Wij nodigen je graag uit om deze Uniecke woning te komen bezichtigen. Tijdens deze bezichtiging zal Cristiaan of Romy jou alles over de woning vertellen en kan je op je gemak rondkijken om een goede indruk te krijgen van het huis.

Voorafgaand aan de bezichtiging ontvang je van ons de lijst van zaken en de aanvullende informatielijst.

Op voorhand vragen? Bel ons op 0341-217 043 of stuur een e-mail naar info@unieckerwonenmakelaars.nl

Lees meer

Verkoopgeschiedenis

Aangeboden sinds
31 oktober 2025
Verkoopdatum
10 februari 2026
Looptijd
3 maanden

Kenmerken

Overdracht

Prijs per m2
€ 6.762
Aangeboden sinds
31 oktober 2025
Status
Verkocht
Aanvaarding
In overleg

Bouw

Soort woonhuis
Eengezinswoning, vrijstaande woning
Soort bouw
Bestaande bouw
Bouwjaar
1935
Soort dak
(GEBOGENDAK / GEBOGENMETLICHTRUPSEN) Gebogendak
Staat van onderhouden binnen
Uitstekend
Staat van onderhouden buiten
Uitstekend

Oppervlakte en inhoud

Perceeloppervlakte
345 m2
Inhoud van de woning
578 m3
Oppervlakte gebouwgebonden buitenruimten
3 m2
Oppervlakte overige inpandige ruimten
34 m2

Indeling

Aantal kamers
4
Aantal slaapkamers
3
Aantal woonlagen
3
Voorzieningen
Tuin, schuur/berging, glasvezel

Buitenruimte

Balkon
Nee
Schuur/berging
Ja

Maandlasten berekenen

De maandlasten voor je woning bestaan uit meer dan alleen de hypotheeklasten. Hieronder vind je een overzicht van de bijkomende kosten en lasten. Zo weet je precies wat je huis per maand gaat kosten. En met de handige vergelijkers kun je ook nog eens snel de beste deals sluiten!

  • Kaart
  • Streetview