Verkocht

't Abdij 19 3851 LL Ermelo

88m2
Wonen
4
Kamers
163m2
Perceel
1960
Bouwjaar
Zoek jij een woning welke je helemaal naar je eigen zin kan maken en durf jij je handen uit de mouwen te steken? Dan is dit mogelijk jouw (eerste) huis.

Want op een fijne locatie nabij het centrum van Ermelo is deze UITGEBOUWDE TUSSENWONING met FIETSENBERGING te koop gekomen.

De woning is zowel aan de voorkant (met een erker), als aan de achterkant uitgebouwd, dus beneden is er al een heerlijke leefruimte ontstaan. Daarnaast zijn er boven 3 slaapkamers en er is een ruime bergzolder.

Voor de handige koper is dit een leuke prijsklasse en heb je tal van mogelijkheden!

Pak jij deze kans?

Bouwjaar : 1960
Woonoppervlakte : circa 88 m2
Perceeloppervlakte : 163 m2
Isolatie : dakisolatie en deels dubbel glas
Energielabel : F
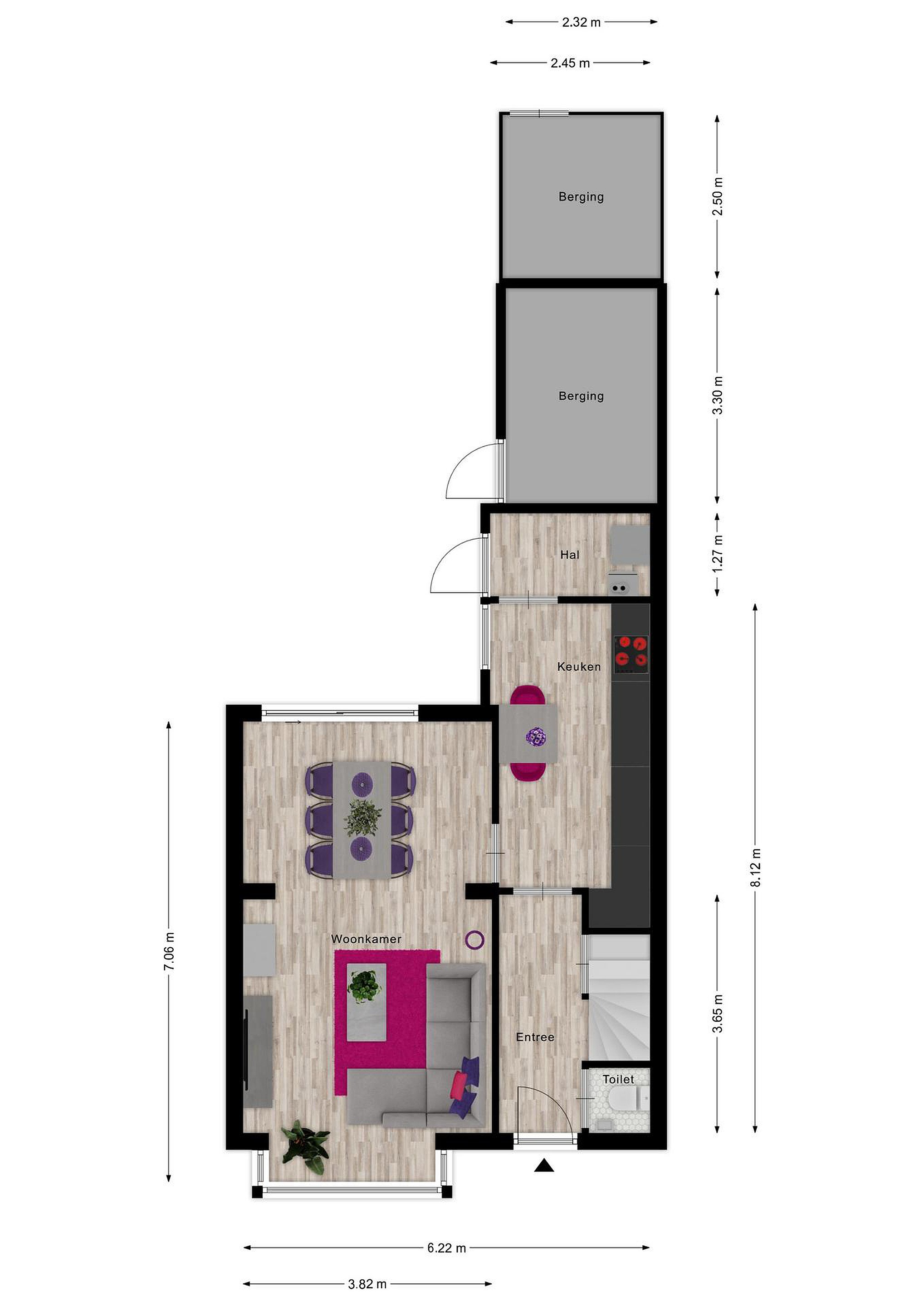
Begane grond
hal met toilet en kelderkast, uitgebouwde keuken met toegang tot de woonkamer. De voorzijde van de woonkamer is voorzien van een erker en de achterzijde van een schuifpui. Achter de keuken is nog een achterportaal met ruimte voor de wasapparatuur en de geiser, tevens vanuit hier toegang tot de tuin.

Eerste verdieping
overloop, 3 slaapkamers met vaste kasten (en 1 slaapkamer met balkon) en een compacte badkamer voorzien van douche en wastafel.

Tweede verdieping
via een vlizotrap is de bergzolder te bereiken (hoogte in de nok ongeveer 1.64 meter)

Tuin
De achtertuin heeft een afmeting van ongeveer 6 x 12 meter, is gelegen op het oosten en voorzien van een achterom.

Details
Geliefde locatie nabij het centrum
Gelegen in een rustige straat
Ideaal voor starters
3 slaapkamers
Keuken uitgebouwd
Achtertuin met veel privacy

Parkeren en berging
In de straat is voldoende parkeergelegenheid en in de tuin staan 2 bergingen. 1 van steen en 1 (eenvoudige) van hout.

Interesse?
Wij nodigen je graag uit om deze uniecke woning te komen bezichtigen. Tijdens deze bezichtiging zal Cristiaan of Romy jou alles over de woning vertellen en kan je op je gemak rondkijken om een goede indruk te krijgen van het huis.

Voorafgaand aan de bezichtiging ontvang je van ons de lijst van zaken en de aanvullende informatielijst.

Op voorhand vragen? Bel ons op 0341-217 043 of stuur een e-mail naar info@unieckerwonenmakelaars.nl


Lees meer

Verkoopgeschiedenis

Aangeboden sinds
7 oktober 2025
Verkoopdatum
2 december 2025
Looptijd
2 maanden

Kenmerken

Overdracht

Prijs per m2
€ 4.261
Aangeboden sinds
7 oktober 2025
Status
Verkocht
Aanvaarding
In overleg

Bouw

Soort woonhuis
Eengezinswoning, tussen woning
Soort bouw
Bestaande bouw
Bouwjaar
1960
Soort dak
Zadeldak
Staat van onderhouden binnen
Goed
Staat van onderhouden buiten
Goed

Oppervlakte en inhoud

Perceeloppervlakte
163 m2
Inhoud van de woning
350 m3
Oppervlakte externe bergruimte
13 m2

Indeling

Aantal kamers
4
Aantal slaapkamers
3
Aantal woonlagen
3
Voorzieningen
Tuin, schuur/berging, glasvezel

Buitenruimte

Balkon
Nee
Schuur/berging
Ja

Maandlasten berekenen

De maandlasten voor je woning bestaan uit meer dan alleen de hypotheeklasten. Hieronder vind je een overzicht van de bijkomende kosten en lasten. Zo weet je precies wat je huis per maand gaat kosten. En met de handige vergelijkers kun je ook nog eens snel de beste deals sluiten!

  • Kaart
  • Streetview