Verkocht OV

Zwiksweg 14 7468 BR Enter

130m2
Wonen
4
Kamers
660m2
Perceel
1931
Bouwjaar
Op gunstige locatie gelegen aan een rustige straat nabij het dorpscentrum bieden wij u deze gezellige vrijstaande woning, gelegen op een royaal perceel van 660 m2, aan voor de verkoop.

De woning is goed onderhouden en is gelegen op een goed bereikbare locatie nabij het centrum van Enter. Vanuit de woning kunt u uitstekend alles op loopafstand doen. Daarnaast is de woning levensloopbestendig middels de slaap- en badkamer op de begane grond, is het platte dak reeds voorzien van zonnepanelen en is de woning in het verleden volledig verbouwd en geïsoleerd.

Noemenswaardig is de royale, diepe achtertuin van ruim 30(!) meter, waarbij de mogelijkheden eindeloos zijn!

Wij nodigen u graag uit voor een bezichtiging!

Indeling  :  
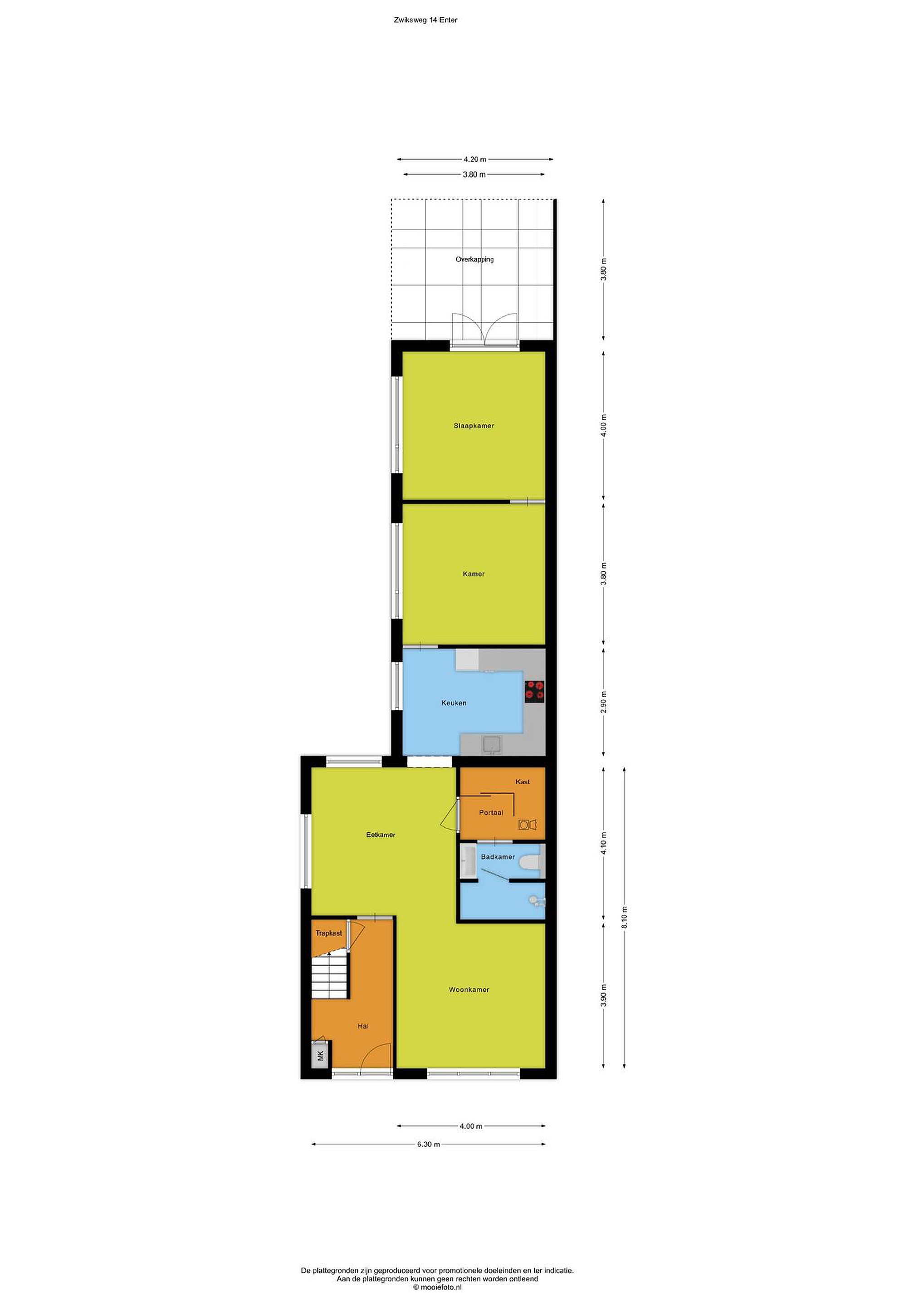
Begane grond:
Entree/hal met meterkast, trapkast en trapopgang naar de eerste verdieping. Vanuit de hal heeft u toegang tot de ruime woonkamer en de keuken. De gehele begane grond is afgewerkt met een keramisch pakket in visgraatmotief en voorzien van vloerverwarming, wat zorgt voor een stijlvolle en comfortabele basis.
De keuken is voorzien van diverse inbouwapparatuur, waaronder een combi-oven, inductiekookplaat, afzuiginstallatie, twee ruime koelkasten en twee vriezers. Aansluitend bereikt u een extra ruimte die zich uitstekend leent als speel- of werkkamer. De achtergelegen slaapkamer is voorzien van een airco-installatie en openslaande deuren naar de veranda en de achtertuin. Daarnaast beschikt de begane grond over een badkamer met douche en wastafel, evenals een separaat toilet.

Eerste verdieping:
Overloop met toegang tot twee ruime slaapkamers. Deze verdieping kenmerkt zich door de prettige lichtinval en is afgewerkt met een pvc-vloer. Beide slaapkamers zijn voorzien van airconditioning en inbouwspots, terwijl de verdieping grotendeels is uitgerust met elektrische rolluiken. De badkamer is compleet ingericht en beschikt over een ligbad, inloopdouche, toilet en wastafel. Daarnaast is de badkamer voorzien van vloerverwarming, een luxe verlichte en verwarmde spiegel en een badkamervloer met retourleiding, wat bijdraagt aan extra comfort.

Tuin :
Aan de voorzijde van de woning is een nette voortuin gelegen met eigen oprit en een poort om de achtertuin te betreden.

De diepe achtertuin is voorzien van een houten veranda met elektra en beschikt over vele mogelijkheden.

Bouwjaar :
1931

Kadastrale gegevens :
Gemeente :
WIERDEN
Sectie :
E
Nummer :
8284
Grootte :
660 m2

Gebruiksoppervlakte Wonen :
Ca. 130 m2

Externe bergruimte :
Ca. 13 m2

Gebouw gebonden Buitenruimte :
Ca. 16 m2

Inhoud :
Ca. 535 m3

Perceeloppervlakte :
Ca. 660 m2

Bijzonderheden :
De woning beschikt over de volgende voorzieningen-/eigenschappen:
- Slaap- en badkamer op de begane grond;
- Slaapkamers voorzien van airconditioning.
- De begane grond is voorzien van vloerverwarming
- Het plafond is voorzien van karakteristieke elementen.
- De voordeur is voorzien van glas-in-lood.
- De gehele woning is strak gestuct en saus klaar afgewerkt.
- De gehele woning is geïsoleerd.
- De woning is voorzien van houten kozijnen.
- De woning is voorzien van hoogwaardige, zonwerende beglazing.
- De gehele woning is afgewerkt met hoge plinten.
- De meterkast is in 2025 vernieuwd.
- De woning is voorzien van zonnepanelen.
- De technische ruimte is voorzien van een hybride warmtepomp en een buffervat.
- Het buitenschilderwerk is in 2025 uitgevoerd.
- Etc.

Vraagprijs :
599.000,00 k.k.

Aanvaarding  :
In overleg.
Lees meer

Kenmerken

Overdracht

Prijs per m2
€ 4.608
Aangeboden sinds
2 april 2026
Status
Verkocht onder voorbehoud
Aanvaarding
In overleg

Bouw

Soort woonhuis
Eengezinswoning, vrijstaande woning
Soort bouw
Bestaande bouw
Bouwjaar
1931
Staat van onderhouden binnen
Uitstekend
Staat van onderhouden buiten
Uitstekend

Oppervlakte en inhoud

Perceeloppervlakte
660 m2
Inhoud van de woning
535 m3

Indeling

Aantal kamers
4
Aantal slaapkamers
3
Aantal woonlagen
2
Voorzieningen
Tuin

Buitenruimte

Balkon
Nee
Schuur/berging
Nee

Maandlasten berekenen

De maandlasten voor je woning bestaan uit meer dan alleen de hypotheeklasten. Hieronder vind je een overzicht van de bijkomende kosten en lasten. Zo weet je precies wat je huis per maand gaat kosten. En met de handige vergelijkers kun je ook nog eens snel de beste deals sluiten!

  • Kaart
  • Streetview