Verkocht OV

Voormors 59 7468 HH Enter

155m2
Wonen
5
Kamers
254m2
Perceel
1981
Bouwjaar
Op zoek naar een ruime en sfeervolle woning in Enter? Dan is dit uw kans!

Deze goed onderhouden woning voorzien van eigen oprit is gelegen in een kindvriendelijke buurt. U woont hier comfortabel en rustig, terwijl het gezellige dorpscentrum van Enter en het prachtige buitengebied op korte afstand liggen.

Binnen treft u een lichte woonkamer en een ruime keuken, perfect voor fijne momenten met familie.

De verzorgde tuin maakt het geheel compleet en nodigt uit om te ontspannen en te genieten van het buitenleven.

Een combinatie van comfort, ruimte en een ideale ligging, waardoor u hier jarenlang met plezier kunt wonen.

Indeling :
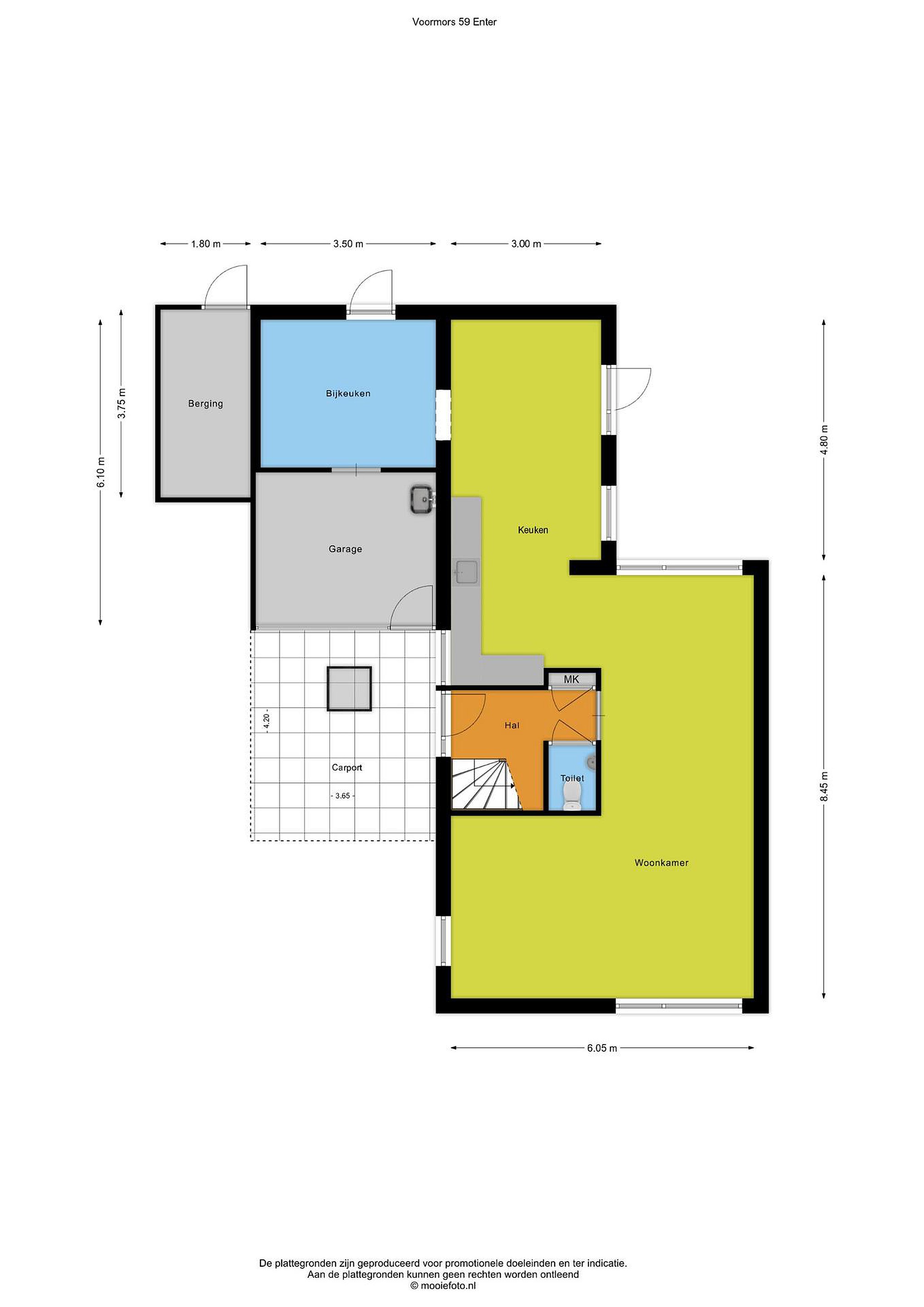
Begane grond:
Bij binnenkomst betreedt u de hal, waar zich het toilet en de trapopgang met meterkast bevinden. Vanuit de hal bereikt u de royale, straatgerichte woonkamer met doorloop naar de leefkeuken, keuken voorzien van inbouwapparatuur. Aansluitend bevindt zich de praktische bijkeuken met toegang tot de achtertuin.

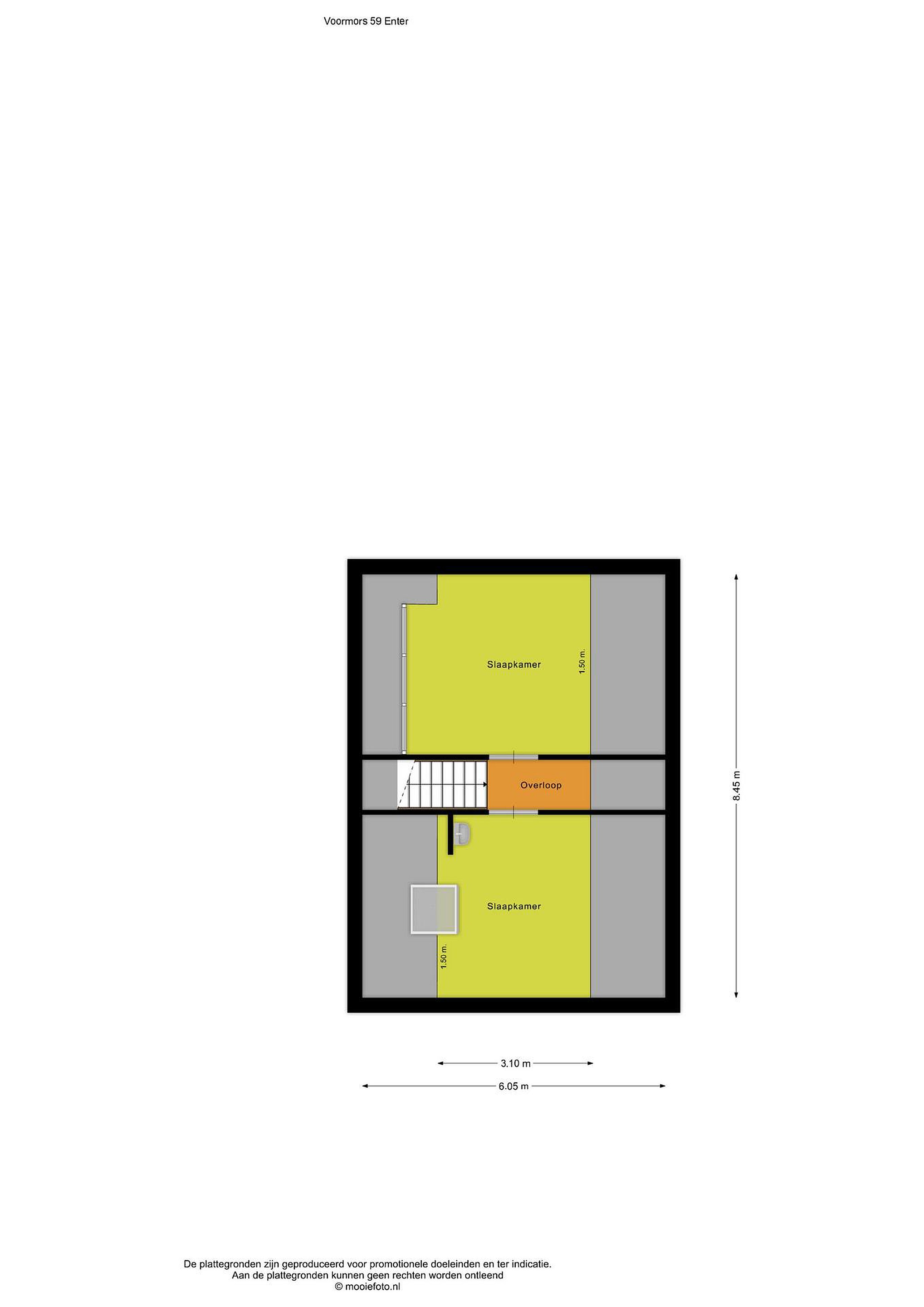
Eerste verdieping:
Overloop, drie royale slaapkamers en complete badkamer voorzien van bad, douche, wastafelmeubel en designradiator.

Tweede verdieping:
Middels vaste trap bereikbare voorzolder voorzien van opstelplaats witgoedaansluitingen en Cv-ketel. Middels de voorzolder is een royale vierde slaapkamer-/werkkamer gelegen.

Tuin :
Aan de voorzijde van de woning is een net onderhouden tuin aanwezig.

Aan de achterkant bevindt zich de ruime en onderhoudsvriendelijke tuin met een gazon en diverse borders.

Kadastraal :
Gemeente : Wierden
Sectie : E
Nummer : 8331
Grootte : 254 m2

Bouwjaar :
1981

Gebruiksoppervlakte wonen :
Ca. 155 m2
Inhoud : Ca. 587 m3
Perceelgrootte : Ca. 254 m2

Koopsom :
€ 479.000,00 kosten koper.

Aanvaarding :
In overleg.

Voorbehoud :
Definitieve goedkeuring eigenaar.
Lees meer

Kenmerken

Overdracht

Prijs per m2
€ 3.090
Aangeboden sinds
4 februari 2026
Status
Verkocht onder voorbehoud
Aanvaarding
In overleg

Bouw

Soort woonhuis
Eengezinswoning, twee-onder-een-kap woning
Soort bouw
Bestaande bouw
Bouwjaar
1981
Staat van onderhouden binnen
Uitstekend
Staat van onderhouden buiten
Uitstekend

Oppervlakte en inhoud

Perceeloppervlakte
254 m2
Inhoud van de woning
587 m3

Indeling

Aantal kamers
5
Aantal slaapkamers
4
Aantal woonlagen
3
Voorzieningen
Tuin, schuur/berging

Buitenruimte

Balkon
Nee
Schuur/berging
Ja

Maandlasten berekenen

De maandlasten voor je woning bestaan uit meer dan alleen de hypotheeklasten. Hieronder vind je een overzicht van de bijkomende kosten en lasten. Zo weet je precies wat je huis per maand gaat kosten. En met de handige vergelijkers kun je ook nog eens snel de beste deals sluiten!

  • Kaart
  • Streetview