Verkocht OV

Reggestraat 63 7468 EJ Enter

182m2
Wonen
5
Kamers
683m2
Perceel
1974
Bouwjaar
Wonen in een ruime woning in een fijne wijk in Enter? Dan is dit uw kans!

Gelegen aan de Reggestraat in Enter staat dit vrijstaande woonhuis op een perfecte locatie – dichtbij het centrum van Enter, én op korte afstand van het prachtige buitengebied.

De woning biedt uitzonderlijk veel ruimte met een inhoud van maar liefst 832 m3. Op de begane grond vindt u onder andere een kantoor/werkkamer, ideaal voor thuiswerken of hobby’s.

Daarnaast beschikt de woning over een dubbele garage met ruime oprit geschikt voor meerdere auto’s. Op de verdieping bevinden zich vier comfortabele slaapkamers, wat deze woning perfect maakt voor een groot gezin.

Kortom een unieke woning met veel ruimte en veel mogelijkheden!

Wij nodigen u graag uit voor een bezichtiging!

Indeling :
Begane grond:
Bij binnenkomst komt u in de hal, waar zich de toilet, trapopgang en meterkast bevinden. Vanuit deze hal kunt u de woonkamer en de werkkamer bereiken. De ruime woonkamer met sfeervolle haard vormt het hart van de woning en biedt volop ruimte om meerdere gezellige zit- of eethoeken te creëren. De gesloten woonkeuken is praktisch ingericht en voorzien van diverse inbouwapparatuur. Via de keuken bereikt u de achter entree en de bijkeuken, die is uitgerust met aansluitingen voor witgoed en de CV-installatie. Aan de rechterzijde van de woning bevindt zich de ruime oprit, geschikt voor meerdere auto’s, met toegang tot de dubbele garage.

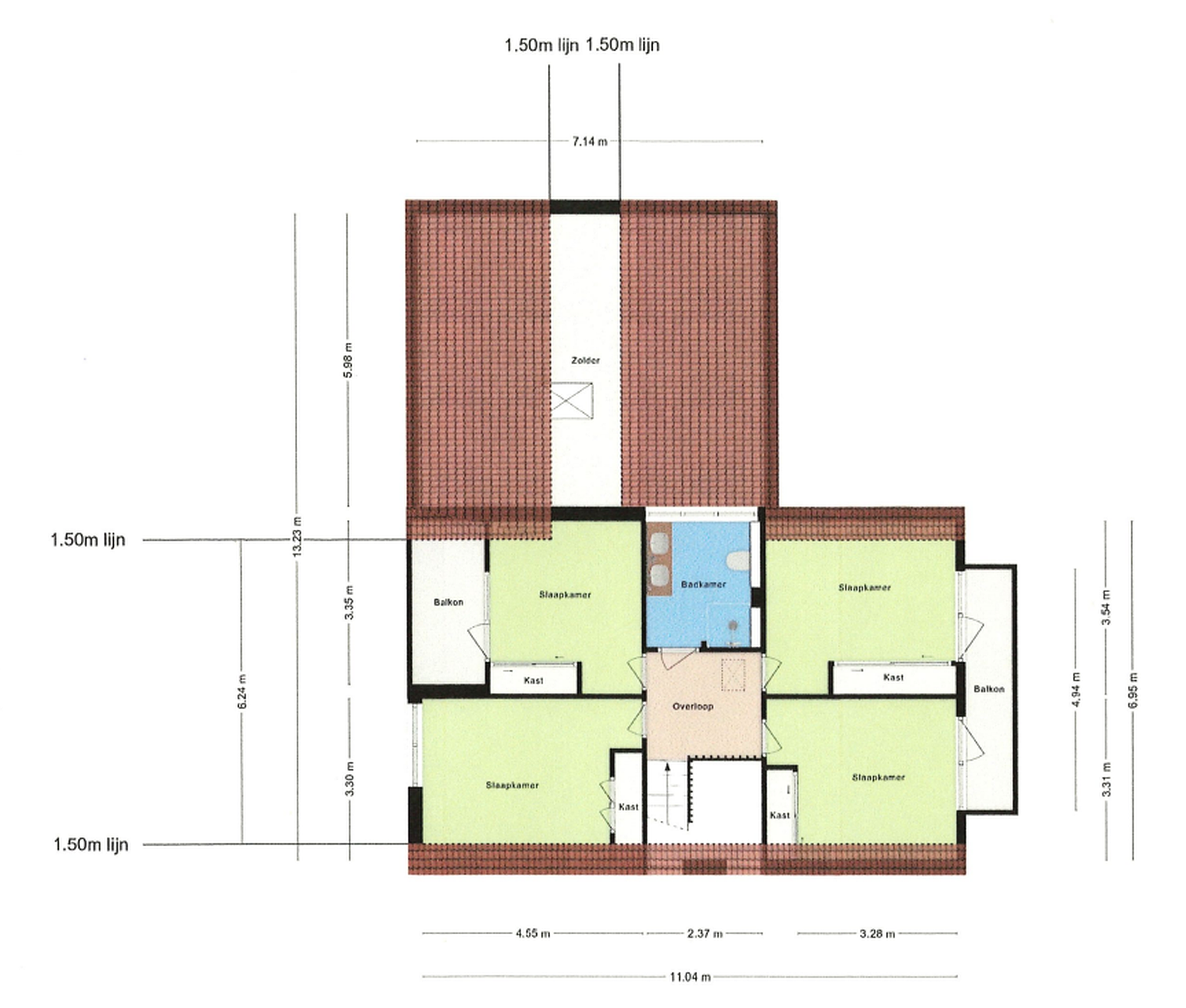
Eerste verdieping:
Via de vaste trap bereikt u de overloop, die toegang biedt tot 4 slaapkamers, waarvan 3 met balkon en
de badkamer. De badkamer is voorzien van een
dubbele wastafel, douche en toilet.

Tweede verdieping:
Middels vlizotrap bereikt u de bergzolder met veel praktische ruimte.

Kadastraal :
Gemeente : Wierden
Sectie : E
Nummers : 7531
Grootte : 683 m2

Bouwjaar :
1974

Gebruiksoppervlakte wonen :
Ca. 182 m2

Bruto Woonoppervlak :
Ca. 349 m2

Inhoud :
Ca. 832 m3

Perceelgrootte :
Ca. 683 m2

Bijzonderheden :
De woning beschikt over onder andere de volgende voorzieningen-/ eigenschappen:
– Gelegen in rustige, kindvriendelijke wijk’;
– Oprit geschikt voor meerdere auto’s;
– Inhoud van maar liefst 832 m3;
– Achterkant begane grond voorzien van elektrisch screen en elektrisch rolluik;
– Vloer, spouw en kap geisolleerd;
– Voorzien van een dubbele garage;
– Ruime tuin;
– 12 zonnepanelen;
– Volledig geïsoleerd;
– Etc, etc.

Vraagprijs :
€ 625.000,00 k.k.

Aanvaarding :
In overleg.

Zekerheidsstelling :
Koper dient een bankgarantie of waarborgsom te stellen te hoogte van 10% van de koopprijs.

Energielabel :
Label C.

Voorbehoud :
Definitieve goedkeuring eigenaar.
Lees meer

Kenmerken

Overdracht

Prijs per m2
€ 3.434
Aangeboden sinds
26 november 2025
Status
Verkocht onder voorbehoud
Aanvaarding
In overleg

Bouw

Soort woonhuis
Eengezinswoning, vrijstaande woning
Soort bouw
Bestaande bouw
Bouwjaar
1974
Staat van onderhouden binnen
Goed
Staat van onderhouden buiten
Goed

Oppervlakte en inhoud

Perceeloppervlakte
683 m2
Inhoud van de woning
832 m3

Indeling

Aantal kamers
5
Aantal slaapkamers
4
Aantal woonlagen
3
Voorzieningen
Tuin, balkon

Buitenruimte

Balkon
Ja
Schuur/berging
Nee

Maandlasten berekenen

De maandlasten voor je woning bestaan uit meer dan alleen de hypotheeklasten. Hieronder vind je een overzicht van de bijkomende kosten en lasten. Zo weet je precies wat je huis per maand gaat kosten. En met de handige vergelijkers kun je ook nog eens snel de beste deals sluiten!

  • Kaart
  • Streetview