Verkocht

Kleihorst 24 7468 KH Enter

170m2
Wonen
1
Kamers
316m2
Perceel
2024
Bouwjaar
Aan de Kleihorst in Enter bieden wij u deze fraaie twee-onder-één-kapwoning aan voor de verkoop. Een woning welke meer dan instapklaar is, volledig nieuw gebouwd in 2024 en tot in de puntjes is afgewerkt.

Met een energielabel A++++ bent u verzekerd van een energiezuinige woning, grotendeels zelfvoorzienend dankzij duurzame installaties zoals een bodemwarmtepomp, WTW-unit en 12 zonnepanelen.

Deze woning beschikt over een ruime en lichte woonkamer met erker en een uitgebouwde woonkeuken voorzien van luxe inbouwapparatuur te weten (allen Siemens StudioLine). Op de eerste verdieping vindt u drie comfortabele en goed bemeten slaapkamers en een moderne badkamer voorzien van douche, toilet, dubbele wastafelmeubel en designradiator. De praktische zolderverdieping met dakkapel biedt volop mogelijkheden voor een extra slaap-/ of werkruimte.

Buiten bevindt zich een royale, fraai aangelegde tuin. Rust, privacy en een groene omgeving maken deze tuin tot een waardevolle aanvulling.

Uw nieuwe woonplek bevindt zich in de jonge, groene en dorpsgetinte wijk De Berghorst fase 2 aan de noordkant vna Enter, zeer landelijk gelegen
maar toch vlakbij de alledaagse voorzieningen. De wijk kenrmerkt zich door een dorpse en groene sfeer, een gevarieerd aanbod en kindvriendelijke
leefomgeving.

Wij nodigen u graag uit voor een bezichtiging?

Indeling :
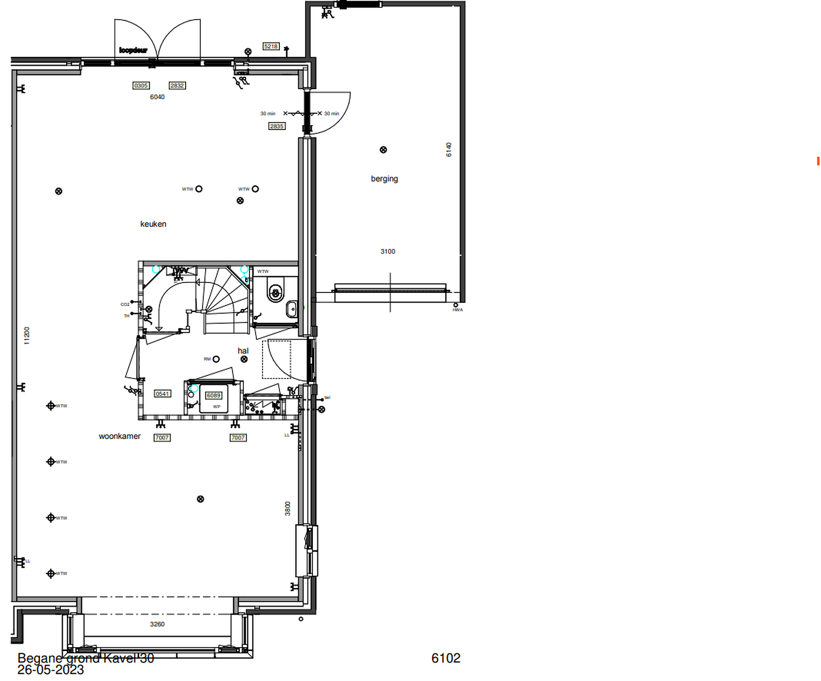
Begane grond:
Entree/hal met toilet, gardarobe, meterkast en trapopgang naar etage. Vanuit de hal bereikt u de woonkamer met erker en doorgang naar de royale en uitgebouwde woonkeuken. Vanuit de keuken heeft u toegang tot de geïsoleerde berging. De gehele begane grond is voorzien van vloerverwarming.

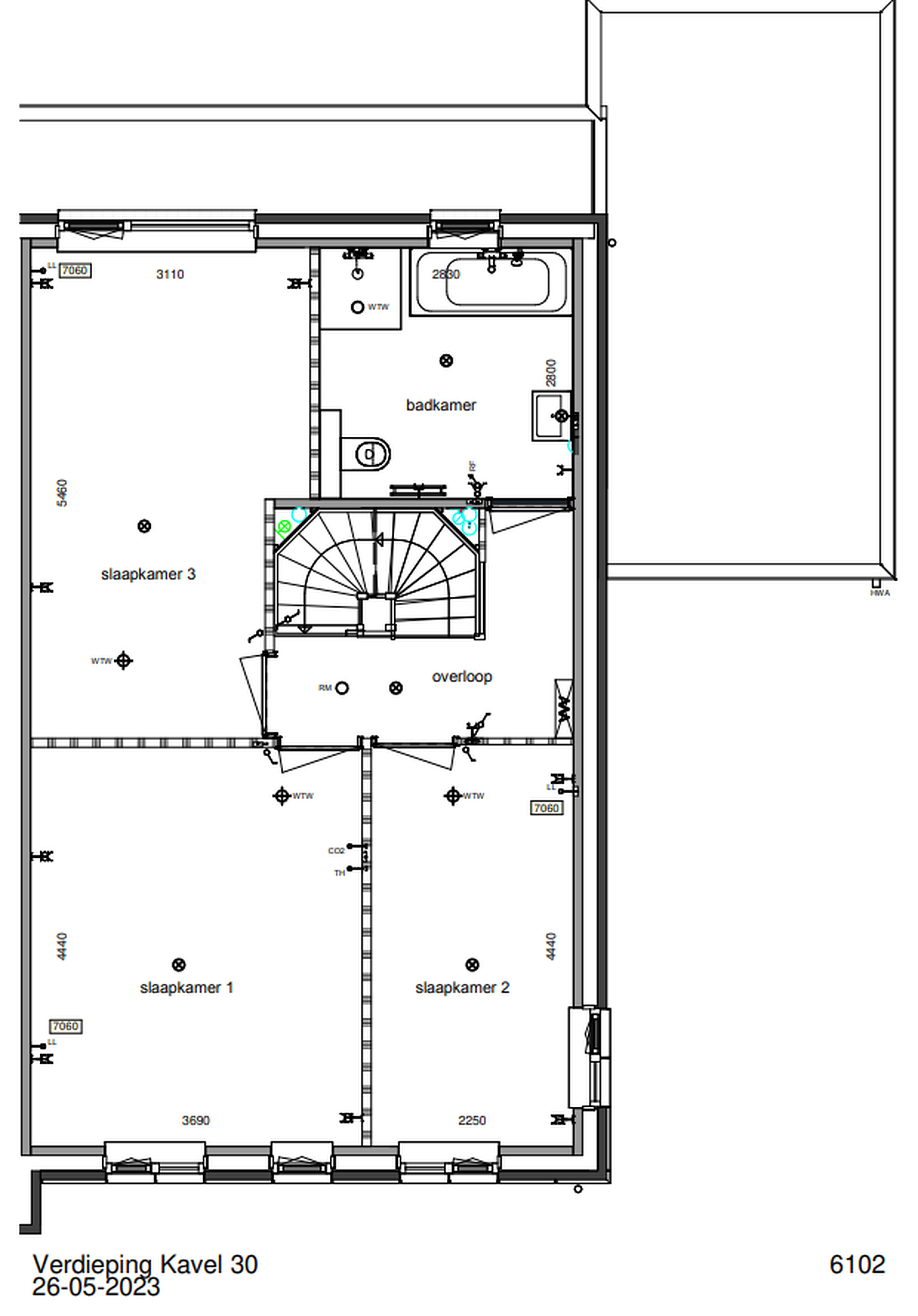
Eerste verdieping:
Middels vaste trap bereikt u de overloop met toegang tot drie royale slaapkamers. Tevens bevindt zich op deze verdieping een moderne badkamer voorzien van douche, dubbele wastafelmeubel, toilet en designradiator. De gehele eerste verdieping is voorzien van vloerverwarming.

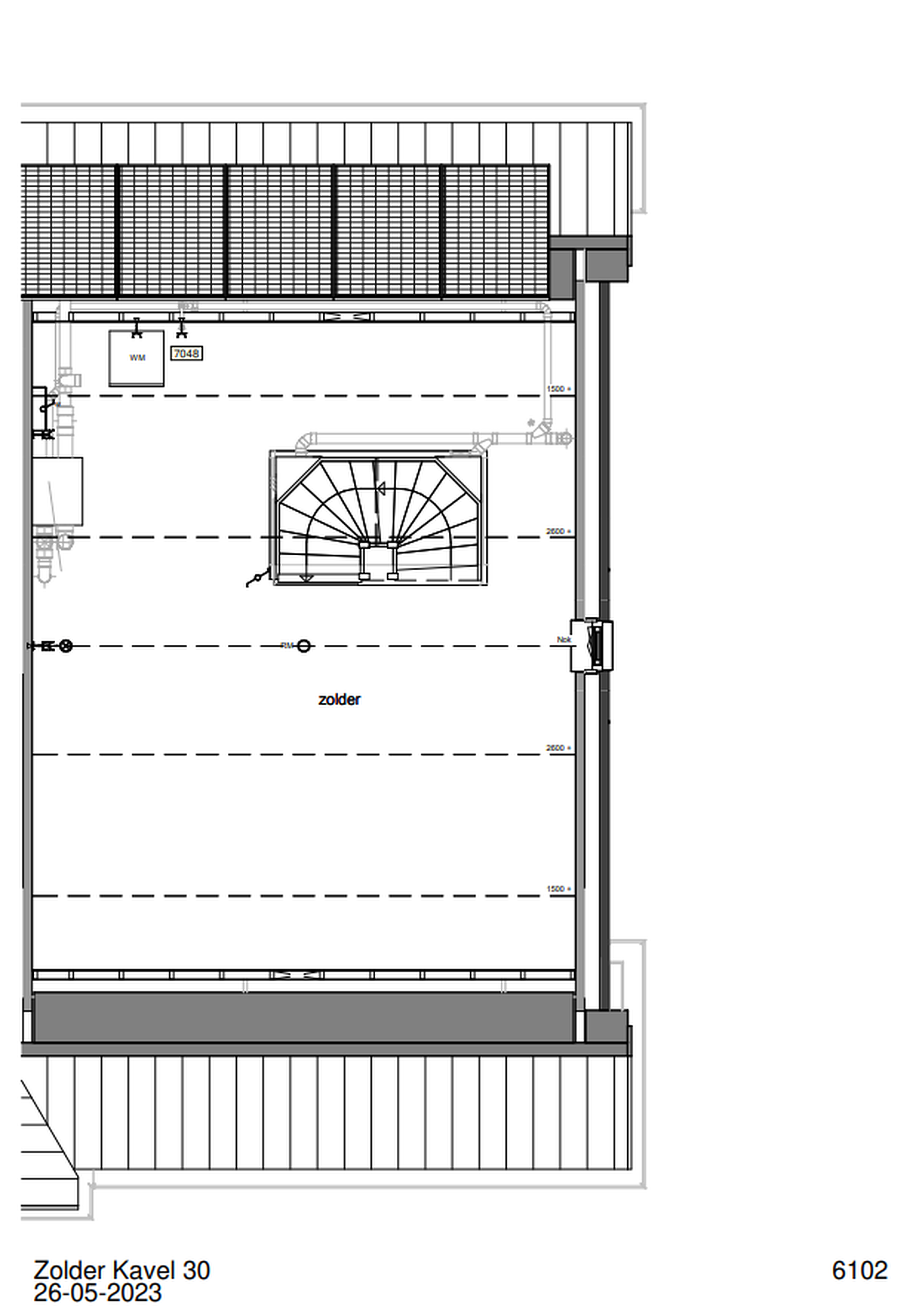
Tweede verdieping:
Middels vaste trap te bereiken een ruime zolderverdieping voorzien van voorzolder welke thans in gebruik is als wasruimte. Middels de voorzolder is een royale vierde slaapkamer bereikbaar voorzien van een dakkapel.

Tuin :
De woning beschikt over een fraai aangelegde en goed onderhouden voor- en achtertuin, die volop mogelijkheden biedt om te ontspannen of te genieten van het buitenleven.

Direct naast de woning bevindt zich een buitenberging, ideaal voor opslag of hobby’s.

Daarnaast is er aan de voorzijde een oprit aanwezig met carport, waardoor parkeren gemakkelijk en praktisch is.

Kadastraal :
Gemeente : Wierden
Sectie : E
Nummer : 11033
Grootte : 316 m2

Bouwjaar :
2024

Gebruiksoppervlakte wonen :
Ca. 170 m2

Gebouw gebonden buitenruimten :
Ca. 28 m2

Perceelgrootte :
Ca. 316 m2

Bijzonderheden :
De woning beschikt over onder andere de volgende voorzieningen-/ eigenschappen:
- Gelegen in een rustige, kindvriendelijke woonwijk nabij het gezellige dorpscentrum en prachtige buitengebied van Enter;
- Bodemwarmtepomp;
- WTW-unit;
- Houten kozijnen met HR+++ beglazing;
- Draai-/kiepramen;
- Royale carpot;
- Vier goed bemeten slaapkamers;
- Wasruimte;
- Vloerverwarming en -koeling op begane grond en etage;
- Keuken voorzien van luxe inbouwapparatuur;
- Elektrisch zonnescherm;
- Dakkapel op de tweede etage;
- Woonkamer met erker;
- Fraai aangelegde voor- en achtertuin;
- Volledig geïsoleerd;
- Energielabel A++++
- Veel natuurlijk lichtinval;
- Tuindeuren vanuit keuken naar achtertuin;
- Luxe en nette badkamer, voorzien van o.a. wastafelmeubel en inloopdouche;
- Meer dan instapklaar;
- Etc.

Vraagprijs :
€ 669.000,00 kosten koper.

Aanvaarding :
In overleg.

Zekerheidsstelling :
Koper dient een bankgarantie of waarborgsom te stellen te hoogte van 10% van de koopprijs.

Energielabel :
Label A++++.

Voorbehoud :
Definitieve goedkeuring eigenaar.

Bijzonderheden Voor de kopende partij zal een zelfbewoningsplicht gelden tot medio 2029.
Lees meer

Verkoopgeschiedenis

Aangeboden sinds
20 september 2025
Verkoopdatum
7 oktober 2025
Looptijd
17 dagen

Kenmerken

Overdracht

Prijs per m2
€ 3.935
Aangeboden sinds
20 september 2025
Status
Verkocht
Aanvaarding
In overleg

Bouw

Soort woonhuis
Eengezinswoning, twee-onder-een-kap woning
Soort bouw
Bestaande bouw
Bouwjaar
2024
Staat van onderhouden binnen
Uitstekend
Staat van onderhouden buiten
Uitstekend

Oppervlakte en inhoud

Perceeloppervlakte
316 m2
Inhoud van de woning
600 m3

Indeling

Aantal kamers
1
Aantal slaapkamers
0
Aantal woonlagen
1
Voorzieningen
Tuin

Buitenruimte

Balkon
Nee
Schuur/berging
Nee

Maandlasten berekenen

De maandlasten voor je woning bestaan uit meer dan alleen de hypotheeklasten. Hieronder vind je een overzicht van de bijkomende kosten en lasten. Zo weet je precies wat je huis per maand gaat kosten. En met de handige vergelijkers kun je ook nog eens snel de beste deals sluiten!

  • Kaart
  • Streetview