Verkocht OV

G.j. Beltmanstraat 1 7468 BM Enter

154m2
Wonen
4
Kamers
650m2
Perceel
1979
Bouwjaar
Op een rustige en geliefde woonlocatie in Enter, op korte afstand van het dorpscentrum, staat deze ruime vrijstaande hoekwoning met garage, oprit en een fraai aangelegde tuin rondom. De woning biedt een comfortabele indeling met veel leefruimte op de begane grond en een prettige hoeveelheid natuurlijk licht dankzij de grote raampartijen.

De woning beschikt onder andere over een ruime woonkamer, keuken met bijkeuken, een multifunctionele kamer op de begane grond en een royale inpandige garage. Hierdoor is de woning geschikt voor diverse woonwensen, zoals een thuiswerkplek, hobbyruimte of slaapkamer op de begane grond.

Een belangrijk pluspunt is dat de bovenverdieping recent volledig is gerenoveerd, waardoor deze verdieping een moderne en verzorgde uitstraling heeft gekregen. De slaapkamers en sanitaire ruimtes sluiten hierdoor goed aan bij hedendaagse woonwensen.

De woning beschikt daarnaast over een praktische praktijkruimte aan huis. Deze ruimte is uitermate geschikt voor bijvoorbeeld een kantoor, salon, praktijk of hobbyruimte en biedt de mogelijkheid om wonen en werken op een prettige manier te combineren.

Rondom de woning ligt een ruime en verzorgde tuin met meerdere terrasmogelijkheden en een gazon. De achtertuin is gunstig gelegen op het zuidwesten, waardoor u hier gedurende de dag en avond van de zon kunt genieten.

De woning ligt bovendien gunstig ten opzichte van diverse voorzieningen in het dorp en uitvalswegen richting onder andere Rijssen, Wierden en de A1.

Wij nodigen u graag uit voor een bezichtiging!

Indeling :
Begane grond
Entree in de royale hal met vide, meterkast, toiletruimte en trapopgang naar de eerste verdieping. Vanuit de hal is er toegang tot de keuken, de woonkamer en de overige vertrekken.
De woonkamer is ruim opgezet en beschikt over veel natuurlijk licht. De L-vormige indeling biedt voldoende ruimte voor zowel een zithoek als een eethoek. De keuken bevindt zich aan de achterzijde van de woning en is voorzien van diverse inbouwapparatuur. Vanuit de keuken is er toegang tot de bijkeuken, welke extra praktische bergruimte biedt en tevens een doorgang vormt naar de garage en de achtertuin.
Via de hal is daarnaast een extra kamer op de begane grond bereikbaar. Deze ruimte is momenteel in gebruik als praktijkruimte, maar is multifunctioneel en kan bijvoorbeeld worden gebruikt als slaapkamer, werkkamer, speelkamer of hobbyruimte. De woning beschikt bovendien over een royale inpandige garage, ideaal voor het stallen van een auto, fietsen of het creëren van extra opslagruimte.

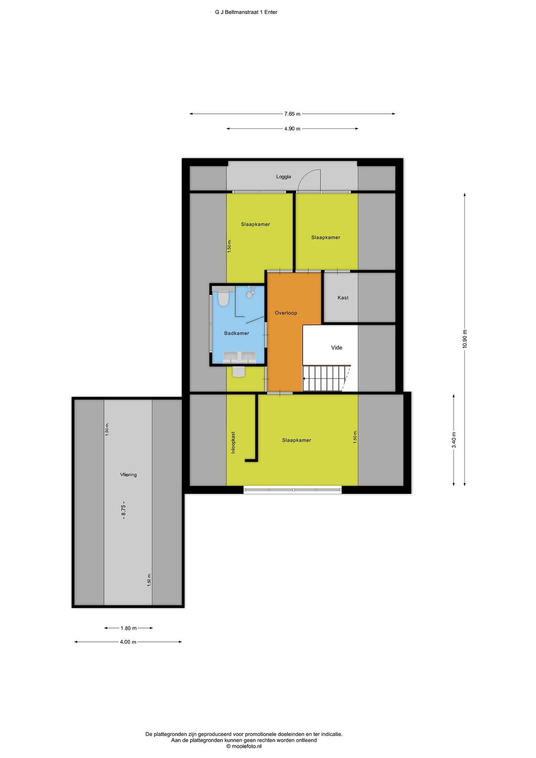
Eerste verdieping
Overloop met vide en toegang tot meerdere slaapkamers. De slaapkamers zijn ruim van opzet en beschikken over vaste kastruimte. Eén van de kamers biedt toegang tot een balkon.
De bovenverdieping is recent volledig gerenoveerd, waardoor de ruimtes een moderne en frisse uitstraling hebben gekregen.
De badkamer is compleet ingericht en voorzien van onder andere een wastafelmeubel, douche en toilet.

Tuin :
De woning staat op een ruim perceel met een verzorgde tuin rondom. In de tuin zijn meerdere terrassen aangelegd waardoor er altijd een plek in de zon of schaduw te vinden is.
De achtertuin is gelegen op het zuidwesten en vormt een heerlijke plek om te genieten van het buitenleven. Tevens is er een tuinschuur aanwezig voor extra bergruimte.
Aan de voorzijde beschikt de woning over een ruime oprit met plaats voor meerdere auto’s en toe gang tot de garage.

Bouwjaar :
1979

Energielabel :
Label C

Kadastrale gegevens :
Gemeente : Wierden
Sectie : L
Nummer : 742 en 744
Gezamenlijk groot : 650 m2

Gebruiksoppervlakte wonen :
Ca. 154 m2

Overig inpandig :
Ca. 29 m2

Gebouwgebonden buitenruimte :
Ca. 5 m2

Externe bergruimte :
Ca. 8 m2

Inhoud :
Ca. 665 m3

Perceeloppervlakte :
Ca. 650 m2

Kenmerken : De woning beschikt over onder andere de volgende voorzieningen-/ eigenschappen:
– Ruime vrijstaande hoekwoning;
– Ligging in een prettige woonomgeving, nabij het centrum én het buitengebied van Enter;
– Voorzieningen binnen handbereik;
– Ruime, straatgerichte woonkamer met sfeervolle houtkachel;
– Moderne keuken voorzien van diverse inbouwapparatuur;
– Praktijkruimte aan huis, voorzien van systeemplafond, pantry en diverse voorzieningen;
– Bovenverdieping volledig gerenoveerd;
– Nette badkamer voorzien van inloopdouche, wandcloset en wastafelmeubel;
– Drie royale slaapkamers, waarvan één met ruime inloopkast;
– Toegang tot balkon vanuit slaapkamer;
– Veel natuurlijk lichtinval, maar ook goede zonwering;
– Volledig geïsoleerd;
– Airconditioning;
– Vrijstaande berging;
– Luxe overkapping met verlichting;
– Eigen oprit met ruimte voor meerdere auto’s;
– Fraaie tuin rondom de woning;
– Ruim perceel van ca. 650 m2;
– Etc.

Vraagprijs :
€ 589.000,00 k.k.

Zekerheidsstelling :
Koper dient een bankgarantie of waarborgsom te stellen ter hoogte van 10% van de koopprijs.

Aanvaarding :
In overleg.
Lees meer

Kenmerken

Overdracht

Prijs per m2
€ 3.825
Aangeboden sinds
10 maart 2026
Status
Verkocht onder voorbehoud
Aanvaarding
In overleg

Bouw

Soort woonhuis
Eengezinswoning, vrijstaande woning
Soort bouw
Bestaande bouw
Bouwjaar
1979
Staat van onderhouden binnen
Goed
Staat van onderhouden buiten
Goed

Oppervlakte en inhoud

Perceeloppervlakte
650 m2
Inhoud van de woning
665 m3
Oppervlakte externe bergruimte
8 m2
Oppervlakte overige inpandige ruimten
29 m2

Indeling

Aantal kamers
4
Aantal slaapkamers
3
Aantal woonlagen
2
Voorzieningen
Tuin, schuur/berging

Buitenruimte

Balkon
Nee
Schuur/berging
Ja

Maandlasten berekenen

De maandlasten voor je woning bestaan uit meer dan alleen de hypotheeklasten. Hieronder vind je een overzicht van de bijkomende kosten en lasten. Zo weet je precies wat je huis per maand gaat kosten. En met de handige vergelijkers kun je ook nog eens snel de beste deals sluiten!

  • Kaart
  • Streetview