Verkocht OV

Brandershorst 39 7468 KL Enter

175m2
Wonen
4
Kamers
421m2
Perceel
2025
Bouwjaar
Welkom in uw droomhuis, gelegen in een schitterende nieuwbouwwijk omgeven door weelderig groen!

Namens onze opdrachtgever presenteren wij met trots deze moderne en uiterst luxe vrijstaande levensloopbestendige woning. De woning bevindt zich in de nieuwbouwwijk ‘De Berghorst fase 2’ te Enter. Deze wijk combineert het beste van twee werelden; de serene natuur en het levendige dorpscentrum van Enter, welke beiden binnen handbereik gelegen zijn. De wijk is zorgvuldig ontworpen om een ideale balans te bieden tussen rustieke groene landschappen en praktische dagelijkse voorzieningen.

Onze opdrachtgever heeft elk detail van deze woning met grote zorg overwogen om een perfecte mix van stijl en comfort te realiseren. Van de strakke lijnen van het exterieur tot de zorgvuldig geselecteerde materialen, straalt deze woning klasse en verfijning uit. De grote ramen zorgen voor een overvloed aan natuurlijk licht.

De ruimtelijke indeling van deze nieuwbouwwoning biedt tal van mogelijkheden voor uw levensstijl. De
woning biedt een compleet woonprogramma op de begane grond en is daarmee perfect voor de toekomst. De open woonkamer vloeit naadloos over in een moderne leefkeuken, waardoor u de ideale plek heeft om familie en vrienden te ontvangen.

Bouw is inmiddels gestart en naar verwachting wordt het casco uiterlijk 1-6-2026 opgeleverd. Eventuele verdere afbouw in overleg.

Indeling :
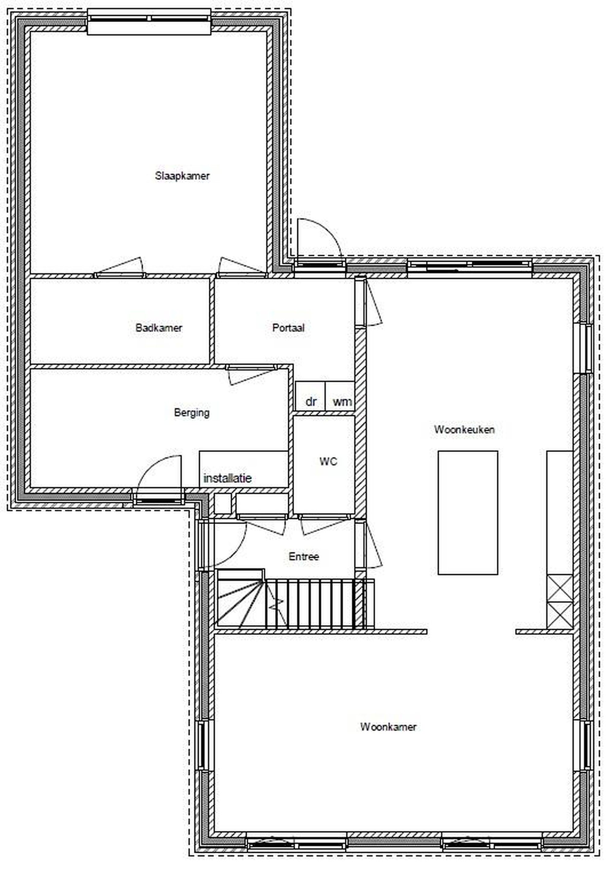
Begane grond:
Binnenkomst in de hal met trapopgang naar de eerste etage, meterkast, en toilet. Doorgang naar de royale leefruimte met straatgerichte woonkamer en aangrenzende woonkeuken. Verder is op de begane grond middels een portaal een berging en royale slaapkamer met eigen badkamer te bereiken. De achtergelegen tuin is tevens via dit portaal te bereiken.

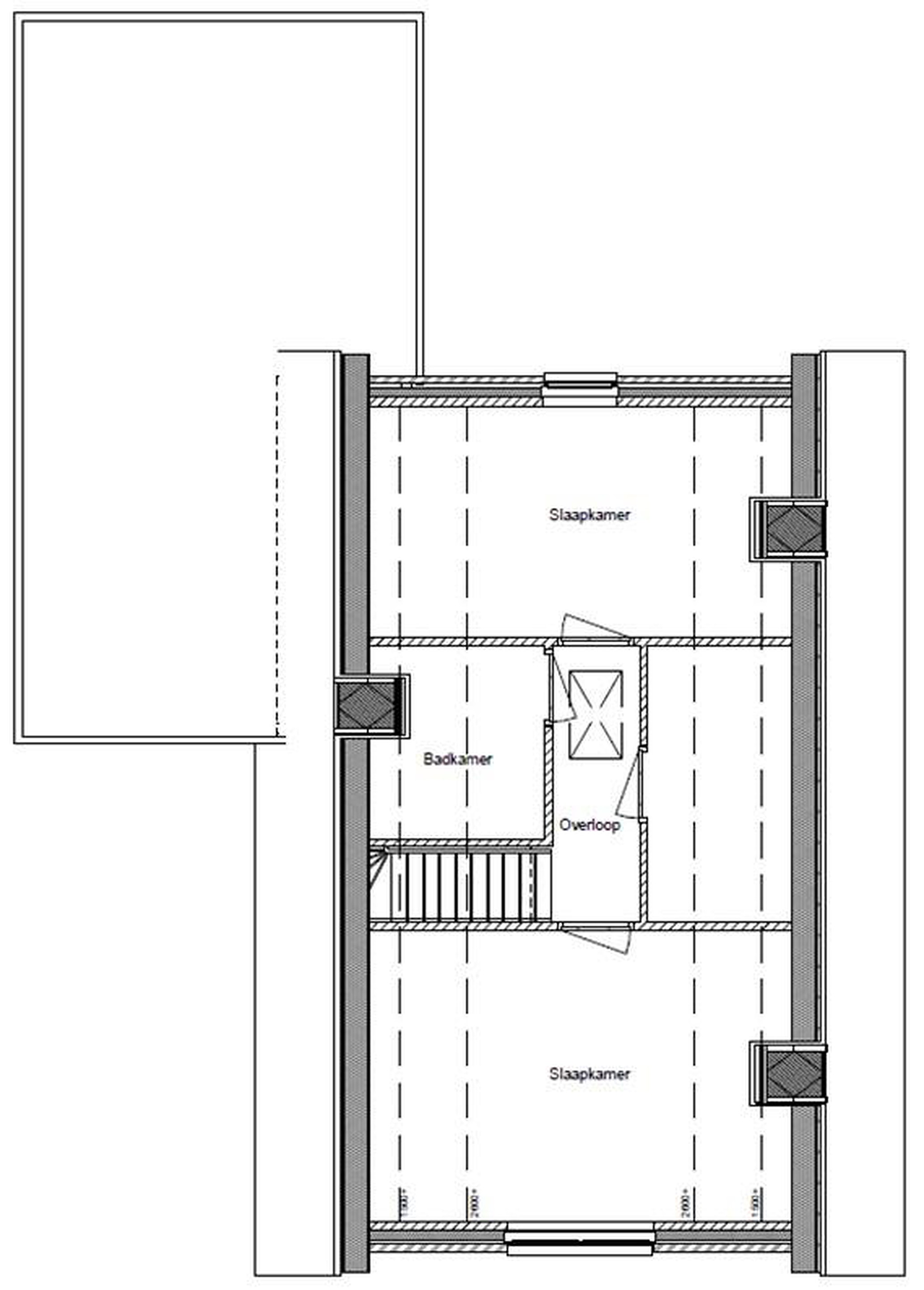
Eerste verdieping:
Middels een vaste trap bereikt u de royale overloop welke toegang biedt tot de badkamer en twee royale slaapkamers. Beide slaapkamers zijn groot genoeg voor een tweepersoonsbed. Tot slot is er op de eerste etage een opbergruimte aanwezig.

Tweede verdieping:
De woning beschikt tevens over een vlieringzolder, welke ideaal gebruikt kan worden als bergruimte.

Bijzonderheden :
– Prachtig gelegen kavel in de Berghorst meteen vrijstaande, toekomstgerichte woning;
– Slaap- en badkamer op de begane grond;
– Twee badkamers (één op de begane grond en één op de verdieping, casco oplevering);
– Volledige isolatie en HR+++-beglazing;
– Kunststof kozijnen met draaikiep ramen;
– Vloerverwarming en -koeling;
– Luchtwarmtepomp;
– Zonnepanelen;
– BENG-woning (zeer lage maandelijkse lasten).
– Levensloopbestendig wonen, klaar voor de toekomst!
– Grandioos vrij uitzicht aan de voorzijde;
– Royaal perceel;
– Etc. etc.

Wacht niet te lang en grijp deze Unieke kans!

Tuin :
Het perceel van maar liefst 421 m2 is groot genoeg om al uw dromen waar te maken. Aan de voorzijde is de woning voorzien van een eigen oprit. Aan de achterzijde is er ruimte genoeg voor een royale overkapping dan wel veranda, speelgazon en meerdere zitjes.

Gebruiksoppervlakte wonen :
Ca. 175 m2

Perceelgrootte :
Ca. 421 m2

Koopsom :
€ 675.000,00 v.o.n.

Bovengenoemde koopprijs is vrij op naam (v.o.n.) Dat wil zeggen inclusief 21% omzetbelasting, overdrachtskosten (notaris- en kadasterkosten), alle bouw- en legekosten, architect kosten, makelaarscourtage en aansluitkasten water, elektra en riolering.

Bijzonderheden :
– De bouw is thans gestart en naar verwachting wordt het casco uiterlijk op 1-6-2026 opgeleverd.
– De vermelde woonoppervlakten en inhoudsberekeningen zijn gebaseerd op onze eigen metingen aan de hand van de (bouw)tekeningen. Wij hebben deze metingen zo zorgvuldig mogelijk uitgevoerd. Echter kunnen aan de opgegeven maten nimmer rechten worden ontleend;
– De illustraties, artist impressions en staat van oplevering in deze brochure kunnen afwijken van het definitieve resultaat.
Lees meer

Kenmerken

Overdracht

Prijs per m2
€ 3.857
Aangeboden sinds
7 oktober 2025
Status
Verkocht onder voorbehoud
Aanvaarding
In overleg

Bouw

Soort woonhuis
Eengezinswoning, vrijstaande woning
Soort bouw
Nieuwbouw
Bouwjaar
2025
Staat van onderhouden binnen
Uitstekend
Staat van onderhouden buiten
Uitstekend

Oppervlakte en inhoud

Perceeloppervlakte
421 m2
Inhoud van de woning
525 m3

Indeling

Aantal kamers
4
Aantal slaapkamers
3
Aantal woonlagen
3
Voorzieningen
Tuin

Buitenruimte

Balkon
Nee
Schuur/berging
Nee

Maandlasten berekenen

De maandlasten voor je woning bestaan uit meer dan alleen de hypotheeklasten. Hieronder vind je een overzicht van de bijkomende kosten en lasten. Zo weet je precies wat je huis per maand gaat kosten. En met de handige vergelijkers kun je ook nog eens snel de beste deals sluiten!

  • Kaart
  • Streetview